Your email has been sent.
Elgin Mills Centre 10720 Yonge St 1,018 - 7,083 SF of Space Available in Richmond Hill, ON L4C 3C9



HIGHLIGHTS
- Minutes away from Mackenzie Health Richmond Hill Hospital.
- Minutes away from Highway 7 & Highway 407.
- Minutes away from Alexander Mackenzie High School & Richmond Hill High School.
- Steps away Viva Bus Stop.
SPACE AVAILABILITY (3)
Display Rental Rate as
- SPACE
- SIZE
- TERM
- RENTAL RATE
- RENT TYPE
| Space | Size | Term | Rental Rate | Rent Type | ||
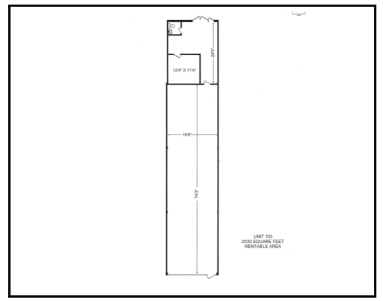
| 1st Floor, Ste 103 | 2,030 SF | 1-10 Years | Upon Request Upon Request Upon Request Upon Request | Triple Net (NNN) | ||
| 2nd Floor, Ste 224 | 1,018 SF | Negotiable | Upon Request Upon Request Upon Request Upon Request | Triple Net (NNN) | ||
| 2nd Floor, Ste 228 | 4,035 SF | Negotiable | Upon Request Upon Request Upon Request Upon Request | Triple Net (NNN) |
1st Floor, Ste 103
10720 Yonge Street is strategically located in a high traffic retail node at the major intersection of Yonge Street and Elgin Mills Rd. W., and is minutes away from Mackenzie Health Richmond Hill Hospital.
- Lease rate does not include utilities, property expenses or building services
- Fully Built-Out as Standard Retail Space
- Located in-line with other retail
2nd Floor, Ste 224
Welcome to Elgin Mills Centre, a busy retail plaza with various office spaces available For Lease on the second floor. Subject site is located in the heart of Richmond Hill and is right next to the VIVA bus stop. The office space is on the second floor and tenants also have access to an elevator.
- Lease rate does not include utilities, property expenses or building services
- Fully Built-Out as Standard Office
- Fits 3 - 9 People
- 2 Private Offices
2nd Floor, Ste 228
Welcome to Elgin Mills Centre, a busy retail plaza with various office spaces available For Lease on the second floor. Subject site is located in the heart of Richmond Hill and is right next to the VIVA bus stop. The office space is on the second floor and tenants also have access to an elevator.
- Lease rate does not include utilities, property expenses or building services
- Fully Built-Out as Standard Office
- Fits 11 - 33 People
- 12 Private Offices
- Reception Area
Rent Types
The rent amount and type that the tenant (lessee) will be responsible to pay to the landlord (lessor) throughout the lease term is negotiated prior to both parties signing a lease agreement. The rent type will vary depending upon the services provided. For example, triple net rents are typically lower than full service rents due to additional expenses the tenant is required to pay in addition to the base rent. Contact the listing broker for a full understanding of any associated costs or additional expenses for each rent type.
1. Full Service: A rental rate that includes normal building standard services as provided by the landlord within a base year rental.
2. Double Net (NN): Tenant pays for only two of the building expenses; the landlord and tenant determine the specific expenses prior to signing the lease agreement.
3. Triple Net (NNN): A lease in which the tenant is responsible for all expenses associated with their proportional share of occupancy of the building.
4. Modified Gross: Modified Gross is a general type of lease rate where typically the tenant will be responsible for their proportional share of one or more of the expenses. The landlord will pay the remaining expenses. See the below list of common Modified Gross rental rate structures: 4. Plus All Utilities: A type of Modified Gross Lease where the tenant is responsible for their proportional share of utilities in addition to the rent. 4. Plus Cleaning: A type of Modified Gross Lease where the tenant is responsible for their proportional share of cleaning in addition to the rent. 4. Plus Electric: A type of Modified Gross Lease where the tenant is responsible for their proportional share of the electrical cost in addition to the rent. 4. Plus Electric & Cleaning: A type of Modified Gross Lease where the tenant is responsible for their proportional share of the electrical and cleaning cost in addition to the rent. 4. Plus Utilities and Char: A type of Modified Gross Lease where the tenant is responsible for their proportional share of the utilities and cleaning cost in addition to the rent. 4. Industrial Gross: A type of Modified Gross lease where the tenant pays one or more of the expenses in addition to the rent. The landlord and tenant determine these prior to signing the lease agreement.
5. Tenant Electric: The landlord pays for all services and the tenant is responsible for their usage of lights and electrical outlets in the space they occupy.
6. Negotiable or Upon Request: Used when the leasing contact does not provide the rent or service type.
7. TBD: To be determined; used for buildings for which no rent or service type is known, commonly utilized when the buildings are not yet built.
SITE PLAN
PROPERTY FACTS
| Total Space Available | 7,083 SF | Total Land Area | 3.24 AC |
| Property Type | Retail | Year Built | 1973 |
| Property Subtype | Storefront Retail/Office | Parking Ratio | 1.5/1,000 SF |
| Gross Leasable Area | 79,538 SF |
| Total Space Available | 7,083 SF |
| Property Type | Retail |
| Property Subtype | Storefront Retail/Office |
| Gross Leasable Area | 79,538 SF |
| Total Land Area | 3.24 AC |
| Year Built | 1973 |
| Parking Ratio | 1.5/1,000 SF |
ABOUT THE PROPERTY
Welcome to Elgin Mills Centre, a busy retail plaza located in the heart of Richmond Hill and is right next to the VIVA bus stop. 10720 Yonge Street is strategically located in a high traffic retail node at the major intersection of Yonge Street and Elgin Mills Rd. W., and is minutes away from Mackenzie Health Richmond Hill Hospital. With several established national and local retailers Elgin Mills Centre offers an array of amenities to the area's growing population. Elgin Mills Centre is a stabilized retail plaza with 43,406 SF of rentable area and has a diversified tenant profile in the services, retail, and food industries.
- Bus Line
- Dedicated Turn Lane
- Pylon Sign
- Signage
- Signalized Intersection
NEARBY MAJOR RETAILERS
Presented by
Elgin Mills Centre | 10720 Yonge St
Hmm, there seems to have been an error sending your message. Please try again.
Thanks! Your message was sent.


