Your email has been sent.
Park Highlights
- 32 buildings with a mixture of grade level and dock high opportunities
- Serves well as an access point to the large network of highways within North Texas
- For a complete list of all available properties, please visit our website at www.ridgepcre.com
- 20-22' clear heights and direct access to U.S. Hwy 80 and FM 548
- Located less than 10 miles from Interstate 30, Interstate 635 Loop and U.S. Hwy 175
- www.ridgepcre.com
Park Facts
Features and Amenities
- 24 Hour Access
- Freeway Visibility
- Signage
Display Rental Rate as
- Space
- Size
- Term
- Rental Rate
- Space Use
- Build-Out
- Available
Flex Space for Lease
- Space is in Excellent Condition
- Central Air Conditioning
Flex Space for Lease
- Space is in Excellent Condition
- Central Air Conditioning
| Space | Size | Term | Rental Rate | Space Use | Build-Out | Available |
| 1st Floor - 18-19 | 23,479 SF | Negotiable | Upon Request Upon Request Upon Request Upon Request | Flex | Full Build-Out | 30 Days |
| 1st Floor - 1A | 5,028 SF | Negotiable | Upon Request Upon Request Upon Request Upon Request | Flex | Partial Build-Out | 30 Days |
10758 W Us-80 Hwy - 1st Floor - 18-19
10758 W Us-80 Hwy - 1st Floor - 1A
- Space
- Size
- Term
- Rental Rate
- Space Use
- Build-Out
- Available
Call or email broker for additional information.
- Fully Built-Out as Standard Office
- Space is in Excellent Condition
- Mostly Open Floor Plan Layout
- After Hours HVAC Available
| Space | Size | Term | Rental Rate | Space Use | Build-Out | Available |
| 1st Floor | 2,600 SF | Negotiable | Upon Request Upon Request Upon Request Upon Request | Office | Full Build-Out | Now |
10580 W Us-80 - 1st Floor
- Space
- Size
- Term
- Rental Rate
- Space Use
- Build-Out
- Available
Flex Space for Lease
- Space is in Excellent Condition
- Central Air Conditioning
Flex Space for Lease
- Space is in Excellent Condition
- Central Air Conditioning
| Space | Size | Term | Rental Rate | Space Use | Build-Out | Available |
| 1st Floor - 18-19 | 23,479 SF | Negotiable | Upon Request Upon Request Upon Request Upon Request | Flex | Full Build-Out | 30 Days |
| 1st Floor - 1A | 5,028 SF | Negotiable | Upon Request Upon Request Upon Request Upon Request | Flex | Partial Build-Out | 30 Days |
10758 W Us-80 Hwy - 1st Floor - 18-19
10758 W Us-80 Hwy - 1st Floor - 1A
- Space
- Size
- Term
- Rental Rate
- Space Use
- Build-Out
- Available
10,067 RSF
- Space is in Excellent Condition
- Central Air Conditioning
- 18' Clear Height
- 2 Loading Docks
- 2 Dock High Doors
| Space | Size | Term | Rental Rate | Space Use | Build-Out | Available |
| 1st Floor - Unit 1 | 10,067 SF | Negotiable | Upon Request Upon Request Upon Request Upon Request | Industrial | Full Build-Out | Now |
10462 W Us-80 - 1st Floor - Unit 1
- Space
- Size
- Term
- Rental Rate
- Space Use
- Build-Out
- Available
Call or email broker for additional information.
- 3 Drive Ins
- Central Air Conditioning
- 3 Loading Docks
| Space | Size | Term | Rental Rate | Space Use | Build-Out | Available |
| 1st Floor - Unit 11 | 20,865 SF | Negotiable | Upon Request Upon Request Upon Request Upon Request | Industrial | Shell Space | Now |
12601 Reeder Rd - 1st Floor - Unit 11
- Space
- Size
- Term
- Rental Rate
- Space Use
- Build-Out
- Available
Call or email broker for additional information.
- 4 Drive Ins
- 2 Loading Docks
- Space is in Excellent Condition
- Central Air Conditioning
| Space | Size | Term | Rental Rate | Space Use | Build-Out | Available |
| 1st Floor - Unit 12 | 20,865 SF | Negotiable | Upon Request Upon Request Upon Request Upon Request | Industrial | Full Build-Out | Now |
12639 Reeder Rd - 1st Floor - Unit 12
- Space
- Size
- Term
- Rental Rate
- Space Use
- Build-Out
- Available
10,057 RSF
- Space is in Excellent Condition
- Central Air Conditioning
- 27' Clear Height
- 1 Loading Dock
- 1 Dock High Door
| Space | Size | Term | Rental Rate | Space Use | Build-Out | Available |
| 1st Floor - Unit 14A/B | 10,057 SF | Negotiable | Upon Request Upon Request Upon Request Upon Request | Industrial | Full Build-Out | Now |
11578 Industrial Park - 1st Floor - Unit 14A/B
- Space
- Size
- Term
- Rental Rate
- Space Use
- Build-Out
- Available
10,081 RSF
- 1 Drive Bay
- 1 Loading Dock
- 1 Dock High Door
- Space is in Excellent Condition
- Central Air Conditioning
- 1 Drive in
| Space | Size | Term | Rental Rate | Space Use | Build-Out | Available |
| 1st Floor - Unit 16 | 10,081 SF | Negotiable | Upon Request Upon Request Upon Request Upon Request | Industrial | Full Build-Out | Now |
11552 Industrial Park - 1st Floor - Unit 16
- Space
- Size
- Term
- Rental Rate
- Space Use
- Build-Out
- Available
Call or email broker for additional information.
- Space is in Excellent Condition
- Central Air Conditioning
- 5 Loading Docks
| Space | Size | Term | Rental Rate | Space Use | Build-Out | Available |
| 1st Floor - Unit 20 & 21 | 29,288 SF | Negotiable | Upon Request Upon Request Upon Request Upon Request | Industrial | Full Build-Out | Now |
11484 Industrial Park - 1st Floor - Unit 20 & 21
- Space
- Size
- Term
- Rental Rate
- Space Use
- Build-Out
- Available
Call or email broker for additional information.
- 1 Drive Bay
- 5 Loading Docks
- Space is in Excellent Condition
- Central Air Conditioning
| Space | Size | Term | Rental Rate | Space Use | Build-Out | Available |
| 1st Floor - Unit 23 | 18,031 SF | Negotiable | Upon Request Upon Request Upon Request Upon Request | Industrial | Full Build-Out | Now |
10312-10326 Industrial Way - 1st Floor - Unit 23
- Space
- Size
- Term
- Rental Rate
- Space Use
- Build-Out
- Available
Call or email broker for additional information.
- 1 Drive Bay
- 3 Loading Docks
- Space is in Excellent Condition
- Central Air Conditioning
| Space | Size | Term | Rental Rate | Space Use | Build-Out | Available |
| 1st Floor - Unit 27 | 17,459 SF | Negotiable | Upon Request Upon Request Upon Request Upon Request | Industrial | Full Build-Out | Now |
11480 Industrial Way - 1st Floor - Unit 27
- Space
- Size
- Term
- Rental Rate
- Space Use
- Build-Out
- Available
10,064 RSF
- Space is in Excellent Condition
- Central Air Conditioning
- 18' Clear Height
- 2 Loading Docks
- 2 Dock High Doors
| Space | Size | Term | Rental Rate | Space Use | Build-Out | Available |
| 1st Floor - Unit 3 | 10,064 SF | Negotiable | Upon Request Upon Request Upon Request Upon Request | Industrial | Full Build-Out | Now |
10486 W Us-80 - 1st Floor - Unit 3
- Space
- Size
- Term
- Rental Rate
- Space Use
- Build-Out
- Available
Call or email broker for additional information.
- Includes 2,600 SF of dedicated office space
- Space is in Excellent Condition
- Central Air Conditioning
- 1 Drive Bay
- 1 Loading Dock
| Space | Size | Term | Rental Rate | Space Use | Build-Out | Available |
| 1st Floor - Unit 5A6 | 12,600 SF | Negotiable | Upon Request Upon Request Upon Request Upon Request | Industrial | Full Build-Out | Now |
10548 Us-80 - 1st Floor - Unit 5A6
- Space
- Size
- Term
- Rental Rate
- Space Use
- Build-Out
- Available
5,283 RSF
- Space is in Excellent Condition
- Central Air Conditioning
- 24' Clear Height
- 1 Loading Dock
- One Dock High Door
| Space | Size | Term | Rental Rate | Space Use | Build-Out | Available |
| 1st Floor - Unit 8 | 5,022 SF | Negotiable | Upon Request Upon Request Upon Request Upon Request | Industrial | Full Build-Out | Now |
10658 W Us-80 - 1st Floor - Unit 8
10580 W Us-80 - 1st Floor
| Size | 2,600 SF |
| Term | Negotiable |
| Rental Rate | Upon Request |
| Space Use | Office |
| Build-Out | Full Build-Out |
| Available | Now |
Call or email broker for additional information.
- Fully Built-Out as Standard Office
- Mostly Open Floor Plan Layout
- Space is in Excellent Condition
- After Hours HVAC Available
10758 W Us-80 Hwy - 1st Floor - 18-19
| Size | 23,479 SF |
| Term | Negotiable |
| Rental Rate | Upon Request |
| Space Use | Flex |
| Build-Out | Full Build-Out |
| Available | 30 Days |
Flex Space for Lease
- Space is in Excellent Condition
- Central Air Conditioning
10758 W Us-80 Hwy - 1st Floor - 1A
| Size | 5,028 SF |
| Term | Negotiable |
| Rental Rate | Upon Request |
| Space Use | Flex |
| Build-Out | Partial Build-Out |
| Available | 30 Days |
Flex Space for Lease
- Space is in Excellent Condition
- Central Air Conditioning
10462 W Us-80 - 1st Floor - Unit 1
| Size | 10,067 SF |
| Term | Negotiable |
| Rental Rate | Upon Request |
| Space Use | Industrial |
| Build-Out | Full Build-Out |
| Available | Now |
10,067 RSF
- Space is in Excellent Condition
- 2 Loading Docks
- Central Air Conditioning
- 2 Dock High Doors
- 18' Clear Height
12601 Reeder Rd - 1st Floor - Unit 11
| Size | 20,865 SF |
| Term | Negotiable |
| Rental Rate | Upon Request |
| Space Use | Industrial |
| Build-Out | Shell Space |
| Available | Now |
Call or email broker for additional information.
- 3 Drive Ins
- 3 Loading Docks
- Central Air Conditioning
12639 Reeder Rd - 1st Floor - Unit 12
| Size | 20,865 SF |
| Term | Negotiable |
| Rental Rate | Upon Request |
| Space Use | Industrial |
| Build-Out | Full Build-Out |
| Available | Now |
Call or email broker for additional information.
- 4 Drive Ins
- Space is in Excellent Condition
- 2 Loading Docks
- Central Air Conditioning
11578 Industrial Park - 1st Floor - Unit 14A/B
| Size | 10,057 SF |
| Term | Negotiable |
| Rental Rate | Upon Request |
| Space Use | Industrial |
| Build-Out | Full Build-Out |
| Available | Now |
10,057 RSF
- Space is in Excellent Condition
- 1 Loading Dock
- Central Air Conditioning
- 1 Dock High Door
- 27' Clear Height
11552 Industrial Park - 1st Floor - Unit 16
| Size | 10,081 SF |
| Term | Negotiable |
| Rental Rate | Upon Request |
| Space Use | Industrial |
| Build-Out | Full Build-Out |
| Available | Now |
10,081 RSF
- 1 Drive Bay
- Space is in Excellent Condition
- 1 Loading Dock
- Central Air Conditioning
- 1 Dock High Door
- 1 Drive in
11484 Industrial Park - 1st Floor - Unit 20 & 21
| Size | 29,288 SF |
| Term | Negotiable |
| Rental Rate | Upon Request |
| Space Use | Industrial |
| Build-Out | Full Build-Out |
| Available | Now |
Call or email broker for additional information.
- Space is in Excellent Condition
- 5 Loading Docks
- Central Air Conditioning
10312-10326 Industrial Way - 1st Floor - Unit 23
| Size | 18,031 SF |
| Term | Negotiable |
| Rental Rate | Upon Request |
| Space Use | Industrial |
| Build-Out | Full Build-Out |
| Available | Now |
Call or email broker for additional information.
- 1 Drive Bay
- Space is in Excellent Condition
- 5 Loading Docks
- Central Air Conditioning
11480 Industrial Way - 1st Floor - Unit 27
| Size | 17,459 SF |
| Term | Negotiable |
| Rental Rate | Upon Request |
| Space Use | Industrial |
| Build-Out | Full Build-Out |
| Available | Now |
Call or email broker for additional information.
- 1 Drive Bay
- Space is in Excellent Condition
- 3 Loading Docks
- Central Air Conditioning
10486 W Us-80 - 1st Floor - Unit 3
| Size | 10,064 SF |
| Term | Negotiable |
| Rental Rate | Upon Request |
| Space Use | Industrial |
| Build-Out | Full Build-Out |
| Available | Now |
10,064 RSF
- Space is in Excellent Condition
- 2 Loading Docks
- Central Air Conditioning
- 2 Dock High Doors
- 18' Clear Height
10548 Us-80 - 1st Floor - Unit 5A6
| Size | 12,600 SF |
| Term | Negotiable |
| Rental Rate | Upon Request |
| Space Use | Industrial |
| Build-Out | Full Build-Out |
| Available | Now |
Call or email broker for additional information.
- Includes 2,600 SF of dedicated office space
- 1 Drive Bay
- Space is in Excellent Condition
- 1 Loading Dock
- Central Air Conditioning
10658 W Us-80 - 1st Floor - Unit 8
| Size | 5,022 SF |
| Term | Negotiable |
| Rental Rate | Upon Request |
| Space Use | Industrial |
| Build-Out | Full Build-Out |
| Available | Now |
5,283 RSF
- Space is in Excellent Condition
- 1 Loading Dock
- Central Air Conditioning
- One Dock High Door
- 24' Clear Height
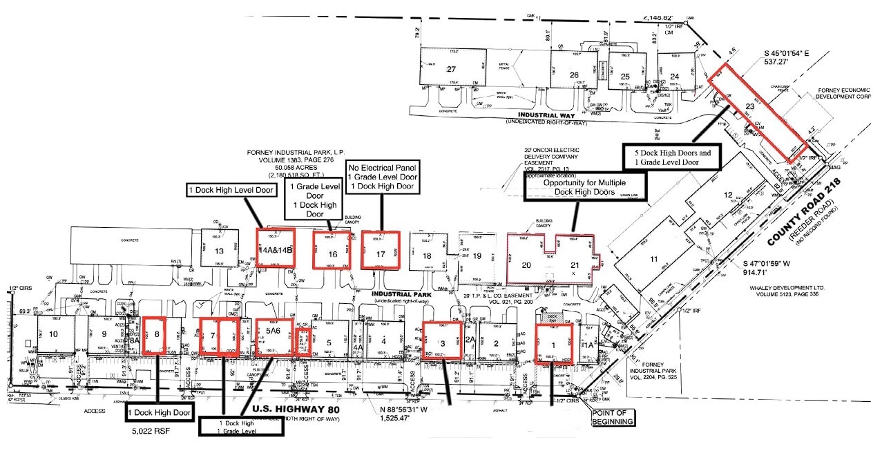
Site Plan
Park Overview
The property is 311,000 RSF multi-tenant industrial park available for lease. The property has 32 buildings with a mixture of grade level and dock high opportunities with 20-22’ clear heights and direct access to U.S. Highway 80 and FM 548. Positioned alongside U.S. Highway 80 and 4 miles north of Interstate 20, Forney Industrial Park’s location serves as an access point to the large network of highways within North Texas. The property is within 10 miles of Interstate 30, Interstate 635, and U.S. Highway 175! For a complete list of all available properties, please visit www.ridgepcre.com
Presented by
Forney Industrial Park | Forney, TX 75126
Hmm, there seems to have been an error sending your message. Please try again.
Thanks! Your message was sent.



