Your email has been sent.
Highlights
- There are 210 free surface parking spaces available.
- Within an hour of 3 airports; Dulles, Ronald Reagan, and Baltimore Washington.
- Very easy access to the Beltway and close to many retailers.
- Bus stop at the door, and close to both the Silver Spring and Kensington Commuter Rail.
All Available Spaces(5)
Display Rental Rate as
- Space
- Size
- Term
- Rental Rate
- Space Use
- Build-Out
- Available
- Listed lease rate plus proportional share of cleaning costs
- Listed lease rate plus proportional share of the utilities and cleaning cost
Suite 210 is a flexible space suitable for medical or office use, featuring one private office complemented by a reception and waiting area. The layout includes a workstation area, three exam rooms, a breakroom, and a bathroom for convenience. Additional amenities include a utility closet, making this suite well-equipped for professional or healthcare operations.
- Fully Built-Out as Standard Medical Space
- 1 Workstation
- Private Restrooms
- 1 Private Office
- Reception Area
Recently built out medical suite.
- Rate includes utilities, building services and property expenses
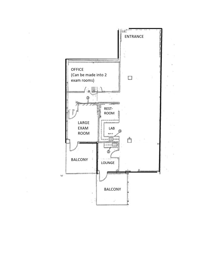
Suite 325 offers a versatile layout featuring an existing office that can be converted into two exam rooms, a large exam room, and two private balconies. The space includes a lounge area, dedicated lab space, and a private restroom for convenience. At the entrance, patients are welcomed by a waiting area and reception space, creating an efficient and comfortable environment for medical or professional use.
- Rate includes utilities, building services and property expenses
- Private Restrooms
- Fully Built-Out as Standard Medical Space
- Balcony
| Space | Size | Term | Rental Rate | Space Use | Build-Out | Available |
| 1st Floor, Ste 150 | 2,500-4,230 SF | Negotiable | $46.84 CAD/SF/YR $3.90 CAD/SF/MO $198,112 CAD/YR $16,509 CAD/MO | Office | - | 30 Days |
| 1st Floor, Ste 190 | 1,210 SF | Negotiable | $46.84 CAD/SF/YR $3.90 CAD/SF/MO $56,670 CAD/YR $4,723 CAD/MO | Office/Medical | - | Now |
| 2nd Floor, Ste 210 | 1,318 SF | Negotiable | $44.08 CAD/SF/YR $3.67 CAD/SF/MO $58,097 CAD/YR $4,841 CAD/MO | Office/Medical | Full Build-Out | Now |
| 2nd Floor, Ste 285 | 1,814 SF | 3-10 Years | $44.08 CAD/SF/YR $3.67 CAD/SF/MO $79,961 CAD/YR $6,663 CAD/MO | Medical | - | Now |
| 3rd Floor, Ste 325 | 2,230 SF | 3-10 Years | $44.08 CAD/SF/YR $3.67 CAD/SF/MO $98,298 CAD/YR $8,192 CAD/MO | Office/Medical | Full Build-Out | Now |
1st Floor, Ste 150
| Size |
| 2,500-4,230 SF |
| Term |
| Negotiable |
| Rental Rate |
| $46.84 CAD/SF/YR $3.90 CAD/SF/MO $198,112 CAD/YR $16,509 CAD/MO |
| Space Use |
| Office |
| Build-Out |
| - |
| Available |
| 30 Days |
1st Floor, Ste 190
| Size |
| 1,210 SF |
| Term |
| Negotiable |
| Rental Rate |
| $46.84 CAD/SF/YR $3.90 CAD/SF/MO $56,670 CAD/YR $4,723 CAD/MO |
| Space Use |
| Office/Medical |
| Build-Out |
| - |
| Available |
| Now |
2nd Floor, Ste 210
| Size |
| 1,318 SF |
| Term |
| Negotiable |
| Rental Rate |
| $44.08 CAD/SF/YR $3.67 CAD/SF/MO $58,097 CAD/YR $4,841 CAD/MO |
| Space Use |
| Office/Medical |
| Build-Out |
| Full Build-Out |
| Available |
| Now |
2nd Floor, Ste 285
| Size |
| 1,814 SF |
| Term |
| 3-10 Years |
| Rental Rate |
| $44.08 CAD/SF/YR $3.67 CAD/SF/MO $79,961 CAD/YR $6,663 CAD/MO |
| Space Use |
| Medical |
| Build-Out |
| - |
| Available |
| Now |
3rd Floor, Ste 325
| Size |
| 2,230 SF |
| Term |
| 3-10 Years |
| Rental Rate |
| $44.08 CAD/SF/YR $3.67 CAD/SF/MO $98,298 CAD/YR $8,192 CAD/MO |
| Space Use |
| Office/Medical |
| Build-Out |
| Full Build-Out |
| Available |
| Now |
1st Floor, Ste 150
| Size | 2,500-4,230 SF |
| Term | Negotiable |
| Rental Rate | $46.84 CAD/SF/YR |
| Space Use | Office |
| Build-Out | - |
| Available | 30 Days |
- Listed lease rate plus proportional share of cleaning costs
1st Floor, Ste 190
| Size | 1,210 SF |
| Term | Negotiable |
| Rental Rate | $46.84 CAD/SF/YR |
| Space Use | Office/Medical |
| Build-Out | - |
| Available | Now |
- Listed lease rate plus proportional share of the utilities and cleaning cost
2nd Floor, Ste 210
| Size | 1,318 SF |
| Term | Negotiable |
| Rental Rate | $44.08 CAD/SF/YR |
| Space Use | Office/Medical |
| Build-Out | Full Build-Out |
| Available | Now |
Suite 210 is a flexible space suitable for medical or office use, featuring one private office complemented by a reception and waiting area. The layout includes a workstation area, three exam rooms, a breakroom, and a bathroom for convenience. Additional amenities include a utility closet, making this suite well-equipped for professional or healthcare operations.
- Fully Built-Out as Standard Medical Space
- 1 Private Office
- 1 Workstation
- Reception Area
- Private Restrooms
2nd Floor, Ste 285
| Size | 1,814 SF |
| Term | 3-10 Years |
| Rental Rate | $44.08 CAD/SF/YR |
| Space Use | Medical |
| Build-Out | - |
| Available | Now |
Recently built out medical suite.
- Rate includes utilities, building services and property expenses
3rd Floor, Ste 325
| Size | 2,230 SF |
| Term | 3-10 Years |
| Rental Rate | $44.08 CAD/SF/YR |
| Space Use | Office/Medical |
| Build-Out | Full Build-Out |
| Available | Now |
Suite 325 offers a versatile layout featuring an existing office that can be converted into two exam rooms, a large exam room, and two private balconies. The space includes a lounge area, dedicated lab space, and a private restroom for convenience. At the entrance, patients are welcomed by a waiting area and reception space, creating an efficient and comfortable environment for medical or professional use.
- Rate includes utilities, building services and property expenses
- Fully Built-Out as Standard Medical Space
- Private Restrooms
- Balcony
Property Overview
This office building on Lockwood Drive is conveniently located in the North Silver Spring Submarket and sits only one mile outside the Beltway. The property is also within minutes to Holy Cross Hospital, and also walking distance to shopping & restaurants. The property has usable balconies and individual after hours HVAC as well as excellent after hours access for clients patients, and visitors.
- Atrium
- Monument Signage
- Balcony
Property Facts
Presented by
Colewood Centre | 10801 Lockwood Dr
Hmm, there seems to have been an error sending your message. Please try again.
Thanks! Your message was sent.









