Your email has been sent.
All Available Space(1)
Display Rental Rate as
- Space
- Size
- Term
- Rental Rate
- Space Use
- Build-Out
- Available
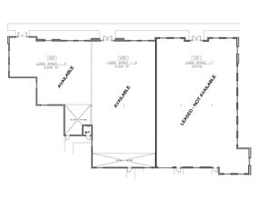
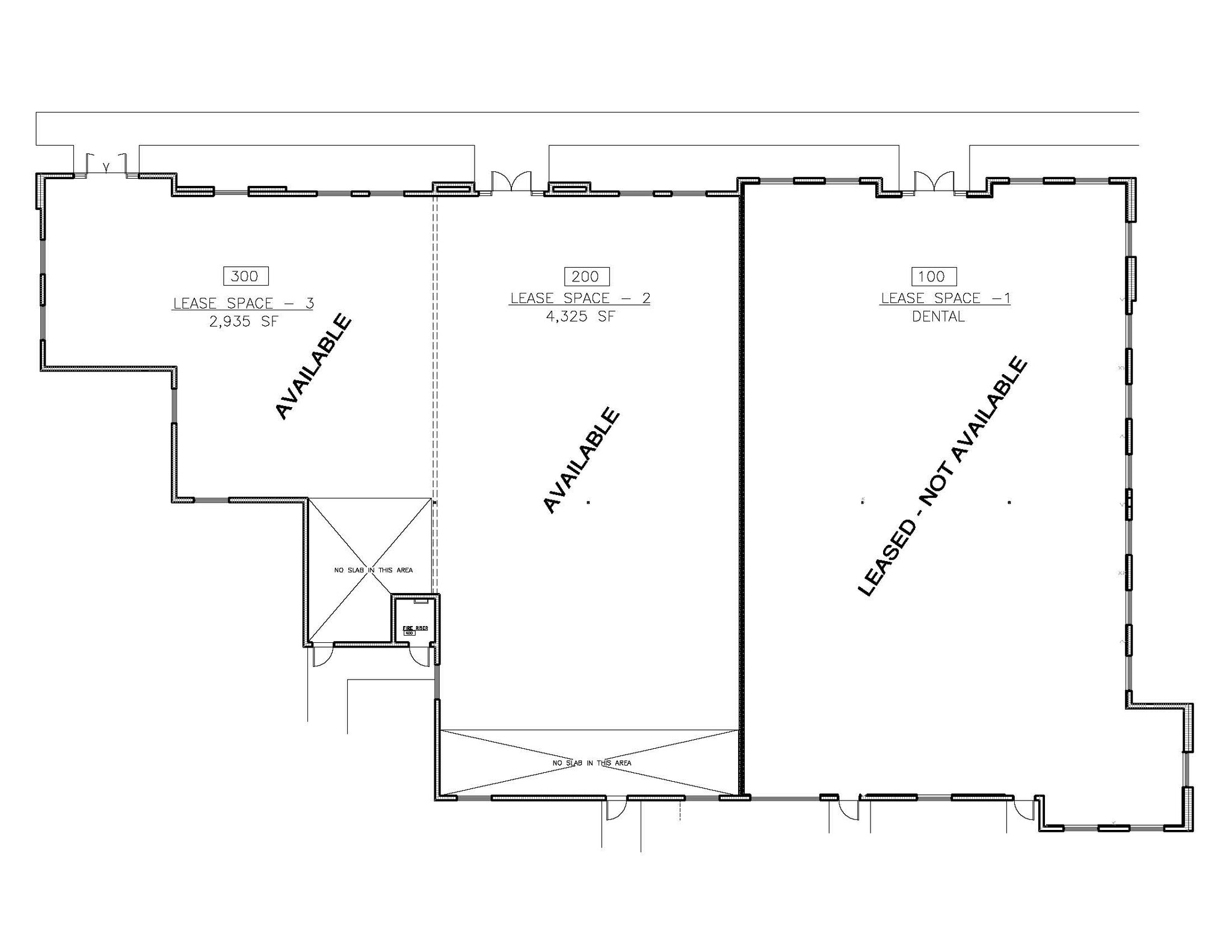
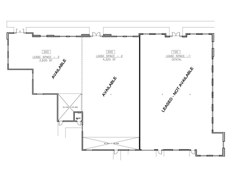
NEW CONSTRUCTION! The dark gray shell is estimated to be ready for delivery to prospective tenants in Fall of 2025. Bring your medical, office, or retail business to this amazing location. This property is adjacent to the new Wal-mart to be constructed. This new Commercial strip center is direct frontage on CR466, a well traveled thoroughfare with over 25,000 vehicles per day, which is sure to increase with the new Wal-mart to the east and Costco to the west. Available spaces are unit #200 which is 4,325 sq ft and unit #300 which is 2,935 sq ft, or combine for 7,260 sq ft. The adjacent space, unit #100, is a Dentist, under contract. The adjacent building, which is also under construction, will be a thriving Dermatology practice that will bring continuous traffic to the site. In addition to the base rent, there will also be $4 CAM and $4 additional rent to cover real estate taxes and insurance. 5-year lease term minimum.
- Lease rate does not include utilities, property expenses or building services
- Direct frontage on 466.
- Mostly Open Floor Plan Layout
| Space | Size | Term | Rental Rate | Space Use | Build-Out | Available |
| 1st Floor, Ste 200 & 300 | 2,935-7,260 SF | 5-10 Years | $47.80 CAD/SF/YR $3.98 CAD/SF/MO $347,014 CAD/YR $28,918 CAD/MO | Office | Shell Space | 2026-05-01 |
1st Floor, Ste 200 & 300
| Size |
| 2,935-7,260 SF |
| Term |
| 5-10 Years |
| Rental Rate |
| $47.80 CAD/SF/YR $3.98 CAD/SF/MO $347,014 CAD/YR $28,918 CAD/MO |
| Space Use |
| Office |
| Build-Out |
| Shell Space |
| Available |
| 2026-05-01 |
1st Floor, Ste 200 & 300
| Size | 2,935-7,260 SF |
| Term | 5-10 Years |
| Rental Rate | $47.80 CAD/SF/YR |
| Space Use | Office |
| Build-Out | Shell Space |
| Available | 2026-05-01 |
NEW CONSTRUCTION! The dark gray shell is estimated to be ready for delivery to prospective tenants in Fall of 2025. Bring your medical, office, or retail business to this amazing location. This property is adjacent to the new Wal-mart to be constructed. This new Commercial strip center is direct frontage on CR466, a well traveled thoroughfare with over 25,000 vehicles per day, which is sure to increase with the new Wal-mart to the east and Costco to the west. Available spaces are unit #200 which is 4,325 sq ft and unit #300 which is 2,935 sq ft, or combine for 7,260 sq ft. The adjacent space, unit #100, is a Dentist, under contract. The adjacent building, which is also under construction, will be a thriving Dermatology practice that will bring continuous traffic to the site. In addition to the base rent, there will also be $4 CAM and $4 additional rent to cover real estate taxes and insurance. 5-year lease term minimum.
- Lease rate does not include utilities, property expenses or building services
- Mostly Open Floor Plan Layout
- Direct frontage on 466.
Property Overview
NEW CONSTRUCTION! The dark gray shell is estimated to be ready for delivery to prospective tenants in April 2026. Bring your medical, office, or retail business to this amazing location. This property is adjacent to the new Walmart to be constructed. This new Commercial strip center is direct frontage on CR466, a well traveled thoroughfare with over 25,000 vehicles per day, which is sure to increase with the new Walmart to the east and Costco to the west. Available spaces are unit #200 which is4,325 sq ft and unit #300 which is 2,935 sq ft, or combine for 7,260 sq ft. The adjacent space, unit #100, is a Dentist, under contract. In addition to the base rent, there will also be $4 CAM and $4 additional rent to cover real estate taxes and insurance. 5-year lease term minimum.
Property Facts
Presented by
10941 NE 89th Dr
Hmm, there seems to have been an error sending your message. Please try again.
Thanks! Your message was sent.






