Log In/Sign Up
Your email has been sent.
10975 Benson Dr
Overland Park, KS 66210
12 Corporate Woods · Office Property For Lease
·
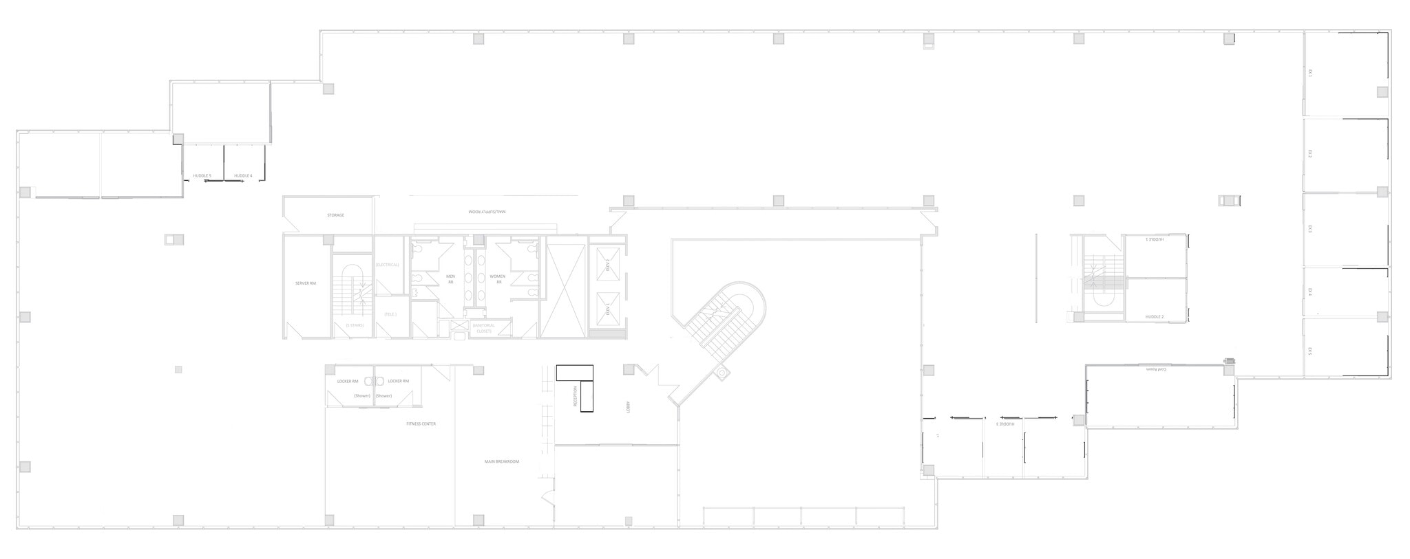
52,362 SF


Features and Amenities
- 24 Hour Access
- Atrium
- Controlled Access
- Property Manager on Site
- Security System
- Signage
- Skylights
- Car Charging Station
- Direct Elevator Exposure
- Plug & Play
- Yard
- Balcony
Property Facts
Building Type
Office
Year Built/Renovated
1986/2002
LoopNet Rating
4 Star
Building Height
5 Stories
Building Size
123,018 SF
Building Class
A
Typical Floor Size
16,967 SF
Unfinished Ceiling Height
12’
Parking
385 Surface Parking Spaces
1 of 12
Videos
Matterport 3D Exterior
Matterport 3D Tour
Photos
Street View
Street
Map
