Your email has been sent.
Duluth Technology Village 11 E Superior St 140 - 70,386 SF of 4-Star Space Available in Duluth, MN 55802



All Available Spaces(20)
Display Rental Rate as
- Space
- Size
- Term
- Rental Rate
- Space Use
- Build-Out
- Available
Link to Matterport Tour: https://my.matterport.com/show/?m=J9KQ1ghz5yg
- Lease rate does not include utilities, property expenses or building services
- Mostly Open Floor Plan Layout
- Partially Built-Out as Standard Office
Link to Matterport: https://my.matterport.com/show/?m=69dtW3nw57P
- Lease rate does not include utilities, property expenses or building services
- Mostly Open Floor Plan Layout
- Space is in Excellent Condition
- Fully Carpeted
- Emergency Lighting
- Automatic Blinds
- Former Pilates Studio
- Large windows for marketing opportunities.
- Fully Built-Out as Standard Retail Space
- 2 Private Offices
- Central Air and Heating
- High Ceilings
- Natural Light
- Open-Plan
- Store front accessibility
- Space includes awnings.
- Lease rate does not include utilities, property expenses or building services
- Lease rate does not include utilities, property expenses or building services
Link to Matterport: https://my.matterport.com/show/?m=xdR7foWR5MP
- Lease rate does not include utilities, property expenses or building services
- Mostly Open Floor Plan Layout
- Space is in Excellent Condition
- Fully Carpeted
- Emergency Lighting
- Open-Plan
- Large windows for marketing opportunities.
- Fully Built-Out as Standard Retail Space
- 4 Private Offices
- Central Air and Heating
- High Ceilings
- Natural Light
- Space includes awnings
- Abundance of natural light.
Link to Matterport: https://my.matterport.com/show/?m=ftGXihiZAXj
- Lease rate does not include utilities, property expenses or building services
- Mostly Open Floor Plan Layout
- 1 Conference Room
- Space is in Excellent Condition
- Fully Carpeted
- Emergency Lighting
- Open-Plan
- Space includes a kitchenette.
- Fully Built-Out as Standard Office
- 9 Private Offices
- 12 Workstations
- Central Air and Heating
- High Ceilings
- Natural Light
- Abundance of natural light
- 9 Private offices to utilize.
Link to Matterport: https://my.matterport.com/show/?m=gGrbPp5S4wJ
- Lease rate does not include utilities, property expenses or building services
- Mostly Open Floor Plan Layout
- Space In Need of Renovation
- Fully Carpeted
- Emergency Lighting
- Open-Plan
- abundance of natural light
- Fully Built-Out as Standard Office
- 2 Private Offices
- Central Air and Heating
- High Ceilings
- Natural Light
- Corner suite
- Space includes a kitchenette.
Link to Matterport: https://my.matterport.com/show/?m=rv9fqnKRViL
- Lease rate does not include utilities, property expenses or building services
- 15 Private Offices
- 24 Workstations
- Central Air and Heating
- Smoke Detector
- Space includes a full gym with workout area.
- Fully Built-Out as Standard Office
- 3 Conference Rooms
- Space In Need of Renovation
- Private Restrooms
- Built-in cubicles in the center
- Space includes men's and women's saunas
Link to Matterport: https://my.matterport.com/show/?m=Zi3E9N1sMAv
- Lease rate does not include utilities, property expenses or building services
- Mostly Open Floor Plan Layout
- Central Air and Heating
- Fully Built-Out as Standard Office
- Space In Need of Renovation
- Smoke Detector
Link to Matterport: https://my.matterport.com/show/?m=6wL1GHc9ANg
- Lease rate does not include utilities, property expenses or building services
- 30 Private Offices
- Space is in Excellent Condition
- Smoke Detector
- Fully Built-Out as Standard Office
- 20 Workstations
- Central Air and Heating
- Lease rate does not include utilities, property expenses or building services
- 30 Private Offices
- Central Air and Heating
- Elevator Access
- Private Restrooms
- Security System
- High Ceilings
- Natural Light
- Emergency Lighting
- Corner space
- Phenomenal Lake Superior views.
- Fully Built-Out as Standard Office
- 3 Conference Rooms
- Kitchen
- Print/Copy Room
- Fully Carpeted
- Corner Space
- Drop Ceilings
- After Hours HVAC Available
- Shower Facilities
- Freshly renovated space
Link to Matterport: https://my.matterport.com/show/?m=KUJgzFtPxfc
- Lease rate does not include utilities, property expenses or building services
- 1 Private Office
- Space In Need of Renovation
- Natural Light
- Beautiful view of Lake Superior
- Space can be built to suit tenant needs.
- Partially Built-Out as Standard Office
- 20 Workstations
- Central Air and Heating
- Smoke Detector
- Abundance of Natural Light
Shared office environment with individual locking offices Link to Matterport: https://my.matterport.com/show/?m=eRXzEmMn4JV
- Rate includes utilities, building services and property expenses
- 1 Private Office
- Central Air and Heating
- Smoke Detector
- Shared access to coffee area
- Fully Built-Out as Standard Office
- Space is in Excellent Condition
- Reception Area
- Shared access to kitchenne area
- Spaces can be fully furnished
Shared office environment with individual locking offices Link to Matterport: https://my.matterport.com/show/?m=eRXzEmMn4JV
- Rate includes utilities, building services and property expenses
- 1 Private Office
- Central Air and Heating
- Smoke Detector
- Shared access to coffee area
- Fully Built-Out as Standard Office
- Space is in Excellent Condition
- Reception Area
- Shared access to kitchenne area
- Spaces can be fully furnished
Shared office environment with individual locking offices Link to Matterport: https://my.matterport.com/show/?m=eRXzEmMn4JV
- Rate includes utilities, building services and property expenses
- 1 Private Office
- Central Air and Heating
- Smoke Detector
- Shared access to coffee area
- Fully Built-Out as Standard Office
- Space is in Excellent Condition
- Reception Area
- Shared access to kitchenne area
- Spaces can be fully furnished
Shared office environment with individual locking offices Link to Matterport: https://my.matterport.com/show/?m=eRXzEmMn4JV
- Rate includes utilities, building services and property expenses
- 1 Private Office
- Central Air and Heating
- Smoke Detector
- Shared access to coffee area
- Fully Built-Out as Standard Office
- Space is in Excellent Condition
- Reception Area
- Shared access to kitchenne area
- Spaces can be fully furnished
Shared office environment with individual locking offices Link to Matterport: https://my.matterport.com/show/?m=eRXzEmMn4JV
- Rate includes utilities, building services and property expenses
- 1 Private Office
- Central Air and Heating
- Smoke Detector
- Shared access to coffee area
- Fully Built-Out as Standard Office
- Space is in Excellent Condition
- Reception Area
- Shared access to kitchenne area
- Spaces can be fully furnished
Shared office environment with individual locking offices Link to Matterport: https://my.matterport.com/show/?m=eRXzEmMn4JV
- Rate includes utilities, building services and property expenses
- 1 Private Office
- Central Air and Heating
- Smoke Detector
- Shared access to coffee area
- Fully Built-Out as Standard Office
- Space is in Excellent Condition
- Reception Area
- Shared access to kitchenne area
- Spaces can be fully furnished
Shared office environment with individual locking offices Link to Matterport: https://my.matterport.com/show/?m=eRXzEmMn4JV
- Rate includes utilities, building services and property expenses
- 1 Private Office
- Central Air and Heating
- Smoke Detector
- Shared access to coffee area
- Fully Built-Out as Standard Office
- Space is in Excellent Condition
- Reception Area
- Shared access to kitchenne area
- Spaces can be fully furnished
Shared office environment with individual locking offices Link to Matterport: https://my.matterport.com/show/?m=eRXzEmMn4JV
- Rate includes utilities, building services and property expenses
- 1 Private Office
- Central Air and Heating
- Smoke Detector
- Shared access to coffee area
- Fully Built-Out as Standard Office
- Space is in Excellent Condition
- Reception Area
- Shared access to kitchenne area
- Spaces can be fully furnished
| Space | Size | Term | Rental Rate | Space Use | Build-Out | Available |
| 1st Floor, Ste 125 | 1,936 SF | Negotiable | $13.64 CAD/SF/YR $1.14 CAD/SF/MO $26,412 CAD/YR $2,201 CAD/MO | Office | Partial Build-Out | Now |
| 1st Floor, Ste 140 | 2,387 SF | 3-10 Years | $19.10 CAD/SF/YR $1.59 CAD/SF/MO $45,590 CAD/YR $3,799 CAD/MO | Office/Retail | Full Build-Out | Now |
| 1st Floor, Ste 145 | 3,012 SF | 3-10 Years | $19.10 CAD/SF/YR $1.59 CAD/SF/MO $57,527 CAD/YR $4,794 CAD/MO | Office | - | Now |
| 1st Floor, Ste 162 | 2,521 SF | 3-10 Years | $13.64 CAD/SF/YR $1.14 CAD/SF/MO $34,392 CAD/YR $2,866 CAD/MO | Office | - | Now |
| 1st Floor, Ste 175 | 2,558 SF | 3-10 Years | $19.10 CAD/SF/YR $1.59 CAD/SF/MO $48,856 CAD/YR $4,071 CAD/MO | Office/Retail | Full Build-Out | Now |
| 2nd Floor, Ste 270 | 5,849 SF | 3-10 Years | $19.10 CAD/SF/YR $1.59 CAD/SF/MO $111,712 CAD/YR $9,309 CAD/MO | Office/Retail | Full Build-Out | Now |
| 2nd Floor, Ste 280 | 3,846 SF | 3-10 Years | $19.10 CAD/SF/YR $1.59 CAD/SF/MO $73,456 CAD/YR $6,121 CAD/MO | Office/Retail | Full Build-Out | Now |
| 3rd Floor, Ste 310 | 16,856 SF | 3-10 Years | $19.10 CAD/SF/YR $1.59 CAD/SF/MO $321,939 CAD/YR $26,828 CAD/MO | Office | Full Build-Out | Now |
| 3rd Floor, Ste 340 | 4,773 SF | 3-10 Years | $19.10 CAD/SF/YR $1.59 CAD/SF/MO $91,161 CAD/YR $7,597 CAD/MO | Office | Full Build-Out | Now |
| 3rd Floor, Ste 350 | 14,988 SF | 3-10 Years | $19.10 CAD/SF/YR $1.59 CAD/SF/MO $286,261 CAD/YR $23,855 CAD/MO | Office | Full Build-Out | Now |
| 4th Floor, Ste 400 | 7,512 SF | 3-20 Years | $19.10 CAD/SF/YR $1.59 CAD/SF/MO $143,474 CAD/YR $11,956 CAD/MO | Office | Full Build-Out | Now |
| 4th Floor, Ste 410 | 2,938 SF | 3-10 Years | $19.10 CAD/SF/YR $1.59 CAD/SF/MO $56,114 CAD/YR $4,676 CAD/MO | Office | Partial Build-Out | Now |
| 4th Floor, Ste 425-03 | 140 SF | 3-10 Years | $76.00 CAD/SF/YR $6.33 CAD/SF/MO $10,640 CAD/YR $886.69 CAD/MO | Office | Full Build-Out | Now |
| 4th Floor, Ste 425-04 | 140 SF | 3-10 Years | $76.00 CAD/SF/YR $6.33 CAD/SF/MO $10,640 CAD/YR $886.69 CAD/MO | Office | Full Build-Out | Now |
| 4th Floor, Ste 425-05 | 140 SF | 3-10 Years | $76.00 CAD/SF/YR $6.33 CAD/SF/MO $10,640 CAD/YR $886.69 CAD/MO | Office | Full Build-Out | Now |
| 4th Floor, Ste 425-06 | 140 SF | 3-10 Years | $76.00 CAD/SF/YR $6.33 CAD/SF/MO $10,640 CAD/YR $886.69 CAD/MO | Office | Full Build-Out | Now |
| 4th Floor, Ste 425-09 | 155 SF | 3-10 Years | $68.65 CAD/SF/YR $5.72 CAD/SF/MO $10,641 CAD/YR $886.71 CAD/MO | Office | Full Build-Out | Now |
| 4th Floor, Ste 425-11 | 155 SF | 3-10 Years | $68.65 CAD/SF/YR $5.72 CAD/SF/MO $10,641 CAD/YR $886.71 CAD/MO | Office | Full Build-Out | Now |
| 4th Floor, Ste 425-12 | 170 SF | 3-10 Years | $62.59 CAD/SF/YR $5.22 CAD/SF/MO $10,641 CAD/YR $886.71 CAD/MO | Office | Full Build-Out | Now |
| 4th Floor, Ste 425-14 | 170 SF | 3-10 Years | $62.59 CAD/SF/YR $5.22 CAD/SF/MO $10,641 CAD/YR $886.71 CAD/MO | Office | Full Build-Out | Now |
1st Floor, Ste 125
| Size |
| 1,936 SF |
| Term |
| Negotiable |
| Rental Rate |
| $13.64 CAD/SF/YR $1.14 CAD/SF/MO $26,412 CAD/YR $2,201 CAD/MO |
| Space Use |
| Office |
| Build-Out |
| Partial Build-Out |
| Available |
| Now |
1st Floor, Ste 140
| Size |
| 2,387 SF |
| Term |
| 3-10 Years |
| Rental Rate |
| $19.10 CAD/SF/YR $1.59 CAD/SF/MO $45,590 CAD/YR $3,799 CAD/MO |
| Space Use |
| Office/Retail |
| Build-Out |
| Full Build-Out |
| Available |
| Now |
1st Floor, Ste 145
| Size |
| 3,012 SF |
| Term |
| 3-10 Years |
| Rental Rate |
| $19.10 CAD/SF/YR $1.59 CAD/SF/MO $57,527 CAD/YR $4,794 CAD/MO |
| Space Use |
| Office |
| Build-Out |
| - |
| Available |
| Now |
1st Floor, Ste 162
| Size |
| 2,521 SF |
| Term |
| 3-10 Years |
| Rental Rate |
| $13.64 CAD/SF/YR $1.14 CAD/SF/MO $34,392 CAD/YR $2,866 CAD/MO |
| Space Use |
| Office |
| Build-Out |
| - |
| Available |
| Now |
1st Floor, Ste 175
| Size |
| 2,558 SF |
| Term |
| 3-10 Years |
| Rental Rate |
| $19.10 CAD/SF/YR $1.59 CAD/SF/MO $48,856 CAD/YR $4,071 CAD/MO |
| Space Use |
| Office/Retail |
| Build-Out |
| Full Build-Out |
| Available |
| Now |
2nd Floor, Ste 270
| Size |
| 5,849 SF |
| Term |
| 3-10 Years |
| Rental Rate |
| $19.10 CAD/SF/YR $1.59 CAD/SF/MO $111,712 CAD/YR $9,309 CAD/MO |
| Space Use |
| Office/Retail |
| Build-Out |
| Full Build-Out |
| Available |
| Now |
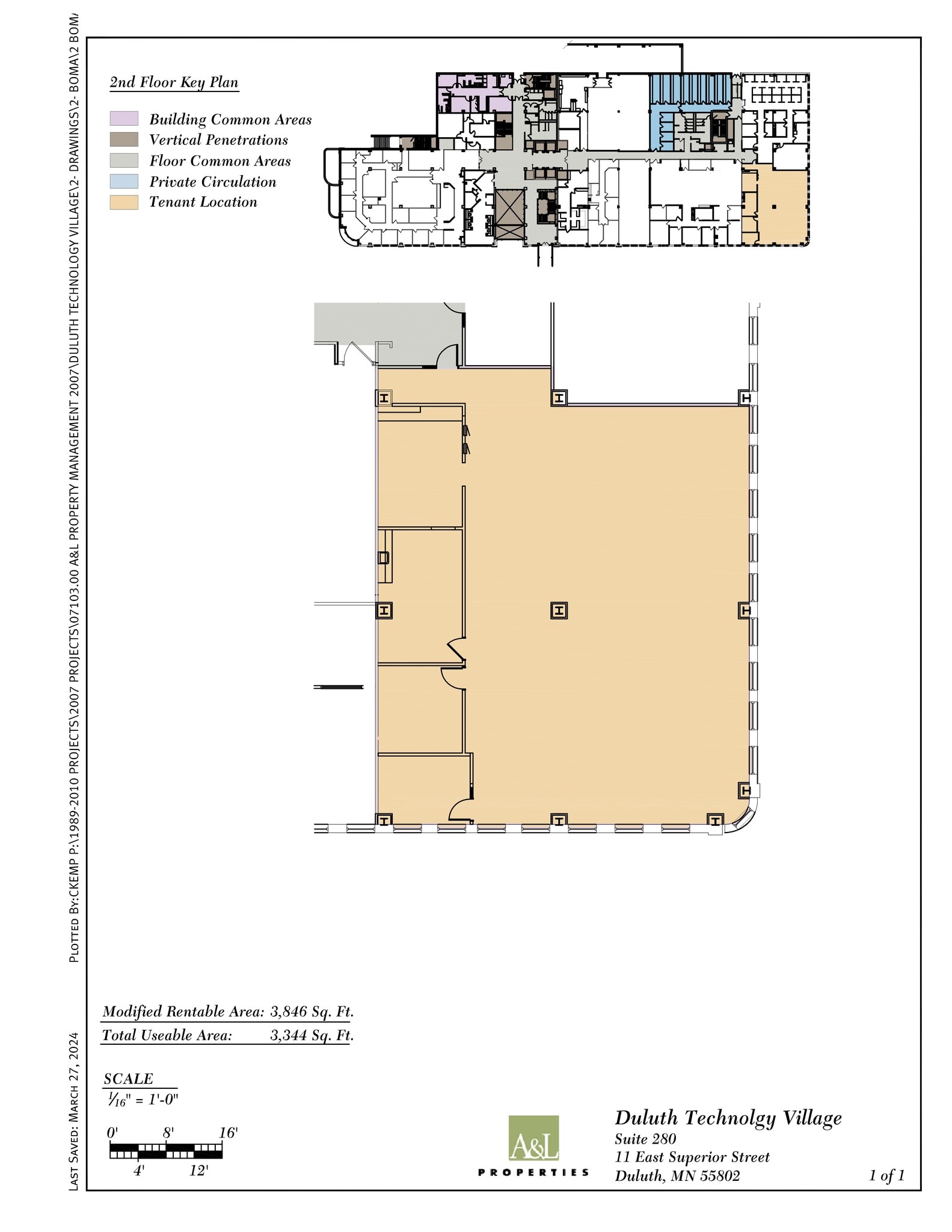
2nd Floor, Ste 280
| Size |
| 3,846 SF |
| Term |
| 3-10 Years |
| Rental Rate |
| $19.10 CAD/SF/YR $1.59 CAD/SF/MO $73,456 CAD/YR $6,121 CAD/MO |
| Space Use |
| Office/Retail |
| Build-Out |
| Full Build-Out |
| Available |
| Now |
3rd Floor, Ste 310
| Size |
| 16,856 SF |
| Term |
| 3-10 Years |
| Rental Rate |
| $19.10 CAD/SF/YR $1.59 CAD/SF/MO $321,939 CAD/YR $26,828 CAD/MO |
| Space Use |
| Office |
| Build-Out |
| Full Build-Out |
| Available |
| Now |
3rd Floor, Ste 340
| Size |
| 4,773 SF |
| Term |
| 3-10 Years |
| Rental Rate |
| $19.10 CAD/SF/YR $1.59 CAD/SF/MO $91,161 CAD/YR $7,597 CAD/MO |
| Space Use |
| Office |
| Build-Out |
| Full Build-Out |
| Available |
| Now |
3rd Floor, Ste 350
| Size |
| 14,988 SF |
| Term |
| 3-10 Years |
| Rental Rate |
| $19.10 CAD/SF/YR $1.59 CAD/SF/MO $286,261 CAD/YR $23,855 CAD/MO |
| Space Use |
| Office |
| Build-Out |
| Full Build-Out |
| Available |
| Now |
4th Floor, Ste 400
| Size |
| 7,512 SF |
| Term |
| 3-20 Years |
| Rental Rate |
| $19.10 CAD/SF/YR $1.59 CAD/SF/MO $143,474 CAD/YR $11,956 CAD/MO |
| Space Use |
| Office |
| Build-Out |
| Full Build-Out |
| Available |
| Now |
4th Floor, Ste 410
| Size |
| 2,938 SF |
| Term |
| 3-10 Years |
| Rental Rate |
| $19.10 CAD/SF/YR $1.59 CAD/SF/MO $56,114 CAD/YR $4,676 CAD/MO |
| Space Use |
| Office |
| Build-Out |
| Partial Build-Out |
| Available |
| Now |
4th Floor, Ste 425-03
| Size |
| 140 SF |
| Term |
| 3-10 Years |
| Rental Rate |
| $76.00 CAD/SF/YR $6.33 CAD/SF/MO $10,640 CAD/YR $886.69 CAD/MO |
| Space Use |
| Office |
| Build-Out |
| Full Build-Out |
| Available |
| Now |
4th Floor, Ste 425-04
| Size |
| 140 SF |
| Term |
| 3-10 Years |
| Rental Rate |
| $76.00 CAD/SF/YR $6.33 CAD/SF/MO $10,640 CAD/YR $886.69 CAD/MO |
| Space Use |
| Office |
| Build-Out |
| Full Build-Out |
| Available |
| Now |
4th Floor, Ste 425-05
| Size |
| 140 SF |
| Term |
| 3-10 Years |
| Rental Rate |
| $76.00 CAD/SF/YR $6.33 CAD/SF/MO $10,640 CAD/YR $886.69 CAD/MO |
| Space Use |
| Office |
| Build-Out |
| Full Build-Out |
| Available |
| Now |
4th Floor, Ste 425-06
| Size |
| 140 SF |
| Term |
| 3-10 Years |
| Rental Rate |
| $76.00 CAD/SF/YR $6.33 CAD/SF/MO $10,640 CAD/YR $886.69 CAD/MO |
| Space Use |
| Office |
| Build-Out |
| Full Build-Out |
| Available |
| Now |
4th Floor, Ste 425-09
| Size |
| 155 SF |
| Term |
| 3-10 Years |
| Rental Rate |
| $68.65 CAD/SF/YR $5.72 CAD/SF/MO $10,641 CAD/YR $886.71 CAD/MO |
| Space Use |
| Office |
| Build-Out |
| Full Build-Out |
| Available |
| Now |
4th Floor, Ste 425-11
| Size |
| 155 SF |
| Term |
| 3-10 Years |
| Rental Rate |
| $68.65 CAD/SF/YR $5.72 CAD/SF/MO $10,641 CAD/YR $886.71 CAD/MO |
| Space Use |
| Office |
| Build-Out |
| Full Build-Out |
| Available |
| Now |
4th Floor, Ste 425-12
| Size |
| 170 SF |
| Term |
| 3-10 Years |
| Rental Rate |
| $62.59 CAD/SF/YR $5.22 CAD/SF/MO $10,641 CAD/YR $886.71 CAD/MO |
| Space Use |
| Office |
| Build-Out |
| Full Build-Out |
| Available |
| Now |
4th Floor, Ste 425-14
| Size |
| 170 SF |
| Term |
| 3-10 Years |
| Rental Rate |
| $62.59 CAD/SF/YR $5.22 CAD/SF/MO $10,641 CAD/YR $886.71 CAD/MO |
| Space Use |
| Office |
| Build-Out |
| Full Build-Out |
| Available |
| Now |
1st Floor, Ste 125
| Size | 1,936 SF |
| Term | Negotiable |
| Rental Rate | $13.64 CAD/SF/YR |
| Space Use | Office |
| Build-Out | Partial Build-Out |
| Available | Now |
Link to Matterport Tour: https://my.matterport.com/show/?m=J9KQ1ghz5yg
- Lease rate does not include utilities, property expenses or building services
- Partially Built-Out as Standard Office
- Mostly Open Floor Plan Layout
1st Floor, Ste 140
| Size | 2,387 SF |
| Term | 3-10 Years |
| Rental Rate | $19.10 CAD/SF/YR |
| Space Use | Office/Retail |
| Build-Out | Full Build-Out |
| Available | Now |
Link to Matterport: https://my.matterport.com/show/?m=69dtW3nw57P
- Lease rate does not include utilities, property expenses or building services
- Fully Built-Out as Standard Retail Space
- Mostly Open Floor Plan Layout
- 2 Private Offices
- Space is in Excellent Condition
- Central Air and Heating
- Fully Carpeted
- High Ceilings
- Emergency Lighting
- Natural Light
- Automatic Blinds
- Open-Plan
- Former Pilates Studio
- Store front accessibility
- Large windows for marketing opportunities.
- Space includes awnings.
1st Floor, Ste 145
| Size | 3,012 SF |
| Term | 3-10 Years |
| Rental Rate | $19.10 CAD/SF/YR |
| Space Use | Office |
| Build-Out | - |
| Available | Now |
- Lease rate does not include utilities, property expenses or building services
1st Floor, Ste 162
| Size | 2,521 SF |
| Term | 3-10 Years |
| Rental Rate | $13.64 CAD/SF/YR |
| Space Use | Office |
| Build-Out | - |
| Available | Now |
- Lease rate does not include utilities, property expenses or building services
1st Floor, Ste 175
| Size | 2,558 SF |
| Term | 3-10 Years |
| Rental Rate | $19.10 CAD/SF/YR |
| Space Use | Office/Retail |
| Build-Out | Full Build-Out |
| Available | Now |
Link to Matterport: https://my.matterport.com/show/?m=xdR7foWR5MP
- Lease rate does not include utilities, property expenses or building services
- Fully Built-Out as Standard Retail Space
- Mostly Open Floor Plan Layout
- 4 Private Offices
- Space is in Excellent Condition
- Central Air and Heating
- Fully Carpeted
- High Ceilings
- Emergency Lighting
- Natural Light
- Open-Plan
- Space includes awnings
- Large windows for marketing opportunities.
- Abundance of natural light.
2nd Floor, Ste 270
| Size | 5,849 SF |
| Term | 3-10 Years |
| Rental Rate | $19.10 CAD/SF/YR |
| Space Use | Office/Retail |
| Build-Out | Full Build-Out |
| Available | Now |
Link to Matterport: https://my.matterport.com/show/?m=ftGXihiZAXj
- Lease rate does not include utilities, property expenses or building services
- Fully Built-Out as Standard Office
- Mostly Open Floor Plan Layout
- 9 Private Offices
- 1 Conference Room
- 12 Workstations
- Space is in Excellent Condition
- Central Air and Heating
- Fully Carpeted
- High Ceilings
- Emergency Lighting
- Natural Light
- Open-Plan
- Abundance of natural light
- Space includes a kitchenette.
- 9 Private offices to utilize.
2nd Floor, Ste 280
| Size | 3,846 SF |
| Term | 3-10 Years |
| Rental Rate | $19.10 CAD/SF/YR |
| Space Use | Office/Retail |
| Build-Out | Full Build-Out |
| Available | Now |
Link to Matterport: https://my.matterport.com/show/?m=gGrbPp5S4wJ
- Lease rate does not include utilities, property expenses or building services
- Fully Built-Out as Standard Office
- Mostly Open Floor Plan Layout
- 2 Private Offices
- Space In Need of Renovation
- Central Air and Heating
- Fully Carpeted
- High Ceilings
- Emergency Lighting
- Natural Light
- Open-Plan
- Corner suite
- abundance of natural light
- Space includes a kitchenette.
3rd Floor, Ste 310
| Size | 16,856 SF |
| Term | 3-10 Years |
| Rental Rate | $19.10 CAD/SF/YR |
| Space Use | Office |
| Build-Out | Full Build-Out |
| Available | Now |
Link to Matterport: https://my.matterport.com/show/?m=rv9fqnKRViL
- Lease rate does not include utilities, property expenses or building services
- Fully Built-Out as Standard Office
- 15 Private Offices
- 3 Conference Rooms
- 24 Workstations
- Space In Need of Renovation
- Central Air and Heating
- Private Restrooms
- Smoke Detector
- Built-in cubicles in the center
- Space includes a full gym with workout area.
- Space includes men's and women's saunas
3rd Floor, Ste 340
| Size | 4,773 SF |
| Term | 3-10 Years |
| Rental Rate | $19.10 CAD/SF/YR |
| Space Use | Office |
| Build-Out | Full Build-Out |
| Available | Now |
Link to Matterport: https://my.matterport.com/show/?m=Zi3E9N1sMAv
- Lease rate does not include utilities, property expenses or building services
- Fully Built-Out as Standard Office
- Mostly Open Floor Plan Layout
- Space In Need of Renovation
- Central Air and Heating
- Smoke Detector
3rd Floor, Ste 350
| Size | 14,988 SF |
| Term | 3-10 Years |
| Rental Rate | $19.10 CAD/SF/YR |
| Space Use | Office |
| Build-Out | Full Build-Out |
| Available | Now |
Link to Matterport: https://my.matterport.com/show/?m=6wL1GHc9ANg
- Lease rate does not include utilities, property expenses or building services
- Fully Built-Out as Standard Office
- 30 Private Offices
- 20 Workstations
- Space is in Excellent Condition
- Central Air and Heating
- Smoke Detector
4th Floor, Ste 400
| Size | 7,512 SF |
| Term | 3-20 Years |
| Rental Rate | $19.10 CAD/SF/YR |
| Space Use | Office |
| Build-Out | Full Build-Out |
| Available | Now |
- Lease rate does not include utilities, property expenses or building services
- Fully Built-Out as Standard Office
- 30 Private Offices
- 3 Conference Rooms
- Central Air and Heating
- Kitchen
- Elevator Access
- Print/Copy Room
- Private Restrooms
- Fully Carpeted
- Security System
- Corner Space
- High Ceilings
- Drop Ceilings
- Natural Light
- After Hours HVAC Available
- Emergency Lighting
- Shower Facilities
- Corner space
- Freshly renovated space
- Phenomenal Lake Superior views.
4th Floor, Ste 410
| Size | 2,938 SF |
| Term | 3-10 Years |
| Rental Rate | $19.10 CAD/SF/YR |
| Space Use | Office |
| Build-Out | Partial Build-Out |
| Available | Now |
Link to Matterport: https://my.matterport.com/show/?m=KUJgzFtPxfc
- Lease rate does not include utilities, property expenses or building services
- Partially Built-Out as Standard Office
- 1 Private Office
- 20 Workstations
- Space In Need of Renovation
- Central Air and Heating
- Natural Light
- Smoke Detector
- Beautiful view of Lake Superior
- Abundance of Natural Light
- Space can be built to suit tenant needs.
4th Floor, Ste 425-03
| Size | 140 SF |
| Term | 3-10 Years |
| Rental Rate | $76.00 CAD/SF/YR |
| Space Use | Office |
| Build-Out | Full Build-Out |
| Available | Now |
Shared office environment with individual locking offices Link to Matterport: https://my.matterport.com/show/?m=eRXzEmMn4JV
- Rate includes utilities, building services and property expenses
- Fully Built-Out as Standard Office
- 1 Private Office
- Space is in Excellent Condition
- Central Air and Heating
- Reception Area
- Smoke Detector
- Shared access to kitchenne area
- Shared access to coffee area
- Spaces can be fully furnished
4th Floor, Ste 425-04
| Size | 140 SF |
| Term | 3-10 Years |
| Rental Rate | $76.00 CAD/SF/YR |
| Space Use | Office |
| Build-Out | Full Build-Out |
| Available | Now |
Shared office environment with individual locking offices Link to Matterport: https://my.matterport.com/show/?m=eRXzEmMn4JV
- Rate includes utilities, building services and property expenses
- Fully Built-Out as Standard Office
- 1 Private Office
- Space is in Excellent Condition
- Central Air and Heating
- Reception Area
- Smoke Detector
- Shared access to kitchenne area
- Shared access to coffee area
- Spaces can be fully furnished
4th Floor, Ste 425-05
| Size | 140 SF |
| Term | 3-10 Years |
| Rental Rate | $76.00 CAD/SF/YR |
| Space Use | Office |
| Build-Out | Full Build-Out |
| Available | Now |
Shared office environment with individual locking offices Link to Matterport: https://my.matterport.com/show/?m=eRXzEmMn4JV
- Rate includes utilities, building services and property expenses
- Fully Built-Out as Standard Office
- 1 Private Office
- Space is in Excellent Condition
- Central Air and Heating
- Reception Area
- Smoke Detector
- Shared access to kitchenne area
- Shared access to coffee area
- Spaces can be fully furnished
4th Floor, Ste 425-06
| Size | 140 SF |
| Term | 3-10 Years |
| Rental Rate | $76.00 CAD/SF/YR |
| Space Use | Office |
| Build-Out | Full Build-Out |
| Available | Now |
Shared office environment with individual locking offices Link to Matterport: https://my.matterport.com/show/?m=eRXzEmMn4JV
- Rate includes utilities, building services and property expenses
- Fully Built-Out as Standard Office
- 1 Private Office
- Space is in Excellent Condition
- Central Air and Heating
- Reception Area
- Smoke Detector
- Shared access to kitchenne area
- Shared access to coffee area
- Spaces can be fully furnished
4th Floor, Ste 425-09
| Size | 155 SF |
| Term | 3-10 Years |
| Rental Rate | $68.65 CAD/SF/YR |
| Space Use | Office |
| Build-Out | Full Build-Out |
| Available | Now |
Shared office environment with individual locking offices Link to Matterport: https://my.matterport.com/show/?m=eRXzEmMn4JV
- Rate includes utilities, building services and property expenses
- Fully Built-Out as Standard Office
- 1 Private Office
- Space is in Excellent Condition
- Central Air and Heating
- Reception Area
- Smoke Detector
- Shared access to kitchenne area
- Shared access to coffee area
- Spaces can be fully furnished
4th Floor, Ste 425-11
| Size | 155 SF |
| Term | 3-10 Years |
| Rental Rate | $68.65 CAD/SF/YR |
| Space Use | Office |
| Build-Out | Full Build-Out |
| Available | Now |
Shared office environment with individual locking offices Link to Matterport: https://my.matterport.com/show/?m=eRXzEmMn4JV
- Rate includes utilities, building services and property expenses
- Fully Built-Out as Standard Office
- 1 Private Office
- Space is in Excellent Condition
- Central Air and Heating
- Reception Area
- Smoke Detector
- Shared access to kitchenne area
- Shared access to coffee area
- Spaces can be fully furnished
4th Floor, Ste 425-12
| Size | 170 SF |
| Term | 3-10 Years |
| Rental Rate | $62.59 CAD/SF/YR |
| Space Use | Office |
| Build-Out | Full Build-Out |
| Available | Now |
Shared office environment with individual locking offices Link to Matterport: https://my.matterport.com/show/?m=eRXzEmMn4JV
- Rate includes utilities, building services and property expenses
- Fully Built-Out as Standard Office
- 1 Private Office
- Space is in Excellent Condition
- Central Air and Heating
- Reception Area
- Smoke Detector
- Shared access to kitchenne area
- Shared access to coffee area
- Spaces can be fully furnished
4th Floor, Ste 425-14
| Size | 170 SF |
| Term | 3-10 Years |
| Rental Rate | $62.59 CAD/SF/YR |
| Space Use | Office |
| Build-Out | Full Build-Out |
| Available | Now |
Shared office environment with individual locking offices Link to Matterport: https://my.matterport.com/show/?m=eRXzEmMn4JV
- Rate includes utilities, building services and property expenses
- Fully Built-Out as Standard Office
- 1 Private Office
- Space is in Excellent Condition
- Central Air and Heating
- Reception Area
- Smoke Detector
- Shared access to kitchenne area
- Shared access to coffee area
- Spaces can be fully furnished
Property Overview
This innovative building sits in the heart of downtown Duluth-a prime location for companies in the technology field, services industry and retail/restaurant business. Constructed specifically to meet the needs of today’s entrepreneurs and executives, this building offers “Class A” office space, fully equipped conference rooms, 24-hour security, and it is as wired and wireless as a facility can be.
- Bus Line
- Restaurant
- Security System
Property Facts
Select Tenants
- Floor
- Tenant Name
- Industry
- 5th
- Ascential Wealth Advisors
- Finance and Insurance
- 1st
- Consolidated Title
- Finance and Insurance
- 3rd
- Midwest Communications
- -
- 4th
- Northwestern Mutual Life Insurance Company
- Finance and Insurance
- 1st
- Pizza Luce
- -
- 2nd
- University Minnesota Duluth
- Educational Services
- 5th
- Westmoreland Flint
- -
Presented by
Duluth Technology Village | 11 E Superior St
Hmm, there seems to have been an error sending your message. Please try again.
Thanks! Your message was sent.















