Your email has been sent.
11 Parkside Court - McCloud Lot #11 3.95 Acres of Residential Land Offered at $240,893 CAD in Mccloud, CA 96057



Investment Highlights
- Centrally located in McCloud, walking distance to parks, schools, local businesses.
- Existing street provides uncomplicated access to lot and frontage exposure if desired.
- Relatively level and accessible lot makes development easy.
Property Facts
| Price | $240,893 CAD | Proposed Use | Single Family Residence |
| Sale Type | Investment or Owner User | Total Lot Size | 3.95 AC |
| No. Lots | 1 | Cross Streets | Broadway Avenue |
| Property Type | Land | Parcel Number | 049-211-030 |
| Property Subtype | Residential | ||
| Zoning | RR 2-2.5 - Rural Residential | ||
| Price | $240,893 CAD |
| Sale Type | Investment or Owner User |
| No. Lots | 1 |
| Property Type | Land |
| Property Subtype | Residential |
| Proposed Use | Single Family Residence |
| Total Lot Size | 3.95 AC |
| Cross Streets | Broadway Avenue |
| Zoning | RR 2-2.5 - Rural Residential |
| Parcel Number | 049-211-030 |
1 Lot Available
Lot
| Price | $240,893 CAD | Lot Size | 3.95 AC |
| Price Per AC | $60,985.51 CAD |
| Price | $240,893 CAD |
| Price Per AC | $60,985.51 CAD |
| Lot Size | 3.95 AC |
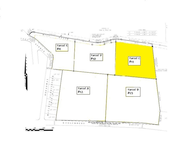
Mostly level lot with direct access to Mill Road off Broadway Avenue. Some trees and indigenous plant life. Approved perc test. Walkability to downtown, schools, parks, residential neighborhoods, and local commercial businesses.
Description
Prime real estate opportunities in the heart of McCloud, CA. Centrally located large lots are walking distance to town and have flexible zoning options (commercial, multiple-use, residential, and high-density residential). This versatile zoning makes them ideal for various development projects. Situated in the picturesque Shasta Cascade area of Northern California, McCloud attracts many visitors year-round. It's a gateway for nationally recognized trout fishing in the nearby McCloud, Sacramento, and Klamath Rivers. Outdoor enthusiasts also flock here to explore and climb Mount Shasta, Castle Crags, and the Trinity Alps. McCloud is a hub for skiing (both alpine and cross-country), biking, and hiking to local waterfalls, Lake Siskiyou, Castle Lake, and Shasta Lake. This unique location provides a blend of natural beauty and historical charm, making it an attractive spot for residential or commercial development. Dream home, vacation rental, or a business, this lot offers possibilities to be a part of a great historic community.
Presented by
Eleven Real Estate
11 Parkside Court - McCloud Lot #11
Hmm, there seems to have been an error sending your message. Please try again.
Thanks! Your message was sent.

