Your email has been sent.
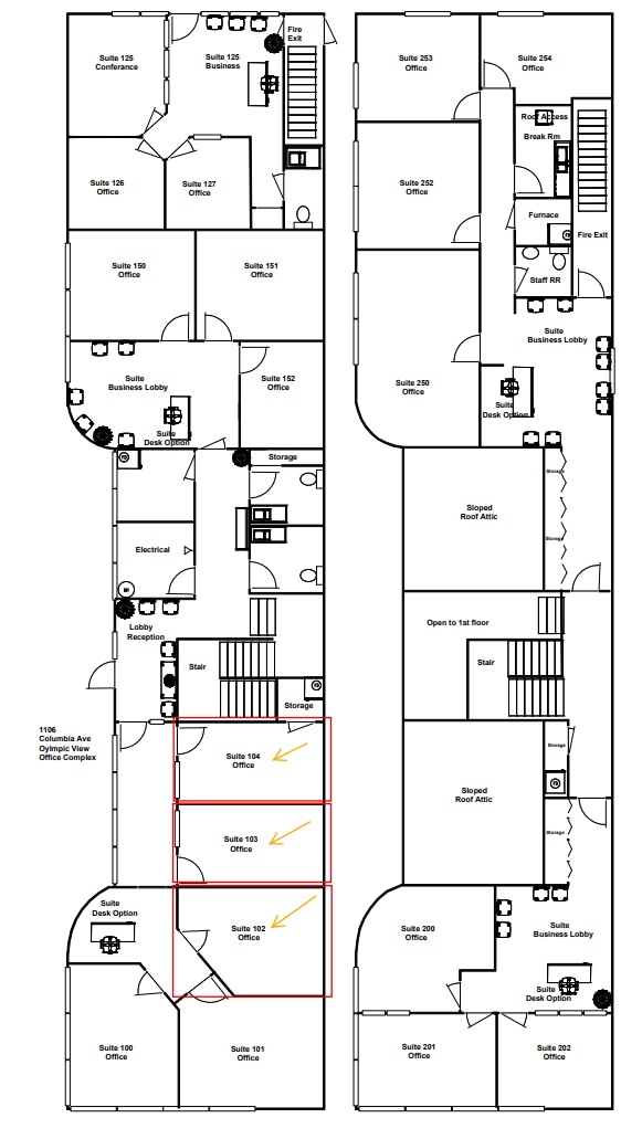
Olympic Office Complex 1106 Columbia Ave 293 - 1,314 SF of Office Space Available in Marysville, WA 98270



Highlights
- Prime location in Marysville’s thriving commercial corridor with excellent accessibility.
- Complimentary on-site parking for tenants and guests, enhancing convenience.
- Flexible medical and general office configurations with tenant improvement options.
- Shared common area waiting space designed for a professional client experience.
All Available Spaces(4)
Display Rental Rate as
- Space
- Size
- Term
- Rental Rate
- Space Use
- Condition
- Available
Excellent Office Space for Lease! Great Value and Opportunity Are you a professional seeking a top-notch office space? Look no further! Our flexible, private office suites offer a game-changing opportunity for growing businesses, allowing you to pay only for the space you need. Features: Private office suites, Shared reception lobby. These features make the environment both functional and welcoming. Don't miss out on this fantastic opportunity! Visit Marysville Office Space for more details. https://marysvilleofficespace.com
- Rate includes utilities, building services and property expenses
- 1 Private Office
- Space is in Excellent Condition
- Closed Circuit Television Monitoring (CCTV)
- Recessed Lighting
- Emergency Lighting
- Common Parts WC Facilities
- Smoke Detector
- Fully Built-Out as Professional Services Office
- Finished Ceilings: 8’
- Central Air and Heating
- Drop Ceilings
- After Hours HVAC Available
- Accent Lighting
- Hardwood Floors
Excellent Office Space for Lease! Great Value and Opportunity Are you a professional seeking a top-notch office space? Look no further! Our flexible, private office suites offer a game-changing opportunity for growing businesses, allowing you to pay only for the space you need. Features: Private office suites, Shared reception lobby. These features make the environment both functional and welcoming. Don't miss out on this fantastic opportunity! Visit Marysville Office Space for more details. https://marysvilleofficespace.com
- Rate includes utilities, building services and property expenses
- 1 Private Office
- Space is in Excellent Condition
- Closed Circuit Television Monitoring (CCTV)
- Recessed Lighting
- Emergency Lighting
- Common Parts WC Facilities
- Smoke Detector
- Fully Built-Out as Professional Services Office
- Finished Ceilings: 8’
- Central Air and Heating
- Drop Ceilings
- After Hours HVAC Available
- Accent Lighting
- Hardwood Floors
Excellent Office Space for Lease! Great Value and Opportunity Are you a professional seeking a top-notch office space? Look no further! Our flexible, private office suites offer a game-changing opportunity for growing businesses, allowing you to pay only for the space you need. Features: Private office suites, Shared reception lobby. These features make the environment both functional and welcoming. Don't miss out on this fantastic opportunity! Visit Marysville Office Space for more details. https://marysvilleofficespace.com
- Rate includes utilities, building services and property expenses
- 1 Private Office
- Space is in Excellent Condition
- Closed Circuit Television Monitoring (CCTV)
- Recessed Lighting
- Emergency Lighting
- Common Parts WC Facilities
- Smoke Detector
- Fully Built-Out as Professional Services Office
- Finished Ceilings: 8’
- Central Air and Heating
- Drop Ceilings
- After Hours HVAC Available
- Accent Lighting
- Hardwood Floors
Excellent Office Space for Lease! Great Value and Opportunity Are you a professional seeking a top-notch office space? Look no further! Our flexible, private office suites offer a game-changing opportunity for growing businesses, allowing you to pay only for the space you need. Features: Private office suites, Shared reception lobby. These features make the environment both functional and welcoming. Don't miss out on this fantastic opportunity! Visit Marysville Office Space for more details. https://marysvilleofficespace.com
- Rate includes utilities, building services and property expenses
- 1 Private Office
- Space is in Excellent Condition
- Closed Circuit Television Monitoring (CCTV)
- Recessed Lighting
- Emergency Lighting
- Common Parts WC Facilities
- Smoke Detector
- Fully Built-Out as Professional Services Office
- Finished Ceilings: 8’
- Central Air and Heating
- Drop Ceilings
- After Hours HVAC Available
- Accent Lighting
- Hardwood Floors
| Space | Size | Term | Rental Rate | Space Use | Condition | Available |
| 1st Floor, Ste 102 | 336 SF | 1 Year | $37.97 CAD/SF/YR $3.16 CAD/SF/MO $12,757 CAD/YR $1,063 CAD/MO | Office | Full Build-Out | 2026-03-25 |
| 1st Floor, Ste 104 | 293 SF | 1 Year | $37.41 CAD/SF/YR $3.12 CAD/SF/MO $10,960 CAD/YR $913.31 CAD/MO | Office | Full Build-Out | 2026-03-25 |
| 2nd Floor, Ste 253 | 370 SF | 1 Year | $30.23 CAD/SF/YR $2.52 CAD/SF/MO $11,187 CAD/YR $932.22 CAD/MO | Office | Full Build-Out | 2026-03-25 |
| 2nd Floor, Ste 254 | 315 SF | 1 Year | $31.24 CAD/SF/YR $2.60 CAD/SF/MO $9,839 CAD/YR $819.92 CAD/MO | Office | Full Build-Out | 2026-04-01 |
1st Floor, Ste 102
| Size |
| 336 SF |
| Term |
| 1 Year |
| Rental Rate |
| $37.97 CAD/SF/YR $3.16 CAD/SF/MO $12,757 CAD/YR $1,063 CAD/MO |
| Space Use |
| Office |
| Condition |
| Full Build-Out |
| Available |
| 2026-03-25 |
1st Floor, Ste 104
| Size |
| 293 SF |
| Term |
| 1 Year |
| Rental Rate |
| $37.41 CAD/SF/YR $3.12 CAD/SF/MO $10,960 CAD/YR $913.31 CAD/MO |
| Space Use |
| Office |
| Condition |
| Full Build-Out |
| Available |
| 2026-03-25 |
2nd Floor, Ste 253
| Size |
| 370 SF |
| Term |
| 1 Year |
| Rental Rate |
| $30.23 CAD/SF/YR $2.52 CAD/SF/MO $11,187 CAD/YR $932.22 CAD/MO |
| Space Use |
| Office |
| Condition |
| Full Build-Out |
| Available |
| 2026-03-25 |
2nd Floor, Ste 254
| Size |
| 315 SF |
| Term |
| 1 Year |
| Rental Rate |
| $31.24 CAD/SF/YR $2.60 CAD/SF/MO $9,839 CAD/YR $819.92 CAD/MO |
| Space Use |
| Office |
| Condition |
| Full Build-Out |
| Available |
| 2026-04-01 |
1st Floor, Ste 102
| Size | 336 SF |
| Term | 1 Year |
| Rental Rate | $37.97 CAD/SF/YR |
| Space Use | Office |
| Condition | Full Build-Out |
| Available | 2026-03-25 |
Excellent Office Space for Lease! Great Value and Opportunity Are you a professional seeking a top-notch office space? Look no further! Our flexible, private office suites offer a game-changing opportunity for growing businesses, allowing you to pay only for the space you need. Features: Private office suites, Shared reception lobby. These features make the environment both functional and welcoming. Don't miss out on this fantastic opportunity! Visit Marysville Office Space for more details. https://marysvilleofficespace.com
- Rate includes utilities, building services and property expenses
- Fully Built-Out as Professional Services Office
- 1 Private Office
- Finished Ceilings: 8’
- Space is in Excellent Condition
- Central Air and Heating
- Closed Circuit Television Monitoring (CCTV)
- Drop Ceilings
- Recessed Lighting
- After Hours HVAC Available
- Emergency Lighting
- Accent Lighting
- Common Parts WC Facilities
- Hardwood Floors
- Smoke Detector
1st Floor, Ste 104
| Size | 293 SF |
| Term | 1 Year |
| Rental Rate | $37.41 CAD/SF/YR |
| Space Use | Office |
| Condition | Full Build-Out |
| Available | 2026-03-25 |
Excellent Office Space for Lease! Great Value and Opportunity Are you a professional seeking a top-notch office space? Look no further! Our flexible, private office suites offer a game-changing opportunity for growing businesses, allowing you to pay only for the space you need. Features: Private office suites, Shared reception lobby. These features make the environment both functional and welcoming. Don't miss out on this fantastic opportunity! Visit Marysville Office Space for more details. https://marysvilleofficespace.com
- Rate includes utilities, building services and property expenses
- Fully Built-Out as Professional Services Office
- 1 Private Office
- Finished Ceilings: 8’
- Space is in Excellent Condition
- Central Air and Heating
- Closed Circuit Television Monitoring (CCTV)
- Drop Ceilings
- Recessed Lighting
- After Hours HVAC Available
- Emergency Lighting
- Accent Lighting
- Common Parts WC Facilities
- Hardwood Floors
- Smoke Detector
2nd Floor, Ste 253
| Size | 370 SF |
| Term | 1 Year |
| Rental Rate | $30.23 CAD/SF/YR |
| Space Use | Office |
| Condition | Full Build-Out |
| Available | 2026-03-25 |
Excellent Office Space for Lease! Great Value and Opportunity Are you a professional seeking a top-notch office space? Look no further! Our flexible, private office suites offer a game-changing opportunity for growing businesses, allowing you to pay only for the space you need. Features: Private office suites, Shared reception lobby. These features make the environment both functional and welcoming. Don't miss out on this fantastic opportunity! Visit Marysville Office Space for more details. https://marysvilleofficespace.com
- Rate includes utilities, building services and property expenses
- Fully Built-Out as Professional Services Office
- 1 Private Office
- Finished Ceilings: 8’
- Space is in Excellent Condition
- Central Air and Heating
- Closed Circuit Television Monitoring (CCTV)
- Drop Ceilings
- Recessed Lighting
- After Hours HVAC Available
- Emergency Lighting
- Accent Lighting
- Common Parts WC Facilities
- Hardwood Floors
- Smoke Detector
2nd Floor, Ste 254
| Size | 315 SF |
| Term | 1 Year |
| Rental Rate | $31.24 CAD/SF/YR |
| Space Use | Office |
| Condition | Full Build-Out |
| Available | 2026-04-01 |
Excellent Office Space for Lease! Great Value and Opportunity Are you a professional seeking a top-notch office space? Look no further! Our flexible, private office suites offer a game-changing opportunity for growing businesses, allowing you to pay only for the space you need. Features: Private office suites, Shared reception lobby. These features make the environment both functional and welcoming. Don't miss out on this fantastic opportunity! Visit Marysville Office Space for more details. https://marysvilleofficespace.com
- Rate includes utilities, building services and property expenses
- Fully Built-Out as Professional Services Office
- 1 Private Office
- Finished Ceilings: 8’
- Space is in Excellent Condition
- Central Air and Heating
- Closed Circuit Television Monitoring (CCTV)
- Drop Ceilings
- Recessed Lighting
- After Hours HVAC Available
- Emergency Lighting
- Accent Lighting
- Common Parts WC Facilities
- Hardwood Floors
- Smoke Detector
Property Overview
Olympic View Office Complex at 1106 Columbia Avenue in Marysville, WA offers a professional setting ideal for medical and general office users. This well-maintained complex provides convenient free parking and a welcoming common area waiting space, creating a comfortable experience for tenants and visitors alike. Positioned in a growing community with easy access to major thoroughfares, the property delivers exceptional value and flexibility, including select tenant improvements to suit business needs. Available suites range from compact offices perfect for private practices to collaborative spaces for small teams, all within a vibrant business environment.
Property Facts
Presented by
Olympic Office Complex | 1106 Columbia Ave
Hmm, there seems to have been an error sending your message. Please try again.
Thanks! Your message was sent.





