Your email has been sent.
Highlights
- Full service lease.
- Shared conference rooms.
- Direct elevator access.
- Secured access.
- Floor plans available upon request.
- B-4 Zoning (City of Richmond)
All Available Spaces(10)
Display Rental Rate as
- Space
- Size
- Term
- Rental Rate
- Space Use
- Build-Out
- Available
- Rate includes utilities, building services and property expenses
- 4 Private Offices
- Fully Built-Out as Standard Office
- Space is in Excellent Condition
Reception area with 9 private offices, conference room and a storage room.
- Rate includes utilities, building services and property expenses
- 1 Conference Room
- Secure Storage
- 9 Private Offices
- Central Air and Heating
Large reception area with 4 private offices. Very private office suite just off the elevator lobby on 3rd floor.
- Rate includes utilities, building services and property expenses
- 4 Private Offices
- Central Air and Heating
- Private Suite.
- Partially Built-Out as Standard Office
- Space is in Excellent Condition
- Reception Area
- Rate includes utilities, building services and property expenses
- Office intensive layout
- Fully Built-Out as Standard Office
- Space is in Excellent Condition
Very nicely configured office with large offices and several rooms with the original 1910 heart pine hardwood floors.
- Rate includes utilities, building services and property expenses
- Mostly Open Floor Plan Layout
- 1 Conference Room
- Central Air and Heating
- Original 1910 heart pine hardwood floors.
- Fully Built-Out as Standard Office
- 8 Private Offices
- 5 Workstations
- Bicycle Storage
Reception area, conference room, kitchenette and 4 private offices, two are oversized. Main Street views. Directly off elevator lobby on the 8th floor.
- Rate includes utilities, building services and property expenses
- 4 Private Offices
- Space is in Excellent Condition
- Reception Area
- Main Street views
- Partially Built-Out as Standard Office
- 1 Conference Room
- Central Air and Heating
- Kitchen
Large open plan divided into three spaces. Coffee sink in office. 115 year old distressed hardwood floors throughout. Fiber in the suite.
- Rate includes utilities, building services and property expenses
- Great windows in all offices
- Central Air and Heating
- Rate includes utilities, building services and property expenses
- Open Floor Plan Layout
- Fully Built-Out as Standard Office
- Space is in Excellent Condition
Reception area, storage and 3 above average sized offices. Great views of Main Street and the James River.
- Rate includes utilities, building services and property expenses
- 3 Private Offices
- Space is in Excellent Condition
- Reception Area
- Prime Location
- Partially Built-Out as Standard Office
- 2 Workstations
- Central Air and Heating
- Natural Light
Large portion of the 14th (2548 SF) and front portion of the 15th (1642) floors. Served by an interior open stairwell from reception area to the additional open plan space on 15th. Kitchen and restroom with shower within suite. Some offices have 18' ceilings, some lower. Very unique space. Minor wall alteration included, plus painting and carpeting LVT. Comcast fiber in the suite.
- Rate includes utilities, building services and property expenses
- 8 Private Offices
- 25 Workstations
- Central Air and Heating
- Kitchen
- Views of the James River and the State Capitol.
- Fully Built-Out as Standard Office
- 1 Conference Room
- Finished Ceilings: 8’ - 18’
- Reception Area
- Private Restrooms
| Space | Size | Term | Rental Rate | Space Use | Build-Out | Available |
| 2nd Floor, Ste 210 | 1,277 SF | Negotiable | $19.87 CAD/SF/YR $1.66 CAD/SF/MO $25,375 CAD/YR $2,115 CAD/MO | Office | Full Build-Out | Now |
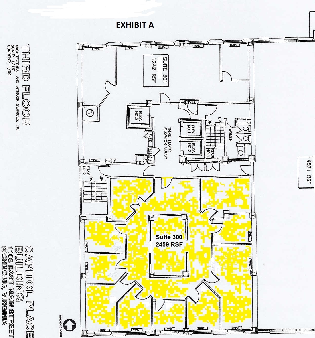
| 3rd Floor, Ste 300 | 2,459 SF | Negotiable | $19.87 CAD/SF/YR $1.66 CAD/SF/MO $48,863 CAD/YR $4,072 CAD/MO | Office | - | Now |
| 3rd Floor, Ste 301 | 1,242 SF | 1-5 Years | $19.87 CAD/SF/YR $1.66 CAD/SF/MO $24,680 CAD/YR $2,057 CAD/MO | Office | Partial Build-Out | Now |
| 5th Floor, Ste 500 | 1,388 SF | 1-7 Years | $22.61 CAD/SF/YR $1.88 CAD/SF/MO $31,385 CAD/YR $2,615 CAD/MO | Office | Full Build-Out | Now |
| 7th Floor, Ste 700 | 2,230 SF | 3-5 Years | $22.61 CAD/SF/YR $1.88 CAD/SF/MO $50,424 CAD/YR $4,202 CAD/MO | Office | Full Build-Out | Now |
| 8th Floor, Ste 800 | 1,388 SF | 3-5 Years | $22.61 CAD/SF/YR $1.88 CAD/SF/MO $31,385 CAD/YR $2,615 CAD/MO | Office | Partial Build-Out | Now |
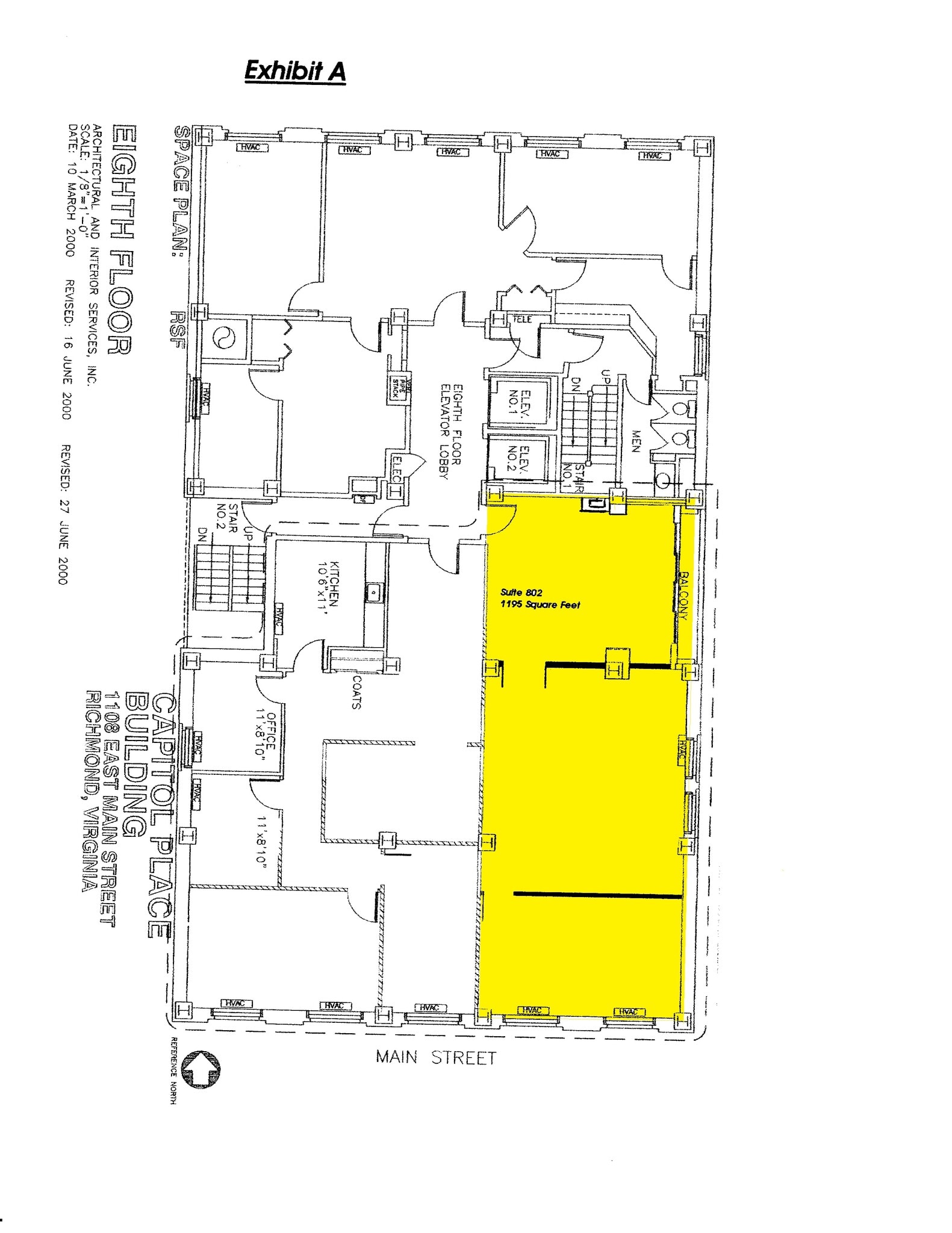
| 8th Floor, Ste 802 | 1,195 SF | Negotiable | $22.61 CAD/SF/YR $1.88 CAD/SF/MO $27,021 CAD/YR $2,252 CAD/MO | Office | - | Now |
| 9th Floor, Ste 901 | 512 SF | 1-5 Years | $23.30 CAD/SF/YR $1.94 CAD/SF/MO $11,928 CAD/YR $994.00 CAD/MO | Office | Full Build-Out | Now |
| 11th Floor, Ste 1100 | 1,130 SF | 3-5 Years | $22.61 CAD/SF/YR $1.88 CAD/SF/MO $25,551 CAD/YR $2,129 CAD/MO | Office | Partial Build-Out | Now |
| 14th Floor, Ste 1400 | 4,190 SF | 3-5 Years | $18.84 CAD/SF/YR $1.57 CAD/SF/MO $78,953 CAD/YR $6,579 CAD/MO | Office | Full Build-Out | Now |
2nd Floor, Ste 210
| Size |
| 1,277 SF |
| Term |
| Negotiable |
| Rental Rate |
| $19.87 CAD/SF/YR $1.66 CAD/SF/MO $25,375 CAD/YR $2,115 CAD/MO |
| Space Use |
| Office |
| Build-Out |
| Full Build-Out |
| Available |
| Now |
3rd Floor, Ste 300
| Size |
| 2,459 SF |
| Term |
| Negotiable |
| Rental Rate |
| $19.87 CAD/SF/YR $1.66 CAD/SF/MO $48,863 CAD/YR $4,072 CAD/MO |
| Space Use |
| Office |
| Build-Out |
| - |
| Available |
| Now |
3rd Floor, Ste 301
| Size |
| 1,242 SF |
| Term |
| 1-5 Years |
| Rental Rate |
| $19.87 CAD/SF/YR $1.66 CAD/SF/MO $24,680 CAD/YR $2,057 CAD/MO |
| Space Use |
| Office |
| Build-Out |
| Partial Build-Out |
| Available |
| Now |
5th Floor, Ste 500
| Size |
| 1,388 SF |
| Term |
| 1-7 Years |
| Rental Rate |
| $22.61 CAD/SF/YR $1.88 CAD/SF/MO $31,385 CAD/YR $2,615 CAD/MO |
| Space Use |
| Office |
| Build-Out |
| Full Build-Out |
| Available |
| Now |
7th Floor, Ste 700
| Size |
| 2,230 SF |
| Term |
| 3-5 Years |
| Rental Rate |
| $22.61 CAD/SF/YR $1.88 CAD/SF/MO $50,424 CAD/YR $4,202 CAD/MO |
| Space Use |
| Office |
| Build-Out |
| Full Build-Out |
| Available |
| Now |
8th Floor, Ste 800
| Size |
| 1,388 SF |
| Term |
| 3-5 Years |
| Rental Rate |
| $22.61 CAD/SF/YR $1.88 CAD/SF/MO $31,385 CAD/YR $2,615 CAD/MO |
| Space Use |
| Office |
| Build-Out |
| Partial Build-Out |
| Available |
| Now |
8th Floor, Ste 802
| Size |
| 1,195 SF |
| Term |
| Negotiable |
| Rental Rate |
| $22.61 CAD/SF/YR $1.88 CAD/SF/MO $27,021 CAD/YR $2,252 CAD/MO |
| Space Use |
| Office |
| Build-Out |
| - |
| Available |
| Now |
9th Floor, Ste 901
| Size |
| 512 SF |
| Term |
| 1-5 Years |
| Rental Rate |
| $23.30 CAD/SF/YR $1.94 CAD/SF/MO $11,928 CAD/YR $994.00 CAD/MO |
| Space Use |
| Office |
| Build-Out |
| Full Build-Out |
| Available |
| Now |
11th Floor, Ste 1100
| Size |
| 1,130 SF |
| Term |
| 3-5 Years |
| Rental Rate |
| $22.61 CAD/SF/YR $1.88 CAD/SF/MO $25,551 CAD/YR $2,129 CAD/MO |
| Space Use |
| Office |
| Build-Out |
| Partial Build-Out |
| Available |
| Now |
14th Floor, Ste 1400
| Size |
| 4,190 SF |
| Term |
| 3-5 Years |
| Rental Rate |
| $18.84 CAD/SF/YR $1.57 CAD/SF/MO $78,953 CAD/YR $6,579 CAD/MO |
| Space Use |
| Office |
| Build-Out |
| Full Build-Out |
| Available |
| Now |
2nd Floor, Ste 210
| Size | 1,277 SF |
| Term | Negotiable |
| Rental Rate | $19.87 CAD/SF/YR |
| Space Use | Office |
| Build-Out | Full Build-Out |
| Available | Now |
- Rate includes utilities, building services and property expenses
- Fully Built-Out as Standard Office
- 4 Private Offices
- Space is in Excellent Condition
3rd Floor, Ste 300
| Size | 2,459 SF |
| Term | Negotiable |
| Rental Rate | $19.87 CAD/SF/YR |
| Space Use | Office |
| Build-Out | - |
| Available | Now |
Reception area with 9 private offices, conference room and a storage room.
- Rate includes utilities, building services and property expenses
- 9 Private Offices
- 1 Conference Room
- Central Air and Heating
- Secure Storage
3rd Floor, Ste 301
| Size | 1,242 SF |
| Term | 1-5 Years |
| Rental Rate | $19.87 CAD/SF/YR |
| Space Use | Office |
| Build-Out | Partial Build-Out |
| Available | Now |
Large reception area with 4 private offices. Very private office suite just off the elevator lobby on 3rd floor.
- Rate includes utilities, building services and property expenses
- Partially Built-Out as Standard Office
- 4 Private Offices
- Space is in Excellent Condition
- Central Air and Heating
- Reception Area
- Private Suite.
5th Floor, Ste 500
| Size | 1,388 SF |
| Term | 1-7 Years |
| Rental Rate | $22.61 CAD/SF/YR |
| Space Use | Office |
| Build-Out | Full Build-Out |
| Available | Now |
- Rate includes utilities, building services and property expenses
- Fully Built-Out as Standard Office
- Office intensive layout
- Space is in Excellent Condition
7th Floor, Ste 700
| Size | 2,230 SF |
| Term | 3-5 Years |
| Rental Rate | $22.61 CAD/SF/YR |
| Space Use | Office |
| Build-Out | Full Build-Out |
| Available | Now |
Very nicely configured office with large offices and several rooms with the original 1910 heart pine hardwood floors.
- Rate includes utilities, building services and property expenses
- Fully Built-Out as Standard Office
- Mostly Open Floor Plan Layout
- 8 Private Offices
- 1 Conference Room
- 5 Workstations
- Central Air and Heating
- Bicycle Storage
- Original 1910 heart pine hardwood floors.
8th Floor, Ste 800
| Size | 1,388 SF |
| Term | 3-5 Years |
| Rental Rate | $22.61 CAD/SF/YR |
| Space Use | Office |
| Build-Out | Partial Build-Out |
| Available | Now |
Reception area, conference room, kitchenette and 4 private offices, two are oversized. Main Street views. Directly off elevator lobby on the 8th floor.
- Rate includes utilities, building services and property expenses
- Partially Built-Out as Standard Office
- 4 Private Offices
- 1 Conference Room
- Space is in Excellent Condition
- Central Air and Heating
- Reception Area
- Kitchen
- Main Street views
8th Floor, Ste 802
| Size | 1,195 SF |
| Term | Negotiable |
| Rental Rate | $22.61 CAD/SF/YR |
| Space Use | Office |
| Build-Out | - |
| Available | Now |
Large open plan divided into three spaces. Coffee sink in office. 115 year old distressed hardwood floors throughout. Fiber in the suite.
- Rate includes utilities, building services and property expenses
- Central Air and Heating
- Great windows in all offices
9th Floor, Ste 901
| Size | 512 SF |
| Term | 1-5 Years |
| Rental Rate | $23.30 CAD/SF/YR |
| Space Use | Office |
| Build-Out | Full Build-Out |
| Available | Now |
- Rate includes utilities, building services and property expenses
- Fully Built-Out as Standard Office
- Open Floor Plan Layout
- Space is in Excellent Condition
11th Floor, Ste 1100
| Size | 1,130 SF |
| Term | 3-5 Years |
| Rental Rate | $22.61 CAD/SF/YR |
| Space Use | Office |
| Build-Out | Partial Build-Out |
| Available | Now |
Reception area, storage and 3 above average sized offices. Great views of Main Street and the James River.
- Rate includes utilities, building services and property expenses
- Partially Built-Out as Standard Office
- 3 Private Offices
- 2 Workstations
- Space is in Excellent Condition
- Central Air and Heating
- Reception Area
- Natural Light
- Prime Location
14th Floor, Ste 1400
| Size | 4,190 SF |
| Term | 3-5 Years |
| Rental Rate | $18.84 CAD/SF/YR |
| Space Use | Office |
| Build-Out | Full Build-Out |
| Available | Now |
Large portion of the 14th (2548 SF) and front portion of the 15th (1642) floors. Served by an interior open stairwell from reception area to the additional open plan space on 15th. Kitchen and restroom with shower within suite. Some offices have 18' ceilings, some lower. Very unique space. Minor wall alteration included, plus painting and carpeting LVT. Comcast fiber in the suite.
- Rate includes utilities, building services and property expenses
- Fully Built-Out as Standard Office
- 8 Private Offices
- 1 Conference Room
- 25 Workstations
- Finished Ceilings: 8’ - 18’
- Central Air and Heating
- Reception Area
- Kitchen
- Private Restrooms
- Views of the James River and the State Capitol.
Property Overview
Historic 1910 Building in the heart of the financial district. Wonderful views of the river and Capitol building. Located next to the Federal Court of Appeals building and directly across from the Bank of America Building, near the intersection of 12th and Main Streets.
- Bus Line
- Conferencing Facility
- Courtyard
- Property Manager on Site
- Restaurant
Property Facts
Presented by
Capitol Place | 1108 E Main St
Hmm, there seems to have been an error sending your message. Please try again.
Thanks! Your message was sent.



















