Your email has been sent.
Park Highlights
- At this 21st-century community of visionary businesses, pioneering start-ups and global technology corporations, a once-in-a-generation opportunity
- A smart collection of workday conveniences includes auto-detail services, and EV charging stations.
- Meeting and event-ready outdoor workspaces ignite creativity beyond the everyday office so your team's next "A-ha" moment is always within reach
- Powered by the convergence of world-class research at UCI, a STEM-rich talent pool and top-ten venture capital funding
- Today's innovators and the inventors of the future foster a culture of rapid growth and collaboration at UCI Research Park
Park Facts
All Available Spaces(18)
Display Rental Rate as
- Space
- Size
- Term
- Rental Rate
- Space Use
- Build-Out
- Available
Suite Description : $2/SF Broker Bonus for 5+ year lease deals & $1/SF Broker Bonus for 3+ year lease deals for NEW customers. Exclusions apply. Expires 12/31/2025
- Lease rate does not include utilities, property expenses or building services
- Office intensive layout
- Can be combined with additional space(s) for up to 31,907 SF of adjacent space
- Fully Built-Out as Professional Services Office
- Space is in Excellent Condition
- Kitchen
Suite Description : $2/SF Broker Bonus for 5+ year lease deals & $1/SF Broker Bonus for 3+ year lease deals for NEW customers. Exclusions apply. Expires 12/31/2025
- Lease rate does not include utilities, property expenses or building services
- Mostly Open Floor Plan Layout
- Can be combined with additional space(s) for up to 31,907 SF of adjacent space
- Kitchen
- Fully Built-Out as Standard Office
- Space is in Excellent Condition
- Central Air Conditioning
- Fully Carpeted
| Space | Size | Term | Rental Rate | Space Use | Build-Out | Available |
| 1st Floor, Ste 100 | 16,907 SF | Negotiable | $32.63 CAD/SF/YR $2.72 CAD/SF/MO $551,642 CAD/YR $45,970 CAD/MO | Office | Full Build-Out | Now |
| 2nd Floor, Ste 200 | 15,000 SF | Negotiable | $32.63 CAD/SF/YR $2.72 CAD/SF/MO $489,420 CAD/YR $40,785 CAD/MO | Office | Full Build-Out | Now |
110 Theory Dr - 1st Floor - Ste 100
110 Theory Dr - 2nd Floor - Ste 200
- Space
- Size
- Term
- Rental Rate
- Space Use
- Build-Out
- Available
Suite Description : $2/SF Broker Bonus for 5+ year lease deals & $1/SF Broker Bonus for 3+ year lease deals for NEW customers. Exclusions apply. Expires 12/31/2025
- Lease rate does not include utilities, property expenses or building services
- Mostly Open Floor Plan Layout
- Can be combined with additional space(s) for up to 19,014 SF of adjacent space
- Fully Carpeted
- Fully Built-Out as Professional Services Office
- Space is in Excellent Condition
- Central Air Conditioning
- Natural Light
Suite Description : $2/SF Broker Bonus for 5+ year lease deals & $1/SF Broker Bonus for 3+ year lease deals for NEW customers. Exclusions apply. Expires 12/31/2025
- Lease rate does not include utilities, property expenses or building services
- Office intensive layout
- Can be combined with additional space(s) for up to 19,014 SF of adjacent space
- Kitchen
- Fully Built-Out as Professional Services Office
- Space is in Excellent Condition
- Central Air Conditioning
| Space | Size | Term | Rental Rate | Space Use | Build-Out | Available |
| 1st Floor, Ste 100 | 12,090 SF | Negotiable | $35.89 CAD/SF/YR $2.99 CAD/SF/MO $433,920 CAD/YR $36,160 CAD/MO | Office | Full Build-Out | 2027-02-01 |
| 2nd Floor, Ste 250 | 6,924 SF | Negotiable | $35.89 CAD/SF/YR $2.99 CAD/SF/MO $248,508 CAD/YR $20,709 CAD/MO | Office | Full Build-Out | Now |
120 Theory Dr - 1st Floor - Ste 100
120 Theory Dr - 2nd Floor - Ste 250
- Space
- Size
- Term
- Rental Rate
- Space Use
- Build-Out
- Available
Suite Description : $2/SF Broker Bonus for 5+ year lease deals & $1/SF Broker Bonus for 3+ year lease deals for NEW customers. Exclusions apply. Expires 12/31/2025
- Lease rate does not include utilities, property expenses or building services
- Office intensive layout
- High Ceilings
- Fully Built-Out as Professional Services Office
- Space is in Excellent Condition
Suite Description : $2/SF Broker Bonus for 5+ year lease deals & $1/SF Broker Bonus for 3+ year lease deals for NEW customers. Exclusions apply. Expires 6/30/2026
- Lease rate does not include utilities, property expenses or building services
Suite Description : $2/SF Broker Bonus for 5+ year lease deals & $1/SF Broker Bonus for 3+ year lease deals for NEW customers. Exclusions apply. Expires 6/30/2026
- Lease rate does not include utilities, property expenses or building services
| Space | Size | Term | Rental Rate | Space Use | Build-Out | Available |
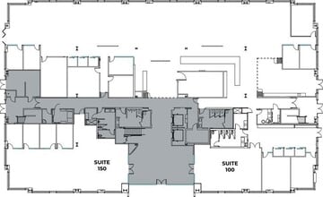
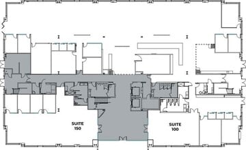
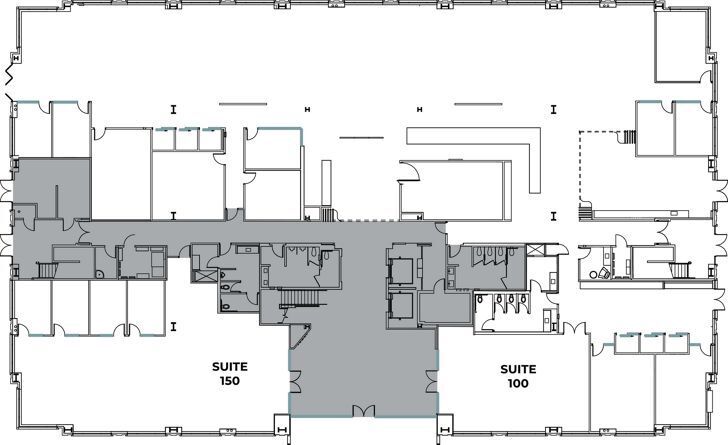
| 1st Floor, Ste 100 | 17,920 SF | Negotiable | $39.15 CAD/SF/YR $3.26 CAD/SF/MO $701,633 CAD/YR $58,469 CAD/MO | Office | Full Build-Out | Now |
| 1st Floor, Ste 150 | 3,566 SF | Negotiable | $40.79 CAD/SF/YR $3.40 CAD/SF/MO $145,439 CAD/YR $12,120 CAD/MO | Office | - | Now |
| 3rd Floor, Ste 300 | 19,709 SF | Negotiable | $39.15 CAD/SF/YR $3.26 CAD/SF/MO $771,678 CAD/YR $64,307 CAD/MO | Office | - | 2027-02-01 |
5281 California Ave - 1st Floor - Ste 100
5281 California Ave - 1st Floor - Ste 150
5281 California Ave - 3rd Floor - Ste 300
- Space
- Size
- Term
- Rental Rate
- Space Use
- Build-Out
- Available
- Space is in Excellent Condition
| Space | Size | Term | Rental Rate | Space Use | Build-Out | Available |
| 1st Floor, Ste 100 | 31,720 SF | Negotiable | Upon Request Upon Request Upon Request Upon Request | Office | - | 2026-11-01 |
5161 California Ave - 1st Floor - Ste 100
- Space
- Size
- Term
- Rental Rate
- Space Use
- Build-Out
- Available
- Lease rate does not include utilities, property expenses or building services
- Can be combined with additional space(s) for up to 63,440 SF of adjacent space
- Lease rate does not include utilities, property expenses or building services
- Can be combined with additional space(s) for up to 63,440 SF of adjacent space
| Space | Size | Term | Rental Rate | Space Use | Build-Out | Available |
| 1st Floor, Ste 100 | 31,720 SF | Negotiable | $35.08 CAD/SF/YR $2.92 CAD/SF/MO $1,112,582 CAD/YR $92,715 CAD/MO | Office | - | 2027-05-01 |
| 2nd Floor, Ste 200 | 31,720 SF | Negotiable | $35.08 CAD/SF/YR $2.92 CAD/SF/MO $1,112,582 CAD/YR $92,715 CAD/MO | Office | - | 2027-05-01 |
131 Theory Dr - 1st Floor - Ste 100
131 Theory Dr - 2nd Floor - Ste 200
- Space
- Size
- Term
- Rental Rate
- Space Use
- Build-Out
- Available
- Lease rate does not include utilities, property expenses or building services
| Space | Size | Term | Rental Rate | Space Use | Build-Out | Available |
| 1st Floor, Ste 130 | 2,021 SF | Negotiable | $39.15 CAD/SF/YR $3.26 CAD/SF/MO $79,129 CAD/YR $6,594 CAD/MO | Office | - | Now |
5251 California Ave - 1st Floor - Ste 130
- Space
- Size
- Term
- Rental Rate
- Space Use
- Build-Out
- Available
- Lease rate does not include utilities, property expenses or building services
Suite Description : $2/SF Broker Bonus for 5+ year lease deals & $1/SF Broker Bonus for 3+ year lease deals for NEW customers. Exclusions apply. Expires 6/30/2026
- Lease rate does not include utilities, property expenses or building services
| Space | Size | Term | Rental Rate | Space Use | Build-Out | Available |
| 1st Floor, Ste 150 | 16,873 SF | Negotiable | $35.08 CAD/SF/YR $2.92 CAD/SF/MO $591,822 CAD/YR $49,319 CAD/MO | Office | - | Now |
| 2nd Floor, Ste 200 | 15,000-31,720 SF | Negotiable | $35.08 CAD/SF/YR $2.92 CAD/SF/MO $1,112,582 CAD/YR $92,715 CAD/MO | Office | - | 2027-01-01 |
130 Theory Dr - 1st Floor - Ste 150
130 Theory Dr - 2nd Floor - Ste 200
- Space
- Size
- Term
- Rental Rate
- Space Use
- Build-Out
- Available
Suite Description : $2/SF Broker Bonus for 5+ year lease deals & $1/SF Broker Bonus for 3+ year lease deals for NEW customers. Exclusions apply. Expires 12/31/2025
- Lease rate does not include utilities, property expenses or building services
- Office intensive layout
- Fully Built-Out as Professional Services Office
- Space is in Excellent Condition
| Space | Size | Term | Rental Rate | Space Use | Build-Out | Available |
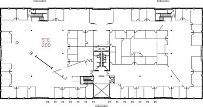
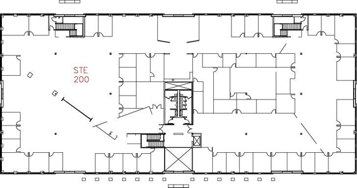
| 2nd Floor, Ste 200 | 11,000-22,097 SF | Negotiable | $32.63 CAD/SF/YR $2.72 CAD/SF/MO $720,981 CAD/YR $60,082 CAD/MO | Office | Full Build-Out | Now |
100 Theory - 2nd Floor - Ste 200
- Space
- Size
- Term
- Rental Rate
- Space Use
- Build-Out
- Available
$2/SF Broker Bonus for 5+ year lease deals & $1/SF Broker Bonus for 3+ year lease deals for NEW customers. Exclusions apply. Expires 12/31/2025
- Lease rate does not include utilities, property expenses or building services
| Space | Size | Term | Rental Rate | Space Use | Build-Out | Available |
| 2nd Floor, Ste 200 | 4,286 SF | Negotiable | $37.52 CAD/SF/YR $3.13 CAD/SF/MO $160,820 CAD/YR $13,402 CAD/MO | Office | - | Now |
5151 California Ave - 2nd Floor - Ste 200
- Space
- Size
- Term
- Rental Rate
- Space Use
- Build-Out
- Available
Suite Description : $2/SF Broker Bonus for 5+ year lease deals & $1/SF Broker Bonus for 3+ year lease deals for NEW customers. Exclusions apply. Expires 6/30/2026
- Lease rate does not include utilities, property expenses or building services
- Can be combined with additional space(s) for up to 22,120 SF of adjacent space
$2/SF Broker Bonus for 5+ year lease deals & $1/SF Broker Bonus for 3+ year lease deals for NEW customers. Exclusions apply. Expires 6/30/2026
- Lease rate does not include utilities, property expenses or building services
- Can be combined with additional space(s) for up to 22,120 SF of adjacent space
- Space is in Excellent Condition
| Space | Size | Term | Rental Rate | Space Use | Build-Out | Available |
| 2nd Floor, Ste 200 | 10,362 SF | Negotiable | $32.63 CAD/SF/YR $2.72 CAD/SF/MO $338,091 CAD/YR $28,174 CAD/MO | Office | - | Now |
| 2nd Floor, Ste 250 | 11,758 SF | Negotiable | $32.63 CAD/SF/YR $2.72 CAD/SF/MO $383,640 CAD/YR $31,970 CAD/MO | Office | - | 2026-07-01 |
131 Innovation Dr - 2nd Floor - Ste 200
131 Innovation Dr - 2nd Floor - Ste 250
- Space
- Size
- Term
- Rental Rate
- Space Use
- Build-Out
- Available
Suite Description : $2/SF Broker Bonus for 5+ year lease deals & $1/SF Broker Bonus for 3+ year lease deals for NEW customers. Exclusions apply. Expires 6/30/2026 / This is a Flex Workspace+tm suite : Yes
- Lease rate does not include utilities, property expenses or building services
| Space | Size | Term | Rental Rate | Space Use | Build-Out | Available |
| 3rd Floor, Ste 320 | 3,845 SF | Negotiable | $40.79 CAD/SF/YR $3.40 CAD/SF/MO $156,818 CAD/YR $13,068 CAD/MO | Office | - | 2026-08-01 |
5301 California Ave - 3rd Floor - Ste 320
110 Theory Dr - 1st Floor - Ste 100
| Size | 16,907 SF |
| Term | Negotiable |
| Rental Rate | $32.63 CAD/SF/YR |
| Space Use | Office |
| Build-Out | Full Build-Out |
| Available | Now |
Suite Description : $2/SF Broker Bonus for 5+ year lease deals & $1/SF Broker Bonus for 3+ year lease deals for NEW customers. Exclusions apply. Expires 12/31/2025
- Lease rate does not include utilities, property expenses or building services
- Fully Built-Out as Professional Services Office
- Office intensive layout
- Space is in Excellent Condition
- Can be combined with additional space(s) for up to 31,907 SF of adjacent space
- Kitchen
110 Theory Dr - 2nd Floor - Ste 200
| Size | 15,000 SF |
| Term | Negotiable |
| Rental Rate | $32.63 CAD/SF/YR |
| Space Use | Office |
| Build-Out | Full Build-Out |
| Available | Now |
Suite Description : $2/SF Broker Bonus for 5+ year lease deals & $1/SF Broker Bonus for 3+ year lease deals for NEW customers. Exclusions apply. Expires 12/31/2025
- Lease rate does not include utilities, property expenses or building services
- Fully Built-Out as Standard Office
- Mostly Open Floor Plan Layout
- Space is in Excellent Condition
- Can be combined with additional space(s) for up to 31,907 SF of adjacent space
- Central Air Conditioning
- Kitchen
- Fully Carpeted
120 Theory Dr - 1st Floor - Ste 100
| Size | 12,090 SF |
| Term | Negotiable |
| Rental Rate | $35.89 CAD/SF/YR |
| Space Use | Office |
| Build-Out | Full Build-Out |
| Available | 2027-02-01 |
Suite Description : $2/SF Broker Bonus for 5+ year lease deals & $1/SF Broker Bonus for 3+ year lease deals for NEW customers. Exclusions apply. Expires 12/31/2025
- Lease rate does not include utilities, property expenses or building services
- Fully Built-Out as Professional Services Office
- Mostly Open Floor Plan Layout
- Space is in Excellent Condition
- Can be combined with additional space(s) for up to 19,014 SF of adjacent space
- Central Air Conditioning
- Fully Carpeted
- Natural Light
120 Theory Dr - 2nd Floor - Ste 250
| Size | 6,924 SF |
| Term | Negotiable |
| Rental Rate | $35.89 CAD/SF/YR |
| Space Use | Office |
| Build-Out | Full Build-Out |
| Available | Now |
Suite Description : $2/SF Broker Bonus for 5+ year lease deals & $1/SF Broker Bonus for 3+ year lease deals for NEW customers. Exclusions apply. Expires 12/31/2025
- Lease rate does not include utilities, property expenses or building services
- Fully Built-Out as Professional Services Office
- Office intensive layout
- Space is in Excellent Condition
- Can be combined with additional space(s) for up to 19,014 SF of adjacent space
- Central Air Conditioning
- Kitchen
5281 California Ave - 1st Floor - Ste 100
| Size | 17,920 SF |
| Term | Negotiable |
| Rental Rate | $39.15 CAD/SF/YR |
| Space Use | Office |
| Build-Out | Full Build-Out |
| Available | Now |
Suite Description : $2/SF Broker Bonus for 5+ year lease deals & $1/SF Broker Bonus for 3+ year lease deals for NEW customers. Exclusions apply. Expires 12/31/2025
- Lease rate does not include utilities, property expenses or building services
- Fully Built-Out as Professional Services Office
- Office intensive layout
- Space is in Excellent Condition
- High Ceilings
5281 California Ave - 1st Floor - Ste 150
| Size | 3,566 SF |
| Term | Negotiable |
| Rental Rate | $40.79 CAD/SF/YR |
| Space Use | Office |
| Build-Out | - |
| Available | Now |
Suite Description : $2/SF Broker Bonus for 5+ year lease deals & $1/SF Broker Bonus for 3+ year lease deals for NEW customers. Exclusions apply. Expires 6/30/2026
- Lease rate does not include utilities, property expenses or building services
5281 California Ave - 3rd Floor - Ste 300
| Size | 19,709 SF |
| Term | Negotiable |
| Rental Rate | $39.15 CAD/SF/YR |
| Space Use | Office |
| Build-Out | - |
| Available | 2027-02-01 |
Suite Description : $2/SF Broker Bonus for 5+ year lease deals & $1/SF Broker Bonus for 3+ year lease deals for NEW customers. Exclusions apply. Expires 6/30/2026
- Lease rate does not include utilities, property expenses or building services
5161 California Ave - 1st Floor - Ste 100
| Size | 31,720 SF |
| Term | Negotiable |
| Rental Rate | Upon Request |
| Space Use | Office |
| Build-Out | - |
| Available | 2026-11-01 |
- Space is in Excellent Condition
131 Theory Dr - 1st Floor - Ste 100
| Size | 31,720 SF |
| Term | Negotiable |
| Rental Rate | $35.08 CAD/SF/YR |
| Space Use | Office |
| Build-Out | - |
| Available | 2027-05-01 |
- Lease rate does not include utilities, property expenses or building services
- Can be combined with additional space(s) for up to 63,440 SF of adjacent space
131 Theory Dr - 2nd Floor - Ste 200
| Size | 31,720 SF |
| Term | Negotiable |
| Rental Rate | $35.08 CAD/SF/YR |
| Space Use | Office |
| Build-Out | - |
| Available | 2027-05-01 |
- Lease rate does not include utilities, property expenses or building services
- Can be combined with additional space(s) for up to 63,440 SF of adjacent space
5251 California Ave - 1st Floor - Ste 130
| Size | 2,021 SF |
| Term | Negotiable |
| Rental Rate | $39.15 CAD/SF/YR |
| Space Use | Office |
| Build-Out | - |
| Available | Now |
- Lease rate does not include utilities, property expenses or building services
130 Theory Dr - 1st Floor - Ste 150
| Size | 16,873 SF |
| Term | Negotiable |
| Rental Rate | $35.08 CAD/SF/YR |
| Space Use | Office |
| Build-Out | - |
| Available | Now |
- Lease rate does not include utilities, property expenses or building services
130 Theory Dr - 2nd Floor - Ste 200
| Size | 15,000-31,720 SF |
| Term | Negotiable |
| Rental Rate | $35.08 CAD/SF/YR |
| Space Use | Office |
| Build-Out | - |
| Available | 2027-01-01 |
Suite Description : $2/SF Broker Bonus for 5+ year lease deals & $1/SF Broker Bonus for 3+ year lease deals for NEW customers. Exclusions apply. Expires 6/30/2026
- Lease rate does not include utilities, property expenses or building services
100 Theory - 2nd Floor - Ste 200
| Size | 11,000-22,097 SF |
| Term | Negotiable |
| Rental Rate | $32.63 CAD/SF/YR |
| Space Use | Office |
| Build-Out | Full Build-Out |
| Available | Now |
Suite Description : $2/SF Broker Bonus for 5+ year lease deals & $1/SF Broker Bonus for 3+ year lease deals for NEW customers. Exclusions apply. Expires 12/31/2025
- Lease rate does not include utilities, property expenses or building services
- Fully Built-Out as Professional Services Office
- Office intensive layout
- Space is in Excellent Condition
5151 California Ave - 2nd Floor - Ste 200
| Size | 4,286 SF |
| Term | Negotiable |
| Rental Rate | $37.52 CAD/SF/YR |
| Space Use | Office |
| Build-Out | - |
| Available | Now |
$2/SF Broker Bonus for 5+ year lease deals & $1/SF Broker Bonus for 3+ year lease deals for NEW customers. Exclusions apply. Expires 12/31/2025
- Lease rate does not include utilities, property expenses or building services
131 Innovation Dr - 2nd Floor - Ste 200
| Size | 10,362 SF |
| Term | Negotiable |
| Rental Rate | $32.63 CAD/SF/YR |
| Space Use | Office |
| Build-Out | - |
| Available | Now |
Suite Description : $2/SF Broker Bonus for 5+ year lease deals & $1/SF Broker Bonus for 3+ year lease deals for NEW customers. Exclusions apply. Expires 6/30/2026
- Lease rate does not include utilities, property expenses or building services
- Can be combined with additional space(s) for up to 22,120 SF of adjacent space
131 Innovation Dr - 2nd Floor - Ste 250
| Size | 11,758 SF |
| Term | Negotiable |
| Rental Rate | $32.63 CAD/SF/YR |
| Space Use | Office |
| Build-Out | - |
| Available | 2026-07-01 |
$2/SF Broker Bonus for 5+ year lease deals & $1/SF Broker Bonus for 3+ year lease deals for NEW customers. Exclusions apply. Expires 6/30/2026
- Lease rate does not include utilities, property expenses or building services
- Space is in Excellent Condition
- Can be combined with additional space(s) for up to 22,120 SF of adjacent space
5301 California Ave - 3rd Floor - Ste 320
| Size | 3,845 SF |
| Term | Negotiable |
| Rental Rate | $40.79 CAD/SF/YR |
| Space Use | Office |
| Build-Out | - |
| Available | 2026-08-01 |
Suite Description : $2/SF Broker Bonus for 5+ year lease deals & $1/SF Broker Bonus for 3+ year lease deals for NEW customers. Exclusions apply. Expires 6/30/2026 / This is a Flex Workspace+tm suite : Yes
- Lease rate does not include utilities, property expenses or building services
Park Overview
Inspire the communities of tomorrow at UCI Research Park. This 21st-century hub of visionary businesses, pioneering start-ups, and global corporations is uniquely positioned to support a variety of forward-thinking teams and companies. From newly revitalized workspaces to a smart collection of on-campus amenities, UCI Research Park offers unmatched access to communities and talent at the forefront of new ideas, unlocking opportunities for innovation, connection and growth
- Conferencing Facility
- Accent Lighting
- Car Charging Station
- Monument Signage
- Air Conditioning
Presented by
UCI Research Park | Irvine, CA 92617
Hmm, there seems to have been an error sending your message. Please try again.
Thanks! Your message was sent.


































