Log In/Sign Up
Your email has been sent.
11150 E. State Route 120
Manteca, CA 95336
Entitled Land for Freight & Truck Terminal · Land For Sale
·
10.00 AC

Executive Summary
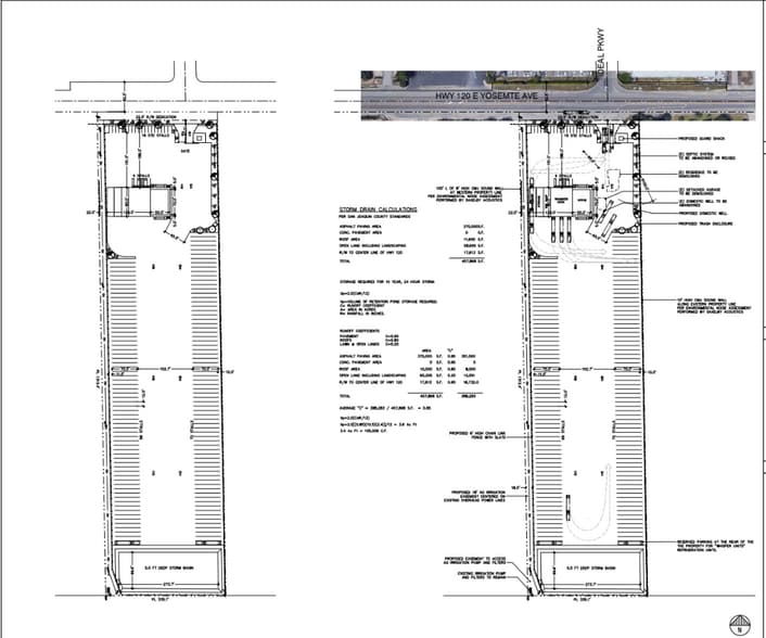
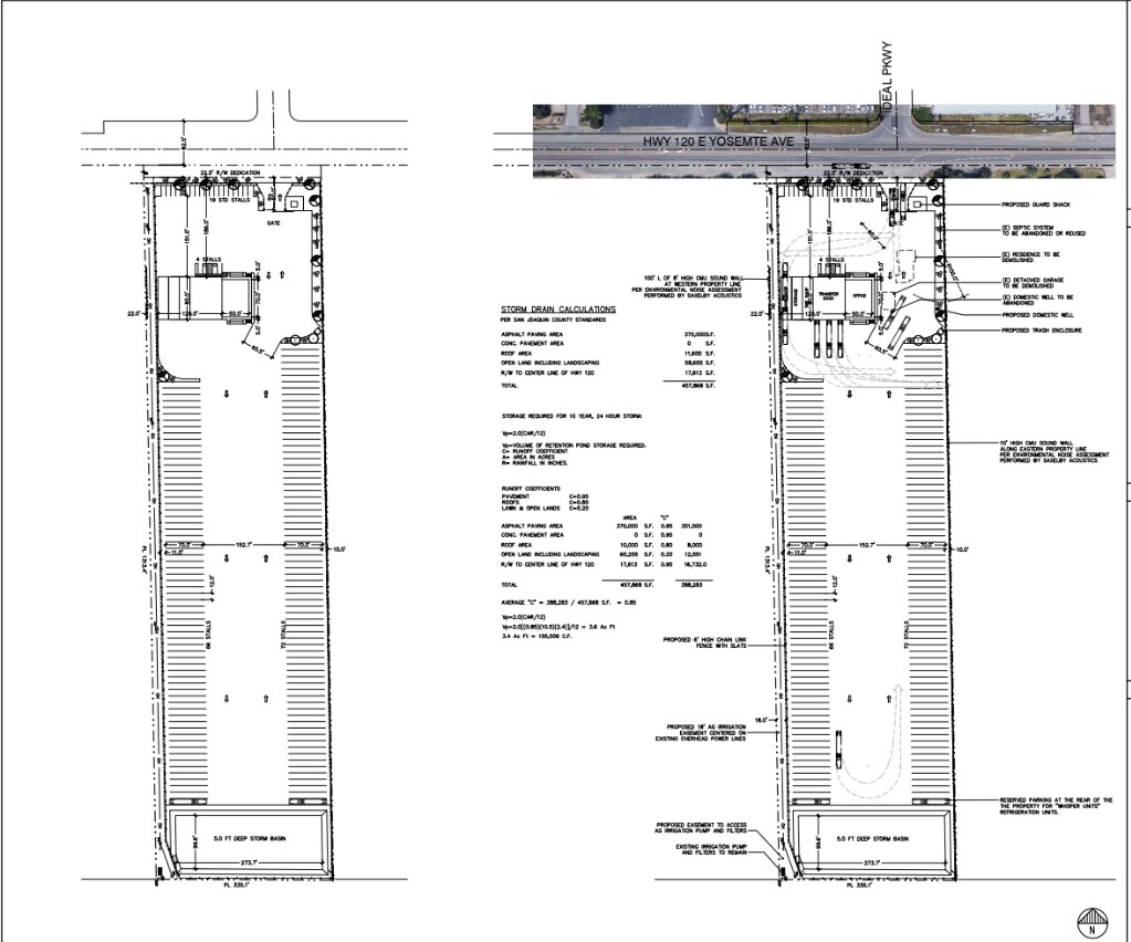
Prime 10-Acre Entitled Truck Terminal Development – Yosemite Ave & Hwy 99, Manteca, CA
Seize this high-visibility investment opportunity in one of the busiest trucking corridors in California! This 10-acre entitled lot is strategically positioned right off Highway 99 at Exit 120 – Yosemite Ave, a high-traffic intersection ideal for logistics and freight operations.
Key Highlights:
? Fully Entitled for a Truck Terminal & Freight Hub
? Premier Location with Direct Access to Hwy 99
? High-Exposure Site at One of the Busiest Exits in Manteca
? Designed for Efficiency, Supporting High-Volume Truck Traffic
? Surrounded by Major Distribution Centers & Industrial Developments
This is a rare, shovel-ready opportunity in a prime transportation hub, perfect for investors or owner-operators looking to capitalize on Manteca’s booming industrial growth.
?? Act now! Contact us today for more details.
Seize this high-visibility investment opportunity in one of the busiest trucking corridors in California! This 10-acre entitled lot is strategically positioned right off Highway 99 at Exit 120 – Yosemite Ave, a high-traffic intersection ideal for logistics and freight operations.
Key Highlights:
? Fully Entitled for a Truck Terminal & Freight Hub
? Premier Location with Direct Access to Hwy 99
? High-Exposure Site at One of the Busiest Exits in Manteca
? Designed for Efficiency, Supporting High-Volume Truck Traffic
? Surrounded by Major Distribution Centers & Industrial Developments
This is a rare, shovel-ready opportunity in a prime transportation hub, perfect for investors or owner-operators looking to capitalize on Manteca’s booming industrial growth.
?? Act now! Contact us today for more details.
Property Facts
| Sale Type | Investment or Owner User | Property Subtype | Commercial |
| No. Lots | 1 | Proposed Use | Truck Terminal |
| Property Type | Land | Total Lot Size | 10.00 AC |
| Zoning | Commercial | ||
| Sale Type | Investment or Owner User |
| No. Lots | 1 |
| Property Type | Land |
| Property Subtype | Commercial |
| Proposed Use | Truck Terminal |
| Total Lot Size | 10.00 AC |
| Zoning | Commercial |
1 Lot Available
Lot
| Lot Size | 10.00 AC |
| Lot Size | 10.00 AC |
Prime 10-acre Entitled for Freight & Truck Terminal Development – Yosemite Ave & Hwy 99, Manteca, CA
1 of 2
Videos
Matterport 3D Exterior
Matterport 3D Tour
Photos
Street View
Street
Map
