Log In/Sign Up
Your email has been sent.
11215-11245 Dovedale Ct - Waverly Place 1,900 SF Office Condo Unit Offered at $594,558 CAD in Marriottsville, MD 21104



1 Unit Available
Unit 11215 - 24
| Unit Size | 1,900 SF | Condo Use | Office |
| Price | $594,558 CAD | Sale Type | Owner User |
| Price Per SF | $312.93 CAD | APN/Parcel ID | 03-341089 |
| Unit Size | 1,900 SF |
| Price | $594,558 CAD |
| Price Per SF | $312.93 CAD |
| Condo Use | Office |
| Sale Type | Owner User |
| APN/Parcel ID | 03-341089 |
Description
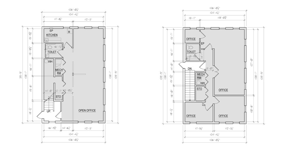
End unit with windows on three sides. First and second floor space, interior stairway. Two HVAC units, one per floor, 15 plus years old.
APN 03-341089
Sale Notes
1,900 square feet available. Real Estate Taxes: $5,676 per year. Condominium Fees: $321 per month. Waverly Woods Fee: $641 per year.
Floor Plan
First Floor Interior
Second Floor Interior
1 of 3
Videos
Matterport 3D Exterior
Matterport 3D Tour
Photos
Street View
Street
Map
Property Facts
The following property facts apply to the entire building. Details for individual condo units may vary and are listed in the unit information above.
| Total Building Size | 8,467 SF | Typical Floor Size | 3,646 SF |
| Property Type | Office (Condo) | Year Built | 2004 |
| Building Class | B | Lot Size | 5.75 AC |
| Floors | 2 | Parking Ratio | 8.23/1,000 SF |
| Zoning | POR | ||
| Total Building Size | 8,467 SF |
| Property Type | Office (Condo) |
| Building Class | B |
| Floors | 2 |
| Typical Floor Size | 3,646 SF |
| Year Built | 2004 |
| Lot Size | 5.75 AC |
| Parking Ratio | 8.23/1,000 SF |
| Zoning | POR |
Fairly walkable
40/100
Exceptionally drivable
100/100
Moderately bikeable
60/100
1 of 4
Videos
Matterport 3D Exterior
Matterport 3D Tour
Photos
Street View
Street
Map
Presented by
11215-11245 Dovedale Ct - Waverly Place
Already a member? Log In
Hmm, there seems to have been an error sending your message. Please try again.
Thanks! Your message was sent.


