Log In/Sign Up
Your email has been sent.
1122-1126 W Bryn Mawr Ave 10,175 SF 52% Leased Retail Building Chicago, IL 60660 $2,663,037 CAD ($261.72 CAD/SF)



Investment Highlights
- Rare single-story 10,175 SF building on an 11,273 SF lot with ~75' of Bryn Mawr frontage directly adjacent to the Bryn Mawr CTA Red Line Station
- May be eligible for Cook County Class L Property Tax Incentive upon final Chicago Landmark designation, reducing assessed value to 10% of market value
- Roof and HVAC in good condition, approximately 7 years old with rear public alley access for service and loading
- Potentially eligible for Federal 20% and Illinois 25% Historic Tax Credits on qualified rehabilitation expenditures
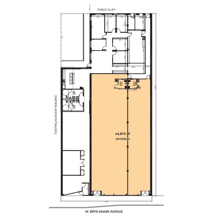
- Existing infrastructure includes turn-key 5,400 SF office space and 4,775 SF retail/raw space
- Phase I Environmental Site Assessment completed 2018; updated Phase I recommended
Executive Summary
1122-26 W. Bryn Mawr comprises two one-story masonry storefronts on a combined 11,273 SF lot with approximately 75 feet of Bryn Mawr Avenue frontage. The building totals 10,175 SF and benefits from rear public alley access, providing a highly functional and flexible footprint for a range of commercial uses. The property consists of two buildings with distinct histories. 1122-1124, known as the National Tea Company Building, was constructed in 1929. 1126, the E. Kenner Ingal Building, dates to 1919. Both are classified as Late Classical Revival in style. The single-story floorplate, generous ceiling heights, and wide storefront bays make the building well-suited for adaptive reuse across retail, restaurant, food & beverage, fitness, medical, creative office, or cultural/arts uses. The property sits directly adjacent to the Bryn Mawr CTA Red Line Station, which completed a full renovation in 2025.
Property Facts
Sale Type
Investment
Property Type
Retail
Property Subtype
Building Size
10,175 SF
Building Class
C
Year Built/Renovated
1931/2025
Price
$2,663,037 CAD
Price Per SF
$261.72 CAD
Percent Leased
52%
Tenancy
Multiple
Building Height
1 Story
Building FAR
0.90
Lot Size
0.26 AC
Zoning
B3-5 - B3-5 zoning (5.0 FAR) with ETOD and ARO Tax Credit eligibility; apartments permitted above ground floor
Frontage
75’ on Bryn Mawr
Space Availability
- Space
- Size
- Space Use
- Position
- Available
Demising options available.
| Space | Size | Space Use | Position | Available |
| 1st Floor | 4,875 SF | Retail | In-Line | Now |
1st Floor
| Size |
| 4,875 SF |
| Space Use |
| Retail |
| Position |
| In-Line |
| Available |
| Now |
1 of 1
Videos
Matterport 3D Exterior
Matterport 3D Tour
Photos
Street View
Street
Map
1st Floor
| Size | 4,875 SF |
| Space Use | Retail |
| Position | In-Line |
| Available | Now |
Demising options available.
Exceptionally walkable
100/100
Moderately drivable
70/100
Exceptional public transit
90/100
Very bikeable
80/100
Nearby Major Retailers
Property Taxes
| Parcel Number | 14-05-408-011-0000 | Improvements Assessment | $246,331 CAD |
| Land Assessment | $192,046 CAD | Total Assessment | $438,377 CAD |
Property Taxes
Parcel Number
14-05-408-011-0000
Land Assessment
$192,046 CAD
Improvements Assessment
$246,331 CAD
Total Assessment
$438,377 CAD
1 of 8
Videos
Matterport 3D Exterior
Matterport 3D Tour
Photos
Street View
Street
Map
Presented by
1122-1126 W Bryn Mawr Ave
Already a member? Log In
Hmm, there seems to have been an error sending your message. Please try again.
Thanks! Your message was sent.



