Your email has been sent.
HIGHLIGHTS
- Fully climate-controlled manufacturing facility with integrated office space.
- Equipped with 277/480-volt, 3-phase power and on-site compressor for heavy-duty operations.
- Convenient access to Interstate 40, providing strong regional connectivity.
- Five dock-high doors with pit levelers and two drive-in doors for efficient logistics.
- Two clean rooms with roll-up doors designed for specialized production needs.
- Located on 14.14 acres in an M-1 zoned industrial area, offering operational flexibility.
FEATURES
ALL AVAILABLE SPACE(1)
Display Rental Rate as
- SPACE
- SIZE
- TERM
- RENTAL RATE
- SPACE USE
- CONDITION
- AVAILABLE
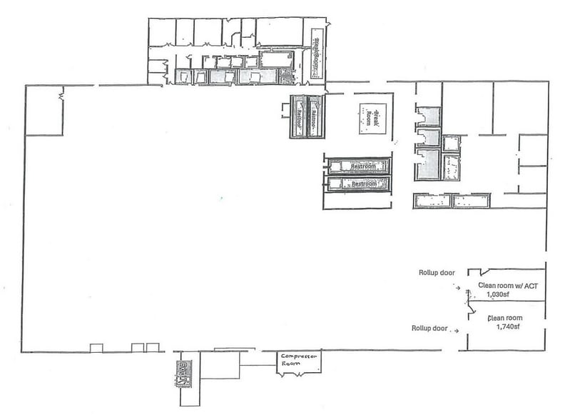
This manufacturing facility offers a highly functional and well-equipped environment for industrial users seeking a strategic location in Conover, North Carolina. The property spans 62,250 square feet and includes a significant office component, providing a balanced mix of administrative and production space. With clear heights ranging from 16 to 17 feet, the building supports a variety of manufacturing and distribution operations. The facility is fully climate-controlled and features robust infrastructure, including 277/480-volt, 3-phase power, and an on-site compressor, ensuring operational efficiency for heavy-duty equipment. The layout includes five dock-high doors with pit levelers and two drive-in doors, facilitating smooth loading and unloading processes. Column spacing of 40’ x 40’ enhances maneuverability within the warehouse, while two clean rooms with roll-up doors provide specialized environments for sensitive production needs. Situated on 14.14 acres and zoned M-1, the property offers ample outdoor space and flexibility for industrial use. Its proximity to major transportation routes, including Interstate 40, ensures excellent regional connectivity for logistics and distribution. This facility is an ideal choice for manufacturers or distributors seeking a turnkey solution in a well-established industrial corridor.
- Lease rate does not include utilities, property expenses or building services
- Fully climate-controlled facility
- 2 drive-in doors for easy access
- Two clean rooms with roll-up doors
- Includes 6,000 SF of dedicated office space
- 5 dock doors with pit levelers
- 277/480V, 3-phase power supply
- On-site compressor included
| Space | Size | Term | Rental Rate | Space Use | Condition | Available |
| 1st Floor | 62,250 SF | Negotiable | $6.43 CAD/SF/YR $0.54 CAD/SF/MO $400,364 CAD/YR $33,364 CAD/MO | Industrial | Partial Build-Out | Now |
1st Floor
| Size |
| 62,250 SF |
| Term |
| Negotiable |
| Rental Rate |
| $6.43 CAD/SF/YR $0.54 CAD/SF/MO $400,364 CAD/YR $33,364 CAD/MO |
| Space Use |
| Industrial |
| Condition |
| Partial Build-Out |
| Available |
| Now |
1st Floor
| Size | 62,250 SF |
| Term | Negotiable |
| Rental Rate | $6.43 CAD/SF/YR |
| Space Use | Industrial |
| Condition | Partial Build-Out |
| Available | Now |
This manufacturing facility offers a highly functional and well-equipped environment for industrial users seeking a strategic location in Conover, North Carolina. The property spans 62,250 square feet and includes a significant office component, providing a balanced mix of administrative and production space. With clear heights ranging from 16 to 17 feet, the building supports a variety of manufacturing and distribution operations. The facility is fully climate-controlled and features robust infrastructure, including 277/480-volt, 3-phase power, and an on-site compressor, ensuring operational efficiency for heavy-duty equipment. The layout includes five dock-high doors with pit levelers and two drive-in doors, facilitating smooth loading and unloading processes. Column spacing of 40’ x 40’ enhances maneuverability within the warehouse, while two clean rooms with roll-up doors provide specialized environments for sensitive production needs. Situated on 14.14 acres and zoned M-1, the property offers ample outdoor space and flexibility for industrial use. Its proximity to major transportation routes, including Interstate 40, ensures excellent regional connectivity for logistics and distribution. This facility is an ideal choice for manufacturers or distributors seeking a turnkey solution in a well-established industrial corridor.
- Lease rate does not include utilities, property expenses or building services
- Includes 6,000 SF of dedicated office space
- Fully climate-controlled facility
- 5 dock doors with pit levelers
- 2 drive-in doors for easy access
- 277/480V, 3-phase power supply
- Two clean rooms with roll-up doors
- On-site compressor included
PROPERTY OVERVIEW
This 62,250-square-foot manufacturing facility in Conover, NC offers a fully climate-controlled environment with a mix of office and production space. The building features 16- to 17-foot clear heights, five dock-high doors with pit levelers, and two drive-in doors for efficient loading. Equipped with 277/480-volt, 3-phase power and an on-site compressor, the property supports heavy-duty operations. Additional amenities include two clean rooms with roll-up doors and 40’ x 40’ column spacing for flexible layouts. Situated on 14.14 acres with M-1 zoning and immediate access to Interstate 40, this facility is ideal for manufacturing or distribution users seeking a strategic location.
WAREHOUSE FACILITY FACTS
SELECT TENANTS
- FLOOR
- TENANT NAME
- INDUSTRY
- 1st
- Amphenol Antennas
- Manufacturing
Presented by
1123 Industrial Dr SW
Hmm, there seems to have been an error sending your message. Please try again.
Thanks! Your message was sent.




