Your email has been sent.
Park Facts
| Total Space Available | 15,725 SF | Park Type | Office Park |
| Total Space Available | 15,725 SF |
| Park Type | Office Park |
All Available Spaces(2)
Display Rental Rate as
- Space
- Size
- Term
- Rental Rate
- Space Use
- Build-Out
- Available
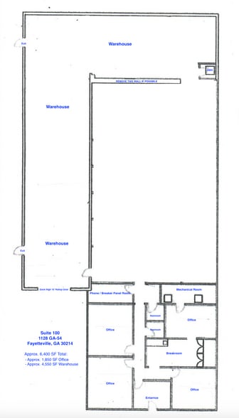
Approx 4,550 SF of warehouse and approx 1,850 SF of office. One dock high roll up door.
- Central Air Conditioning
| Space | Size | Term | Rental Rate | Space Use | Build-Out | Available |
| 1st Floor - 100 | 6,400 SF | 3-10 Years | Upon Request Upon Request Upon Request Upon Request | Industrial | Full Build-Out | Now |
1128-1130 Highway 54 W - 1st Floor - 100
- Space
- Size
- Term
- Rental Rate
- Space Use
- Build-Out
- Available
Suite 200: • 1 roll up door w/adjacent dock pit w/7'x8' Pentalift Dock Leveler & stand. • approx 2,670 SF of warehouse, approx 1,864 sf of office, & 2 restrooms. • 120/240 volt, 100 amp single phase power. • Tenant responsible for electric & gas. • No OPEX Suite 300: • 1 roll up drive-in door • No office or bathroom, but landlord can add. • 120/240 volt, 100 amp single phase power. • Tenant responsible for electric & gas. • No OPEX
| Space | Size | Term | Rental Rate | Space Use | Build-Out | Available |
| 1st Floor - 200/300 | 9,325 SF | 3-10 Years | Upon Request Upon Request Upon Request Upon Request | Flex | Full Build-Out | Now |
1158 Hwy 54 E - 1st Floor - 200/300
1128-1130 Highway 54 W - 1st Floor - 100
| Size | 6,400 SF |
| Term | 3-10 Years |
| Rental Rate | Upon Request |
| Space Use | Industrial |
| Build-Out | Full Build-Out |
| Available | Now |
Approx 4,550 SF of warehouse and approx 1,850 SF of office. One dock high roll up door.
- Central Air Conditioning
1158 Hwy 54 E - 1st Floor - 200/300
| Size | 9,325 SF |
| Term | 3-10 Years |
| Rental Rate | Upon Request |
| Space Use | Flex |
| Build-Out | Full Build-Out |
| Available | Now |
Suite 200: • 1 roll up door w/adjacent dock pit w/7'x8' Pentalift Dock Leveler & stand. • approx 2,670 SF of warehouse, approx 1,864 sf of office, & 2 restrooms. • 120/240 volt, 100 amp single phase power. • Tenant responsible for electric & gas. • No OPEX Suite 300: • 1 roll up drive-in door • No office or bathroom, but landlord can add. • 120/240 volt, 100 amp single phase power. • Tenant responsible for electric & gas. • No OPEX
Site Plan
Select Tenants at This Property
- Floor
- Tenant Name
- Industry
- 1st
- Atlantic Tape Company
- Manufacturing
- 1st
- Tony's Warehouse
- Transportation and Warehousing
Presented by
1128-1130 Highway 54 W | Fayetteville, GA 30214
Hmm, there seems to have been an error sending your message. Please try again.
Thanks! Your message was sent.







