Log In/Sign Up
Your email has been sent.
INVESTMENT HIGHLIGHTS
- Excellent Forest, Virginia Location
- Open Floor plan with enginered flooring system
- 2 Buildings
EXECUTIVE SUMMARY
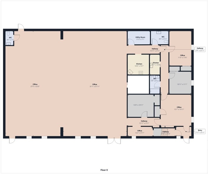
1179 Thomas Jefferson Road and 1296 Burnbridge Road in Forest offers 2 Commercial Buildings on 1 parcel located in a prime Forest, Va location with ample road frontage on Thomas Jefferson & Burnbridge Road. This is a great central location in a rapidly growing area of Bedford County with close access to Main artery of U.S. Route 221. The main building is currently owner occupied, by Winey Chicks Boutique. The cottage located at the rear of the property is available for lease and was formerly occupied by a massage studio. Buildings offer great income potential for investor, with plenty of upside potential.
Building 1
1179 Thomas Jefferson Road
-78 Acre lot zoned C-2 permitting a wide variety of commercial uses.
-6,885 SF Masonry Building built in 2007.
-Featuring Energy efficient ICF Poured Concrete Construction.
-5,076 SF Min Level with open floor plan plus additional 1600 SF adjacent office.
-5 private offices, conference room, kitchen area, laundry room, with w/d and 1 full and 2 half bath.
-2nd floor mezzanine area contains 1,600 SF of unfinished area with private entrance.
-37 paved parking spaces
-County water and Sewer on site.
Building 2
1296 Burnbridge Road
-Two story Victorian cottage offering a total of 1,830 SF with featuring 5 offices, 1 full bath.
-Central heat and air. Originally built in 1907 and renovated.
-Public water and sewer.
-Excellent visibility from Burnbridge Road with easy access to Route 811.
-Perfect location for area professionals.
Video Tour Link Here: https://tour.giraffe360.com/8b1fe73c2c4743e690617b6a6bcd6e7f/
https://tour.giraffe360.com/8b1fe73c2c4743e690617b6a6bcd6e7f/?lsf=1
Land/Site
The site is approximately 0.779 Acres in size or 33,993 SF. The shape is 169.96 x 350 with 169.96 fronting on Thomas Jefferson Road and is slightly irregular with level topography. The site offers 1,300 Square Yards of asphalt paved parking area. County water and Sewer service both buildings and the property is zoned C-2 general commercial.
Building 1
1179 Thomas Jefferson Road
-78 Acre lot zoned C-2 permitting a wide variety of commercial uses.
-6,885 SF Masonry Building built in 2007.
-Featuring Energy efficient ICF Poured Concrete Construction.
-5,076 SF Min Level with open floor plan plus additional 1600 SF adjacent office.
-5 private offices, conference room, kitchen area, laundry room, with w/d and 1 full and 2 half bath.
-2nd floor mezzanine area contains 1,600 SF of unfinished area with private entrance.
-37 paved parking spaces
-County water and Sewer on site.
Building 2
1296 Burnbridge Road
-Two story Victorian cottage offering a total of 1,830 SF with featuring 5 offices, 1 full bath.
-Central heat and air. Originally built in 1907 and renovated.
-Public water and sewer.
-Excellent visibility from Burnbridge Road with easy access to Route 811.
-Perfect location for area professionals.
Video Tour Link Here: https://tour.giraffe360.com/8b1fe73c2c4743e690617b6a6bcd6e7f/
https://tour.giraffe360.com/8b1fe73c2c4743e690617b6a6bcd6e7f/?lsf=1
Land/Site
The site is approximately 0.779 Acres in size or 33,993 SF. The shape is 169.96 x 350 with 169.96 fronting on Thomas Jefferson Road and is slightly irregular with level topography. The site offers 1,300 Square Yards of asphalt paved parking area. County water and Sewer service both buildings and the property is zoned C-2 general commercial.
TAXES & OPERATING EXPENSES (ACTUAL - 2025) Click Here to Access |
ANNUAL (CAD) | ANNUAL PER SF (CAD) |
|---|---|---|
| Taxes |
-
|
-
|
| Operating Expenses |
-
|
-
|
| Total Expenses |
$99,999
|
$9.99
|
TAXES & OPERATING EXPENSES (ACTUAL - 2025) Click Here to Access
| Taxes (CAD) | |
|---|---|
| Annual | - |
| Annual Per SF | - |
| Operating Expenses (CAD) | |
|---|---|
| Annual | - |
| Annual Per SF | - |
| Total Expenses (CAD) | |
|---|---|
| Annual | $99,999 |
| Annual Per SF | $9.99 |
PROPERTY FACTS
Sale Type
Owner User
Property Type
Building Size
6,885 SF
Building Class
B
Year Built
2007
Price
$1,631,052 CAD
Price Per SF
$236.90 CAD
Tenancy
Multiple
Building Height
2 Stories
Building FAR
0.21
Lot Size
0.77 AC
Zoning
C-2, General Commercial - Zoned C-2 General Commercial permitting a Wide Variety of Uses.
Parking
37 Spaces (5.37 Spaces per 1,000 SF Leased)
Frontage
150’ on Thomas Jefferson Road
AMENITIES
- Security System
- Signage
- Monument Signage
- Air Conditioning
NEARBY MAJOR RETAILERS
1 of 50
VIDEOS
MATTERPORT 3D EXTERIOR
MATTERPORT 3D TOUR
PHOTOS
STREET VIEW
STREET
MAP
Presented by
1129 Thomas Jefferson Rd
Already a member? Log In
Hmm, there seems to have been an error sending your message. Please try again.
Thanks! Your message was sent.




