Your email has been sent.
Highlights
- Heavy daytime traffic
- Lots of natural light
- Area Growth & Adaptive Reuse Appeal
- Proximity to NC 150 (River Highway)
All Available Space(1)
Display Rental Rate as
- Space
- Size
- Term
- Rental Rate
- Space Use
- Build-Out
- Available
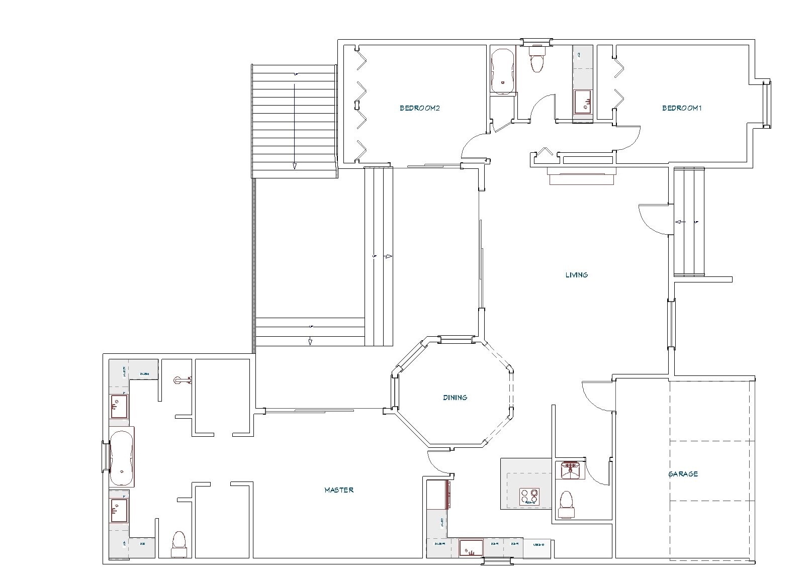
This single-story, ~2,185 sq ft residence (3 beds/3 full baths, built 1996) offers an open, flexible layout primed for professional office or medical conversion with minimal effort, this is a plus to get this space up to your liking! Main Living Area: Large, vaulted-ceiling open living room with abundant natural light, hardwood floors, fireplace, and seamless flow to bay-window dining—ideal for reception/waiting areas, collaborative workspaces, or multi-purpose zones. Dining & Kitchen: Distinctive octagonal dining room adjacent to kitchen—perfect for break room, small meeting space, or staff lounge. Private Suites: Suits executive office or private consultation room; two additional bedrooms (one with en-suite bath) provide flexible private offices, exam/consult rooms, or staff areas. Support Spaces: 2.5 baths throughout; attached 3-car garage + large driveway for 7+ parking spaces; mud/laundry room for storage/utilities. Condition & TI Focus: Requires primarily cosmetic tenant improvements (e.g., fresh paint, modern flooring/lighting, minor partitioning for reception counters or accessibility tweaks, signage) quick, low-cost customization to suit tenant branding and operations. Outdoor/Expansion: Plenty of room for additional parking, landscaping, outdoor client amenities, or approved expansions.
- Lease rate does not include utilities, property expenses or building services
- Open Floor Plan Layout
- Private Restrooms
- Natural Light
- Fully Built-Out as Standard Office
- Space In Need of Renovation
- High Ceilings
- Open-Plan
| Space | Size | Term | Rental Rate | Space Use | Build-Out | Available |
| 1st Floor | 2,185 SF | Negotiable | $30.37 CAD/SF/YR $2.53 CAD/SF/MO $66,368 CAD/YR $5,531 CAD/MO | Office/Medical | Full Build-Out | Now |
1st Floor
| Size |
| 2,185 SF |
| Term |
| Negotiable |
| Rental Rate |
| $30.37 CAD/SF/YR $2.53 CAD/SF/MO $66,368 CAD/YR $5,531 CAD/MO |
| Space Use |
| Office/Medical |
| Build-Out |
| Full Build-Out |
| Available |
| Now |
1st Floor
| Size | 2,185 SF |
| Term | Negotiable |
| Rental Rate | $30.37 CAD/SF/YR |
| Space Use | Office/Medical |
| Build-Out | Full Build-Out |
| Available | Now |
This single-story, ~2,185 sq ft residence (3 beds/3 full baths, built 1996) offers an open, flexible layout primed for professional office or medical conversion with minimal effort, this is a plus to get this space up to your liking! Main Living Area: Large, vaulted-ceiling open living room with abundant natural light, hardwood floors, fireplace, and seamless flow to bay-window dining—ideal for reception/waiting areas, collaborative workspaces, or multi-purpose zones. Dining & Kitchen: Distinctive octagonal dining room adjacent to kitchen—perfect for break room, small meeting space, or staff lounge. Private Suites: Suits executive office or private consultation room; two additional bedrooms (one with en-suite bath) provide flexible private offices, exam/consult rooms, or staff areas. Support Spaces: 2.5 baths throughout; attached 3-car garage + large driveway for 7+ parking spaces; mud/laundry room for storage/utilities. Condition & TI Focus: Requires primarily cosmetic tenant improvements (e.g., fresh paint, modern flooring/lighting, minor partitioning for reception counters or accessibility tweaks, signage) quick, low-cost customization to suit tenant branding and operations. Outdoor/Expansion: Plenty of room for additional parking, landscaping, outdoor client amenities, or approved expansions.
- Lease rate does not include utilities, property expenses or building services
- Fully Built-Out as Standard Office
- Open Floor Plan Layout
- Space In Need of Renovation
- Private Restrooms
- High Ceilings
- Natural Light
- Open-Plan
Property Overview
Zoned RO (Residential Office) in Iredell County, it's approved for professional uses like medical practices, law offices, accounting, consulting, therapy, or real estate—offering a calm, welcoming vibe away from busy roads. Open, light-filled layout with vaulted ceilings, hardwood floors, fireplace, and easy-flow spaces—perfect for reception areas, private offices, exam rooms, or collaborative zones. Flexible rooms: Master suite with patio access (ideal executive space), two extra bedrooms/baths for staff or clients, plus an octagonal dining area for meetings or breaks. Ample parking (3-car garage + big driveway) and room to grow. Mostly cosmetic updates needed—negotiable tenant improvements (paint, lighting, flooring, minor tweaks) let you customize quickly and affordably (owner approval required). Prime Location + Growth Perks: Nestled in booming Lake Norman/Mooresville—minutes from I-77, retail, dining, and top employers. Enjoy the tranquil setting clients love, while benefiting from the ongoing NC 150 (River Highway) widening—adding lanes, new bridges over I-77 and Lake Norman, and smoother access (project actively underway, enhancing connectivity through 2030). In a market hungry for flexible, low-vacancy professional spaces, this is your chance to create a standout, personalized workspace in one of NC's hottest areas.
Property Facts
Presented by
113 Quiet Cove
Hmm, there seems to have been an error sending your message. Please try again.
Thanks! Your message was sent.





