Your email has been sent.
Bridgewater Corporate Center 11325 Random Hills Rd 895 - 46,457 SF of 4-Star Office Space Available in Fairfax, VA 22030



Highlights
- Building signage available for a large user
- 3-story covered executive parking available
- Located in Fairfax Center with easy access to I-66 and Route 50
- On-site deli & Bank, with other retail & hotels across the street
All Available Spaces(6)
Display Rental Rate as
- Space
- Size
- Term
- Rental Rate
- Space Use
- Build-Out
- Available
- Rate includes utilities, building services and property expenses
- Office intensive layout
- Finished Ceilings: 9’
- Fully Built-Out as Standard Office
- Fits 9 - 28 People
- Space is in Excellent Condition
Great open plan concept.
- Rate includes utilities, building services and property expenses
- Mostly Open Floor Plan Layout
- Fully Built-Out as Standard Office
- Fits 19 - 59 People
- Rate includes utilities, building services and property expenses
- Mostly Open Floor Plan Layout
- Fully Built-Out as Standard Office
- Fits 17 - 52 People
- Rate includes utilities, building services and property expenses
- Office intensive layout
- Fully Built-Out as Standard Office
- Fits 6 - 19 People
Open plan layout with exposed ceilings, concrete flooring, built in workstations, large expandable conference center & building signage available. Space is in excellent condition. Space can also be made available sooner in the 4th quarter of 2020.
- Rate includes utilities, building services and property expenses
- Mostly Open Floor Plan Layout
- Finished Ceilings: 9’
- Fully Built-Out as Standard Office
- Fits 25 - 292 People
- Space is in Excellent Condition
- Rate includes utilities, building services and property expenses
- Office intensive layout
- Fully Built-Out as Standard Office
- Fits 3 - 8 People
| Space | Size | Term | Rental Rate | Space Use | Build-Out | Available |
| 1st Floor, Ste 110 | 3,385 SF | 1-3 Years | $45.22 CAD/SF/YR $3.77 CAD/SF/MO $153,082 CAD/YR $12,757 CAD/MO | Office | Full Build-Out | Now |
| 2nd Floor, Ste 200 | 7,224 SF | 5-10 Years | $45.22 CAD/SF/YR $3.77 CAD/SF/MO $326,695 CAD/YR $27,225 CAD/MO | Office | Full Build-Out | Now |
| 3rd Floor, Ste 300 | 6,460 SF | Negotiable | $45.22 CAD/SF/YR $3.77 CAD/SF/MO $292,144 CAD/YR $24,345 CAD/MO | Office | Full Build-Out | Now |
| 4th Floor, Ste 401 | 2,283 SF | Negotiable | $45.22 CAD/SF/YR $3.77 CAD/SF/MO $103,245 CAD/YR $8,604 CAD/MO | Office | Full Build-Out | Now |
| 5th Floor, Ste 500 | 26,210 SF | 5-10 Years | $45.22 CAD/SF/YR $3.77 CAD/SF/MO $1,185,309 CAD/YR $98,776 CAD/MO | Office | Full Build-Out | Now |
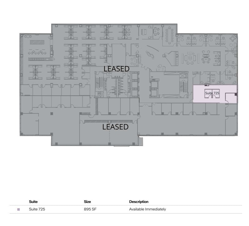
| 7th Floor, Ste 725 | 895 SF | Negotiable | $45.22 CAD/SF/YR $3.77 CAD/SF/MO $40,475 CAD/YR $3,373 CAD/MO | Office | Full Build-Out | Now |
1st Floor, Ste 110
| Size |
| 3,385 SF |
| Term |
| 1-3 Years |
| Rental Rate |
| $45.22 CAD/SF/YR $3.77 CAD/SF/MO $153,082 CAD/YR $12,757 CAD/MO |
| Space Use |
| Office |
| Build-Out |
| Full Build-Out |
| Available |
| Now |
2nd Floor, Ste 200
| Size |
| 7,224 SF |
| Term |
| 5-10 Years |
| Rental Rate |
| $45.22 CAD/SF/YR $3.77 CAD/SF/MO $326,695 CAD/YR $27,225 CAD/MO |
| Space Use |
| Office |
| Build-Out |
| Full Build-Out |
| Available |
| Now |
3rd Floor, Ste 300
| Size |
| 6,460 SF |
| Term |
| Negotiable |
| Rental Rate |
| $45.22 CAD/SF/YR $3.77 CAD/SF/MO $292,144 CAD/YR $24,345 CAD/MO |
| Space Use |
| Office |
| Build-Out |
| Full Build-Out |
| Available |
| Now |
4th Floor, Ste 401
| Size |
| 2,283 SF |
| Term |
| Negotiable |
| Rental Rate |
| $45.22 CAD/SF/YR $3.77 CAD/SF/MO $103,245 CAD/YR $8,604 CAD/MO |
| Space Use |
| Office |
| Build-Out |
| Full Build-Out |
| Available |
| Now |
5th Floor, Ste 500
| Size |
| 26,210 SF |
| Term |
| 5-10 Years |
| Rental Rate |
| $45.22 CAD/SF/YR $3.77 CAD/SF/MO $1,185,309 CAD/YR $98,776 CAD/MO |
| Space Use |
| Office |
| Build-Out |
| Full Build-Out |
| Available |
| Now |
7th Floor, Ste 725
| Size |
| 895 SF |
| Term |
| Negotiable |
| Rental Rate |
| $45.22 CAD/SF/YR $3.77 CAD/SF/MO $40,475 CAD/YR $3,373 CAD/MO |
| Space Use |
| Office |
| Build-Out |
| Full Build-Out |
| Available |
| Now |
1st Floor, Ste 110
| Size | 3,385 SF |
| Term | 1-3 Years |
| Rental Rate | $45.22 CAD/SF/YR |
| Space Use | Office |
| Build-Out | Full Build-Out |
| Available | Now |
- Rate includes utilities, building services and property expenses
- Fully Built-Out as Standard Office
- Office intensive layout
- Fits 9 - 28 People
- Finished Ceilings: 9’
- Space is in Excellent Condition
2nd Floor, Ste 200
| Size | 7,224 SF |
| Term | 5-10 Years |
| Rental Rate | $45.22 CAD/SF/YR |
| Space Use | Office |
| Build-Out | Full Build-Out |
| Available | Now |
Great open plan concept.
- Rate includes utilities, building services and property expenses
- Fully Built-Out as Standard Office
- Mostly Open Floor Plan Layout
- Fits 19 - 59 People
3rd Floor, Ste 300
| Size | 6,460 SF |
| Term | Negotiable |
| Rental Rate | $45.22 CAD/SF/YR |
| Space Use | Office |
| Build-Out | Full Build-Out |
| Available | Now |
- Rate includes utilities, building services and property expenses
- Fully Built-Out as Standard Office
- Mostly Open Floor Plan Layout
- Fits 17 - 52 People
4th Floor, Ste 401
| Size | 2,283 SF |
| Term | Negotiable |
| Rental Rate | $45.22 CAD/SF/YR |
| Space Use | Office |
| Build-Out | Full Build-Out |
| Available | Now |
- Rate includes utilities, building services and property expenses
- Fully Built-Out as Standard Office
- Office intensive layout
- Fits 6 - 19 People
5th Floor, Ste 500
| Size | 26,210 SF |
| Term | 5-10 Years |
| Rental Rate | $45.22 CAD/SF/YR |
| Space Use | Office |
| Build-Out | Full Build-Out |
| Available | Now |
Open plan layout with exposed ceilings, concrete flooring, built in workstations, large expandable conference center & building signage available. Space is in excellent condition. Space can also be made available sooner in the 4th quarter of 2020.
- Rate includes utilities, building services and property expenses
- Fully Built-Out as Standard Office
- Mostly Open Floor Plan Layout
- Fits 25 - 292 People
- Finished Ceilings: 9’
- Space is in Excellent Condition
7th Floor, Ste 725
| Size | 895 SF |
| Term | Negotiable |
| Rental Rate | $45.22 CAD/SF/YR |
| Space Use | Office |
| Build-Out | Full Build-Out |
| Available | Now |
- Rate includes utilities, building services and property expenses
- Fully Built-Out as Standard Office
- Office intensive layout
- Fits 3 - 8 People
Property Overview
* Located in Fairfax Center with easy acces to I-66* 8 floors of 26,000 SF* 30' * 30' column spacing* Efficient floor to window ratio* 5 high-speed electric elevators with convenient loading facility* 3-story covered executive parking available* Overlooks lake with pedestrian seating areas* Private exercise facilities with lockers and showers on first floor for tenant use* Retail and hotels across the streetThis building was awarded an Energy Star label in 2010, 2011, 2012 and 2016 for its operating efficiency.This building is LEED GoldIn 2017, this building was awarded LEED certification at the Gold level by the U.S. Green Building Council.
- Banking
- Fitness Center
- Food Service
- Property Manager on Site
- Central Heating
- Air Conditioning
Property Facts
Sustainability
Sustainability
LEED Certification Developed by the U.S. Green Building Council (USGBC), the Leadership in Energy and Environmental Design (LEED) is a green building certification program focused on the design, construction, operation, and maintenance of green buildings, homes, and neighborhoods, which aims to help building owners and operators be environmentally responsible and use resources efficiently. LEED certification is a globally recognized symbol of sustainability achievement and leadership. To achieve LEED certification, a project earns points by adhering to prerequisites and credits that address carbon, energy, water, waste, transportation, materials, health and indoor environmental quality. Projects go through a verification and review process and are awarded points that correspond to a level of LEED certification: Platinum (80+ points) Gold (60-79 points) Silver (50-59 points) Certified (40-49 points)
Presented by
Bridgewater Corporate Center | 11325 Random Hills Rd
Hmm, there seems to have been an error sending your message. Please try again.
Thanks! Your message was sent.













