Log In/Sign Up
Your email has been sent.
Investment Highlights
- Part-complete retail-to-residential conversion project
- Close to amenities, transport and major employment hubs
- Full planning permission granted for 6 apartments
Executive Summary
Lot 502 is available by way of Savills Online Auction 31st March 2026.
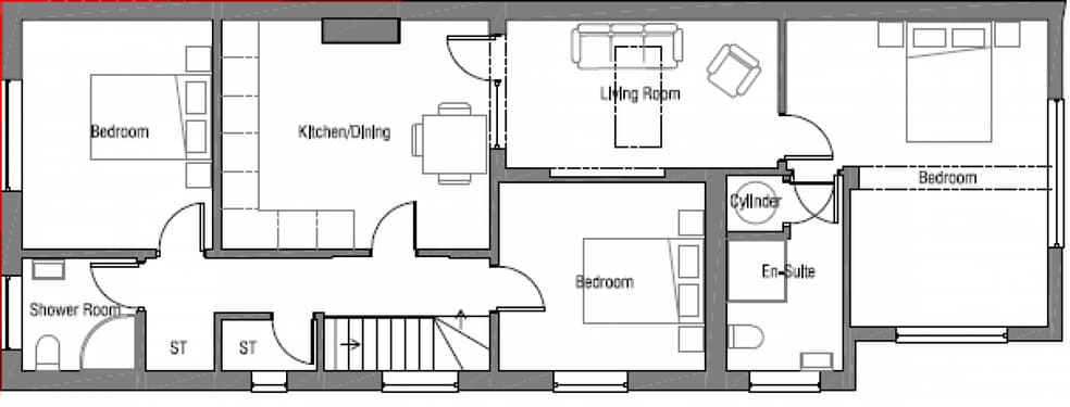
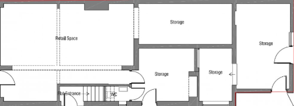
A part-complete retail to residential conversion with full planning permission for six apartments (one three-bedroom unit, three two-bedroom units and two one-bedroom units), including an extension and amenity space to the rear, well located for the shopping and recreational amenities of Didcot - Vacant
A part-complete retail to residential conversion with full planning permission for six apartments (one three-bedroom unit, three two-bedroom units and two one-bedroom units), including an extension and amenity space to the rear, well located for the shopping and recreational amenities of Didcot - Vacant
Property Facts
Sale Type
Investment or Owner User
Sale Condition
Auction Sale
Property Type
Retail
Tenure
Freehold
Property Subtype
Storefront Retail/Office
Building Size
1,438 SF
Building Class
B
Year Built
1905
Price
$652,049 CAD
Price Per SF
$453.44 CAD
Tenancy
Single
Building Height
3 Stories
Frontage
21’ on Broadway
Amenities
- Dedicated Turn Lane
- Storage Space
1 1
Nearby Major Retailers
1 of 21
Videos
Matterport 3D Exterior
Matterport 3D Tour
Photos
Street View
Street
Map
1 of 1
Presented by
114 Broadway
Already a member? Log In
Hmm, there seems to have been an error sending your message. Please try again.
Thanks! Your message was sent.



