Your email has been sent.
Highlights
- Easy access to the 91 freeway, close to shopping centers, grocery stores, gas stations, and more!
- Walking distance to multiple retail amenities
- 2:1 parking ratio
Features
All Available Spaces(2)
Display Rental Rate as
- Space
- Size
- Term
- Rental Rate
- Space Use
- Build-Out
- Available
This unit features one large reception area, one private office, one restroom, and a spacious warehouse with an overhead door. No cannabis uses accepted. $2,112/month plus CAM *Availability, rates and terms are subject to change without notice.
- Listed rate may not include certain utilities, building services and property expenses
- Central Air and Heating
- Private Restrooms
- Space is in Excellent Condition
- Reception Area
- Natural Light
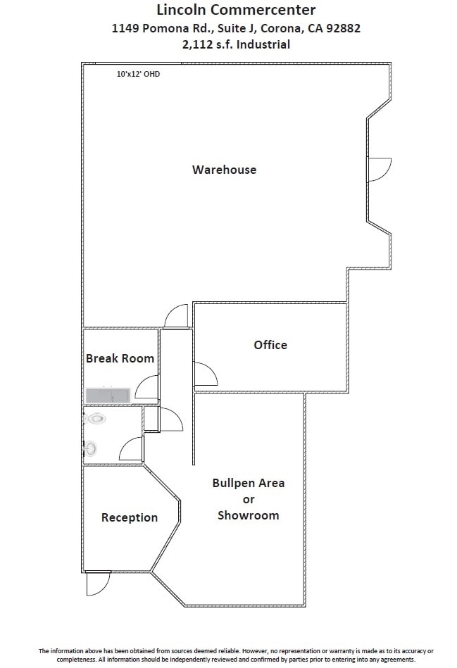
This unit features one reception area, one showroom or large bullpen area, one private office, one restroom, a breakroom, and a spacious warehouse with an overhead door. Note that the showroom/bullpen area can be divided into two private offices upon request. Corner unit with ample parking available. No cannabis uses accepted. $3,274/month plus CAM *Availability, rates and terms are subject to change without notice.
- Listed rate may not include certain utilities, building services and property expenses
- Central Air and Heating
- Private Restrooms
- 1 Drive Bay
- Reception Area
- Natural Light
| Space | Size | Term | Rental Rate | Space Use | Build-Out | Available |
| 1st Floor - 1149-H | 1,320 SF | 2 Years | $26.07 CAD/SF/YR $2.17 CAD/SF/MO $34,417 CAD/YR $2,868 CAD/MO | Industrial | - | Now |
| 1st Floor - 1149-J | 2,112 SF | 2 Years | $25.26 CAD/SF/YR $2.10 CAD/SF/MO $53,347 CAD/YR $4,446 CAD/MO | Industrial | Full Build-Out | Now |
1st Floor - 1149-H
| Size |
| 1,320 SF |
| Term |
| 2 Years |
| Rental Rate |
| $26.07 CAD/SF/YR $2.17 CAD/SF/MO $34,417 CAD/YR $2,868 CAD/MO |
| Space Use |
| Industrial |
| Build-Out |
| - |
| Available |
| Now |
1st Floor - 1149-J
| Size |
| 2,112 SF |
| Term |
| 2 Years |
| Rental Rate |
| $25.26 CAD/SF/YR $2.10 CAD/SF/MO $53,347 CAD/YR $4,446 CAD/MO |
| Space Use |
| Industrial |
| Build-Out |
| Full Build-Out |
| Available |
| Now |
1st Floor - 1149-H
| Size | 1,320 SF |
| Term | 2 Years |
| Rental Rate | $26.07 CAD/SF/YR |
| Space Use | Industrial |
| Build-Out | - |
| Available | Now |
This unit features one large reception area, one private office, one restroom, and a spacious warehouse with an overhead door. No cannabis uses accepted. $2,112/month plus CAM *Availability, rates and terms are subject to change without notice.
- Listed rate may not include certain utilities, building services and property expenses
- Space is in Excellent Condition
- Central Air and Heating
- Reception Area
- Private Restrooms
- Natural Light
1st Floor - 1149-J
| Size | 2,112 SF |
| Term | 2 Years |
| Rental Rate | $25.26 CAD/SF/YR |
| Space Use | Industrial |
| Build-Out | Full Build-Out |
| Available | Now |
This unit features one reception area, one showroom or large bullpen area, one private office, one restroom, a breakroom, and a spacious warehouse with an overhead door. Note that the showroom/bullpen area can be divided into two private offices upon request. Corner unit with ample parking available. No cannabis uses accepted. $3,274/month plus CAM *Availability, rates and terms are subject to change without notice.
- Listed rate may not include certain utilities, building services and property expenses
- 1 Drive Bay
- Central Air and Heating
- Reception Area
- Private Restrooms
- Natural Light
Property Overview
Office and Industrial suites. Flexible zoning allows for multiple uses. Loading doors. 100-200 Amps, 120/208 volt, 3 phase. 2:1 parking ratio. Skylights in all suites. Close proximity to the 91 freeway on/off ramp. Walking distance to multiple retail amenities.
Warehouse Facility Facts
Presented by
1141 W Pomona Rd
Hmm, there seems to have been an error sending your message. Please try again.
Thanks! Your message was sent.








