Log In/Sign Up
Your email has been sent.
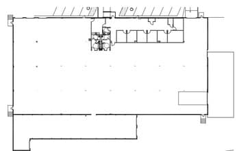
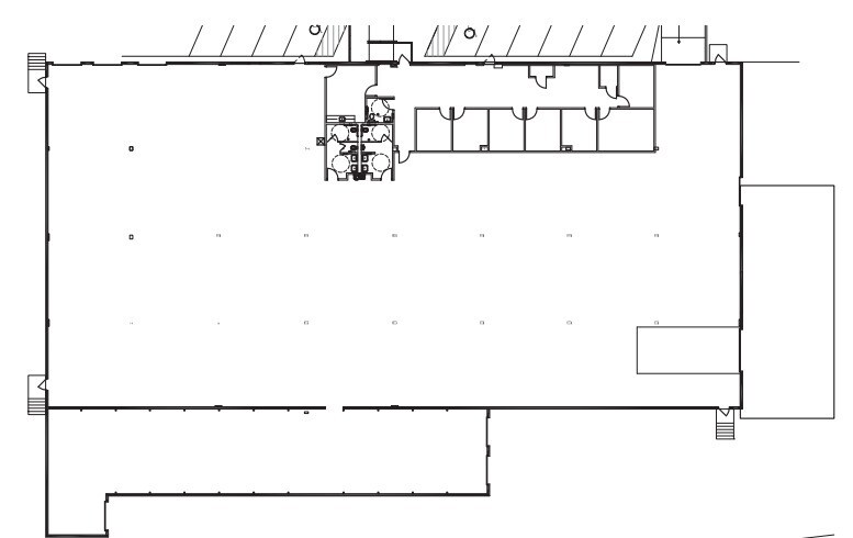
11436-11440 Schenk Dr 24,900 SF Vacant Industrial Building Maryland Heights, MO 63043 $4,635,273 CAD ($186.16 CAD/SF)



PROPERTY FACTS
| Price | $4,635,273 CAD | Rentable Building Area | 24,900 SF |
| Price Per SF | $186.16 CAD | No. Stories | 1 |
| Sale Type | Investment or Owner User | Year Built | 1970 |
| Property Type | Industrial | Parking Ratio | 1/1,000 SF |
| Property Subtype | Manufacturing | Clear Ceiling Height | 15’6” |
| Building Class | C | No. Dock-High Doors/Loading | 8 |
| Lot Size | 1.77 AC | No. Drive In / Grade-Level Doors | 1 |
| Zoning | M-1 - Light Industrial | ||
| Price | $4,635,273 CAD |
| Price Per SF | $186.16 CAD |
| Sale Type | Investment or Owner User |
| Property Type | Industrial |
| Property Subtype | Manufacturing |
| Building Class | C |
| Lot Size | 1.77 AC |
| Rentable Building Area | 24,900 SF |
| No. Stories | 1 |
| Year Built | 1970 |
| Parking Ratio | 1/1,000 SF |
| Clear Ceiling Height | 15’6” |
| No. Dock-High Doors/Loading | 8 |
| No. Drive In / Grade-Level Doors | 1 |
| Zoning | M-1 - Light Industrial |
AMENITIES
- Floor Drains
SPACE AVAILABILITY
- SPACE
- SIZE
- SPACE USE
- CONDITION
- AVAILABLE
| Space | Size | Space Use | Condition | Available |
| 1st Floor | 24,900 SF | Industrial | Full Build-Out | Now |
1st Floor
| Size |
| 24,900 SF |
| Space Use |
| Industrial |
| Condition |
| Full Build-Out |
| Available |
| Now |
1 of 1
VIDEOS
MATTERPORT 3D EXTERIOR
MATTERPORT 3D TOUR
PHOTOS
STREET VIEW
STREET
MAP
1st Floor
| Size | 24,900 SF |
| Space Use | Industrial |
| Condition | Full Build-Out |
| Available | Now |
1 1
PROPERTY TAXES
| Parcel Number | 14N-33-0361 | Improvements Assessment | $720,909 CAD |
| Land Assessment | $103,950 CAD | Total Assessment | $824,859 CAD |
PROPERTY TAXES
Parcel Number
14N-33-0361
Land Assessment
$103,950 CAD
Improvements Assessment
$720,909 CAD
Total Assessment
$824,859 CAD
1 of 6
VIDEOS
MATTERPORT 3D EXTERIOR
MATTERPORT 3D TOUR
PHOTOS
STREET VIEW
STREET
MAP
1 of 1
Presented by
11436-11440 Schenk Dr
Already a member? Log In
Hmm, there seems to have been an error sending your message. Please try again.
Thanks! Your message was sent.


