Your email has been sent.
Highlights
- Best East/West Ingress/Egress in Upper GSW via I-30 Six Flags Exit
- 12 Minutes to DFW Airport
- Excellent Labor Base
- Immediate Access to Interstate 30 and State Highway 360
- Located in the Heart of Core GSW
Features
All Available Space(1)
Display Rental Rate as
- Space
- Size
- Term
- Rental Rate
- Space Use
- Build-Out
- Available
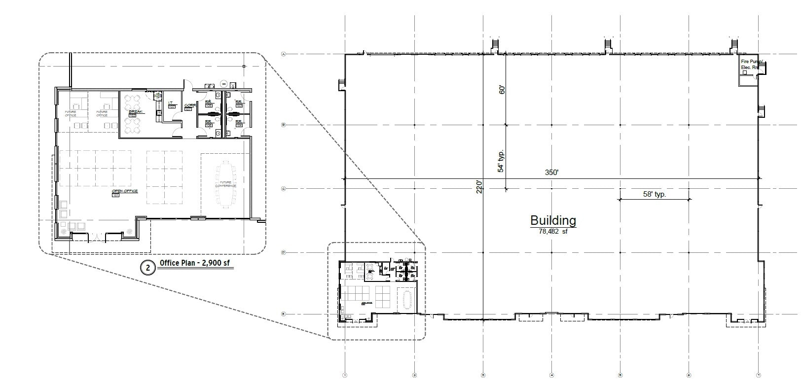
• 78,482 SF • 2,900 SF Spec Office • ESFR Sprinkler System • 15 Dock High Doors • 1 Grade Level Door (20’ x 20’) • 89 Parking Spaces • 220’ Building Depth • Front Park/Rear Load Configuration • 32’ Clear Height • 127’ Truck Court • Typical Column Spacing – 58’ x 54’ • 500 KVA Transformer with a 1,200 Amp Service - Heavy Power Ready • 6,000 SF Linear Park Tenant Amenity • Up to 1 Acre of Outdoor Storage
- 1 Drive Bay
- 15 Loading Docks
- Space is in Excellent Condition
| Space | Size | Term | Rental Rate | Space Use | Build-Out | Available |
| 1st Floor | 25,000-78,482 SF | Negotiable | Upon Request Upon Request Upon Request Upon Request | Industrial | Shell Space | Now |
1st Floor
| Size |
| 25,000-78,482 SF |
| Term |
| Negotiable |
| Rental Rate |
| Upon Request Upon Request Upon Request Upon Request |
| Space Use |
| Industrial |
| Build-Out |
| Shell Space |
| Available |
| Now |
1st Floor
| Size | 25,000-78,482 SF |
| Term | Negotiable |
| Rental Rate | Upon Request |
| Space Use | Industrial |
| Build-Out | Shell Space |
| Available | Now |
• 78,482 SF • 2,900 SF Spec Office • ESFR Sprinkler System • 15 Dock High Doors • 1 Grade Level Door (20’ x 20’) • 89 Parking Spaces • 220’ Building Depth • Front Park/Rear Load Configuration • 32’ Clear Height • 127’ Truck Court • Typical Column Spacing – 58’ x 54’ • 500 KVA Transformer with a 1,200 Amp Service - Heavy Power Ready • 6,000 SF Linear Park Tenant Amenity • Up to 1 Acre of Outdoor Storage
- 1 Drive Bay
- Space is in Excellent Condition
- 15 Loading Docks
Property Overview
- New Development with Prime Access to I-30 in Core GSW - Standalone Building - Best East/West Ingress/Egress in Upper GSW via I-30 Six Flags Exit - Immediate Access to Interstate 30 and State Highway 360 - 12 Minutes to DFW Airport
Warehouse Facility Facts
Presented by
Box 30/360 | 1145 107th St.
Hmm, there seems to have been an error sending your message. Please try again.
Thanks! Your message was sent.







