Your email has been sent.
John Robson Place 1145-1155 Robson St 812 - 20,286 SF of Office Space Available in Vancouver, BC V6E 1B5



Highlights
- Upgraded lobby, washrooms and façade
- On-site parking and storage
- Professional on-site management
- Fibre connection available
- Intercom feature and key card access
All Available Spaces(10)
Display Rental Rate as
- Space
- Size
- Term
- Rental Rate
- Space Use
- Build-Out
- Available
Recently improved to a high standard. Consisting of lounges, reception and a waiting area. Zoned for education use, 7 classrooms, lounge areas, administrative offices, washrooms and reception.
- Lease rate does not include utilities, property expenses or building services
- Mostly Open Floor Plan Layout
- 7 Private Offices
- Reception Area
- Common boardroom.
- Professionally managed.
- Fully Built-Out as Standard Office
- Fits 17 - 52 People
- Central Air and Heating
- Private Restrooms
- Bike storage.
Suite includes 6 private offices, one large boardroom, kitchenette and open space. Can be combined with suite 406.
- Lease rate does not include utilities, property expenses or building services
- Mostly Open Floor Plan Layout
- 6 Private Offices
- Can be combined with additional space(s) for up to 3,944 SF of adjacent space
- Kitchen
- Bike storage.
- Fully Built-Out as Standard Office
- Fits 7 - 21 People
- 1 Conference Room
- Central Air and Heating
- Open floor plan
- Professionally managed.
See floor plan. Contact listing agents for additional inforamtion.
- Lease rate does not include utilities, property expenses or building services
- 2 Private Offices
- Can be combined with additional space(s) for up to 3,944 SF of adjacent space
- Common boardroom.
- Professionally managed.
- Open Floor Plan Layout
- 1 Conference Room
- Central Air and Heating
- Bike storage.
This suite features one large office or meeting area, server/storage space, open work area, and direct access to private balcony
- Fully Built-Out as Standard Office
- Fits 3 - 7 People
- Open-Plan
- Mostly Open Floor Plan Layout
- Print/Copy Room
- Open plan allows for tenant customization.
Robson facing unit consisting of two offices and a meeting room with open work area.
- Lease rate does not include utilities, property expenses or building services
- Mostly Open Floor Plan Layout
- 2 Private Offices
- Central Air and Heating
- Mix of open area and offices.
- Partially Built-Out as Standard Office
- Fits 4 - 11 People
- 1 Conference Room
- Natural Light
Three offices, open work area and a large boardroom. SE city views, reception area and storage/telecom room.
- Lease rate does not include utilities, property expenses or building services
- Mostly Open Floor Plan Layout
- 3 Private Offices
- Central Air and Heating
- Secure Storage
- Bike storage.
- Fully Built-Out as Standard Office
- Fits 6 - 17 People
- 1 Conference Room
- Reception Area
- Common boardroom.
- Professionally managed.
Open plan ready for tenant improvements.
- Open Floor Plan Layout
- Natural Light
- Fits 3 - 7 People
- Open plan allows for tenant customization.
Mostly open plan with one large meeting room/ executive office space.
- Fully Built-Out as Standard Office
- Fits 3 - 8 People
- Meeting room included.
- Mostly Open Floor Plan Layout
- 1 Conference Room
One office and a meeting room with a vast efficient open work area. New open ceiling concept with LED lighting.
- Lease rate does not include utilities, property expenses or building services
- Open Floor Plan Layout
- Central Air and Heating
- One office space
- Ample natural light.
- Partially Built-Out as Standard Office
- Fits 8 - 24 People
- Natural Light
- Large open area
Improved with 4 private offices, kitchen, and reception area
- Lease rate does not include utilities, property expenses or building services
- Mostly Open Floor Plan Layout
- 4 Private Offices
- Natural Light
- Windows provide ample natural light.
- Fully Built-Out as Standard Office
- Fits 3 - 8 People
- Reception Area
- Kitchen area included for tenants.
| Space | Size | Term | Rental Rate | Space Use | Build-Out | Available |
| 1st Floor, Ste 88 | 6,445 SF | Negotiable | Upon Request Upon Request Upon Request Upon Request | Office | Full Build-Out | Now |
| 4th Floor, Ste 400 | 2,588 SF | Negotiable | Upon Request Upon Request Upon Request Upon Request | Office | Full Build-Out | Now |
| 4th Floor, Ste 406 | 1,356 SF | Negotiable | Upon Request Upon Request Upon Request Upon Request | Office | Shell Space | Now |
| 4th Floor, Ste 415 | 812 SF | Negotiable | Upon Request Upon Request Upon Request Upon Request | Office | Full Build-Out | Now |
| 5th Floor, Ste 503 | 1,356 SF | 1-10 Years | Upon Request Upon Request Upon Request Upon Request | Office | Partial Build-Out | Now |
| 5th Floor, Ste 505 | 2,020 SF | Negotiable | Upon Request Upon Request Upon Request Upon Request | Office | Full Build-Out | Now |
| 5th Floor, Ste 507 | 861 SF | Negotiable | Upon Request Upon Request Upon Request Upon Request | Office | Spec Suite | Now |
| 5th Floor, Ste 509 | 994 SF | Negotiable | Upon Request Upon Request Upon Request Upon Request | Office | Full Build-Out | Now |
| 5th Floor, Ste 510 | 2,927 SF | Negotiable | Upon Request Upon Request Upon Request Upon Request | Office | Partial Build-Out | Now |
| 7th Floor, Ste 708 | 927 SF | Negotiable | Upon Request Upon Request Upon Request Upon Request | Office | Full Build-Out | Now |
1st Floor, Ste 88
| Size |
| 6,445 SF |
| Term |
| Negotiable |
| Rental Rate |
| Upon Request Upon Request Upon Request Upon Request |
| Space Use |
| Office |
| Build-Out |
| Full Build-Out |
| Available |
| Now |
4th Floor, Ste 400
| Size |
| 2,588 SF |
| Term |
| Negotiable |
| Rental Rate |
| Upon Request Upon Request Upon Request Upon Request |
| Space Use |
| Office |
| Build-Out |
| Full Build-Out |
| Available |
| Now |
4th Floor, Ste 406
| Size |
| 1,356 SF |
| Term |
| Negotiable |
| Rental Rate |
| Upon Request Upon Request Upon Request Upon Request |
| Space Use |
| Office |
| Build-Out |
| Shell Space |
| Available |
| Now |
4th Floor, Ste 415
| Size |
| 812 SF |
| Term |
| Negotiable |
| Rental Rate |
| Upon Request Upon Request Upon Request Upon Request |
| Space Use |
| Office |
| Build-Out |
| Full Build-Out |
| Available |
| Now |
5th Floor, Ste 503
| Size |
| 1,356 SF |
| Term |
| 1-10 Years |
| Rental Rate |
| Upon Request Upon Request Upon Request Upon Request |
| Space Use |
| Office |
| Build-Out |
| Partial Build-Out |
| Available |
| Now |
5th Floor, Ste 505
| Size |
| 2,020 SF |
| Term |
| Negotiable |
| Rental Rate |
| Upon Request Upon Request Upon Request Upon Request |
| Space Use |
| Office |
| Build-Out |
| Full Build-Out |
| Available |
| Now |
5th Floor, Ste 507
| Size |
| 861 SF |
| Term |
| Negotiable |
| Rental Rate |
| Upon Request Upon Request Upon Request Upon Request |
| Space Use |
| Office |
| Build-Out |
| Spec Suite |
| Available |
| Now |
5th Floor, Ste 509
| Size |
| 994 SF |
| Term |
| Negotiable |
| Rental Rate |
| Upon Request Upon Request Upon Request Upon Request |
| Space Use |
| Office |
| Build-Out |
| Full Build-Out |
| Available |
| Now |
5th Floor, Ste 510
| Size |
| 2,927 SF |
| Term |
| Negotiable |
| Rental Rate |
| Upon Request Upon Request Upon Request Upon Request |
| Space Use |
| Office |
| Build-Out |
| Partial Build-Out |
| Available |
| Now |
7th Floor, Ste 708
| Size |
| 927 SF |
| Term |
| Negotiable |
| Rental Rate |
| Upon Request Upon Request Upon Request Upon Request |
| Space Use |
| Office |
| Build-Out |
| Full Build-Out |
| Available |
| Now |
1st Floor, Ste 88
| Size | 6,445 SF |
| Term | Negotiable |
| Rental Rate | Upon Request |
| Space Use | Office |
| Build-Out | Full Build-Out |
| Available | Now |
Recently improved to a high standard. Consisting of lounges, reception and a waiting area. Zoned for education use, 7 classrooms, lounge areas, administrative offices, washrooms and reception.
- Lease rate does not include utilities, property expenses or building services
- Fully Built-Out as Standard Office
- Mostly Open Floor Plan Layout
- Fits 17 - 52 People
- 7 Private Offices
- Central Air and Heating
- Reception Area
- Private Restrooms
- Common boardroom.
- Bike storage.
- Professionally managed.
4th Floor, Ste 400
| Size | 2,588 SF |
| Term | Negotiable |
| Rental Rate | Upon Request |
| Space Use | Office |
| Build-Out | Full Build-Out |
| Available | Now |
Suite includes 6 private offices, one large boardroom, kitchenette and open space. Can be combined with suite 406.
- Lease rate does not include utilities, property expenses or building services
- Fully Built-Out as Standard Office
- Mostly Open Floor Plan Layout
- Fits 7 - 21 People
- 6 Private Offices
- 1 Conference Room
- Can be combined with additional space(s) for up to 3,944 SF of adjacent space
- Central Air and Heating
- Kitchen
- Open floor plan
- Bike storage.
- Professionally managed.
4th Floor, Ste 406
| Size | 1,356 SF |
| Term | Negotiable |
| Rental Rate | Upon Request |
| Space Use | Office |
| Build-Out | Shell Space |
| Available | Now |
See floor plan. Contact listing agents for additional inforamtion.
- Lease rate does not include utilities, property expenses or building services
- Open Floor Plan Layout
- 2 Private Offices
- 1 Conference Room
- Can be combined with additional space(s) for up to 3,944 SF of adjacent space
- Central Air and Heating
- Common boardroom.
- Bike storage.
- Professionally managed.
4th Floor, Ste 415
| Size | 812 SF |
| Term | Negotiable |
| Rental Rate | Upon Request |
| Space Use | Office |
| Build-Out | Full Build-Out |
| Available | Now |
This suite features one large office or meeting area, server/storage space, open work area, and direct access to private balcony
- Fully Built-Out as Standard Office
- Mostly Open Floor Plan Layout
- Fits 3 - 7 People
- Print/Copy Room
- Open-Plan
- Open plan allows for tenant customization.
5th Floor, Ste 503
| Size | 1,356 SF |
| Term | 1-10 Years |
| Rental Rate | Upon Request |
| Space Use | Office |
| Build-Out | Partial Build-Out |
| Available | Now |
Robson facing unit consisting of two offices and a meeting room with open work area.
- Lease rate does not include utilities, property expenses or building services
- Partially Built-Out as Standard Office
- Mostly Open Floor Plan Layout
- Fits 4 - 11 People
- 2 Private Offices
- 1 Conference Room
- Central Air and Heating
- Natural Light
- Mix of open area and offices.
5th Floor, Ste 505
| Size | 2,020 SF |
| Term | Negotiable |
| Rental Rate | Upon Request |
| Space Use | Office |
| Build-Out | Full Build-Out |
| Available | Now |
Three offices, open work area and a large boardroom. SE city views, reception area and storage/telecom room.
- Lease rate does not include utilities, property expenses or building services
- Fully Built-Out as Standard Office
- Mostly Open Floor Plan Layout
- Fits 6 - 17 People
- 3 Private Offices
- 1 Conference Room
- Central Air and Heating
- Reception Area
- Secure Storage
- Common boardroom.
- Bike storage.
- Professionally managed.
5th Floor, Ste 507
| Size | 861 SF |
| Term | Negotiable |
| Rental Rate | Upon Request |
| Space Use | Office |
| Build-Out | Spec Suite |
| Available | Now |
Open plan ready for tenant improvements.
- Open Floor Plan Layout
- Fits 3 - 7 People
- Natural Light
- Open plan allows for tenant customization.
5th Floor, Ste 509
| Size | 994 SF |
| Term | Negotiable |
| Rental Rate | Upon Request |
| Space Use | Office |
| Build-Out | Full Build-Out |
| Available | Now |
Mostly open plan with one large meeting room/ executive office space.
- Fully Built-Out as Standard Office
- Mostly Open Floor Plan Layout
- Fits 3 - 8 People
- 1 Conference Room
- Meeting room included.
5th Floor, Ste 510
| Size | 2,927 SF |
| Term | Negotiable |
| Rental Rate | Upon Request |
| Space Use | Office |
| Build-Out | Partial Build-Out |
| Available | Now |
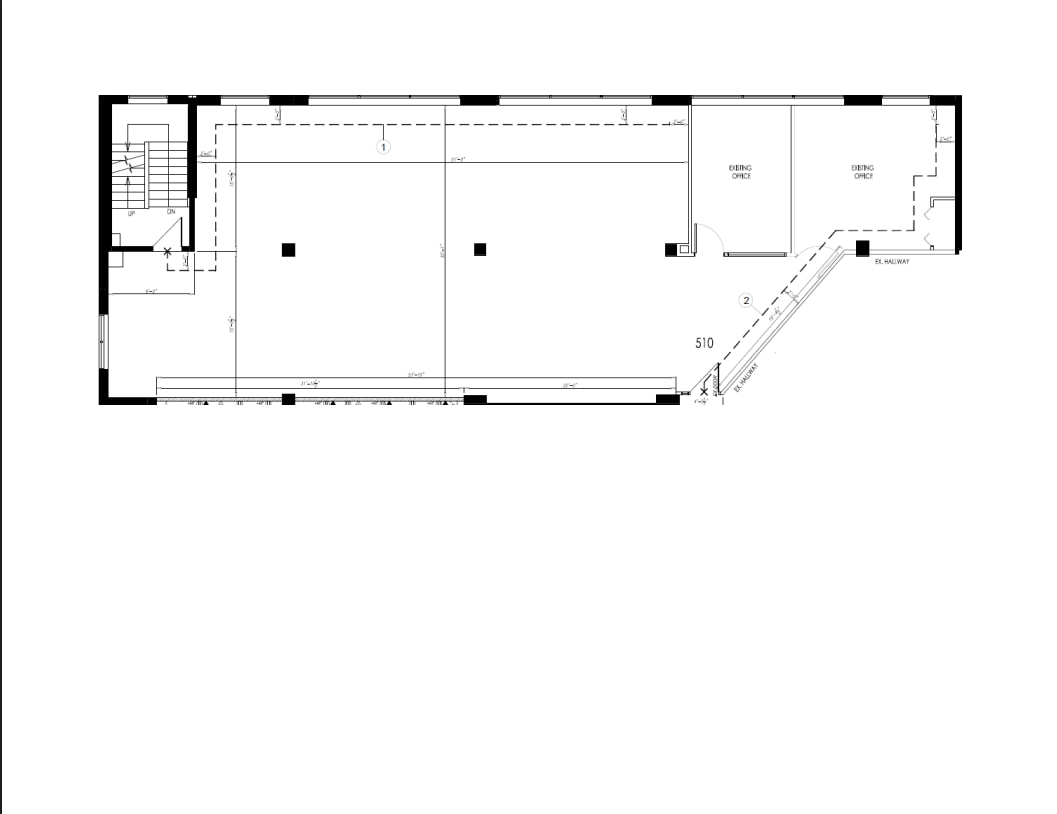
One office and a meeting room with a vast efficient open work area. New open ceiling concept with LED lighting.
- Lease rate does not include utilities, property expenses or building services
- Partially Built-Out as Standard Office
- Open Floor Plan Layout
- Fits 8 - 24 People
- Central Air and Heating
- Natural Light
- One office space
- Large open area
- Ample natural light.
7th Floor, Ste 708
| Size | 927 SF |
| Term | Negotiable |
| Rental Rate | Upon Request |
| Space Use | Office |
| Build-Out | Full Build-Out |
| Available | Now |
Improved with 4 private offices, kitchen, and reception area
- Lease rate does not include utilities, property expenses or building services
- Fully Built-Out as Standard Office
- Mostly Open Floor Plan Layout
- Fits 3 - 8 People
- 4 Private Offices
- Reception Area
- Natural Light
- Kitchen area included for tenants.
- Windows provide ample natural light.
Property Overview
John Robson Place is located between Bute and Thurlow Streets in the heart of Robson Street, Vancouver’s most famous shopping area. Robson Street has endless amenities ranging from coffee shops, hotels, banks, and more. It is steps from the fine dining restaurants and Shangri-La on Alberni Street, and the development of the new high-rise at 745 Thurlow Street. Additionally, John Robson Place is minutes from Burrard Sky-Train Station and several bus lines.
- 24 Hour Access
- Atrium
- Property Manager on Site
- Security System
- Storage Space
- Wi-Fi
- Air Conditioning
Property Facts
Presented by
John Robson Place | 1145-1155 Robson St
Hmm, there seems to have been an error sending your message. Please try again.
Thanks! Your message was sent.



















