Log In/Sign Up
Your email has been sent.
1146 S Cedar Crest Blvd
Allentown, PA 18103
Lincoln Office Bldg · Medical Property For Lease
·
2,214 SF


Highlights
- 2,214 rentable sf available on the first floor
- Property offers great visibility with traffic count of over 19,454 vehicles daily
- Immediate access to I-78/Route 309 and Minutes to Route 22 and Pennsylvania Turnpike
- Three story professional office building on corner of Lincoln Avenue and South Cedar Crest Boulevard in Salisbury Township.
- Within 1/4 mile to Lehigh Valley Health Network Cedar Crest and multiple medical office complexes
- Close to area amenities including restaurants, schools, services and retail establishments
Property Overview
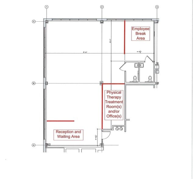
This very visible professional office property offers easy access to I-78/Route 309 and provides a well-lit first floor medical office suite. The office suite is ready to be customized to meet your business needs. Perfect for a physical therapist or chiropractor.
- 24 Hour Access
- Bus Line
- Signage
Property Facts
Building Type
Office
Year Built
1986
Building Height
3 Stories
Building Size
17,277 SF
Building Class
B
Typical Floor Size
5,759 SF
Parking
50 Surface Parking Spaces
1 of 11
Videos
Matterport 3D Exterior
Matterport 3D Tour
Photos
Street View
Street
Map
