Your email has been sent.
115 Sansome St 115 Sansome St 4,119 - 49,829 SF of Office Space Available in San Francisco, CA 94104

All Available Spaces(6)
Display Rental Rate as
- Space
- Size
- Term
- Rental Rate
- Space Use
- Build-Out
- Available
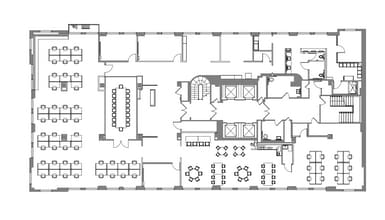
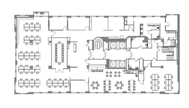
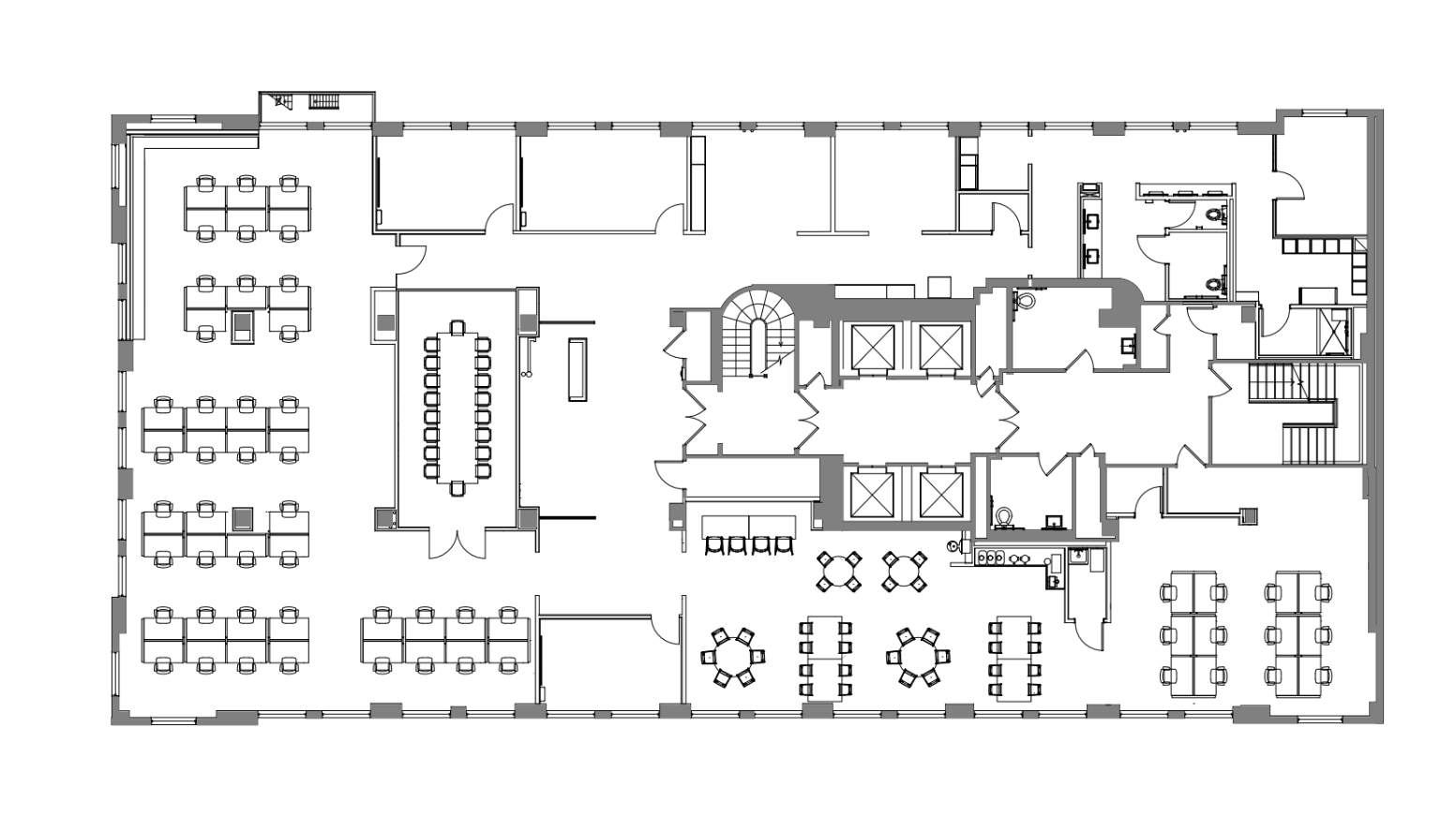
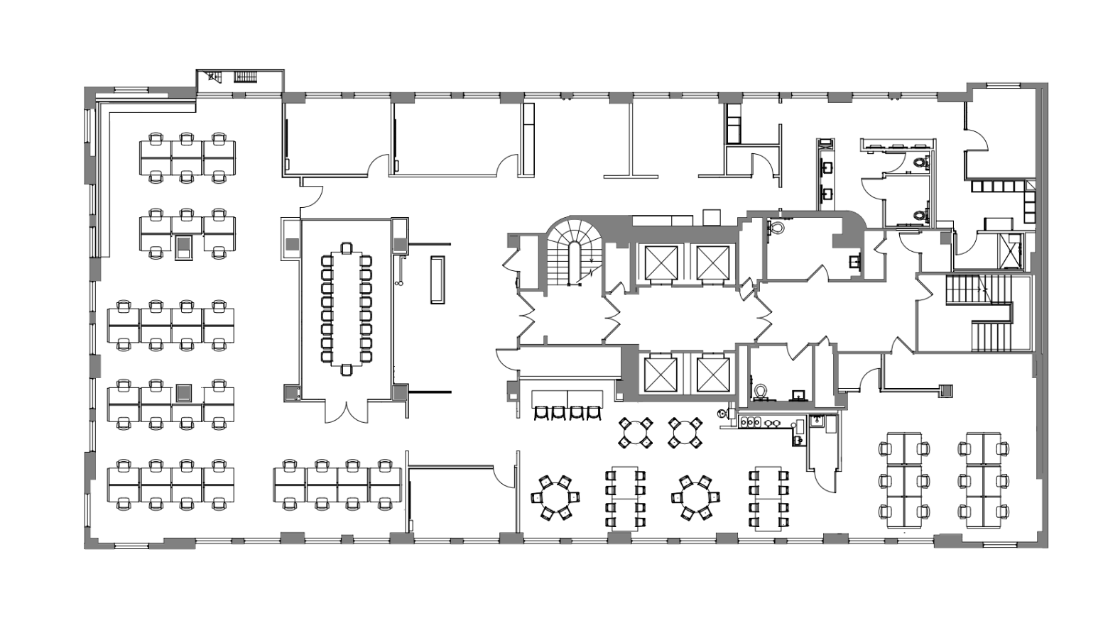
Unique, highly collaborative, fully furnished full floor space with flexible layout. Exclusive suite amenities including coffee bar, fitness studio, locker room with showers and mother's room. Seating for 107 people, 1 boardroom, 3 conference rooms and 9 phone booths. Virtual Tour: https://my.matterport.com/show/?m=upDb5Ydw5oe
- Fully Built-Out as Standard Office
- 9 Private Offices
- 107 Workstations
- Can be combined with additional space(s) for up to 27,741 SF of adjacent space
- High end furnishings
- Mostly Open Floor Plan Layout
- 4 Conference Rooms
- Finished Ceilings: 11’
- Shower Facilities
• Available now • Creative suite • 4 private offices • 2 conference rooms • Kitchen/break area • Exposed ceiling • IT room • Storage room • Open area: room for 60 workstations
- Fully Built-Out as Standard Office
- Finished Ceilings: 11’
- Mostly Open Floor Plan Layout
- Can be combined with additional space(s) for up to 27,741 SF of adjacent space
• Creative space with exposed ceiling and brick • 2 large conference rooms • 2 medium conference rooms • 3 huddle rooms • Kitchen • IT room • Open area: room for 60+ desks
- Fully Built-Out as Standard Office
- Finished Ceilings: 11’
- Mostly Open Floor Plan Layout
- Can be combined with additional space(s) for up to 27,741 SF of adjacent space
• Fully furnished creative floor • 2 private offices • 2 large conference rooms • Large kitchen & Break area • Reception area • IT/copy/storage room • Open area: room for 60+ desks
- Fully Built-Out as Standard Office
- Finished Ceilings: 11’
- Mostly Open Floor Plan Layout
• Available June 1st, 2026 • Creative Suite • Open area: room for 34 desks • 1 large conference room • 2 medium conference rooms • 2 phone rooms • Kitchen / break area
- Fully Built-Out as Standard Office
- Finished Ceilings: 11’
- Mostly Open Floor Plan Layout
- Fully furnished - Large open area for +/- 72 workstations - Large all hands/break area - 3 private offices - Creative space with exposed ceiling - 1 large conference room - 2 medium conference rooms - 2 small meeting rooms - 2 phone rooms
- https://my.matterport.com/show/?m=eLvqKm8HYxV
| Space | Size | Term | Rental Rate | Space Use | Build-Out | Available |
| 3rd Floor, Ste 300 | 9,192 SF | 3-5 Years | Upon Request Upon Request Upon Request Upon Request | Office | Full Build-Out | Now |
| 4th Floor, Ste 400 | 9,198 SF | Negotiable | Upon Request Upon Request Upon Request Upon Request | Office | Full Build-Out | Now |
| 6th Floor, Ste 600 | 9,351 SF | 3-5 Years | Upon Request Upon Request Upon Request Upon Request | Office | Full Build-Out | 2026-07-31 |
| 9th Floor, Ste 900 | 8,973 SF | 3 Years | Upon Request Upon Request Upon Request Upon Request | Office | Full Build-Out | 2026-07-31 |
| 10th Floor, Ste 1002 | 4,119 SF | 3 Years | Upon Request Upon Request Upon Request Upon Request | Office | Full Build-Out | 2026-05-31 |
| 11th Floor, Ste 1100 | 8,996 SF | Negotiable | Upon Request Upon Request Upon Request Upon Request | Office | - | Now |
3rd Floor, Ste 300
| Size |
| 9,192 SF |
| Term |
| 3-5 Years |
| Rental Rate |
| Upon Request Upon Request Upon Request Upon Request |
| Space Use |
| Office |
| Build-Out |
| Full Build-Out |
| Available |
| Now |
4th Floor, Ste 400
| Size |
| 9,198 SF |
| Term |
| Negotiable |
| Rental Rate |
| Upon Request Upon Request Upon Request Upon Request |
| Space Use |
| Office |
| Build-Out |
| Full Build-Out |
| Available |
| Now |
6th Floor, Ste 600
| Size |
| 9,351 SF |
| Term |
| 3-5 Years |
| Rental Rate |
| Upon Request Upon Request Upon Request Upon Request |
| Space Use |
| Office |
| Build-Out |
| Full Build-Out |
| Available |
| 2026-07-31 |
9th Floor, Ste 900
| Size |
| 8,973 SF |
| Term |
| 3 Years |
| Rental Rate |
| Upon Request Upon Request Upon Request Upon Request |
| Space Use |
| Office |
| Build-Out |
| Full Build-Out |
| Available |
| 2026-07-31 |
10th Floor, Ste 1002
| Size |
| 4,119 SF |
| Term |
| 3 Years |
| Rental Rate |
| Upon Request Upon Request Upon Request Upon Request |
| Space Use |
| Office |
| Build-Out |
| Full Build-Out |
| Available |
| 2026-05-31 |
11th Floor, Ste 1100
| Size |
| 8,996 SF |
| Term |
| Negotiable |
| Rental Rate |
| Upon Request Upon Request Upon Request Upon Request |
| Space Use |
| Office |
| Build-Out |
| - |
| Available |
| Now |
3rd Floor, Ste 300
| Size | 9,192 SF |
| Term | 3-5 Years |
| Rental Rate | Upon Request |
| Space Use | Office |
| Build-Out | Full Build-Out |
| Available | Now |
Unique, highly collaborative, fully furnished full floor space with flexible layout. Exclusive suite amenities including coffee bar, fitness studio, locker room with showers and mother's room. Seating for 107 people, 1 boardroom, 3 conference rooms and 9 phone booths. Virtual Tour: https://my.matterport.com/show/?m=upDb5Ydw5oe
- Fully Built-Out as Standard Office
- Mostly Open Floor Plan Layout
- 9 Private Offices
- 4 Conference Rooms
- 107 Workstations
- Finished Ceilings: 11’
- Can be combined with additional space(s) for up to 27,741 SF of adjacent space
- Shower Facilities
- High end furnishings
4th Floor, Ste 400
| Size | 9,198 SF |
| Term | Negotiable |
| Rental Rate | Upon Request |
| Space Use | Office |
| Build-Out | Full Build-Out |
| Available | Now |
• Available now • Creative suite • 4 private offices • 2 conference rooms • Kitchen/break area • Exposed ceiling • IT room • Storage room • Open area: room for 60 workstations
- Fully Built-Out as Standard Office
- Mostly Open Floor Plan Layout
- Finished Ceilings: 11’
- Can be combined with additional space(s) for up to 27,741 SF of adjacent space
6th Floor, Ste 600
| Size | 9,351 SF |
| Term | 3-5 Years |
| Rental Rate | Upon Request |
| Space Use | Office |
| Build-Out | Full Build-Out |
| Available | 2026-07-31 |
• Creative space with exposed ceiling and brick • 2 large conference rooms • 2 medium conference rooms • 3 huddle rooms • Kitchen • IT room • Open area: room for 60+ desks
- Fully Built-Out as Standard Office
- Mostly Open Floor Plan Layout
- Finished Ceilings: 11’
- Can be combined with additional space(s) for up to 27,741 SF of adjacent space
9th Floor, Ste 900
| Size | 8,973 SF |
| Term | 3 Years |
| Rental Rate | Upon Request |
| Space Use | Office |
| Build-Out | Full Build-Out |
| Available | 2026-07-31 |
• Fully furnished creative floor • 2 private offices • 2 large conference rooms • Large kitchen & Break area • Reception area • IT/copy/storage room • Open area: room for 60+ desks
- Fully Built-Out as Standard Office
- Mostly Open Floor Plan Layout
- Finished Ceilings: 11’
10th Floor, Ste 1002
| Size | 4,119 SF |
| Term | 3 Years |
| Rental Rate | Upon Request |
| Space Use | Office |
| Build-Out | Full Build-Out |
| Available | 2026-05-31 |
• Available June 1st, 2026 • Creative Suite • Open area: room for 34 desks • 1 large conference room • 2 medium conference rooms • 2 phone rooms • Kitchen / break area
- Fully Built-Out as Standard Office
- Mostly Open Floor Plan Layout
- Finished Ceilings: 11’
11th Floor, Ste 1100
| Size | 8,996 SF |
| Term | Negotiable |
| Rental Rate | Upon Request |
| Space Use | Office |
| Build-Out | - |
| Available | Now |
- Fully furnished - Large open area for +/- 72 workstations - Large all hands/break area - 3 private offices - Creative space with exposed ceiling - 1 large conference room - 2 medium conference rooms - 2 small meeting rooms - 2 phone rooms
- https://my.matterport.com/show/?m=eLvqKm8HYxV
Features and Amenities
- 24 Hour Access
- Energy Star Labeled
- Bicycle Storage
- Shower Facilities
Property Facts
Sustainability
Sustainability
ENERGY STAR® Energy Star is a program run by the U.S. Environmental Protection Agency (EPA) and U.S. Department of Energy (DOE) that promotes energy efficiency and provides simple, credible, and unbiased information that consumers and businesses rely on to make well-informed decisions. Thousands of industrial, commercial, utility, state, and local organizations partner with the EPA to deliver cost-saving energy efficiency solutions that protect the climate while improving air quality and protecting public health. The Energy Star score compares a building’s energy performance to similar buildings nationwide and accounts for differences in operating conditions, regional weather data, and other important considerations. Certification is given on an annual basis, so a building must maintain its high performance to be certified year to year. To be eligible for Energy Star certification, a building must earn a score of 75 or higher on EPA’s 1 – 100 scale, indicating that it performs better than at least 75 percent of similar buildings nationwide. This 1 – 100 Energy Star score is based on the actual, measured energy use of a building and is calculated within EPA’s Energy Star Portfolio Manager tool.
Presented by
115 Sansome St | 115 Sansome St
Hmm, there seems to have been an error sending your message. Please try again.
Thanks! Your message was sent.













