Log In/Sign Up
Your email has been sent.
1159 Washington St 0.13 Acres of Residential Land Offered at $3,151,000 CAD in Boston, MA 02124



Executive Summary
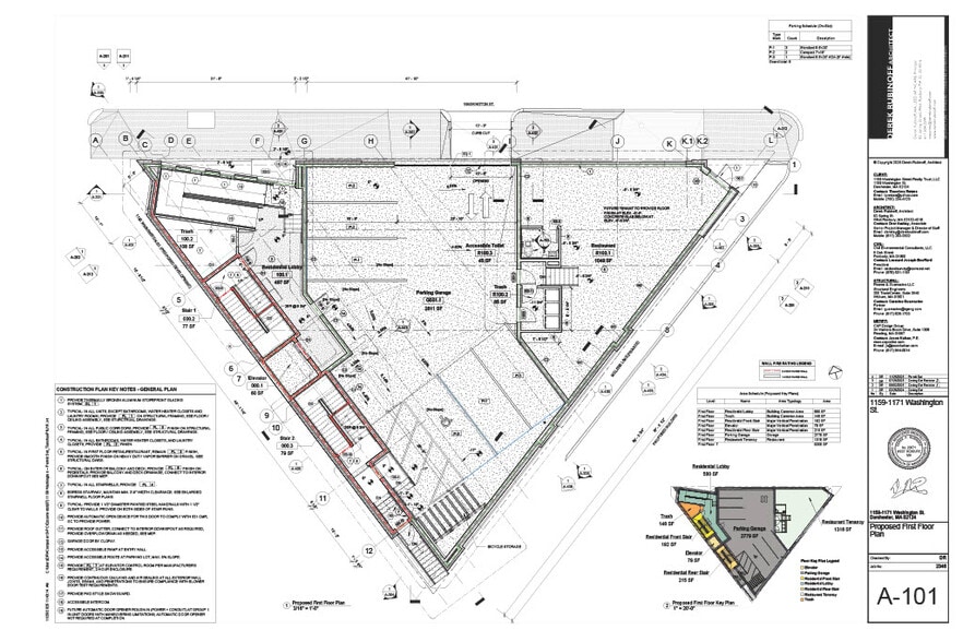
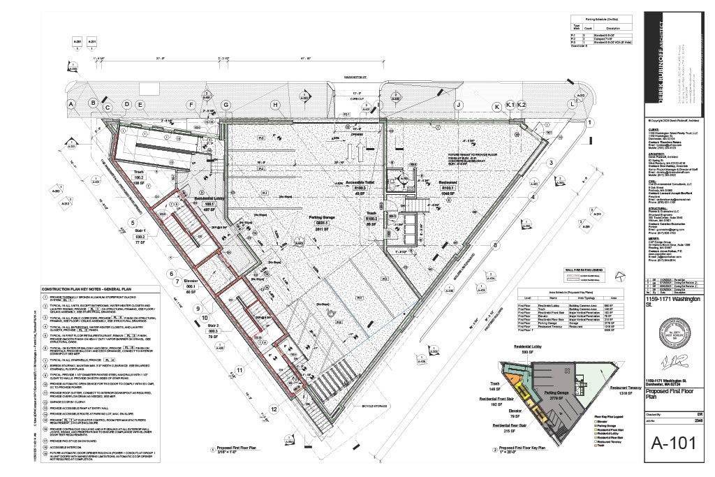
FULLY APPROVED DEVELOPMENT OPPORTUNITY IN HIGHLY DESIRABLE LOWER MILLS. Rare opportunity to develop a fully approved 15-unit mixed-use project at the landmark Spukies. Ideally positioned with proximity MBTA red line stops this project benefits from excellent visibility and exposure in one of Boston’s most sought-after areas. Approved plans are in hand to construct 14 residential condominium units and 1 above ground-floor commercial space, along with 6 on-site parking spaces—a significant advantage in this market. An exceptional opportunity for developers seeking a for-sale condominium project or investors looking to expand their rental portfolio in a strong, established neighborhood with shopping, restaurants, MBTA and within a couple miles of Downtown Boston.
Approved Site Plans:
https://acrobat.adobe.com/id/urn:aaid:sc:US:8e05a402-345b-437e-a2e7-3ffcaf58c31b
Approved Site Plans:
https://acrobat.adobe.com/id/urn:aaid:sc:US:8e05a402-345b-437e-a2e7-3ffcaf58c31b
Property Facts
1 Lot Available
Lot
| Price | $3,151,000 CAD | Lot Size | 0.13 AC |
| Price Per AC | $24,510,337.83 CAD |
| Price | $3,151,000 CAD |
| Price Per AC | $24,510,337.83 CAD |
| Lot Size | 0.13 AC |
Irrergular pie shaped
Description
Plans: https://acrobat.adobe.com/id/urn:aaid:sc:US:8e05a402-345b-437e-a2e7-3ffcaf58c31b
1 1
Moderately walkable
60/100
Exceptionally drivable
100/100
Some public transit
50/100
Moderately bikeable
70/100
Property Taxes
| Parcel Numbers | Improvements Assessment | $457,032 CAD | |
| Land Assessment | $188,786 CAD | Total Assessment | $645,818 CAD |
Property Taxes
Parcel Numbers
Land Assessment
$188,786 CAD
Improvements Assessment
$457,032 CAD
Total Assessment
$645,818 CAD
1 of 5
Videos
Matterport 3D Exterior
Matterport 3D Tour
Photos
Street View
Street
Map
1 of 1
Presented by
1159 Washington St
Already a member? Log In
Hmm, there seems to have been an error sending your message. Please try again.
Thanks! Your message was sent.
