Your email has been sent.
Display Rental Rate as
- Space
- Size
- Term
- Rental Rate
- Space Use
- Build-Out
- Available
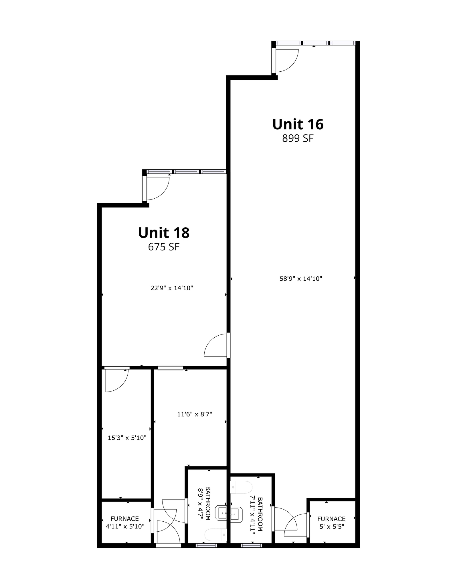
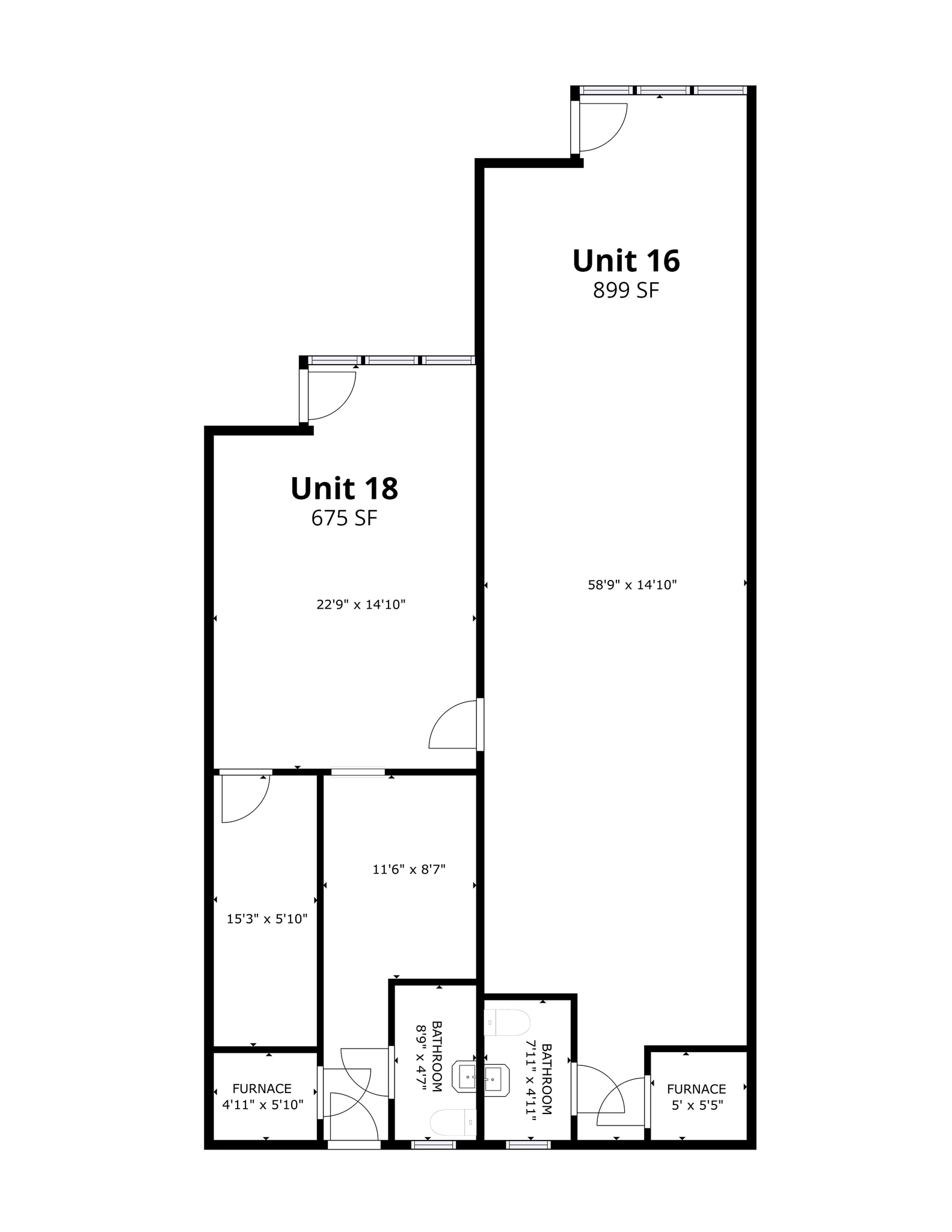
116–118 Pueblo Avenue is a charming mid-century modern retail property located in the heart of downtown Colorado Springs. Previously home to a salon that occupied both suites, the building offers flexibility for a new tenant; the landlord is open to leasing the entire 1,574 RSF or dividing the property back into two suites, with Unit 116 at approximately 899 RSF and Unit 118 at approximately 675 RSF. The property has been tastefully updated and features stained concrete floors, expansive storefront windows, and wood ceilings that create a warm and inviting atmosphere. Tenants will also enjoy a private, fully fenced back patio that enhances the indoor and outdoor experience. Lease terms are offered at $24 to $30 per SF per year NNN, with estimated operating expenses of approximately $6.00 per SF per year. This unique space is ideal for a variety of retail or service uses seeking a central location with excellent visibility and character. Please do not disturb the tenant; call for more information or to arrange a private showing with Holly Trinidad or Chris Myers.
- Lease rate does not include utilities, property expenses or building services
- Can be combined with additional space(s) for up to 1,574 SF of adjacent space
| Space | Size | Term | Rental Rate | Space Use | Build-Out | Available |
| 1st Floor, Ste 118 | 675 SF | Negotiable | $36.38 CAD/SF/YR $3.03 CAD/SF/MO $24,559 CAD/YR $2,047 CAD/MO | Retail | - | Now |
1st Floor, Ste 118
| Size |
| 675 SF |
| Term |
| Negotiable |
| Rental Rate |
| $36.38 CAD/SF/YR $3.03 CAD/SF/MO $24,559 CAD/YR $2,047 CAD/MO |
| Space Use |
| Retail |
| Build-Out |
| - |
| Available |
| Now |
- Space
- Size
- Term
- Rental Rate
- Space Use
- Build-Out
- Available
116–118 Pueblo Avenue is a charming mid-century modern retail property located in the heart of downtown Colorado Springs. Previously home to a salon that occupied both suites, the building offers flexibility for a new tenant; the landlord is open to leasing the entire 1,574 RSF or dividing the property back into two suites, with Unit 116 at approximately 899 RSF and Unit 118 at approximately 675 RSF. The property has been tastefully updated and features stained concrete floors, expansive storefront windows, and wood ceilings that create a warm and inviting atmosphere. Tenants will also enjoy a private, fully fenced back patio that enhances the indoor and outdoor experience. Lease terms are offered at $24 to $30 per SF per year NNN, with estimated operating expenses of approximately $6.00 per SF per year. This unique space is ideal for a variety of retail or service uses seeking a central location with excellent visibility and character. Please do not disturb the tenant; call for more information or to arrange a private showing with Holly Trinidad or Chris Myers.
- Listed rate may not include certain utilities, building services and property expenses
- Can be combined with additional space(s) for up to 1,574 SF of adjacent space
- Fits 3 - 8 People
116–118 Pueblo Avenue is a charming mid-century modern retail property located in the heart of downtown Colorado Springs. Previously home to a salon that occupied both suites, the building offers flexibility for a new tenant; the landlord is open to leasing the entire 1,574 RSF or dividing the property back into two suites, with Unit 116 at approximately 899 RSF and Unit 118 at approximately 675 RSF. The property has been tastefully updated and features stained concrete floors, expansive storefront windows, and wood ceilings that create a warm and inviting atmosphere. Tenants will also enjoy a private, fully fenced back patio that enhances the indoor and outdoor experience. Lease terms are offered at $24 to $30 per SF per year NNN, with estimated operating expenses of approximately $6.00 per SF per year. This unique space is ideal for a variety of retail or service uses seeking a central location with excellent visibility and character. Please do not disturb the tenant; call for more information or to arrange a private showing with Holly Trinidad or Chris Myers.
- Lease rate does not include utilities, property expenses or building services
- Can be combined with additional space(s) for up to 1,574 SF of adjacent space
| Space | Size | Term | Rental Rate | Space Use | Build-Out | Available |
| 1st Floor, Ste 116 | 899 SF | Negotiable | $32.78 CAD/SF/YR $2.73 CAD/SF/MO $29,472 CAD/YR $2,456 CAD/MO | Office | - | Now |
| 1st Floor, Ste 118 | 675 SF | Negotiable | $36.38 CAD/SF/YR $3.03 CAD/SF/MO $24,559 CAD/YR $2,047 CAD/MO | Retail | - | Now |
1st Floor, Ste 116
| Size |
| 899 SF |
| Term |
| Negotiable |
| Rental Rate |
| $32.78 CAD/SF/YR $2.73 CAD/SF/MO $29,472 CAD/YR $2,456 CAD/MO |
| Space Use |
| Office |
| Build-Out |
| - |
| Available |
| Now |
1st Floor, Ste 118
| Size |
| 675 SF |
| Term |
| Negotiable |
| Rental Rate |
| $36.38 CAD/SF/YR $3.03 CAD/SF/MO $24,559 CAD/YR $2,047 CAD/MO |
| Space Use |
| Retail |
| Build-Out |
| - |
| Available |
| Now |
1st Floor, Ste 116
| Size | 899 SF |
| Term | Negotiable |
| Rental Rate | $32.78 CAD/SF/YR |
| Space Use | Office |
| Build-Out | - |
| Available | Now |
116–118 Pueblo Avenue is a charming mid-century modern retail property located in the heart of downtown Colorado Springs. Previously home to a salon that occupied both suites, the building offers flexibility for a new tenant; the landlord is open to leasing the entire 1,574 RSF or dividing the property back into two suites, with Unit 116 at approximately 899 RSF and Unit 118 at approximately 675 RSF. The property has been tastefully updated and features stained concrete floors, expansive storefront windows, and wood ceilings that create a warm and inviting atmosphere. Tenants will also enjoy a private, fully fenced back patio that enhances the indoor and outdoor experience. Lease terms are offered at $24 to $30 per SF per year NNN, with estimated operating expenses of approximately $6.00 per SF per year. This unique space is ideal for a variety of retail or service uses seeking a central location with excellent visibility and character. Please do not disturb the tenant; call for more information or to arrange a private showing with Holly Trinidad or Chris Myers.
- Listed rate may not include certain utilities, building services and property expenses
- Fits 3 - 8 People
- Can be combined with additional space(s) for up to 1,574 SF of adjacent space
1st Floor, Ste 118
| Size | 675 SF |
| Term | Negotiable |
| Rental Rate | $36.38 CAD/SF/YR |
| Space Use | Retail |
| Build-Out | - |
| Available | Now |
116–118 Pueblo Avenue is a charming mid-century modern retail property located in the heart of downtown Colorado Springs. Previously home to a salon that occupied both suites, the building offers flexibility for a new tenant; the landlord is open to leasing the entire 1,574 RSF or dividing the property back into two suites, with Unit 116 at approximately 899 RSF and Unit 118 at approximately 675 RSF. The property has been tastefully updated and features stained concrete floors, expansive storefront windows, and wood ceilings that create a warm and inviting atmosphere. Tenants will also enjoy a private, fully fenced back patio that enhances the indoor and outdoor experience. Lease terms are offered at $24 to $30 per SF per year NNN, with estimated operating expenses of approximately $6.00 per SF per year. This unique space is ideal for a variety of retail or service uses seeking a central location with excellent visibility and character. Please do not disturb the tenant; call for more information or to arrange a private showing with Holly Trinidad or Chris Myers.
- Lease rate does not include utilities, property expenses or building services
- Can be combined with additional space(s) for up to 1,574 SF of adjacent space
Property Overview
120 Pueblo Avenue is a stunning mid-century modern retail property located in the heart of downtown Colorado Springs, available for LEASE ONLY (not for sale) and is approximately 1,000 RSF. This fully renovated building boasts a contemporary aesthetic and features one of the largest pollinator gardens in Colorado Springs, adding both beauty and sustainability to the space. Tenants will also enjoy access to a private, fully fenced back patio, enhancing the indoor/outdoor experience. Inside, the spaces are open, airy, and full of character, with striking stained concrete floors, expansive storefront windows, and charming wood ceilings. The lease premise is $1,800 per month. In addition to the base rent, tenants are responsible for utilities, landscape maintenance, and trash removal.
Property Facts
Select Tenants
- Floor
- Tenant Name
- Industry
- 1st
- American Insurance Agency
- Finance and Insurance
Presented by
116-120 Pueblo Ave
Hmm, there seems to have been an error sending your message. Please try again.
Thanks! Your message was sent.







