Your email has been sent.
1167-1175 Park Ave 3,000 SF Office/Medical Condo Unit Offered at $3,581,130 CAD in New York, NY 10128



Investment Highlights
- LOW MAINTENANCE
- REAR EGRESS
- CENTRAL AIR CONDITIONING
- SECONDARY INGRESS
- FIREPLACE IN WAITING AREA
- ADAPTABLE TO ANY MEDICAL SPECIALTY
1 Unit Available
Unit 1C
| Unit Size | 3,000 SF | Condo Use | Office/Medical |
| Price | $3,581,130 CAD | Sale Type | Owner User |
| Price Per SF | $1,193.71 CAD |
| Unit Size | 3,000 SF |
| Price | $3,581,130 CAD |
| Price Per SF | $1,193.71 CAD |
| Condo Use | Office/Medical |
| Sale Type | Owner User |
Description
Upper East Side – Medical Office For Sale (Co-op)
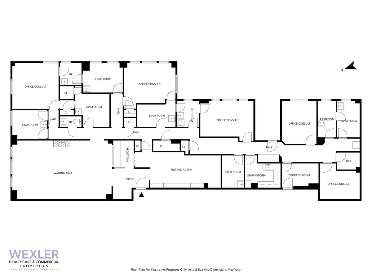
Available for sale, 1175 Park Avenue, Suite 1C is a ground-floor medical office at the base of a luxury residential co-op. The layout of approximately 3,000 square feet features oversized waiting and admin/file areas, a reception, six exam rooms, five offices/consults, a storage room, seven closets and four restrooms.
This suite is also equipped with a fireplace in the waiting area, central air conditioning, a secondary ingress, a rear egress, and is adaptable to any medical specialty.
Situated in Carnegie Hill on the Upper East Side between 92nd Street and 93rd Street, 1175 Park Avenue is easily accessible to public transportation via the 4, 5, and 6 subway lines along Lexington Avenue, and uptown/downtown bus routes. This space is proximate to leading medical institutions, including Mount Sinai Hospital, Lenox Hill Hospital, NYC Health+ Hospitals, NewYork-Presbyterian/Weill Cornell Medical Center, Hospital for Special Surgery (HSS) and Memorial Sloan Kettering Cancer Center.
Maintenance: $8,750/Month – An incredibly low $35 PSF/Yr
FP_1175_park_avenue_1c
3D FP_1175_park_avenue_1c
1175 Park Avenue 1C-3-Staged
1175 Park Avenue 1C-6
1175 Park Avenue 1C-4
1175 Park Avenue 1C-5
1175 Park Avenue 1C-2
3D 1175 Park Avenue 1C-2
3D 1175 Park Avenue 1C-3
3D 1175 Park Avenue 1C-4
3D 1175 Park Avenue 1C-5
3D 1175 Park Avenue 1C-6
3D 1175 Park Avenue 1C-7
3D 1175 Park Avenue 1C-8
3D 1175 Park Avenue 1C-9
3D 1175 Park Avenue 1C-10
3D 1175 Park Avenue 1C-11
Property Facts
| Total Building Size | 174,910 SF | Floors | 14 |
| Property Type | Multifamily (Condo) | Typical Floor Size | 12,493 SF |
| Property Subtype | Apartment | Year Built | 1925 |
| Building Class | B | Lot Size | 0.35 AC |
| Zoning | R10 - High density residential district | ||
| Total Building Size | 174,910 SF |
| Property Type | Multifamily (Condo) |
| Property Subtype | Apartment |
| Building Class | B |
| Floors | 14 |
| Typical Floor Size | 12,493 SF |
| Year Built | 1925 |
| Lot Size | 0.35 AC |
| Zoning | R10 - High density residential district |
Amenities
Site Amenities
- Fitness Center
- Doorman
- Storage Space
- Bicycle Storage
- Elevator
Presented by
1167-1175 Park Ave
Hmm, there seems to have been an error sending your message. Please try again.
Thanks! Your message was sent.

