Your email has been sent.
117 E 24th St 4,300 SF of Office Space Available in New York, NY 10010



Highlights
- One block from Madison Square Park.
- Access to transit lines and unparalleled dining choices.
All Available Space(1)
Display Rental Rate as
- Space
- Size
- Term
- Rental Rate
- Space Use
- Build-Out
- Available
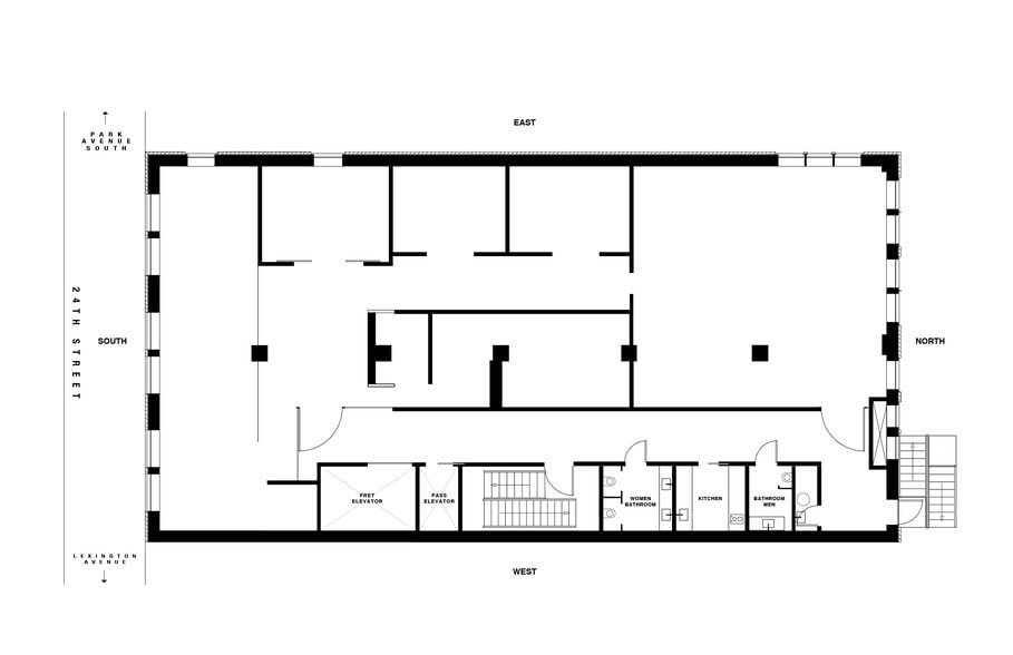
Office / Creative Space / Start Up (Flatiron) 117 East 24th Street, New York, NY 10010 Built in 1920. 4,300 sq ft office available. Full floor fully built luminous office space with 11ft 3-inch ceilings and customizable workspaces. Ideal for Design Firm, Branding Agency, or Architectural Firm. – Natural light from large windows facing South, North, and West – Original hardwood floors – Clear and frosted glass walls – Conference room with view of Madison Square Park Clock Tower building – Modern, renovated kitchen and two bathrooms (mens & womens) – Samples, tech, plotter room – Hallway gallery ideal to display work, and art – Keyed elevator to the floor – Access to a large freight elevator opens directly into the space – 24/7 tenant-controlled Air Conditioning. Steam heating throughout the building – On-site building super on duty Monday through Friday, from 9AM to 5PM – Access to transit lines and unparalleled dining choices. – Building designed by Muliken & Moeller architects with beautiful limestone cornices, ornamental brick work and a pediment top. $52 SQ/YR - plus utilities. Negotiable. Lease terms flexible. Space layout modifications possible, depending on lease terms. Showing by appointment only.
- Listed lease rate plus proportional share of electrical cost
- Mostly Open Floor Plan Layout
- Space is in Excellent Condition
- Reception Area
- Natural Light
- Natural light from large windows
- Fully Built-Out as Professional Services Office
- Finished Ceilings: 11’3”
- Central Air and Heating
- High Ceilings
- Hardwood Floors
- 11ft 3-inch ceilings
| Space | Size | Term | Rental Rate | Space Use | Build-Out | Available |
| 7th Floor | 4,300 SF | Negotiable | $70.62 CAD/SF/YR $5.88 CAD/SF/MO $303,649 CAD/YR $25,304 CAD/MO | Office | Full Build-Out | Now |
7th Floor
| Size |
| 4,300 SF |
| Term |
| Negotiable |
| Rental Rate |
| $70.62 CAD/SF/YR $5.88 CAD/SF/MO $303,649 CAD/YR $25,304 CAD/MO |
| Space Use |
| Office |
| Build-Out |
| Full Build-Out |
| Available |
| Now |
7th Floor
| Size | 4,300 SF |
| Term | Negotiable |
| Rental Rate | $70.62 CAD/SF/YR |
| Space Use | Office |
| Build-Out | Full Build-Out |
| Available | Now |
Office / Creative Space / Start Up (Flatiron) 117 East 24th Street, New York, NY 10010 Built in 1920. 4,300 sq ft office available. Full floor fully built luminous office space with 11ft 3-inch ceilings and customizable workspaces. Ideal for Design Firm, Branding Agency, or Architectural Firm. – Natural light from large windows facing South, North, and West – Original hardwood floors – Clear and frosted glass walls – Conference room with view of Madison Square Park Clock Tower building – Modern, renovated kitchen and two bathrooms (mens & womens) – Samples, tech, plotter room – Hallway gallery ideal to display work, and art – Keyed elevator to the floor – Access to a large freight elevator opens directly into the space – 24/7 tenant-controlled Air Conditioning. Steam heating throughout the building – On-site building super on duty Monday through Friday, from 9AM to 5PM – Access to transit lines and unparalleled dining choices. – Building designed by Muliken & Moeller architects with beautiful limestone cornices, ornamental brick work and a pediment top. $52 SQ/YR - plus utilities. Negotiable. Lease terms flexible. Space layout modifications possible, depending on lease terms. Showing by appointment only.
- Listed lease rate plus proportional share of electrical cost
- Fully Built-Out as Professional Services Office
- Mostly Open Floor Plan Layout
- Finished Ceilings: 11’3”
- Space is in Excellent Condition
- Central Air and Heating
- Reception Area
- High Ceilings
- Natural Light
- Hardwood Floors
- Natural light from large windows
- 11ft 3-inch ceilings
Property Overview
Office / Creative Space / Start Up (Flatiron) 117 East 24th Street, New York, NY 10010 Full floor 4,300 sq ft office available. One block from Madison Square Park. Full 7th floor, fully built luminous office space with11ft 3 inch ceilings and customizable workspaces. Ideal for Design Firm, Branding Agency, or Architectural Firm. – Natural light from large windows facing South, North, and West – Original hardwood floors – Clear and frosted glass walls – Conference room with view of Madison Square Park Clock Tower building – Modern, renovated kitchen and two bathrooms (mens & womens) – Samples, tech, plotter room – Hallway gallery ideal to display work, and art – Keyed elevator to the floor – Access to a large freight elevator opens directly into the space – 24/7 tenant-controlled Air Conditioning. Steam heating throughout the building – On-site building super on duty Monday through Friday, from 9AM to 5PM – Access to transit lines and unparalleled dining choices. Build in 1920, designed by Muliken & Moeller architects with beautiful limestone cornices, ornamental brick work and a pediment top. $52 SQ/YR - plus utilities. Lease terms negotiable. Space layout modifications possible, depending on lease terms. Showing by appointment only. Jérôme Bérard 117east24@gmail.com 1.917.657.0405
- 24 Hour Access
- Roof Terrace
Property Facts
Presented by
117 E 24th St
Hmm, there seems to have been an error sending your message. Please try again.
Thanks! Your message was sent.



