Your email has been sent.
1175 Corporate Woods Pkwy 675 - 6,541 SF of Office Space Available in Vernon Hills, IL 60061



Highlights
- Lots of Natural light
All Available Spaces(3)
Display Rental Rate as
- Space
- Size
- Term
- Rental Rate
- Space Use
- Build-Out
- Available
This space is 2,431 Sq. feet and has 2 private offices, a storage room and an open area for up to 10-12 cubicles. This space has large windows with great views. Right on Milwaukee Ave. Very secure building with Security cameras and front door Intercom system. Shared Bathrooms in Hallway on second floor.
- Lease rate does not include utilities, property expenses or building services
- Mostly Open Floor Plan Layout
- 2 Private Offices
- Secure Storage
- Nice Views from second story. Large corner office
- Partially Built-Out as Standard Office
- Fits 7 - 20 People
- Security System
- Natural Light
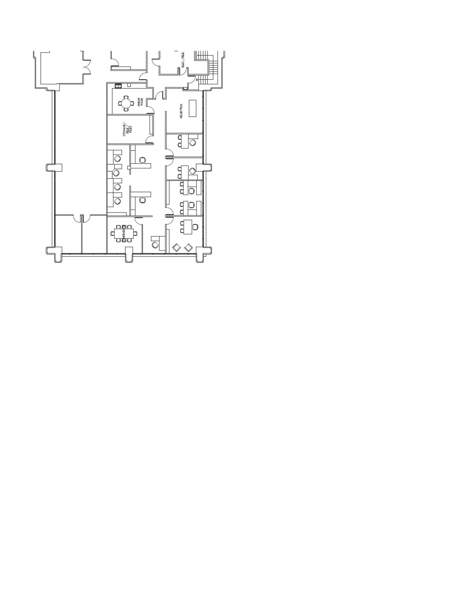
The suite is 3,435 sq. feet and has 4 private offices plus a conference room, break room, reception area, cubicle area, and large storage room. Nice larger corner office. The space has large windows with great views. Right on Milwaukee Ave. Very secure building with Security cameras and front door Intercom system. Shared Bathrooms in Hallway on second floor.
- Lease rate does not include utilities, property expenses or building services
- Mostly Open Floor Plan Layout
- 4 Private Offices
- Central Air Conditioning
- Security System
- Corner Space
- Drop Ceilings
- Partially Built-Out as Standard Office
- Fits 5 - 12 People
- 1 Conference Room
- Reception Area
- Closed Circuit Television Monitoring (CCTV)
- High Ceilings
- Nice larger corner office
Private second-floor corner office ideal for an accountant, consultant, attorney, or other professional seeking a quiet, secure workspace. The suite features high ceilings and a dedicated reception area, providing a professional setting for client meetings. Shared bathrooms are conveniently located in the hallway. The building offers both stair and elevator access and is secured with security cameras, a locked front entrance, and video intercom access.
- Lease rate does not include utilities, property expenses or building services
- Fits 1 - 2 People
- Finished Ceilings: 10’
- Reception Area
- Closed Circuit Television Monitoring (CCTV)
- High Ceilings
- Natural Light
- Corner office with great views
- Fully Built-Out as Professional Services Office
- 1 Private Office
- Central Air and Heating
- Fully Carpeted
- Corner Space
- Drop Ceilings
- After Hours HVAC Available
| Space | Size | Term | Rental Rate | Space Use | Build-Out | Available |
| 2nd Floor | 2,431 SF | Negotiable | $16.30 CAD/SF/YR $1.36 CAD/SF/MO $39,616 CAD/YR $3,301 CAD/MO | Office | Partial Build-Out | Now |
| 2nd Floor | 3,435 SF | 1-5 Years | $16.30 CAD/SF/YR $1.36 CAD/SF/MO $55,977 CAD/YR $4,665 CAD/MO | Office | Partial Build-Out | Now |
| 2nd Floor | 675 SF | Negotiable | $16.30 CAD/SF/YR $1.36 CAD/SF/MO $11,000 CAD/YR $916.65 CAD/MO | Office | Full Build-Out | Now |
2nd Floor
| Size |
| 2,431 SF |
| Term |
| Negotiable |
| Rental Rate |
| $16.30 CAD/SF/YR $1.36 CAD/SF/MO $39,616 CAD/YR $3,301 CAD/MO |
| Space Use |
| Office |
| Build-Out |
| Partial Build-Out |
| Available |
| Now |
2nd Floor
| Size |
| 3,435 SF |
| Term |
| 1-5 Years |
| Rental Rate |
| $16.30 CAD/SF/YR $1.36 CAD/SF/MO $55,977 CAD/YR $4,665 CAD/MO |
| Space Use |
| Office |
| Build-Out |
| Partial Build-Out |
| Available |
| Now |
2nd Floor
| Size |
| 675 SF |
| Term |
| Negotiable |
| Rental Rate |
| $16.30 CAD/SF/YR $1.36 CAD/SF/MO $11,000 CAD/YR $916.65 CAD/MO |
| Space Use |
| Office |
| Build-Out |
| Full Build-Out |
| Available |
| Now |
2nd Floor
| Size | 2,431 SF |
| Term | Negotiable |
| Rental Rate | $16.30 CAD/SF/YR |
| Space Use | Office |
| Build-Out | Partial Build-Out |
| Available | Now |
This space is 2,431 Sq. feet and has 2 private offices, a storage room and an open area for up to 10-12 cubicles. This space has large windows with great views. Right on Milwaukee Ave. Very secure building with Security cameras and front door Intercom system. Shared Bathrooms in Hallway on second floor.
- Lease rate does not include utilities, property expenses or building services
- Partially Built-Out as Standard Office
- Mostly Open Floor Plan Layout
- Fits 7 - 20 People
- 2 Private Offices
- Security System
- Secure Storage
- Natural Light
- Nice Views from second story. Large corner office
2nd Floor
| Size | 3,435 SF |
| Term | 1-5 Years |
| Rental Rate | $16.30 CAD/SF/YR |
| Space Use | Office |
| Build-Out | Partial Build-Out |
| Available | Now |
The suite is 3,435 sq. feet and has 4 private offices plus a conference room, break room, reception area, cubicle area, and large storage room. Nice larger corner office. The space has large windows with great views. Right on Milwaukee Ave. Very secure building with Security cameras and front door Intercom system. Shared Bathrooms in Hallway on second floor.
- Lease rate does not include utilities, property expenses or building services
- Partially Built-Out as Standard Office
- Mostly Open Floor Plan Layout
- Fits 5 - 12 People
- 4 Private Offices
- 1 Conference Room
- Central Air Conditioning
- Reception Area
- Security System
- Closed Circuit Television Monitoring (CCTV)
- Corner Space
- High Ceilings
- Drop Ceilings
- Nice larger corner office
2nd Floor
| Size | 675 SF |
| Term | Negotiable |
| Rental Rate | $16.30 CAD/SF/YR |
| Space Use | Office |
| Build-Out | Full Build-Out |
| Available | Now |
Private second-floor corner office ideal for an accountant, consultant, attorney, or other professional seeking a quiet, secure workspace. The suite features high ceilings and a dedicated reception area, providing a professional setting for client meetings. Shared bathrooms are conveniently located in the hallway. The building offers both stair and elevator access and is secured with security cameras, a locked front entrance, and video intercom access.
- Lease rate does not include utilities, property expenses or building services
- Fully Built-Out as Professional Services Office
- Fits 1 - 2 People
- 1 Private Office
- Finished Ceilings: 10’
- Central Air and Heating
- Reception Area
- Fully Carpeted
- Closed Circuit Television Monitoring (CCTV)
- Corner Space
- High Ceilings
- Drop Ceilings
- Natural Light
- After Hours HVAC Available
- Corner office with great views
Features and Amenities
- Property Manager on Site
Property Facts
Select Tenants
- Floor
- Tenant Name
- Industry
- 1st
- Agave Loco Llc
- Manufacturing
- 1st
- Ams Auction Merchandise
- Wholesaler
- 1st
- Computers Nationwide
- Retailer
- 1st
- Fanning & Co
- Professional, Scientific, and Technical Services
- 1st
- Old National Bank
- Finance and Insurance
Presented by
Gilco Properties
1175 Corporate Woods Pkwy
Hmm, there seems to have been an error sending your message. Please try again.
Thanks! Your message was sent.









