Log In/Sign Up
Your email has been sent.
11806 Timber Point Trl 8,400 SF Industrial Building Mantua, OH 44255 $1,224,807 CAD ($145.81 CAD/SF)



Investment Highlights
- 6,000 SF clear-span warehouse with 18’ clear height and two 12’×14’ drive-in doors
- 3-Phase power & gas service — ideal for contractors, fabrication, and light manufacturing
- 2,400 SF office / showroom buildout in excellent white-box condition
- Gated & fenced rear yard with well/septic service and ability to connect to city water and sanitary
Executive Summary
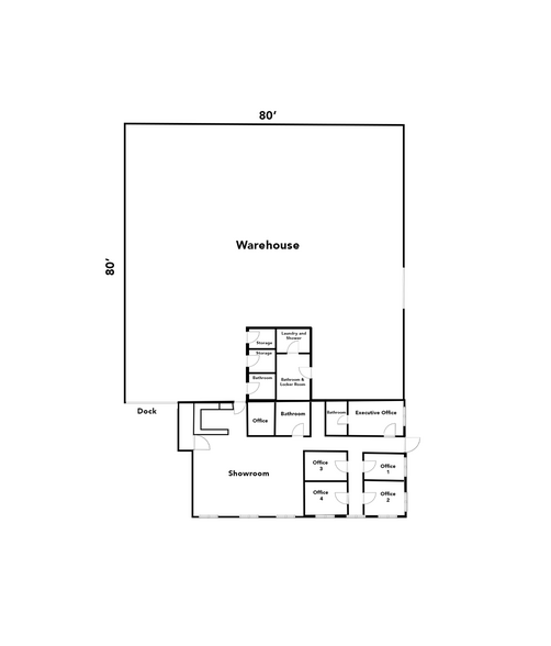
Light-industrial property ideal for owner-users or service-based businesses seeking warehouse functionality with a professional office/showroom presence. The 6,000 SF warehouse features 18-foot clear height and two 12’x14’ drive-in doors, supporting equipment storage, fabrication, and efficient vehicle access. A 2,400 SF office and showroom component offers clean, adaptable space for admin-operations, client meetings, product display or overflow storage. 3-phase power and gas service provide the infrastructure required for industrial users with optional connectivity to municipal water and sewer. The gated and fenced rear yard adds secure outdoor storage capacity on 2.01 acres. The property can be expanded for an additional 30,000 SF.
Call Cole Kroneker to learn more.
Call Cole Kroneker to learn more.
Property Facts
| Price | $1,224,807 CAD | No. Stories | 1 |
| Price Per SF | $145.81 CAD | Year Built | 2000 |
| Sale Type | Investment or Owner User | Tenancy | Single |
| Property Type | Industrial | Parking Ratio | 0.24/1,000 SF |
| Property Subtype | Warehouse | Clear Ceiling Height | 18’6” |
| Building Class | B | No. Dock-High Doors/Loading | 1 |
| Lot Size | 2.01 AC | No. Drive In / Grade-Level Doors | 2 |
| Rentable Building Area | 8,400 SF | ||
| Zoning | Commercial - Industrial - light industrial , no outdoor storage of inventory , 20 | ||
| Price | $1,224,807 CAD |
| Price Per SF | $145.81 CAD |
| Sale Type | Investment or Owner User |
| Property Type | Industrial |
| Property Subtype | Warehouse |
| Building Class | B |
| Lot Size | 2.01 AC |
| Rentable Building Area | 8,400 SF |
| No. Stories | 1 |
| Year Built | 2000 |
| Tenancy | Single |
| Parking Ratio | 0.24/1,000 SF |
| Clear Ceiling Height | 18’6” |
| No. Dock-High Doors/Loading | 1 |
| No. Drive In / Grade-Level Doors | 2 |
| Zoning | Commercial - Industrial - light industrial , no outdoor storage of inventory , 20 |
1 1
Somewhat walkable
20/100
Exceptionally drivable
100/100
Not bikeable
10/100
Property Taxes
| Parcel Number | 23-022-00-00-026-009 | Improvements Assessment | $124,013 CAD |
| Land Assessment | $38,469 CAD | Total Assessment | $162,482 CAD |
Property Taxes
Parcel Number
23-022-00-00-026-009
Land Assessment
$38,469 CAD
Improvements Assessment
$124,013 CAD
Total Assessment
$162,482 CAD
1 of 7
Videos
Matterport 3D Exterior
Matterport 3D Tour
Photos
Street View
Street
Map
1 of 1
Presented by
11806 Timber Point Trl
Already a member? Log In
Hmm, there seems to have been an error sending your message. Please try again.
Thanks! Your message was sent.
