Your email has been sent.
1185 Holt
Ontario, CA 91761
Drive-Thru & Restaurant Opportunities · Land For Lease


Highlights
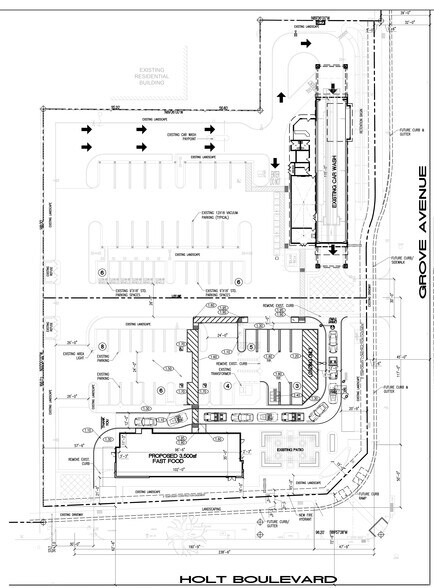
- Brand new development available for lease with options for single tenant or multi-tenant building
- Potential for drive-through and outdoor patio opportunities.
- Proximity to Ontario International Airport, which served over 5.7 million passengers in 2022.
- Shops range from ±1,200 SF to ±6,000 SF available.
- The property is located on the northwest signalized corner of Holt Boulevards and Grove Avenue, averaging 59,997 cars per day.
Property Overview
Brand new development available for lease with options for single tenant or multi-tenant building. Potential for drive-through and outdoor patio opportunities. The property is located on the northwest signalized corner of Holt Boulevards and Grove Avenue, averaging 59,997 cars per day. Proximity to Ontario International Airport, which served over 5.7 million passengers in 2022. The subject site is nearby eight established hotels, totaling 2,397 rooms, and the Ontario Convention Center (Events included: Muay Thai Purist State Championship, Anime Expo, Table Tennis US Open, SoCal Gaming Expo, and SlammedEnuff SoCal Car Show). Holt Boulevard leads to I-10 Freeway on/off-ramp, and Grove Avenue leads to East Airport Drive.
Property Facts
| Total Space Available | 0.94 AC | Property Subtype | Commercial |
| Property Type | Land | Cross Streets | S Grove Ave |
| Total Space Available | 0.94 AC |
| Property Type | Land |
| Property Subtype | Commercial |
| Cross Streets | S Grove Ave |
