Log In/Sign Up
Your email has been sent.
119-121 The Homend 2,755 SF Retail Building Ledbury HR8 1BP $533,586 CAD ($193.68 CAD/SF)



INVESTMENT HIGHLIGHTS
- Prime town centre location with good footfall
- Ground floor sales with prominent display windows
- Guide price: £285,000
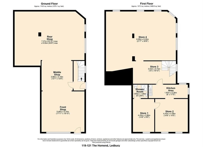
- Retail extending to approximately 2,755 SF
- First floor stores, kitchenette & WC
EXECUTIVE SUMMARY
The property is available for sale freehold with vacant possession for £285,000.
Comprising of 2,755 SF arranged over two storeys, there is an open plan ground floor retail space with the first floor offering store room space alongside a small kitchenette and WC facilities. The property benefits from prominent display windows, offering excellent exposure to both pedestrian and vehicle traffic.
Comprising of 2,755 SF arranged over two storeys, there is an open plan ground floor retail space with the first floor offering store room space alongside a small kitchenette and WC facilities. The property benefits from prominent display windows, offering excellent exposure to both pedestrian and vehicle traffic.
PROPERTY FACTS
Sale Type
Owner User
Property Type
Retail
Tenure
Freehold
Property Subtype
Building Size
2,755 SF
Building Class
C
Year Built
1950
Price
$533,586 CAD
Price Per SF
$193.68 CAD
Tenancy
Single
Building Height
2 Stories
Building FAR
0.79
Lot Size
0.08 AC
AMENITIES
- 24 Hour Access
- Signage
- Energy Performance Rating - C
- Storage Space
- Smoke Detector
1 1
NEARBY MAJOR RETAILERS
1 of 4
VIDEOS
MATTERPORT 3D EXTERIOR
MATTERPORT 3D TOUR
PHOTOS
STREET VIEW
STREET
MAP
1 of 1
Presented by
119-121 The Homend
Already a member? Log In
Hmm, there seems to have been an error sending your message. Please try again.
Thanks! Your message was sent.
