Your email has been sent.
Highlights
- Located in Loveland Commerce Park with quick access to I-71 and I-275.
- Fourteen dock doors with mechanical pit levelers and seals, plus one drive-in door.
- LED lighting and wet sprinkler system throughout the facility for safety and efficiency.
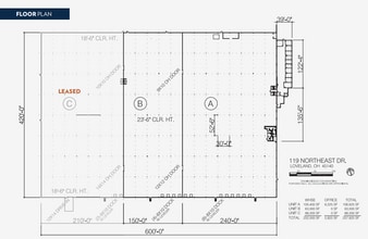
- Clear heights of 20’–24’ and column spacing of 30’ x 526’6” for efficient storage layouts.
- Robust electrical infrastructure with 9500 kVA pad-mounted transformers and multiple switchboards.
- Ample parking with concrete and asphalt surfaces accommodating approximately 100 vehicles.
Features
All Available Spaces(2)
Display Rental Rate as
- Space
- Size
- Term
- Rental Rate
- Space Use
- Build-Out
- Available
The suite offers dedicated warehouse space designed for flexible industrial use, featuring a clear height of 23 feet 6 inches and efficient 30-foot by 52-foot 6-inch column spacing to accommodate a range of operational and storage configurations. The space includes dock-high loading doors measuring 8 feet by 10 feet, along with one 9-foot by 10-foot overhead door, and provides the ability to add additional dock positions as needed. Tenants benefit from shared access to site amenities, including ample on-site parking and heavy power infrastructure. The suite is positioned for immediate occupancy, with make-ready work available and a white-box condition offered to allow for efficient customization.
- Can be combined with additional space(s) for up to 169,625 SF of adjacent space
- Dock-high & overhead doors with expansion
- 23’6” clear height, flexible column spacing
- Insulated, sprinklered, ready for occupancy
This suite comprises approximately 100,400 square feet of warehouse space complemented by 6,225 square feet of office space, offering a well-balanced industrial layout suitable for a variety of operational needs. The warehouse features a clear height of 23 feet 6 inches and efficient 30-foot by 52-foot 6-inch column spacing, allowing for flexible racking configurations and optimized storage capacity. It is equipped with multiple dock-high loading doors measuring 8 feet by 10 feet, along with one 12-foot by 14-foot drive-in door, with the ability to add additional doors to accommodate increased throughput if required. Interior improvements include energy-efficient LED lighting throughout and a wet sprinkler system to support fire protection requirements. The office component provides a functional build-out with a combination of private offices and open workstations, suitable for administrative and management use.
- Includes 6,225 SF of dedicated office space
- 100,400 SF warehouse with 6,225 SF office
- Dock-high & drive-in doors, strong power
- Can be combined with additional space(s) for up to 169,625 SF of adjacent space
- 23’6” clear height, efficient column spacing
| Space | Size | Term | Rental Rate | Space Use | Build-Out | Available |
| 1st Floor | 63,000 SF | Negotiable | Upon Request Upon Request Upon Request Upon Request | Industrial | - | Now |
| 1st Floor | 106,625 SF | Negotiable | Upon Request Upon Request Upon Request Upon Request | Industrial | - | Now |
1st Floor
| Size |
| 63,000 SF |
| Term |
| Negotiable |
| Rental Rate |
| Upon Request Upon Request Upon Request Upon Request |
| Space Use |
| Industrial |
| Build-Out |
| - |
| Available |
| Now |
1st Floor
| Size |
| 106,625 SF |
| Term |
| Negotiable |
| Rental Rate |
| Upon Request Upon Request Upon Request Upon Request |
| Space Use |
| Industrial |
| Build-Out |
| - |
| Available |
| Now |
1st Floor
| Size | 63,000 SF |
| Term | Negotiable |
| Rental Rate | Upon Request |
| Space Use | Industrial |
| Build-Out | - |
| Available | Now |
The suite offers dedicated warehouse space designed for flexible industrial use, featuring a clear height of 23 feet 6 inches and efficient 30-foot by 52-foot 6-inch column spacing to accommodate a range of operational and storage configurations. The space includes dock-high loading doors measuring 8 feet by 10 feet, along with one 9-foot by 10-foot overhead door, and provides the ability to add additional dock positions as needed. Tenants benefit from shared access to site amenities, including ample on-site parking and heavy power infrastructure. The suite is positioned for immediate occupancy, with make-ready work available and a white-box condition offered to allow for efficient customization.
- Can be combined with additional space(s) for up to 169,625 SF of adjacent space
- 23’6” clear height, flexible column spacing
- Dock-high & overhead doors with expansion
- Insulated, sprinklered, ready for occupancy
1st Floor
| Size | 106,625 SF |
| Term | Negotiable |
| Rental Rate | Upon Request |
| Space Use | Industrial |
| Build-Out | - |
| Available | Now |
This suite comprises approximately 100,400 square feet of warehouse space complemented by 6,225 square feet of office space, offering a well-balanced industrial layout suitable for a variety of operational needs. The warehouse features a clear height of 23 feet 6 inches and efficient 30-foot by 52-foot 6-inch column spacing, allowing for flexible racking configurations and optimized storage capacity. It is equipped with multiple dock-high loading doors measuring 8 feet by 10 feet, along with one 12-foot by 14-foot drive-in door, with the ability to add additional doors to accommodate increased throughput if required. Interior improvements include energy-efficient LED lighting throughout and a wet sprinkler system to support fire protection requirements. The office component provides a functional build-out with a combination of private offices and open workstations, suitable for administrative and management use.
- Includes 6,225 SF of dedicated office space
- Can be combined with additional space(s) for up to 169,625 SF of adjacent space
- 100,400 SF warehouse with 6,225 SF office
- 23’6” clear height, efficient column spacing
- Dock-high & drive-in doors, strong power
Property Overview
119 Northeast Drive offers modern industrial space in Loveland Commerce Park, ideal for warehousing, distribution, or light manufacturing. Available suites range from 63,000 to 169,625 square feet, with flexible options to combine spaces. The facility boasts 20’–24’ clear heights, LED lighting, and a wet sprinkler system for safety. Fourteen dock doors and one drive-in door provide efficient loading capabilities, with additional docks available to suit tenant needs. The property includes a metal standing seam roof, natural gas heating, and ample parking for approximately 100 vehicles. Located just minutes from I-71 and I-275, tenants benefit from quick access to major transportation routes and a surrounding area rich in amenities, including restaurants, fitness centers, and parks. Immediate occupancy is available, supported by recent ownership and make-ready improvements.
Warehouse Facility Facts
Presented by
119 Northeast Dr
Hmm, there seems to have been an error sending your message. Please try again.
Thanks! Your message was sent.







