Your email has been sent.
12 Avenue Émile Baudot 1,399 - 6,156 SF Office Condo Units Offered at $742,944 - $2,142,890 CAD Per Unit in 91120 Palaiseau



Some information has been automatically translated.
INVESTMENT HIGHLIGHTS
- Localisation premium près de la gare de Massy et des pôles économiques
- Accessibilité optimale via RER B et autoroutes A6/A10
- Services complets : parkings, sécurité 24/7, haut débit
EXECUTIVE SUMMARY
Located in the heart of Palaiseau, just steps from Massy station and key business hubs, this 5,823 m² office development is a rare opportunity for companies seeking flexibility and a strategic location. Spaces are divisible starting at 113 m², offering great adaptability to meet the needs of your business, whether you require small or large areas. The offices, modern and bright, are designed to optimize workplace well-being, featuring high-quality amenities, welcoming common areas, and excellent accessibility. The building is also equipped with numerous services, including parking, 24/7 security, and high-speed network connectivity. Ideally situated, the site provides quick access to public transportation (RER B, buses) and major highways A6 and A10, making professional travel seamless. Don’t miss this opportunity to establish your business in a high-performing and dynamic work environment. Contact us today for more information and to schedule a meeting.
PROPERTY FACTS
| Total Building Size | 87,575 SF | Typical Floor Size | 10,947 SF |
| Property Type | Office | Year Built | 2025 |
| Building Class | B | Lot Size | 1.58 AC |
| Floors | 8 |
| Total Building Size | 87,575 SF |
| Property Type | Office |
| Building Class | B |
| Floors | 8 |
| Typical Floor Size | 10,947 SF |
| Year Built | 2025 |
| Lot Size | 1.58 AC |
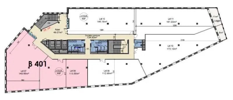
19 UNITS AVAILABLE
Unit Lot 3a
| Unit Size | 3,692 SF | Sale Type | Investment or Owner User |
| Price | $1,920,176 CAD | Sale Conditions | Bulk/Portfolio Sale |
| Price Per SF | $520.09 CAD | Agency Fee | 3.00% of sale price |
| Condo Use | Office |
| Unit Size | 3,692 SF |
| Price | $1,920,176 CAD |
| Price Per SF | $520.09 CAD |
| Condo Use | Office |
| Sale Type | Investment or Owner User |
| Sale Conditions | Bulk/Portfolio Sale |
| Agency Fee | 3.00% of sale price |
DESCRIPTION
Ce programme de bureaux totalise 5 307 m² et propose des surfaces divisibles à partir de 129 m², offrant une flexibilité idéale pour les entreprises de toutes tailles. Les espaces sont modernes, lumineux et conçus pour favoriser le confort et la productivité, avec des prestations de qualité et des aménagements optimisés. Cette modularité permet d’adapter facilement les bureaux aux besoins spécifiques de chaque activité.
SALE NOTES
Honoraires : 3%
Floor Plan
Unit Lot 3b
| Unit Size | 3,519 SF | Sale Type | Investment or Owner User |
| Price | $1,834,857 CAD | Sale Conditions | Bulk/Portfolio Sale |
| Price Per SF | $521.41 CAD | Agency Fee | 3.00% of sale price |
| Condo Use | Office |
| Unit Size | 3,519 SF |
| Price | $1,834,857 CAD |
| Price Per SF | $521.41 CAD |
| Condo Use | Office |
| Sale Type | Investment or Owner User |
| Sale Conditions | Bulk/Portfolio Sale |
| Agency Fee | 3.00% of sale price |
DESCRIPTION
Ce programme de bureaux totalise 5 307 m² et propose des surfaces divisibles à partir de 129 m², offrant une flexibilité idéale pour les entreprises de toutes tailles. Les espaces sont modernes, lumineux et conçus pour favoriser le confort et la productivité, avec des prestations de qualité et des aménagements optimisés. Cette modularité permet d’adapter facilement les bureaux aux besoins spécifiques de chaque activité.
Floor Plan
Unit Lot 3c
| Unit Size | 3,735 SF | Sale Type | Investment or Owner User |
| Price | $1,969,078 CAD | Sale Conditions | Bulk/Portfolio Sale |
| Price Per SF | $527.20 CAD | Agency Fee | 3.00% of sale price |
| Condo Use | Office |
| Unit Size | 3,735 SF |
| Price | $1,969,078 CAD |
| Price Per SF | $527.20 CAD |
| Condo Use | Office |
| Sale Type | Investment or Owner User |
| Sale Conditions | Bulk/Portfolio Sale |
| Agency Fee | 3.00% of sale price |
DESCRIPTION
Ce programme de bureaux totalise 5 307 m² et propose des surfaces divisibles à partir de 129 m², offrant une flexibilité idéale pour les entreprises de toutes tailles. Les espaces sont modernes, lumineux et conçus pour favoriser le confort et la productivité, avec des prestations de qualité et des aménagements optimisés. Cette modularité permet d’adapter facilement les bureaux aux besoins spécifiques de chaque activité.
SALE NOTES
Honoraires : 3%
Floor Plan
Unit 4
| Unit Size | 3,681 SF | Sale Type | Investment or Owner User |
| Price | $1,929,031 CAD | Sale Conditions | Bulk/Portfolio Sale |
| Price Per SF | $524.05 CAD | Agency Fee | 3.00% of sale price |
| Condo Use | Office |
| Unit Size | 3,681 SF |
| Price | $1,929,031 CAD |
| Price Per SF | $524.05 CAD |
| Condo Use | Office |
| Sale Type | Investment or Owner User |
| Sale Conditions | Bulk/Portfolio Sale |
| Agency Fee | 3.00% of sale price |
DESCRIPTION
Ce programme de bureaux totalise 5 307 m² et propose des surfaces divisibles à partir de 129 m², offrant une flexibilité idéale pour les entreprises de toutes tailles. Les espaces sont modernes, lumineux et conçus pour favoriser le confort et la productivité, avec des prestations de qualité et des aménagements optimisés. Cette modularité permet d’adapter facilement les bureaux aux besoins spécifiques de chaque activité.
SALE NOTES
Honoraires :3%
Floor Plan
Unit 5
| Unit Size | 3,659 SF | Sale Type | Investment or Owner User |
| Price | $1,922,172 CAD | Sale Conditions | Bulk/Portfolio Sale |
| Price Per SF | $525.33 CAD | Agency Fee | 3.00% of sale price |
| Condo Use | Office |
| Unit Size | 3,659 SF |
| Price | $1,922,172 CAD |
| Price Per SF | $525.33 CAD |
| Condo Use | Office |
| Sale Type | Investment or Owner User |
| Sale Conditions | Bulk/Portfolio Sale |
| Agency Fee | 3.00% of sale price |
DESCRIPTION
Ce programme de bureaux totalise 5 307 m² et propose des surfaces divisibles à partir de 129 m², offrant une flexibilité idéale pour les entreprises de toutes tailles. Les espaces sont modernes, lumineux et conçus pour favoriser le confort et la productivité, avec des prestations de qualité et des aménagements optimisés. Cette modularité permet d’adapter facilement les bureaux aux besoins spécifiques de chaque activité.
SALE NOTES
Honoraires : 3%
Floor Plan
Unit 6
| Unit Size | 3,735 SF | Sale Type | Investment or Owner User |
| Price | $1,962,310 CAD | Sale Conditions | Bulk/Portfolio Sale |
| Price Per SF | $525.38 CAD | Agency Fee | 3.00% of sale price |
| Condo Use | Office |
| Unit Size | 3,735 SF |
| Price | $1,962,310 CAD |
| Price Per SF | $525.38 CAD |
| Condo Use | Office |
| Sale Type | Investment or Owner User |
| Sale Conditions | Bulk/Portfolio Sale |
| Agency Fee | 3.00% of sale price |
DESCRIPTION
Ce programme de bureaux totalise 5 307 m² et propose des surfaces divisibles à partir de 129 m², offrant une flexibilité idéale pour les entreprises de toutes tailles. Les espaces sont modernes, lumineux et conçus pour favoriser le confort et la productivité, avec des prestations de qualité et des aménagements optimisés. Cette modularité permet d’adapter facilement les bureaux aux besoins spécifiques de chaque activité.
SALE NOTES
Honoraires :3%
Floor Plan
Unit 7
| Unit Size | 1,872 SF | Sale Type | Investment or Owner User |
| Price | $1,000,104 CAD | Sale Conditions | Bulk/Portfolio Sale |
| Price Per SF | $534.24 CAD | Agency Fee | 3.00% of sale price |
| Condo Use | Office |
| Unit Size | 1,872 SF |
| Price | $1,000,104 CAD |
| Price Per SF | $534.24 CAD |
| Condo Use | Office |
| Sale Type | Investment or Owner User |
| Sale Conditions | Bulk/Portfolio Sale |
| Agency Fee | 3.00% of sale price |
DESCRIPTION
Ce programme de bureaux totalise 5 307 m² et propose des surfaces divisibles à partir de 129 m², offrant une flexibilité idéale pour les entreprises de toutes tailles. Les espaces sont modernes, lumineux et conçus pour favoriser le confort et la productivité, avec des prestations de qualité et des aménagements optimisés. Cette modularité permet d’adapter facilement les bureaux aux besoins spécifiques de chaque activité.
SALE NOTES
Honoraires : 3%
Floor Plan
Unit 8
| Unit Size | 1,410 SF | Sale Type | Investment or Owner User |
| Price | $742,944 CAD | Sale Conditions | Bulk/Portfolio Sale |
| Price Per SF | $526.91 CAD | Agency Fee | 3.00% of sale price |
| Condo Use | Office |
| Unit Size | 1,410 SF |
| Price | $742,944 CAD |
| Price Per SF | $526.91 CAD |
| Condo Use | Office |
| Sale Type | Investment or Owner User |
| Sale Conditions | Bulk/Portfolio Sale |
| Agency Fee | 3.00% of sale price |
DESCRIPTION
Ce programme de bureaux totalise 5 307 m² et propose des surfaces divisibles à partir de 129 m², offrant une flexibilité idéale pour les entreprises de toutes tailles. Les espaces sont modernes, lumineux et conçus pour favoriser le confort et la productivité, avec des prestations de qualité et des aménagements optimisés. Cette modularité permet d’adapter facilement les bureaux aux besoins spécifiques de chaque activité.
SALE NOTES
Honoraires : 3%
Floor Plan
Unit 9
| Unit Size | 1,399 SF | Sale Type | Investment or Owner User |
| Price | $758,826 CAD | Sale Conditions | Bulk/Portfolio Sale |
| Price Per SF | $542.41 CAD | Agency Fee | 3.00% of sale price |
| Condo Use | Office |
| Unit Size | 1,399 SF |
| Price | $758,826 CAD |
| Price Per SF | $542.41 CAD |
| Condo Use | Office |
| Sale Type | Investment or Owner User |
| Sale Conditions | Bulk/Portfolio Sale |
| Agency Fee | 3.00% of sale price |
DESCRIPTION
Ce programme de bureaux totalise 5 307 m² et propose des surfaces divisibles à partir de 129 m², offrant une flexibilité idéale pour les entreprises de toutes tailles. Les espaces sont modernes, lumineux et conçus pour favoriser le confort et la productivité, avec des prestations de qualité et des aménagements optimisés. Cette modularité permet d’adapter facilement les bureaux aux besoins spécifiques de chaque activité.
SALE NOTES
Honoraires :3%
Floor Plan
Unit 12
| Unit Size | 1,776 SF | Sale Type | Investment or Owner User |
| Price | $954,007 CAD | Sale Conditions | Bulk/Portfolio Sale |
| Price Per SF | $537.17 CAD | Agency Fee | 3.00% of sale price |
| Condo Use | Office |
| Unit Size | 1,776 SF |
| Price | $954,007 CAD |
| Price Per SF | $537.17 CAD |
| Condo Use | Office |
| Sale Type | Investment or Owner User |
| Sale Conditions | Bulk/Portfolio Sale |
| Agency Fee | 3.00% of sale price |
DESCRIPTION
Ce programme de bureaux totalise 5 307 m² et propose des surfaces divisibles à partir de 129 m², offrant une flexibilité idéale pour les entreprises de toutes tailles. Les espaces sont modernes, lumineux et conçus pour favoriser le confort et la productivité, avec des prestations de qualité et des aménagements optimisés. Cette modularité permet d’adapter facilement les bureaux aux besoins spécifiques de chaque activité.
SALE NOTES
Honoraires : 3%
Floor Plan
Unit 15
| Unit Size | 3,735 SF | Sale Type | Investment or Owner User |
| Price | $1,990,512 CAD | Sale Conditions | Bulk/Portfolio Sale |
| Price Per SF | $532.93 CAD | Agency Fee | 3.00% of sale price |
| Condo Use | Office |
| Unit Size | 3,735 SF |
| Price | $1,990,512 CAD |
| Price Per SF | $532.93 CAD |
| Condo Use | Office |
| Sale Type | Investment or Owner User |
| Sale Conditions | Bulk/Portfolio Sale |
| Agency Fee | 3.00% of sale price |
DESCRIPTION
Ce programme de bureaux totalise 5 307 m² et propose des surfaces divisibles à partir de 129 m², offrant une flexibilité idéale pour les entreprises de toutes tailles. Les espaces sont modernes, lumineux et conçus pour favoriser le confort et la productivité, avec des prestations de qualité et des aménagements optimisés. Cette modularité permet d’adapter facilement les bureaux aux besoins spécifiques de chaque activité.
SALE NOTES
Honoraires :3%
Floor Plan
Unit 16a
| Unit Size | 3,692 SF | Sale Type | Investment or Owner User |
| Price | $1,987,081 CAD | Sale Conditions | Bulk/Portfolio Sale |
| Price Per SF | $538.21 CAD | Agency Fee | 3.00% of sale price |
| Condo Use | Office |
| Unit Size | 3,692 SF |
| Price | $1,987,081 CAD |
| Price Per SF | $538.21 CAD |
| Condo Use | Office |
| Sale Type | Investment or Owner User |
| Sale Conditions | Bulk/Portfolio Sale |
| Agency Fee | 3.00% of sale price |
DESCRIPTION
Ce programme de bureaux totalise 5 307 m² et propose des surfaces divisibles à partir de 129 m², offrant une flexibilité idéale pour les entreprises de toutes tailles. Les espaces sont modernes, lumineux et conçus pour favoriser le confort et la productivité, avec des prestations de qualité et des aménagements optimisés. Cette modularité permet d’adapter facilement les bureaux aux besoins spécifiques de chaque activité.
SALE NOTES
Honoraires : 3%
Floor Plan
Unit 16b
| Unit Size | 3,745 SF | Sale Type | Investment or Owner User |
| Price | $2,022,269 CAD | Sale Conditions | Bulk/Portfolio Sale |
| Price Per SF | $539.99 CAD | Agency Fee | 3.00% of sale price |
| Condo Use | Office |
| Unit Size | 3,745 SF |
| Price | $2,022,269 CAD |
| Price Per SF | $539.99 CAD |
| Condo Use | Office |
| Sale Type | Investment or Owner User |
| Sale Conditions | Bulk/Portfolio Sale |
| Agency Fee | 3.00% of sale price |
DESCRIPTION
Ce programme de bureaux totalise 5 307 m² et propose des surfaces divisibles à partir de 129 m², offrant une flexibilité idéale pour les entreprises de toutes tailles. Les espaces sont modernes, lumineux et conçus pour favoriser le confort et la productivité, avec des prestations de qualité et des aménagements optimisés. Cette modularité permet d’adapter facilement les bureaux aux besoins spécifiques de chaque activité.
SALE NOTES
Honoraires :3%
Floor Plan
Unit 16c
| Unit Size | 3,735 SF | Sale Type | Investment or Owner User |
| Price | $2,039,584 CAD | Sale Conditions | Bulk/Portfolio Sale |
| Price Per SF | $546.07 CAD | Agency Fee | 3.00% of sale price |
| Condo Use | Office |
| Unit Size | 3,735 SF |
| Price | $2,039,584 CAD |
| Price Per SF | $546.07 CAD |
| Condo Use | Office |
| Sale Type | Investment or Owner User |
| Sale Conditions | Bulk/Portfolio Sale |
| Agency Fee | 3.00% of sale price |
DESCRIPTION
Ce programme de bureaux totalise 5 307 m² et propose des surfaces divisibles à partir de 129 m², offrant une flexibilité idéale pour les entreprises de toutes tailles. Les espaces sont modernes, lumineux et conçus pour favoriser le confort et la productivité, avec des prestations de qualité et des aménagements optimisés. Cette modularité permet d’adapter facilement les bureaux aux besoins spécifiques de chaque activité.
SALE NOTES
Honoraires :3 %
Floor Plan
Unit 17a
| Unit Size | 3,519 SF | Sale Type | Investment or Owner User |
| Price | $1,975,182 CAD | Sale Conditions | Bulk/Portfolio Sale |
| Price Per SF | $561.29 CAD | Agency Fee | 3.00% of sale price |
| Condo Use | Office |
| Unit Size | 3,519 SF |
| Price | $1,975,182 CAD |
| Price Per SF | $561.29 CAD |
| Condo Use | Office |
| Sale Type | Investment or Owner User |
| Sale Conditions | Bulk/Portfolio Sale |
| Agency Fee | 3.00% of sale price |
DESCRIPTION
Ce programme de bureaux totalise 5 307 m² et propose des surfaces divisibles à partir de 129 m², offrant une flexibilité idéale pour les entreprises de toutes tailles. Les espaces sont modernes, lumineux et conçus pour favoriser le confort et la productivité, avec des prestations de qualité et des aménagements optimisés. Cette modularité permet d’adapter facilement les bureaux aux besoins spécifiques de chaque activité.
SALE NOTES
Honoraires: 3%
Floor Plan
Unit 17B
| Unit Size | 3,670 SF | Sale Type | Investment or Owner User |
| Price | $2,142,890 CAD | Sale Conditions | Bulk/Portfolio Sale |
| Price Per SF | $583.89 CAD | Agency Fee | 3.00% of sale price |
| Condo Use | Office |
| Unit Size | 3,670 SF |
| Price | $2,142,890 CAD |
| Price Per SF | $583.89 CAD |
| Condo Use | Office |
| Sale Type | Investment or Owner User |
| Sale Conditions | Bulk/Portfolio Sale |
| Agency Fee | 3.00% of sale price |
DESCRIPTION
Ce programme de bureaux totalise 5 307 m² et propose des surfaces divisibles à partir de 129 m², offrant une flexibilité idéale pour les entreprises de toutes tailles. Les espaces sont modernes, lumineux et conçus pour favoriser le confort et la productivité, avec des prestations de qualité et des aménagements optimisés. Cette modularité permet d’adapter facilement les bureaux aux besoins spécifiques de chaque activité.
SALE NOTES
Honoraires :3%
Floor Plan
| Unit Size | 6,156 SF | Sale Type | Investment or Owner User |
| Condo Use | Office | Agency Fee | 3.00% of sale price |
| Unit Size | 6,156 SF |
| Condo Use | Office |
| Sale Type | Investment or Owner User |
| Agency Fee | 3.00% of sale price |
DESCRIPTION
Ce programme de bureaux totalise 5 307 m² et propose des surfaces divisibles à partir de 129 m², offrant une flexibilité idéale pour les entreprises de toutes tailles. Les espaces sont modernes, lumineux et conçus pour favoriser le confort et la productivité, avec des prestations de qualité et des aménagements optimisés. Cette modularité permet d’adapter facilement les bureaux aux besoins spécifiques de chaque activité.
Unit 18b
| Unit Size | 3,110 SF | Sale Type | Investment or Owner User |
| Price | $1,713,236 CAD | Sale Conditions | Bulk/Portfolio Sale |
| Price Per SF | $550.88 CAD | Agency Fee | 3.00% of sale price |
| Condo Use | Office |
| Unit Size | 3,110 SF |
| Price | $1,713,236 CAD |
| Price Per SF | $550.88 CAD |
| Condo Use | Office |
| Sale Type | Investment or Owner User |
| Sale Conditions | Bulk/Portfolio Sale |
| Agency Fee | 3.00% of sale price |
DESCRIPTION
Ce programme de bureaux totalise 5 307 m² et propose des surfaces divisibles à partir de 129 m², offrant une flexibilité idéale pour les entreprises de toutes tailles. Les espaces sont modernes, lumineux et conçus pour favoriser le confort et la productivité, avec des prestations de qualité et des aménagements optimisés. Cette modularité permet d’adapter facilement les bureaux aux besoins spécifiques de chaque activité.
SALE NOTES
Honoraires : 3%
Floor Plan
Unit 18A
| Unit Size | 3,444 SF | Sale Type | Investment or Owner User |
| Price | $1,913,134 CAD | Sale Conditions | Bulk/Portfolio Sale |
| Price Per SF | $555.50 CAD | Agency Fee | 3.00% of sale price |
| Condo Use | Office |
| Unit Size | 3,444 SF |
| Price | $1,913,134 CAD |
| Price Per SF | $555.50 CAD |
| Condo Use | Office |
| Sale Type | Investment or Owner User |
| Sale Conditions | Bulk/Portfolio Sale |
| Agency Fee | 3.00% of sale price |
DESCRIPTION
Ce programme de bureaux totalise 5 307 m² et propose des surfaces divisibles à partir de 129 m², offrant une flexibilité idéale pour les entreprises de toutes tailles. Les espaces sont modernes, lumineux et conçus pour favoriser le confort et la productivité, avec des prestations de qualité et des aménagements optimisés. Cette modularité permet d’adapter facilement les bureaux aux besoins spécifiques de chaque activité.
SALE NOTES
Honoraires :3%
Floor Plan
Presented by
Company Not Provided
12 Avenue Émile Baudot
Hmm, there seems to have been an error sending your message. Please try again.
Thanks! Your message was sent.











