Your email has been sent.
12 Park Drive - Park Drive, Uplands, Swansea 0.16 Acres of Commercial Land Offered at $465,749 CAD in Sketty SA2 0PP



Investment Highlights
- Full planning permission for 2 detached homes
- Close to Swansea University, coastline and local amenities
- High-quality architectural design and materials
Executive Summary
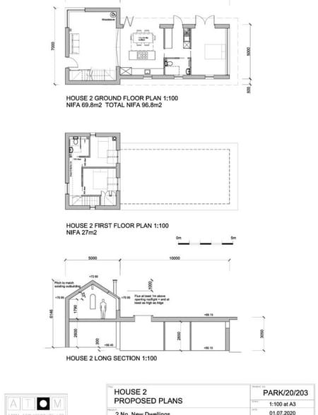
The site benefits from full detailed planning permission (Ref: 2023/1885/S73) for the construction of two contemporary three-bedroom detached dwellings, each designed to provide modern family accommodation with private gardens and off-road parking.
The proposed scheme features high-quality architectural design incorporating Gwryd Blue Pennant Sandstone, natural slate roofing, cedar cladding, smooth render and anthracite aluminium windows, creating an attractive and contemporary finish.
The properties are arranged across two floors and include spacious open-plan living areas, kitchens, multiple bedrooms, and modern bathrooms. Both houses benefit from landscaped rear gardens and private parking.
The development sits in a tucked-away position off Park Drive, backing onto Cwmdonkin Park and enjoying views towards Swansea Bay. The location is within easy reach of Swansea University, the Swansea coastline, excellent local schools and the vibrant cafés, restaurants and shops of the Uplands quarter.
This opportunity is ideally suited to developers or investors seeking a well-located residential scheme in an established and high-demand residential area.
Further information, planning documents and architectural drawings are available upon request or via the Swansea planning portal.
Property Facts
| Price | $465,749 CAD | Property Type | Land |
| Sale Type | Investment | Property Subtype | Commercial |
| Tenure | Freehold | Proposed Use | Single Family Residence |
| No. Lots | 1 | Total Lot Size | 0.16 AC |
| Price | $465,749 CAD |
| Sale Type | Investment |
| Tenure | Freehold |
| No. Lots | 1 |
| Property Type | Land |
| Property Subtype | Commercial |
| Proposed Use | Single Family Residence |
| Total Lot Size | 0.16 AC |
1 Lot Available
Lot
| Price | $465,749 CAD | Lot Size | 0.16 AC |
| Price Per AC | $2,910,932.86 CAD |
| Price | $465,749 CAD |
| Price Per AC | $2,910,932.86 CAD |
| Lot Size | 0.16 AC |
Prime residential development plot with full planning permission for two contemporary three-bedroom detached homes in the highly desirable Uplands area of Swansea, adjacent to Cwmdonkin Park and benefiting from sea views.
Description
Prime residential development opportunity located off Park Drive in the desirable Uplands area of Swansea. The site has full planning consent for two high-specification detached homes arranged over two floors. Each property includes open-plan living accommodation, three bedrooms, modern kitchens and bathrooms, private gardens and off-road parking. Externally the homes will feature a premium materials palette including sandstone, slate roofing, cedar cladding and aluminium glazing. The site benefits from a quiet position adjacent to Cwmdonkin Park while remaining within walking distance of the Uplands district centre, Swansea University and the Swansea coastline. The surrounding area is characterised by attractive residential housing and strong demand for high-quality family homes.
Presented by
12 Park Drive - Park Drive, Uplands, Swansea
Hmm, there seems to have been an error sending your message. Please try again.
Thanks! Your message was sent.

