Your email has been sent.
All Available Spaces(5)
Display Rental Rate as
- Space
- Size
- Term
- Rental Rate
- Space Use
- Build-Out
- Available
Integrated flex space with 25 ft ceiling height, oversized drive-in door, wide column bays, and locker rooms with showers. Skylights bring in tons of light throughout a space that could be home to a number of different uses. On-site amenities include parking and a coffee shop.
- Listed rate may not include certain utilities, building services and property expenses
Newly built out beautiful and furnished space with glass offices, bow truss ceilings, skylights, river views. Parking and a riverwalk are right outside the front door. Tons of light throughout, perfect mix of office and open space.
- Listed rate may not include certain utilities, building services and property expenses
- Fits 21 - 65 People
- 2 Conference Rooms
- High End Trophy Space
- Spec Condition
- Fully Furnished
- Mostly Open Floor Plan Layout
- 20 Private Offices
- Finished Ceilings: 11’ - 16’
- Can be combined with additional space(s) for up to 31,291 SF of adjacent space
- On-Site Parking
Super cool small, (1500 sf), urban flex space with operable garage door, skylights, and a single glass office. Dedicated parking within feet of entry with guest parking spots available too.
- Listed rate may not include certain utilities, building services and property expenses
- Mostly Open Floor Plan Layout
- Can be combined with additional space(s) for up to 31,291 SF of adjacent space
- Includes 1,519 SF of dedicated office space
- Partially Built-Out as Standard Office
- Fits 4 - 13 People
- Central Air and Heating
- Listed rate may not include certain utilities, building services and property expenses
- Can be combined with additional space(s) for up to 31,291 SF of adjacent space
- Fits 22 - 70 People
Beautiful, furnished modern creative office. Previously built out and occupied by the the building's developer. Glass offices and conference rooms, upgraded kitchen, customized furniture, and a private rooftop deck. On-Site parking included.
- Listed rate may not include certain utilities, building services and property expenses
- 19 Private Offices
- High End Trophy Space
- Can be combined with additional space(s) for up to 31,291 SF of adjacent space
- Print/Copy Room
- Private Restrooms
- Natural Light
- Fully Furnished
- Fits 33 - 105 People
- Conference Rooms
- Plug & Play
- Reception Area
- Balcony
- High Ceilings
- On-Site Parking
- Private Roof Deck
| Space | Size | Term | Rental Rate | Space Use | Build-Out | Available |
| 1st Floor - 100A | 11,588 SF | Negotiable | $47.75 CAD/SF/YR $3.98 CAD/SF/MO $553,308 CAD/YR $46,109 CAD/MO | Flex | - | 2026-05-01 |
| 1st Floor, Ste 100C | 8,015 SF | Negotiable | $51.84 CAD/SF/YR $4.32 CAD/SF/MO $415,507 CAD/YR $34,626 CAD/MO | Office | Spec Suite | Now |
| 1st Floor, Ste 100N | 1,519 SF | Negotiable | $51.84 CAD/SF/YR $4.32 CAD/SF/MO $78,747 CAD/YR $6,562 CAD/MO | Office | Partial Build-Out | Now |
| 1st Floor, Ste 100W | 8,696 SF | Negotiable | $51.84 CAD/SF/YR $4.32 CAD/SF/MO $450,810 CAD/YR $37,568 CAD/MO | Office | - | 60 Days |
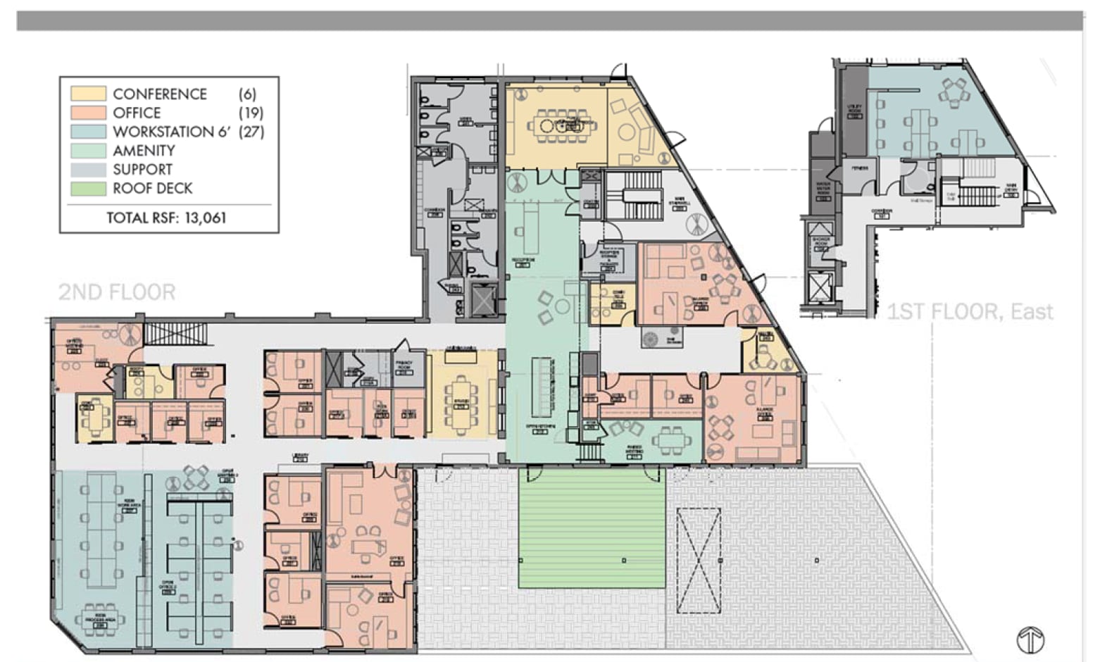
| 2nd Floor, Ste 200 | 13,061 SF | Negotiable | $54.57 CAD/SF/YR $4.55 CAD/SF/MO $712,734 CAD/YR $59,394 CAD/MO | Office | Full Build-Out | 60 Days |
1st Floor - 100A
| Size |
| 11,588 SF |
| Term |
| Negotiable |
| Rental Rate |
| $47.75 CAD/SF/YR $3.98 CAD/SF/MO $553,308 CAD/YR $46,109 CAD/MO |
| Space Use |
| Flex |
| Build-Out |
| - |
| Available |
| 2026-05-01 |
1st Floor, Ste 100C
| Size |
| 8,015 SF |
| Term |
| Negotiable |
| Rental Rate |
| $51.84 CAD/SF/YR $4.32 CAD/SF/MO $415,507 CAD/YR $34,626 CAD/MO |
| Space Use |
| Office |
| Build-Out |
| Spec Suite |
| Available |
| Now |
1st Floor, Ste 100N
| Size |
| 1,519 SF |
| Term |
| Negotiable |
| Rental Rate |
| $51.84 CAD/SF/YR $4.32 CAD/SF/MO $78,747 CAD/YR $6,562 CAD/MO |
| Space Use |
| Office |
| Build-Out |
| Partial Build-Out |
| Available |
| Now |
1st Floor, Ste 100W
| Size |
| 8,696 SF |
| Term |
| Negotiable |
| Rental Rate |
| $51.84 CAD/SF/YR $4.32 CAD/SF/MO $450,810 CAD/YR $37,568 CAD/MO |
| Space Use |
| Office |
| Build-Out |
| - |
| Available |
| 60 Days |
2nd Floor, Ste 200
| Size |
| 13,061 SF |
| Term |
| Negotiable |
| Rental Rate |
| $54.57 CAD/SF/YR $4.55 CAD/SF/MO $712,734 CAD/YR $59,394 CAD/MO |
| Space Use |
| Office |
| Build-Out |
| Full Build-Out |
| Available |
| 60 Days |
1st Floor - 100A
| Size | 11,588 SF |
| Term | Negotiable |
| Rental Rate | $47.75 CAD/SF/YR |
| Space Use | Flex |
| Build-Out | - |
| Available | 2026-05-01 |
Integrated flex space with 25 ft ceiling height, oversized drive-in door, wide column bays, and locker rooms with showers. Skylights bring in tons of light throughout a space that could be home to a number of different uses. On-site amenities include parking and a coffee shop.
- Listed rate may not include certain utilities, building services and property expenses
1st Floor, Ste 100C
| Size | 8,015 SF |
| Term | Negotiable |
| Rental Rate | $51.84 CAD/SF/YR |
| Space Use | Office |
| Build-Out | Spec Suite |
| Available | Now |
Newly built out beautiful and furnished space with glass offices, bow truss ceilings, skylights, river views. Parking and a riverwalk are right outside the front door. Tons of light throughout, perfect mix of office and open space.
- Listed rate may not include certain utilities, building services and property expenses
- Mostly Open Floor Plan Layout
- Fits 21 - 65 People
- 20 Private Offices
- 2 Conference Rooms
- Finished Ceilings: 11’ - 16’
- High End Trophy Space
- Can be combined with additional space(s) for up to 31,291 SF of adjacent space
- Spec Condition
- On-Site Parking
- Fully Furnished
1st Floor, Ste 100N
| Size | 1,519 SF |
| Term | Negotiable |
| Rental Rate | $51.84 CAD/SF/YR |
| Space Use | Office |
| Build-Out | Partial Build-Out |
| Available | Now |
Super cool small, (1500 sf), urban flex space with operable garage door, skylights, and a single glass office. Dedicated parking within feet of entry with guest parking spots available too.
- Listed rate may not include certain utilities, building services and property expenses
- Partially Built-Out as Standard Office
- Mostly Open Floor Plan Layout
- Fits 4 - 13 People
- Can be combined with additional space(s) for up to 31,291 SF of adjacent space
- Central Air and Heating
- Includes 1,519 SF of dedicated office space
1st Floor, Ste 100W
| Size | 8,696 SF |
| Term | Negotiable |
| Rental Rate | $51.84 CAD/SF/YR |
| Space Use | Office |
| Build-Out | - |
| Available | 60 Days |
- Listed rate may not include certain utilities, building services and property expenses
- Fits 22 - 70 People
- Can be combined with additional space(s) for up to 31,291 SF of adjacent space
2nd Floor, Ste 200
| Size | 13,061 SF |
| Term | Negotiable |
| Rental Rate | $54.57 CAD/SF/YR |
| Space Use | Office |
| Build-Out | Full Build-Out |
| Available | 60 Days |
Beautiful, furnished modern creative office. Previously built out and occupied by the the building's developer. Glass offices and conference rooms, upgraded kitchen, customized furniture, and a private rooftop deck. On-Site parking included.
- Listed rate may not include certain utilities, building services and property expenses
- Fits 33 - 105 People
- 19 Private Offices
- Conference Rooms
- High End Trophy Space
- Plug & Play
- Can be combined with additional space(s) for up to 31,291 SF of adjacent space
- Reception Area
- Print/Copy Room
- Balcony
- Private Restrooms
- High Ceilings
- Natural Light
- On-Site Parking
- Fully Furnished
- Private Roof Deck
Property Overview
1200 North Branch is a highly-improved 55,000 SF Creative Office development on a 3.5 acre site on the North Branch of the Chicago River. The property is located on Chicago’s Goose Island at the intersection of North Branch Street and Division Street. Tenant's enjoy dedicated parking, great light, and immediate access to the river.
- Restaurant
- Signage
- Skylights
- Wheelchair Accessible
- Partitioned Offices
- Air Conditioning
- Smoke Detector
Property Facts
Select Tenants
- Floor
- Tenant Name
- Industry
- 1st
- Azumo
- Manufacturing
- 1st
- Circle Logistics
- Transportation and Warehousing
- 1st
- Passion House Coffee
- Accommodation and Food Services
Presented by
1200 N Branch St
Hmm, there seems to have been an error sending your message. Please try again.
Thanks! Your message was sent.


















