Log In/Sign Up
Your email has been sent.
Executive Summary
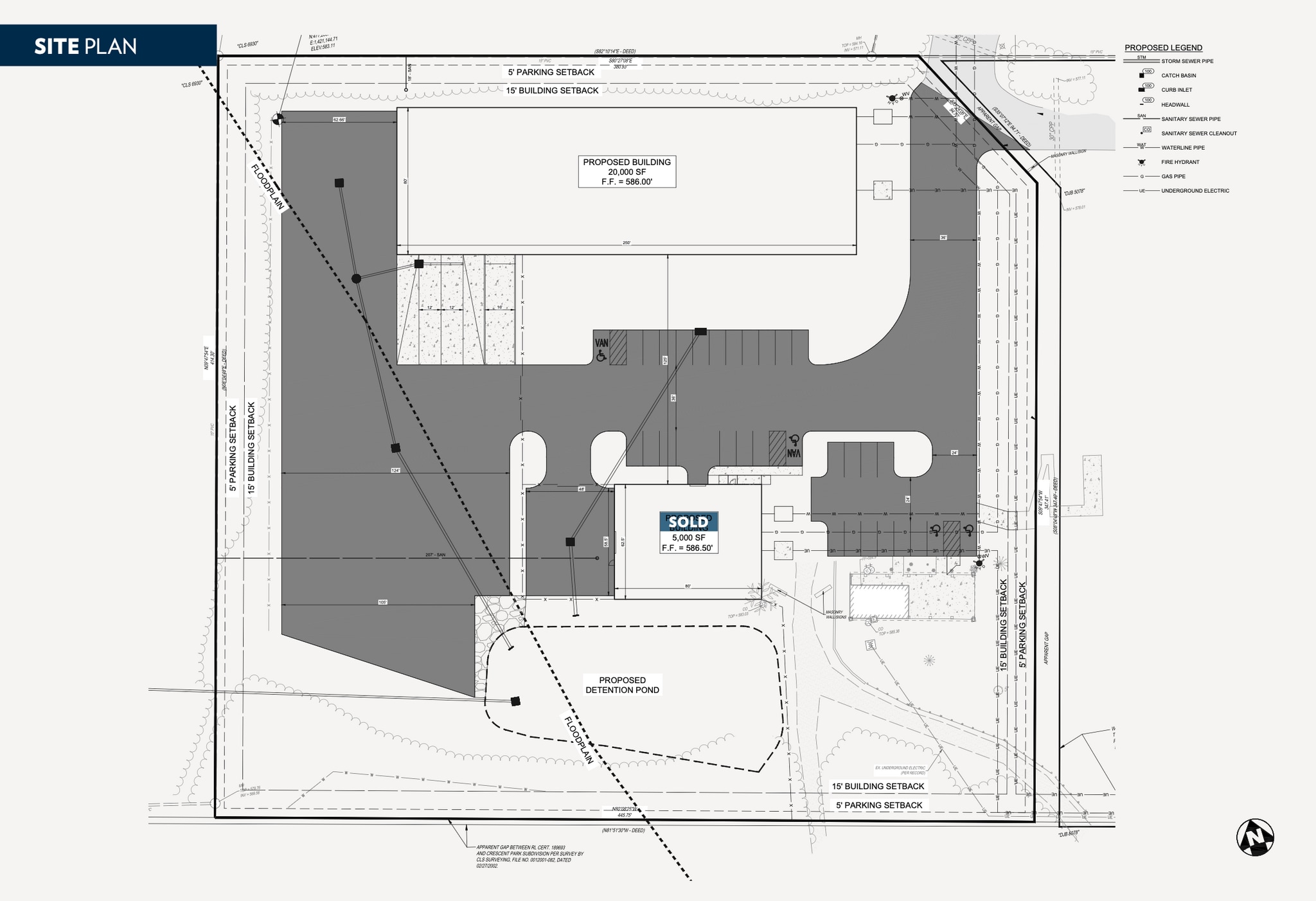
Class A New Construction located in Sharonville
20,000 SqFt available with potential for outdoor storage yard
Pre-engineered metal building, fully insulated
Construction services by Kiesland Development
Construction to begin Spring 2026 with Spring 2027 estimated completion
Located in Sharonville with immediate access to I-275/I-75
Lease Rate: Negotiable
Sale Price: Negotiable
Site is pad/shovel ready for development and all utilities on site
15-year / 100% property tax abatement on new construction
20,000 SqFt available with potential for outdoor storage yard
Pre-engineered metal building, fully insulated
Construction services by Kiesland Development
Construction to begin Spring 2026 with Spring 2027 estimated completion
Located in Sharonville with immediate access to I-275/I-75
Lease Rate: Negotiable
Sale Price: Negotiable
Site is pad/shovel ready for development and all utilities on site
15-year / 100% property tax abatement on new construction
Property Facts
| Sale Type | Owner User | Year Built | 2027 |
| Property Type | Industrial | Clear Ceiling Height | 24’ |
| Construction Status | Under Construction | No. Dock-High Doors/Loading | 2 |
| Rentable Building Area | 20,000 SF | No. Drive In / Grade-Level Doors | 1 |
| No. Stories | 1 |
| Sale Type | Owner User |
| Property Type | Industrial |
| Construction Status | Under Construction |
| Rentable Building Area | 20,000 SF |
| No. Stories | 1 |
| Year Built | 2027 |
| Clear Ceiling Height | 24’ |
| No. Dock-High Doors/Loading | 2 |
| No. Drive In / Grade-Level Doors | 1 |
Space Availability
- Space
- Size
- Space Use
- Build-Out
- Available
Class A New Construction located in Sharonville 20,000 SqFt available with potential for outdoor storage yard Pre-engineered metal building, fully insulated Construction services by Kiesland Development Construction to begin Spring 2026 with Spring 2027 estimated completion
| Space | Size | Space Use | Build-Out | Available |
| 1st Floor | 20,000 SF | Industrial | - | Now |
1st Floor
| Size |
| 20,000 SF |
| Space Use |
| Industrial |
| Build-Out |
| - |
| Available |
| Now |
1 of 3
Videos
Matterport 3D Exterior
Matterport 3D Tour
Photos
Street View
Street
Map
1st Floor
| Size | 20,000 SF |
| Space Use | Industrial |
| Build-Out | - |
| Available | Now |
Class A New Construction located in Sharonville 20,000 SqFt available with potential for outdoor storage yard Pre-engineered metal building, fully insulated Construction services by Kiesland Development Construction to begin Spring 2026 with Spring 2027 estimated completion
1 1
Somewhat walkable
30/100
Exceptionally drivable
100/100
Limited public transit
20/100
Fairly bikeable
40/100
Property Taxes
| Parcel Number | 608-0023-0275 | Improvements Assessment | $33,901 CAD |
| Land Assessment | $95,733 CAD | Total Assessment | $129,634 CAD |
Property Taxes
Parcel Number
608-0023-0275
Land Assessment
$95,733 CAD
Improvements Assessment
$33,901 CAD
Total Assessment
$129,634 CAD
1 of 8
Videos
Matterport 3D Exterior
Matterport 3D Tour
Photos
Street View
Street
Map
1 of 1
Presented by
12033 Best Pl
Already a member? Log In
Hmm, there seems to have been an error sending your message. Please try again.
Thanks! Your message was sent.






