Log In/Sign Up
Your email has been sent.
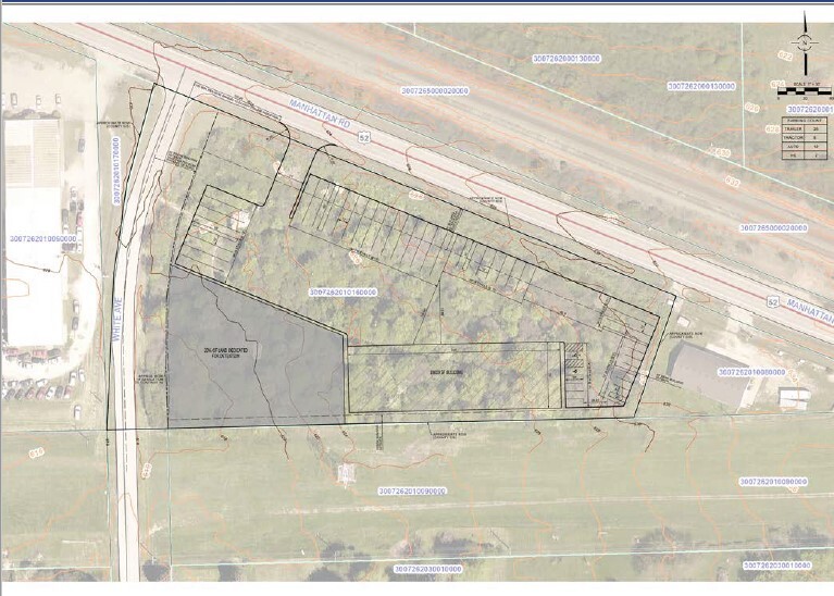
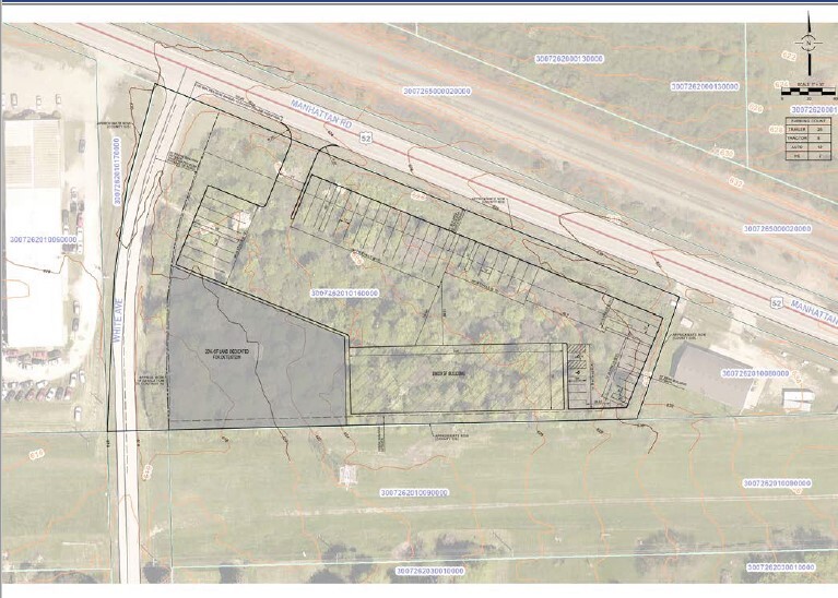
1209 Manhattan Rd - Joliet 3.37 Acres, Zoned I-2 3.37 Acres of Industrial Land Offered at $1,205,313 CAD in Joliet, IL 60433

Property Facts
| Price | $1,205,313 CAD | Property Subtype | Industrial |
| Sale Type | Investment | Proposed Use | |
| No. Lots | 1 | Total Lot Size | 3.37 AC |
| Property Type | Land | ||
| Zoning | I-2 - Industrial | ||
| Price | $1,205,313 CAD |
| Sale Type | Investment |
| No. Lots | 1 |
| Property Type | Land |
| Property Subtype | Industrial |
| Proposed Use | |
| Total Lot Size | 3.37 AC |
| Zoning | I-2 - Industrial |
1 Lot Available
Lot
| Price | $1,205,313 CAD | Lot Size | 3.37 AC |
| Price Per AC | $357,659.51 CAD |
| Price | $1,205,313 CAD |
| Price Per AC | $357,659.51 CAD |
| Lot Size | 3.37 AC |
• 3.37 Acres • Zoned I-2 • Unincorporated Will County • Direct Frontage on US Route 52 • Minutes to Joliet and Elwood Intermodal • Direct Access to Full Interchanges at Briggs/I-80 and Rte 53/I-80 • Limited product type in the market
Description
• 3.37 Acres • Zoned I-2 • Unincorporated Will County • Direct Frontage on US Route 52 • Minutes to Joliet and Elwood Intermodal • Direct Access to Full Interchanges at Briggs/I-80 and Rte 53/I-80
1 1
Somewhat walkable
20/100
Exceptionally drivable
100/100
Somewhat bikeable
30/100
1 of 2
Videos
Matterport 3D Exterior
Matterport 3D Tour
Photos
Street View
Street
Map
1 of 1
Presented by
1209 Manhattan Rd - Joliet 3.37 Acres, Zoned I-2
Already a member? Log In
Hmm, there seems to have been an error sending your message. Please try again.
Thanks! Your message was sent.
