Your email has been sent.
Rockville Metro Plaza II 121 Rockville Pike 2,531 - 186,235 SF of 4-Star Space Available in Rockville, MD 20850



Highlights
- Premier office with open, modern aesthetic.
- Parking Garage in the building
- Ground level retail and restaurant
- Walkable to Town Center
- Across the street form Metro
- Class A finishes and design
Display Rental Rate as
- Space
- Size
- Term
- Rental Rate
- Space Use
- Condition
- Available
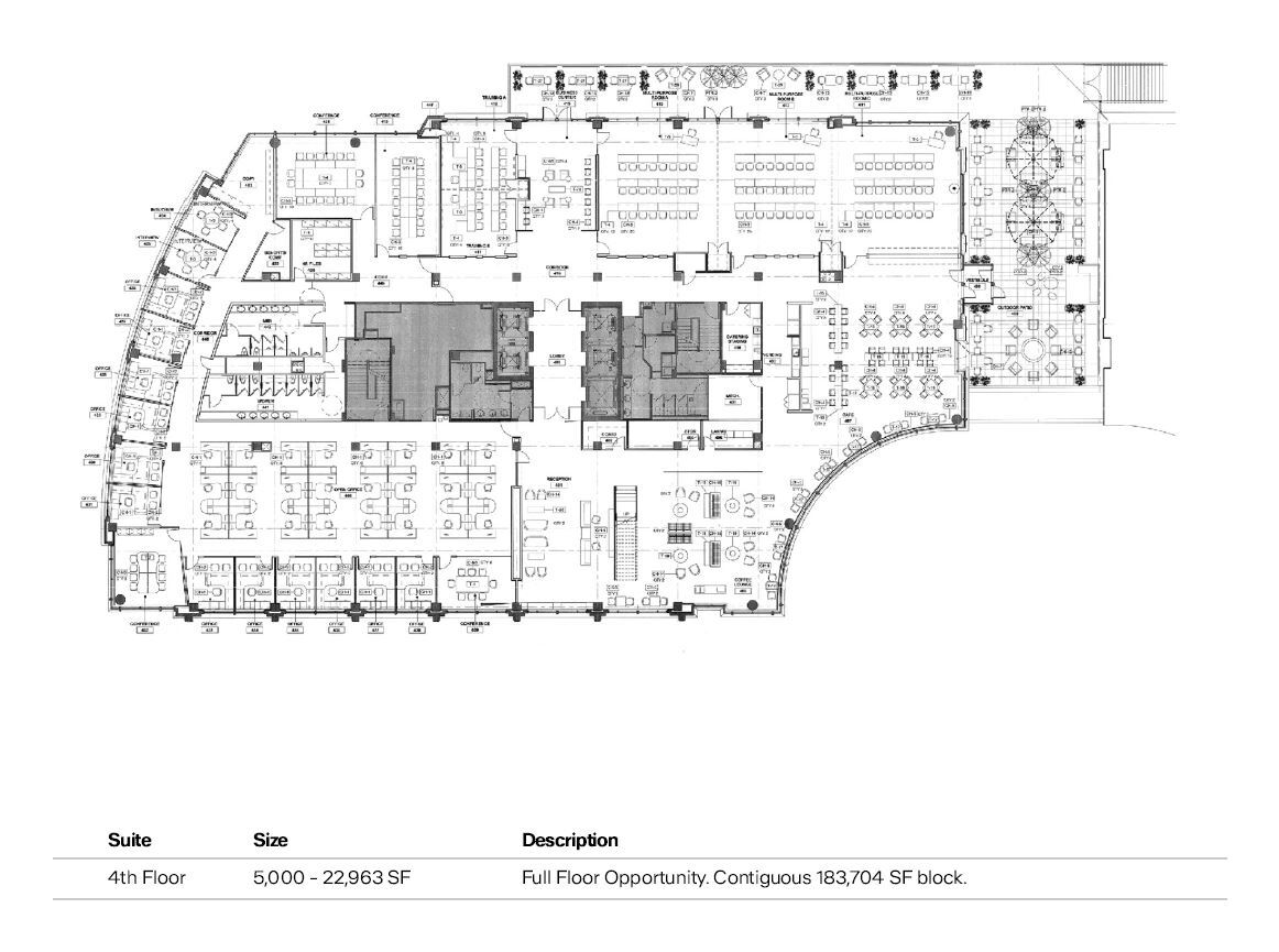
Space can be subdivided. Contiguous 183,704 SF block available between 4th - 11th floors. Outdoor terrace access on 4th floor.
- Rate includes utilities, building services and property expenses
- Mostly Open Floor Plan Layout
- Can be combined with additional space(s) for up to 183,704 SF of adjacent space
- Fully Built-Out as Standard Office
- Space is in Excellent Condition
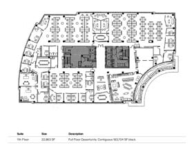
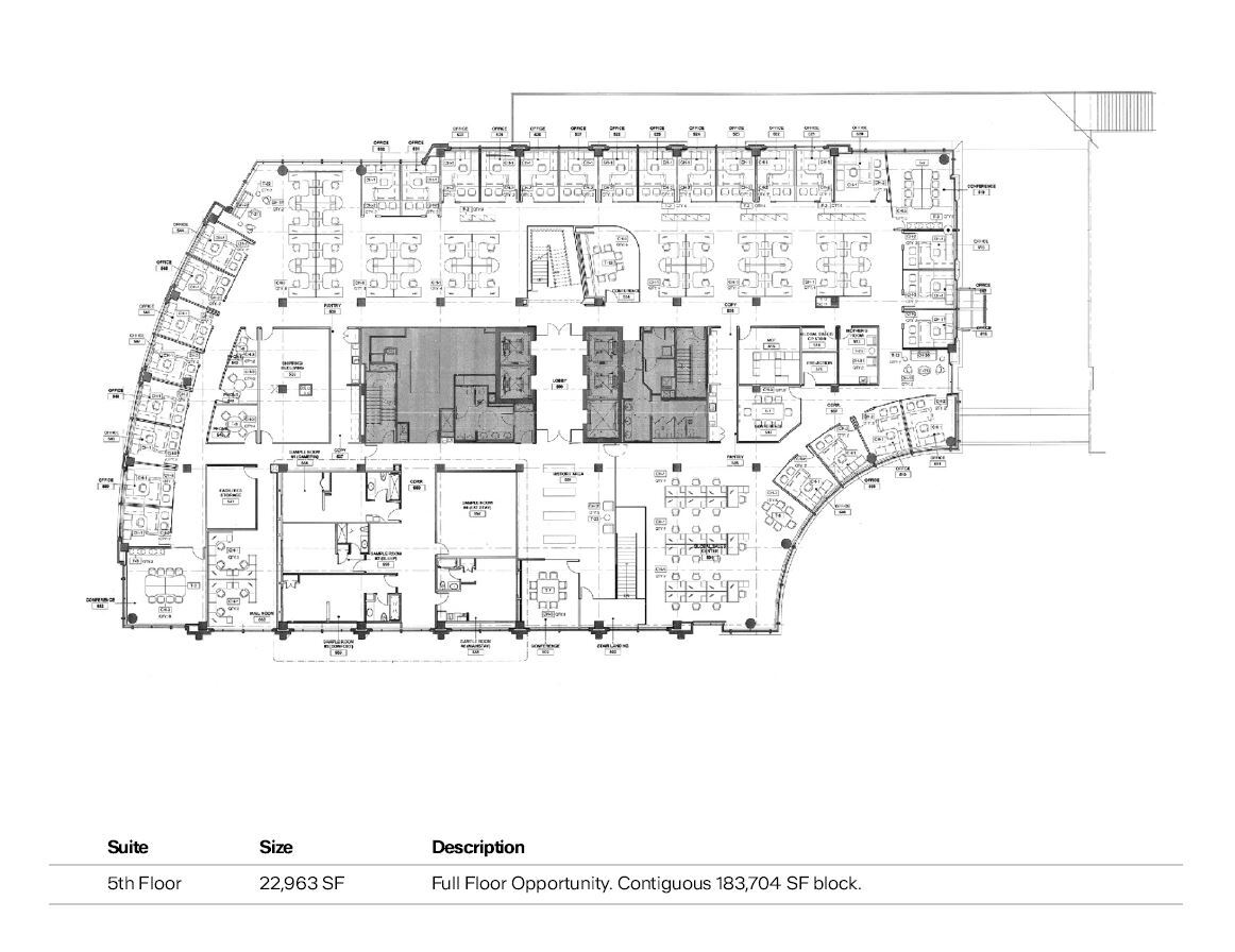
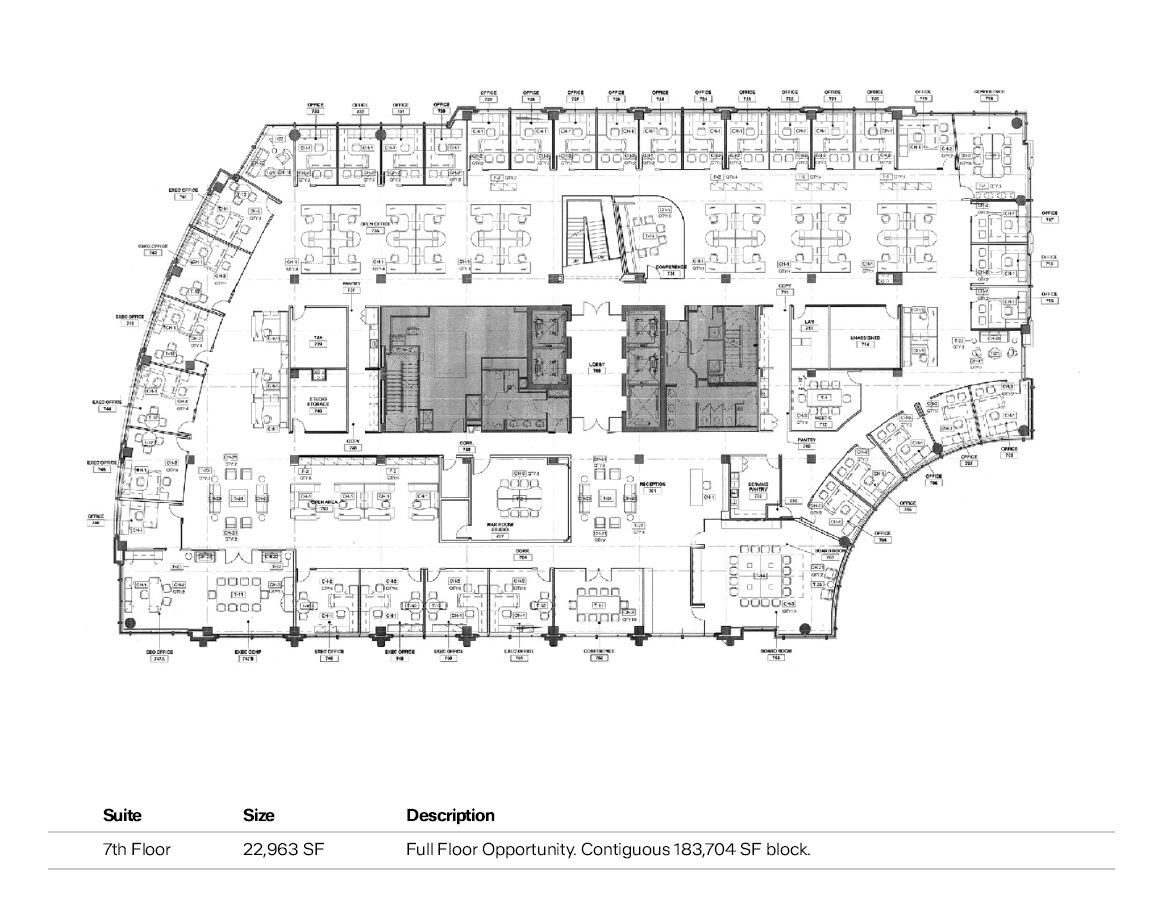
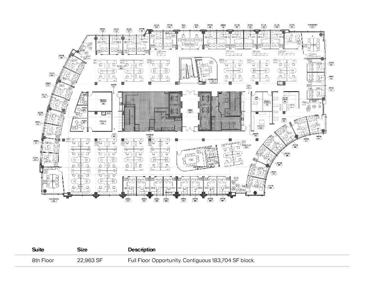
Full floor opportunity. Contiguous 183,704 SF block available between 4th - 11th floors.
- Rate includes utilities, building services and property expenses
- Mostly Open Floor Plan Layout
- Can be combined with additional space(s) for up to 183,704 SF of adjacent space
- Fully Built-Out as Standard Office
- Space is in Excellent Condition
Full floor opportunity. Contiguous 183,704 SF block available between 4th - 11th floors.
- Rate includes utilities, building services and property expenses
- Mostly Open Floor Plan Layout
- Can be combined with additional space(s) for up to 183,704 SF of adjacent space
- Fully Built-Out as Standard Office
- Space is in Excellent Condition
Full floor opportunity. Contiguous 183,704 SF block available between 4th - 11th floors.
- Rate includes utilities, building services and property expenses
- Mostly Open Floor Plan Layout
- Can be combined with additional space(s) for up to 183,704 SF of adjacent space
- Fully Built-Out as Standard Office
- Space is in Excellent Condition
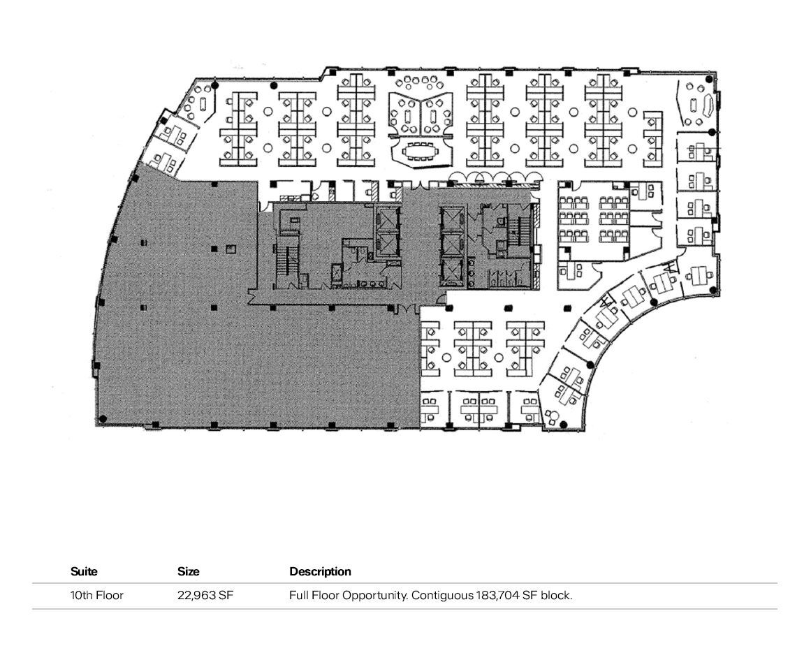
Full floor opportunity. Contiguous 183,704 SF block available between 4th - 11th floors.
- Rate includes utilities, building services and property expenses
- Mostly Open Floor Plan Layout
- Can be combined with additional space(s) for up to 183,704 SF of adjacent space
- Fully Built-Out as Standard Office
- Space is in Excellent Condition
Full floor opportunity. Contiguous 183,704 SF block available between 4th - 11th floors.
- Rate includes utilities, building services and property expenses
- Mostly Open Floor Plan Layout
- Can be combined with additional space(s) for up to 183,704 SF of adjacent space
- Fully Built-Out as Standard Office
- Space is in Excellent Condition
Full floor opportunity. Contiguous 183,704 SF block available between 4th - 11th floors.
- Rate includes utilities, building services and property expenses
- Mostly Open Floor Plan Layout
- Can be combined with additional space(s) for up to 183,704 SF of adjacent space
- Fully Built-Out as Standard Office
- Space is in Excellent Condition
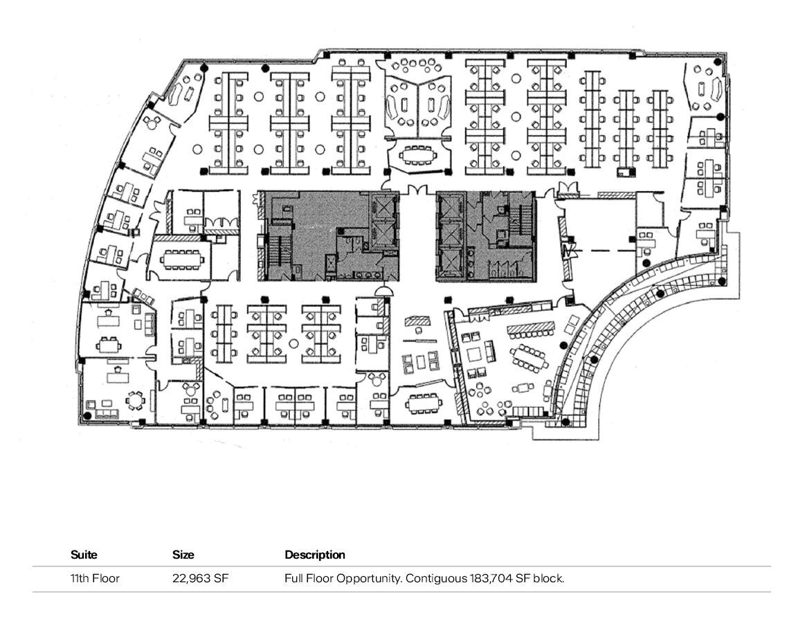
Full floor opportunity. Contiguous 183,704 SF block available between 4th - 11th floors.
- Rate includes utilities, building services and property expenses
- Mostly Open Floor Plan Layout
- Can be combined with additional space(s) for up to 183,704 SF of adjacent space
- Fully Built-Out as Standard Office
- Space is in Excellent Condition
| Space | Size | Term | Rental Rate | Space Use | Condition | Available |
| 4th Floor | 5,000-22,963 SF | Negotiable | $44.18 CAD/SF/YR $3.68 CAD/SF/MO $1,014,560 CAD/YR $84,547 CAD/MO | Office | Full Build-Out | Now |
| 5th Floor | 22,963 SF | Negotiable | $44.18 CAD/SF/YR $3.68 CAD/SF/MO $1,014,560 CAD/YR $84,547 CAD/MO | Office | Full Build-Out | Now |
| 6th Floor | 22,963 SF | Negotiable | $44.18 CAD/SF/YR $3.68 CAD/SF/MO $1,014,560 CAD/YR $84,547 CAD/MO | Office | Full Build-Out | Now |
| 7th Floor | 22,963 SF | Negotiable | $44.18 CAD/SF/YR $3.68 CAD/SF/MO $1,014,560 CAD/YR $84,547 CAD/MO | Office | Full Build-Out | Now |
| 8th Floor | 22,963 SF | Negotiable | $44.18 CAD/SF/YR $3.68 CAD/SF/MO $1,014,560 CAD/YR $84,547 CAD/MO | Office | Full Build-Out | Now |
| 9th Floor | 22,963 SF | Negotiable | $44.18 CAD/SF/YR $3.68 CAD/SF/MO $1,014,560 CAD/YR $84,547 CAD/MO | Office | Full Build-Out | Now |
| 10th Floor | 22,963 SF | Negotiable | $46.94 CAD/SF/YR $3.91 CAD/SF/MO $1,077,970 CAD/YR $89,831 CAD/MO | Office | Full Build-Out | Now |
| 11th Floor | 22,963 SF | Negotiable | $46.94 CAD/SF/YR $3.91 CAD/SF/MO $1,077,970 CAD/YR $89,831 CAD/MO | Office | Full Build-Out | Now |
4th Floor
| Size |
| 5,000-22,963 SF |
| Term |
| Negotiable |
| Rental Rate |
| $44.18 CAD/SF/YR $3.68 CAD/SF/MO $1,014,560 CAD/YR $84,547 CAD/MO |
| Space Use |
| Office |
| Condition |
| Full Build-Out |
| Available |
| Now |
5th Floor
| Size |
| 22,963 SF |
| Term |
| Negotiable |
| Rental Rate |
| $44.18 CAD/SF/YR $3.68 CAD/SF/MO $1,014,560 CAD/YR $84,547 CAD/MO |
| Space Use |
| Office |
| Condition |
| Full Build-Out |
| Available |
| Now |
6th Floor
| Size |
| 22,963 SF |
| Term |
| Negotiable |
| Rental Rate |
| $44.18 CAD/SF/YR $3.68 CAD/SF/MO $1,014,560 CAD/YR $84,547 CAD/MO |
| Space Use |
| Office |
| Condition |
| Full Build-Out |
| Available |
| Now |
7th Floor
| Size |
| 22,963 SF |
| Term |
| Negotiable |
| Rental Rate |
| $44.18 CAD/SF/YR $3.68 CAD/SF/MO $1,014,560 CAD/YR $84,547 CAD/MO |
| Space Use |
| Office |
| Condition |
| Full Build-Out |
| Available |
| Now |
8th Floor
| Size |
| 22,963 SF |
| Term |
| Negotiable |
| Rental Rate |
| $44.18 CAD/SF/YR $3.68 CAD/SF/MO $1,014,560 CAD/YR $84,547 CAD/MO |
| Space Use |
| Office |
| Condition |
| Full Build-Out |
| Available |
| Now |
9th Floor
| Size |
| 22,963 SF |
| Term |
| Negotiable |
| Rental Rate |
| $44.18 CAD/SF/YR $3.68 CAD/SF/MO $1,014,560 CAD/YR $84,547 CAD/MO |
| Space Use |
| Office |
| Condition |
| Full Build-Out |
| Available |
| Now |
10th Floor
| Size |
| 22,963 SF |
| Term |
| Negotiable |
| Rental Rate |
| $46.94 CAD/SF/YR $3.91 CAD/SF/MO $1,077,970 CAD/YR $89,831 CAD/MO |
| Space Use |
| Office |
| Condition |
| Full Build-Out |
| Available |
| Now |
11th Floor
| Size |
| 22,963 SF |
| Term |
| Negotiable |
| Rental Rate |
| $46.94 CAD/SF/YR $3.91 CAD/SF/MO $1,077,970 CAD/YR $89,831 CAD/MO |
| Space Use |
| Office |
| Condition |
| Full Build-Out |
| Available |
| Now |
- Space
- Size
- Term
- Rental Rate
- Space Use
- Condition
- Available
Shell condition, ready for buildout.
Space can be subdivided. Contiguous 183,704 SF block available between 4th - 11th floors. Outdoor terrace access on 4th floor.
- Rate includes utilities, building services and property expenses
- Mostly Open Floor Plan Layout
- Can be combined with additional space(s) for up to 183,704 SF of adjacent space
- Fully Built-Out as Standard Office
- Space is in Excellent Condition
Full floor opportunity. Contiguous 183,704 SF block available between 4th - 11th floors.
- Rate includes utilities, building services and property expenses
- Mostly Open Floor Plan Layout
- Can be combined with additional space(s) for up to 183,704 SF of adjacent space
- Fully Built-Out as Standard Office
- Space is in Excellent Condition
Full floor opportunity. Contiguous 183,704 SF block available between 4th - 11th floors.
- Rate includes utilities, building services and property expenses
- Mostly Open Floor Plan Layout
- Can be combined with additional space(s) for up to 183,704 SF of adjacent space
- Fully Built-Out as Standard Office
- Space is in Excellent Condition
Full floor opportunity. Contiguous 183,704 SF block available between 4th - 11th floors.
- Rate includes utilities, building services and property expenses
- Mostly Open Floor Plan Layout
- Can be combined with additional space(s) for up to 183,704 SF of adjacent space
- Fully Built-Out as Standard Office
- Space is in Excellent Condition
Full floor opportunity. Contiguous 183,704 SF block available between 4th - 11th floors.
- Rate includes utilities, building services and property expenses
- Mostly Open Floor Plan Layout
- Can be combined with additional space(s) for up to 183,704 SF of adjacent space
- Fully Built-Out as Standard Office
- Space is in Excellent Condition
Full floor opportunity. Contiguous 183,704 SF block available between 4th - 11th floors.
- Rate includes utilities, building services and property expenses
- Mostly Open Floor Plan Layout
- Can be combined with additional space(s) for up to 183,704 SF of adjacent space
- Fully Built-Out as Standard Office
- Space is in Excellent Condition
Full floor opportunity. Contiguous 183,704 SF block available between 4th - 11th floors.
- Rate includes utilities, building services and property expenses
- Mostly Open Floor Plan Layout
- Can be combined with additional space(s) for up to 183,704 SF of adjacent space
- Fully Built-Out as Standard Office
- Space is in Excellent Condition
Full floor opportunity. Contiguous 183,704 SF block available between 4th - 11th floors.
- Rate includes utilities, building services and property expenses
- Mostly Open Floor Plan Layout
- Can be combined with additional space(s) for up to 183,704 SF of adjacent space
- Fully Built-Out as Standard Office
- Space is in Excellent Condition
| Space | Size | Term | Rental Rate | Space Use | Condition | Available |
| 1st Floor, Ste R200 | 2,531 SF | Negotiable | Upon Request Upon Request Upon Request Upon Request | Retail | Shell Space | Now |
| 4th Floor | 5,000-22,963 SF | Negotiable | $44.18 CAD/SF/YR $3.68 CAD/SF/MO $1,014,560 CAD/YR $84,547 CAD/MO | Office | Full Build-Out | Now |
| 5th Floor | 22,963 SF | Negotiable | $44.18 CAD/SF/YR $3.68 CAD/SF/MO $1,014,560 CAD/YR $84,547 CAD/MO | Office | Full Build-Out | Now |
| 6th Floor | 22,963 SF | Negotiable | $44.18 CAD/SF/YR $3.68 CAD/SF/MO $1,014,560 CAD/YR $84,547 CAD/MO | Office | Full Build-Out | Now |
| 7th Floor | 22,963 SF | Negotiable | $44.18 CAD/SF/YR $3.68 CAD/SF/MO $1,014,560 CAD/YR $84,547 CAD/MO | Office | Full Build-Out | Now |
| 8th Floor | 22,963 SF | Negotiable | $44.18 CAD/SF/YR $3.68 CAD/SF/MO $1,014,560 CAD/YR $84,547 CAD/MO | Office | Full Build-Out | Now |
| 9th Floor | 22,963 SF | Negotiable | $44.18 CAD/SF/YR $3.68 CAD/SF/MO $1,014,560 CAD/YR $84,547 CAD/MO | Office | Full Build-Out | Now |
| 10th Floor | 22,963 SF | Negotiable | $46.94 CAD/SF/YR $3.91 CAD/SF/MO $1,077,970 CAD/YR $89,831 CAD/MO | Office | Full Build-Out | Now |
| 11th Floor | 22,963 SF | Negotiable | $46.94 CAD/SF/YR $3.91 CAD/SF/MO $1,077,970 CAD/YR $89,831 CAD/MO | Office | Full Build-Out | Now |
1st Floor, Ste R200
| Size |
| 2,531 SF |
| Term |
| Negotiable |
| Rental Rate |
| Upon Request Upon Request Upon Request Upon Request |
| Space Use |
| Retail |
| Condition |
| Shell Space |
| Available |
| Now |
4th Floor
| Size |
| 5,000-22,963 SF |
| Term |
| Negotiable |
| Rental Rate |
| $44.18 CAD/SF/YR $3.68 CAD/SF/MO $1,014,560 CAD/YR $84,547 CAD/MO |
| Space Use |
| Office |
| Condition |
| Full Build-Out |
| Available |
| Now |
5th Floor
| Size |
| 22,963 SF |
| Term |
| Negotiable |
| Rental Rate |
| $44.18 CAD/SF/YR $3.68 CAD/SF/MO $1,014,560 CAD/YR $84,547 CAD/MO |
| Space Use |
| Office |
| Condition |
| Full Build-Out |
| Available |
| Now |
6th Floor
| Size |
| 22,963 SF |
| Term |
| Negotiable |
| Rental Rate |
| $44.18 CAD/SF/YR $3.68 CAD/SF/MO $1,014,560 CAD/YR $84,547 CAD/MO |
| Space Use |
| Office |
| Condition |
| Full Build-Out |
| Available |
| Now |
7th Floor
| Size |
| 22,963 SF |
| Term |
| Negotiable |
| Rental Rate |
| $44.18 CAD/SF/YR $3.68 CAD/SF/MO $1,014,560 CAD/YR $84,547 CAD/MO |
| Space Use |
| Office |
| Condition |
| Full Build-Out |
| Available |
| Now |
8th Floor
| Size |
| 22,963 SF |
| Term |
| Negotiable |
| Rental Rate |
| $44.18 CAD/SF/YR $3.68 CAD/SF/MO $1,014,560 CAD/YR $84,547 CAD/MO |
| Space Use |
| Office |
| Condition |
| Full Build-Out |
| Available |
| Now |
9th Floor
| Size |
| 22,963 SF |
| Term |
| Negotiable |
| Rental Rate |
| $44.18 CAD/SF/YR $3.68 CAD/SF/MO $1,014,560 CAD/YR $84,547 CAD/MO |
| Space Use |
| Office |
| Condition |
| Full Build-Out |
| Available |
| Now |
10th Floor
| Size |
| 22,963 SF |
| Term |
| Negotiable |
| Rental Rate |
| $46.94 CAD/SF/YR $3.91 CAD/SF/MO $1,077,970 CAD/YR $89,831 CAD/MO |
| Space Use |
| Office |
| Condition |
| Full Build-Out |
| Available |
| Now |
11th Floor
| Size |
| 22,963 SF |
| Term |
| Negotiable |
| Rental Rate |
| $46.94 CAD/SF/YR $3.91 CAD/SF/MO $1,077,970 CAD/YR $89,831 CAD/MO |
| Space Use |
| Office |
| Condition |
| Full Build-Out |
| Available |
| Now |
1st Floor, Ste R200
| Size | 2,531 SF |
| Term | Negotiable |
| Rental Rate | Upon Request |
| Space Use | Retail |
| Condition | Shell Space |
| Available | Now |
Shell condition, ready for buildout.
4th Floor
| Size | 5,000-22,963 SF |
| Term | Negotiable |
| Rental Rate | $44.18 CAD/SF/YR |
| Space Use | Office |
| Condition | Full Build-Out |
| Available | Now |
Space can be subdivided. Contiguous 183,704 SF block available between 4th - 11th floors. Outdoor terrace access on 4th floor.
- Rate includes utilities, building services and property expenses
- Fully Built-Out as Standard Office
- Mostly Open Floor Plan Layout
- Space is in Excellent Condition
- Can be combined with additional space(s) for up to 183,704 SF of adjacent space
5th Floor
| Size | 22,963 SF |
| Term | Negotiable |
| Rental Rate | $44.18 CAD/SF/YR |
| Space Use | Office |
| Condition | Full Build-Out |
| Available | Now |
Full floor opportunity. Contiguous 183,704 SF block available between 4th - 11th floors.
- Rate includes utilities, building services and property expenses
- Fully Built-Out as Standard Office
- Mostly Open Floor Plan Layout
- Space is in Excellent Condition
- Can be combined with additional space(s) for up to 183,704 SF of adjacent space
6th Floor
| Size | 22,963 SF |
| Term | Negotiable |
| Rental Rate | $44.18 CAD/SF/YR |
| Space Use | Office |
| Condition | Full Build-Out |
| Available | Now |
Full floor opportunity. Contiguous 183,704 SF block available between 4th - 11th floors.
- Rate includes utilities, building services and property expenses
- Fully Built-Out as Standard Office
- Mostly Open Floor Plan Layout
- Space is in Excellent Condition
- Can be combined with additional space(s) for up to 183,704 SF of adjacent space
7th Floor
| Size | 22,963 SF |
| Term | Negotiable |
| Rental Rate | $44.18 CAD/SF/YR |
| Space Use | Office |
| Condition | Full Build-Out |
| Available | Now |
Full floor opportunity. Contiguous 183,704 SF block available between 4th - 11th floors.
- Rate includes utilities, building services and property expenses
- Fully Built-Out as Standard Office
- Mostly Open Floor Plan Layout
- Space is in Excellent Condition
- Can be combined with additional space(s) for up to 183,704 SF of adjacent space
8th Floor
| Size | 22,963 SF |
| Term | Negotiable |
| Rental Rate | $44.18 CAD/SF/YR |
| Space Use | Office |
| Condition | Full Build-Out |
| Available | Now |
Full floor opportunity. Contiguous 183,704 SF block available between 4th - 11th floors.
- Rate includes utilities, building services and property expenses
- Fully Built-Out as Standard Office
- Mostly Open Floor Plan Layout
- Space is in Excellent Condition
- Can be combined with additional space(s) for up to 183,704 SF of adjacent space
9th Floor
| Size | 22,963 SF |
| Term | Negotiable |
| Rental Rate | $44.18 CAD/SF/YR |
| Space Use | Office |
| Condition | Full Build-Out |
| Available | Now |
Full floor opportunity. Contiguous 183,704 SF block available between 4th - 11th floors.
- Rate includes utilities, building services and property expenses
- Fully Built-Out as Standard Office
- Mostly Open Floor Plan Layout
- Space is in Excellent Condition
- Can be combined with additional space(s) for up to 183,704 SF of adjacent space
10th Floor
| Size | 22,963 SF |
| Term | Negotiable |
| Rental Rate | $46.94 CAD/SF/YR |
| Space Use | Office |
| Condition | Full Build-Out |
| Available | Now |
Full floor opportunity. Contiguous 183,704 SF block available between 4th - 11th floors.
- Rate includes utilities, building services and property expenses
- Fully Built-Out as Standard Office
- Mostly Open Floor Plan Layout
- Space is in Excellent Condition
- Can be combined with additional space(s) for up to 183,704 SF of adjacent space
11th Floor
| Size | 22,963 SF |
| Term | Negotiable |
| Rental Rate | $46.94 CAD/SF/YR |
| Space Use | Office |
| Condition | Full Build-Out |
| Available | Now |
Full floor opportunity. Contiguous 183,704 SF block available between 4th - 11th floors.
- Rate includes utilities, building services and property expenses
- Fully Built-Out as Standard Office
- Mostly Open Floor Plan Layout
- Space is in Excellent Condition
- Can be combined with additional space(s) for up to 183,704 SF of adjacent space
Property Overview
Rockville Metro Plaza II is a premier Class A office building located in the heart of downtown Rockville, directly across from the Rockville Metro Station. This elegantly designed, LEED Platinum-certified building is ideal for single or multi-tenant occupancy, offering a high-profile location in the bustling Rockville Town Center area. Built in 2013, the building boasts state-of-the-art finishes, including high ceilings, glass-enclosed offices, stone accent walls, and floor-to-ceiling windows that create an open, modern aesthetic. The inviting lobby is equipped with polished stone floors, dark wood accent walls, a security desk, and five elevators. The fourth floor offers an expansive outdoor patio that extends from the front of the building and wraps around the rear of the building, offering a serene outdoor space for work breaks or special events. A garage with ±270 parking spaces is part of the property. The property features a green roof, and easy access to fire control, alarm, utility, and ventilation systems.
- 24 Hour Access
- Wheelchair Accessible
- Central Heating
- Air Conditioning
Property Facts
Select Tenants
- Floor
- Tenant Name
- Industry
- 1st
- Kabuto Japanese Sushi & Hibachi
- Accommodation and Food Services
Sustainability
Sustainability
LEED Certification Developed by the U.S. Green Building Council (USGBC), the Leadership in Energy and Environmental Design (LEED) is a green building certification program focused on the design, construction, operation, and maintenance of green buildings, homes, and neighborhoods, which aims to help building owners and operators be environmentally responsible and use resources efficiently. LEED certification is a globally recognized symbol of sustainability achievement and leadership. To achieve LEED certification, a project earns points by adhering to prerequisites and credits that address carbon, energy, water, waste, transportation, materials, health and indoor environmental quality. Projects go through a verification and review process and are awarded points that correspond to a level of LEED certification: Platinum (80+ points) Gold (60-79 points) Silver (50-59 points) Certified (40-49 points)
Presented by
Rockville Metro Plaza II | 121 Rockville Pike
Hmm, there seems to have been an error sending your message. Please try again.
Thanks! Your message was sent.
















