Log In/Sign Up
Your email has been sent.
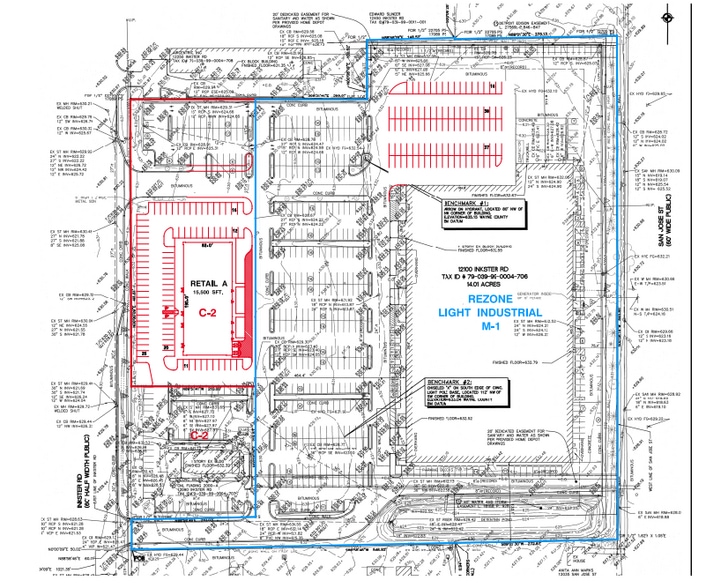
Proposed Outlots - Redford 12100 Inkster Rd 1.85 Acres of Commercial Land for Lease in Redford Township, MI 48239



Highlights
- BTS Opportunity
LOT Available
Display Rental Rate as
| Rental Rate |
|
Lot Size | 1.85 AC |
| Lease Term | Negotiable |
| Rental Rate | |
| Lease Term | Negotiable |
| Lot Size | 1.85 AC |
1.85 acre outparcel located on the east side of Inkster Road between I-96 and Plymouth Roads. Zoned C2 permitting medical, office and retail. 318,997 people within a 5 mile radius. Can build up to 15,000 SF. The site sees over 33,000 VPD (Placer AI traffic data).
Property Overview
1.85 acre out parcel
Property Facts
Fairly walkable
50/100
Exceptionally drivable
100/100
Limited public transit
30/100
Moderately bikeable
60/100
1 of 4
Videos
Matterport 3D Exterior
Matterport 3D Tour
Photos
Street View
Street
Map
Presented by
Proposed Outlots - Redford | 12100 Inkster Rd
Already a member? Log In
Hmm, there seems to have been an error sending your message. Please try again.
Thanks! Your message was sent.

