Your email has been sent.
Park Highlights
- Magnolia Circle Industrial Park is a multi-tenant industrial and office business park with freestanding buildings.
- Some buildings feature private yard areas providing added operational flexibility.
- The site benefits from excellent freeway access and strong regional connectivity.
- The property offers abundant parking and wide drive aisles designed to support truck access.
- The park is located on the Corona/Riverside border and is served by Riverside Public Utilities.
Park Facts
| Total Space Available | 35,691 SF | Park Type | Industrial Park |
| Total Space Available | 35,691 SF |
| Park Type | Industrial Park |
All Available Spaces(5)
Display Rental Rate as
- Space
- Size
- Term
- Rental Rate
- Space Use
- Build-Out
- Available
Reception, 2 offices, 2 restrooms, 1 shop restroom, lunch room, closet, 2 GL doors. Teaser Rate - $0.87/SF Yr 1; $1.05/SF Yr 2; $1.10/SF Yr 3 (Shorter Deals Offered)
- Listed rate may not include certain utilities, building services and property expenses
- Reception Area
- 2 Drive Ins
- Private Restrooms
| Space | Size | Term | Rental Rate | Space Use | Build-Out | Available |
| 1st Floor - 11B | 11,546 SF | 1-5 Years | $14.37 CAD/SF/YR $1.20 CAD/SF/MO $165,927 CAD/YR $13,827 CAD/MO | Industrial | Partial Build-Out | Now |
12155 Magnolia Ave - 1st Floor - 11B
- Space
- Size
- Term
- Rental Rate
- Space Use
- Build-Out
- Available
Multiple Offices, 2 Restrooms, 3 GL Doors, Large, Fenced Yard Area, Available
- Listed rate may not include certain utilities, building services and property expenses
- Private Restrooms
- 3 Drive Ins
- Yard
| Space | Size | Term | Rental Rate | Space Use | Build-Out | Available |
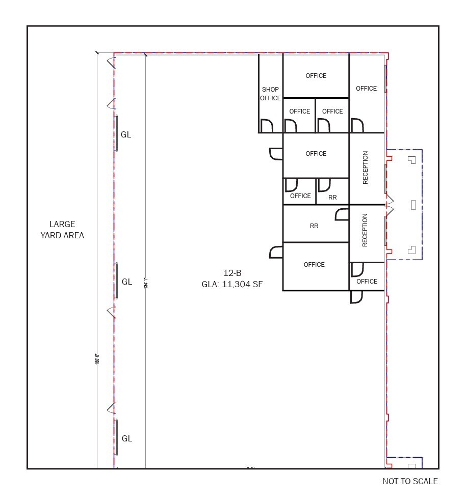
| 1st Floor - 12B | 11,304 SF | 1-5 Years | $17.34 CAD/SF/YR $1.45 CAD/SF/MO $196,060 CAD/YR $16,338 CAD/MO | Industrial | Full Build-Out | Now |
12155 Magnolia Ave - 1st Floor - 12B
- Space
- Size
- Term
- Rental Rate
- Space Use
- Build-Out
- Available
Reception, 1 Office, 1 Restroom, 1 GL Door, Available 4/1/2026
- Listed rate may not include certain utilities, building services and property expenses
- Reception Area
- 1 Drive Bay
- Private Restrooms
| Space | Size | Term | Rental Rate | Space Use | Build-Out | Available |
| 1st Floor - 2A-1 | 5,460 SF | 1-5 Years | $18.17 CAD/SF/YR $1.51 CAD/SF/MO $99,209 CAD/YR $8,267 CAD/MO | Industrial | Full Build-Out | Now |
12155 Magnolia Ave - 1st Floor - 2A-1
- Space
- Size
- Term
- Rental Rate
- Space Use
- Build-Out
- Available
This 3,601 square foot unit features a reception area, two private offices, a conference room, and three restrooms. The space includes one ground-level door and is configured to accommodate both office and light industrial uses.
- Listed rate may not include certain utilities, building services and property expenses
- Private Restrooms
- Multiple restrooms included
- 1 Drive Bay
- Conference room and offices
| Space | Size | Term | Rental Rate | Space Use | Build-Out | Available |
| 1st Floor - 6-G/H | 3,601 SF | Negotiable | $18.17 CAD/SF/YR $1.51 CAD/SF/MO $65,431 CAD/YR $5,453 CAD/MO | Industrial | Full Build-Out | 2026-06-01 |
12155 Magnolia Ave - 1st Floor - 6-G/H
- Space
- Size
- Term
- Rental Rate
- Space Use
- Build-Out
- Available
This 3,780 square foot unit includes a reception area, three private offices, one restroom, and one ground-level door. The layout supports a mix of office and warehouse functionality.
- Listed rate may not include certain utilities, building services and property expenses
- Reception Area
- Three private offices
- 1 Drive Bay
- Private Restrooms
- Reception and warehouse space
| Space | Size | Term | Rental Rate | Space Use | Build-Out | Available |
| 1st Floor - 7-D | 3,780 SF | Negotiable | $18.17 CAD/SF/YR $1.51 CAD/SF/MO $68,683 CAD/YR $5,724 CAD/MO | Industrial | Full Build-Out | 2026-09-01 |
12155 Magnolia Ave - 1st Floor - 7-D
12155 Magnolia Ave - 1st Floor - 11B
| Size | 11,546 SF |
| Term | 1-5 Years |
| Rental Rate | $14.37 CAD/SF/YR |
| Space Use | Industrial |
| Build-Out | Partial Build-Out |
| Available | Now |
Reception, 2 offices, 2 restrooms, 1 shop restroom, lunch room, closet, 2 GL doors. Teaser Rate - $0.87/SF Yr 1; $1.05/SF Yr 2; $1.10/SF Yr 3 (Shorter Deals Offered)
- Listed rate may not include certain utilities, building services and property expenses
- 2 Drive Ins
- Reception Area
- Private Restrooms
12155 Magnolia Ave - 1st Floor - 12B
| Size | 11,304 SF |
| Term | 1-5 Years |
| Rental Rate | $17.34 CAD/SF/YR |
| Space Use | Industrial |
| Build-Out | Full Build-Out |
| Available | Now |
Multiple Offices, 2 Restrooms, 3 GL Doors, Large, Fenced Yard Area, Available
- Listed rate may not include certain utilities, building services and property expenses
- 3 Drive Ins
- Private Restrooms
- Yard
12155 Magnolia Ave - 1st Floor - 2A-1
| Size | 5,460 SF |
| Term | 1-5 Years |
| Rental Rate | $18.17 CAD/SF/YR |
| Space Use | Industrial |
| Build-Out | Full Build-Out |
| Available | Now |
Reception, 1 Office, 1 Restroom, 1 GL Door, Available 4/1/2026
- Listed rate may not include certain utilities, building services and property expenses
- 1 Drive Bay
- Reception Area
- Private Restrooms
12155 Magnolia Ave - 1st Floor - 6-G/H
| Size | 3,601 SF |
| Term | Negotiable |
| Rental Rate | $18.17 CAD/SF/YR |
| Space Use | Industrial |
| Build-Out | Full Build-Out |
| Available | 2026-06-01 |
This 3,601 square foot unit features a reception area, two private offices, a conference room, and three restrooms. The space includes one ground-level door and is configured to accommodate both office and light industrial uses.
- Listed rate may not include certain utilities, building services and property expenses
- 1 Drive Bay
- Private Restrooms
- Conference room and offices
- Multiple restrooms included
12155 Magnolia Ave - 1st Floor - 7-D
| Size | 3,780 SF |
| Term | Negotiable |
| Rental Rate | $18.17 CAD/SF/YR |
| Space Use | Industrial |
| Build-Out | Full Build-Out |
| Available | 2026-09-01 |
This 3,780 square foot unit includes a reception area, three private offices, one restroom, and one ground-level door. The layout supports a mix of office and warehouse functionality.
- Listed rate may not include certain utilities, building services and property expenses
- 1 Drive Bay
- Reception Area
- Private Restrooms
- Three private offices
- Reception and warehouse space
Select Tenants at This Property
- Floor
- Tenant Name
- Industry
- 1st
- A&G Electronics
- Wholesaler
- 1st
- Airbag Master Tech
- Services
- 1st
- F X Signs
- Manufacturing
- 1st
- Grand Slam Hats
- Manufacturing
- 1st
- HCI
- Professional, Scientific, and Technical Services
- 1st
- Jse Office Furniture Service Inc
- Services
- 1st
- Litwin BIM Consultants
- Professional, Scientific, and Technical Services
- 1st
- Professional Pretreat-Termite
- Services
- 1st
- Riverside Ghanain SDA Church
- Services
- 1st
- TC Quality Machining
- Manufacturing
Park Overview
Magnolia Circle Industrial Park is a well-maintained multi-tenant industrial and office business park located at 12155 Magnolia Avenue in Riverside, California, positioned on the Corona/Riverside border. The park features freestanding industrial buildings designed to accommodate a wide range of light industrial and office users, with building sizes generally ranging from approximately 21,000 to over 30,000 square feet. Several buildings offer private yard areas, enhancing functionality for distribution and service-oriented operations. The property is served by Riverside Public Utilities and offers abundant on-site parking with wide drive aisles to support efficient truck circulation. The site benefits from excellent freeway accessibility and strong regional connectivity, with convenient access to Magnolia Avenue and nearby arterial roadways between Pierce Street/Riverwalk and McKinley. Magnolia Circle Industrial Park combines flexibility, accessibility, and efficient site design, making it a highly functional option for users seeking quality industrial space in a central Inland Empire location.
Presented by
Magnolia Circle Industrial Park | Riverside, CA 92503
Hmm, there seems to have been an error sending your message. Please try again.
Thanks! Your message was sent.











