Your email has been sent.
12250 E Lakeshore Drive - Edgewater on the Beach - Waterview 0.46 - 0.68 Acre Residential Land Lots Offered at $276,900 - $276,900 CAD Per Lot in North East, PA 16428


INVESTMENT HIGHLIGHTS
- Waterview
- Private community
EXECUTIVE SUMMARY
PROPERTY FACTS
| Price | $276,900 - $1,938,300 CAD | Property Subtype | Residential |
| Sale Type | Owner User | Proposed Use | Single Family Residence |
| No. Lots | 7 | Total Lot Size | 4.21 AC |
| Property Type | Land | ||
| Zoning | R-2 - Residential | ||
| Price | $276,900 - $1,938,300 CAD |
| Sale Type | Owner User |
| No. Lots | 7 |
| Property Type | Land |
| Property Subtype | Residential |
| Proposed Use | Single Family Residence |
| Total Lot Size | 4.21 AC |
| Zoning | R-2 - Residential |
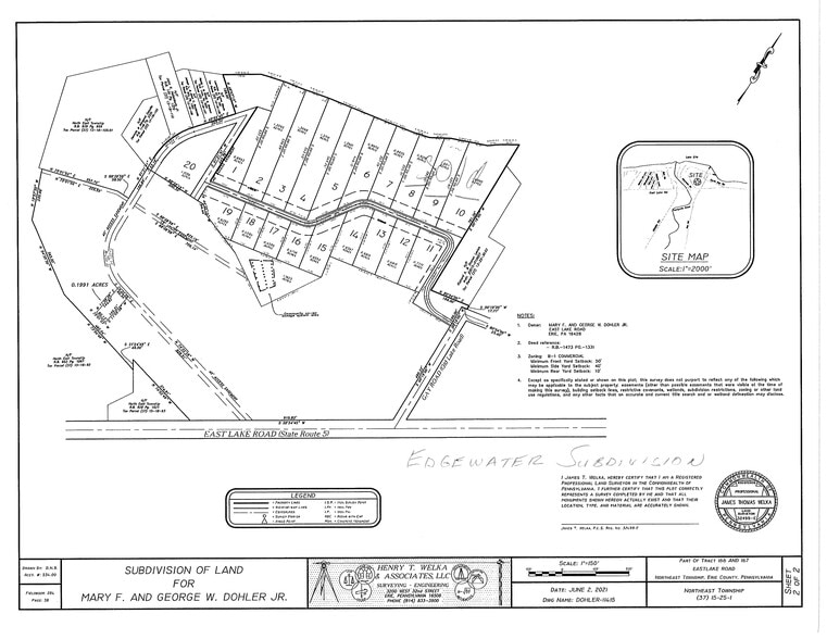
7 LOTS AVAILABLE
Lot 19
| Price | $276,900 CAD | Lot Size | 0.63 AC |
| Price Per AC | $439,523.82 CAD |
| Price | $276,900 CAD |
| Price Per AC | $439,523.82 CAD |
| Lot Size | 0.63 AC |
Beachview lots available with private deeded access to Lake Erie shore. Lots listed at $200,000 with all utilities. USPS address 101 Edgewater Drive.
Lot 18
| Price | $276,900 CAD | Lot Size | 0.46 AC |
| Price Per AC | $601,956.53 CAD |
| Price | $276,900 CAD |
| Price Per AC | $601,956.53 CAD |
| Lot Size | 0.46 AC |
Beachview lots available with private deeded access to Lake Erie shore. Lots listed at $200,000 with all utilities. USPS address 103 Edgewater Drive.
Lot 16
| Price | $276,900 CAD | Lot Size | 0.47 AC |
| Price Per AC | $589,148.95 CAD |
| Price | $276,900 CAD |
| Price Per AC | $589,148.95 CAD |
| Lot Size | 0.47 AC |
Beachview lots available with private deeded access to Lake Erie shore. Lots listed at $200,000 with all utilities. USPS address 107 Edgewater Drive.
Lot 15
| Price | $276,900 CAD | Lot Size | 0.65 AC |
| Price Per AC | $426,000.01 CAD |
| Price | $276,900 CAD |
| Price Per AC | $426,000.01 CAD |
| Lot Size | 0.65 AC |
Beachview lots available with private deeded access to Lake Erie shore. Lots listed at $200,000 with all utilities. USPS address 109 Edgewater Drive.
Lot 14
| Price | $276,900 CAD | Lot Size | 0.64 AC |
| Price Per AC | $432,656.26 CAD |
| Price | $276,900 CAD |
| Price Per AC | $432,656.26 CAD |
| Lot Size | 0.64 AC |
Beachview lots available with private deeded access to Lake Erie shore. Lots listed at $200,000 with all utilities. USPS address 111 Edgewater Drive.
Lot 13
| Price | $276,900 CAD | Lot Size | 0.68 AC |
| Price Per AC | $407,205.89 CAD |
| Price | $276,900 CAD |
| Price Per AC | $407,205.89 CAD |
| Lot Size | 0.68 AC |
Beachview lots available with private deeded access to Lake Erie shore. Lots listed at $200,000 with all utilities. USPS address 113 Edgewater Drive.
Lot 12
| Price | $276,900 CAD | Lot Size | 0.68 AC |
| Price Per AC | $407,205.89 CAD |
| Price | $276,900 CAD |
| Price Per AC | $407,205.89 CAD |
| Lot Size | 0.68 AC |
Beachview lots available with private deeded access to Lake Erie shore. Lots listed at $200,000 with all utilities. USPS address 115 Edgewater Drive.
DESCRIPTION
Lakeview building lot in the new Edgewater Beach Subdivision (formerly the site of the Dohler Cottages). Steps from your own private beach. Lot not yet assessed for tax purposes. All new public utilities, electric, water, sewer, natural gas, have been installed. The new roadway is complete. This is truly a shovel-ready lot. Bring your own plans and builder. Only 8 lots of 20 remain.
PROPERTY TAXES
| Parcel Numbers | Improvements Assessment | $0 CAD | |
| Land Assessment | $755,646 CAD | Total Assessment | $755,646 CAD |
PROPERTY TAXES
Presented by
12250 E Lakeshore Drive - Edgewater on the Beach - Waterview
Hmm, there seems to have been an error sending your message. Please try again.
Thanks! Your message was sent.
