Your email has been sent.
Highlights
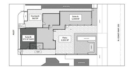
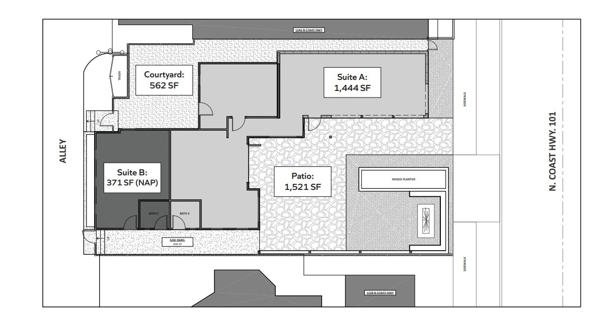
- 1,444 SF interior plus 1,521 SF patio
- Unique restaurant opportunity in Leucadia
- Located in vibrant Leucadia beach town
- Conceptual renderings available
- Hwy 101 frontage near shops and hotels
- Full-service restaurant use required
Space Availability (1)
Display Rental Rate as
- Space
- Size
- Term
- Rental Rate
- Rent Type
| Space | Size | Term | Rental Rate | Rent Type | ||
| 1st Floor, Ste A | 1,444 SF | Negotiable | Upon Request Upon Request Upon Request Upon Request | Negotiable |
1st Floor, Ste A
1234 N Coast Highway 101 presents a rare opportunity to establish a full-service restaurant in the vibrant coastal community of Leucadia, Encinitas. This property offers 1,444 square feet of interior space complemented by a 1,521-square-foot exterior patio that fronts the iconic Highway 101, creating an inviting indoor-outdoor dining experience. Positioned in the heart of one of Southern California’s most eclectic beach towns, the site benefits from strong visibility and steady foot traffic. Guests will enjoy proximity to a diverse mix of shops, restaurants, and boutique hotels, all within walking distance. The property is designed for a restaurant concept and includes facilities that must remain open for public use, ensuring a community-oriented dining destination. Surrounded by a thriving culinary scene and ongoing streetscape improvements, this location offers exceptional potential for operators looking to join a dynamic and growing market. With its prime frontage, generous patio space, and connection to the coastal lifestyle, this property is an ideal setting for a distinctive dining experience in Leucadia.
- Partially Built-Out as a Restaurant or Café Space
- Unique restaurant opportunity in Leucadia
- 1,444 SF interior plus 1,521 SF patio
- Conceptual renderings available
- Hwy 101 frontage near shops and hotels
- Full-service restaurant use required
Rent Types
The rent amount and type that the tenant (lessee) will be responsible to pay to the landlord (lessor) throughout the lease term is negotiated prior to both parties signing a lease agreement. The rent type will vary depending upon the services provided. For example, triple net rents are typically lower than full service rents due to additional expenses the tenant is required to pay in addition to the base rent. Contact the listing broker for a full understanding of any associated costs or additional expenses for each rent type.
1. Full Service: A rental rate that includes normal building standard services as provided by the landlord within a base year rental.
2. Double Net (NN): Tenant pays for only two of the building expenses; the landlord and tenant determine the specific expenses prior to signing the lease agreement.
3. Triple Net (NNN): A lease in which the tenant is responsible for all expenses associated with their proportional share of occupancy of the building.
4. Modified Gross: Modified Gross is a general type of lease rate where typically the tenant will be responsible for their proportional share of one or more of the expenses. The landlord will pay the remaining expenses. See the below list of common Modified Gross rental rate structures: 4. Plus All Utilities: A type of Modified Gross Lease where the tenant is responsible for their proportional share of utilities in addition to the rent. 4. Plus Cleaning: A type of Modified Gross Lease where the tenant is responsible for their proportional share of cleaning in addition to the rent. 4. Plus Electric: A type of Modified Gross Lease where the tenant is responsible for their proportional share of the electrical cost in addition to the rent. 4. Plus Electric & Cleaning: A type of Modified Gross Lease where the tenant is responsible for their proportional share of the electrical and cleaning cost in addition to the rent. 4. Plus Utilities and Char: A type of Modified Gross Lease where the tenant is responsible for their proportional share of the utilities and cleaning cost in addition to the rent. 4. Industrial Gross: A type of Modified Gross lease where the tenant pays one or more of the expenses in addition to the rent. The landlord and tenant determine these prior to signing the lease agreement.
5. Tenant Electric: The landlord pays for all services and the tenant is responsible for their usage of lights and electrical outlets in the space they occupy.
6. Negotiable or Upon Request: Used when the leasing contact does not provide the rent or service type.
7. TBD: To be determined; used for buildings for which no rent or service type is known, commonly utilized when the buildings are not yet built.
Select Tenants at 1232-1234 N Coast Highway 101, Encinitas, CA 92024
- Tenant
- Description
- US Locations
- Reach
- Caldwell's Antiques
- Retailer
- 1
- -
- Jlh HQ Llc
- -
- 1
- -
| Tenant | Description | US Locations | Reach |
| Caldwell's Antiques | Retailer | 1 | - |
| Jlh HQ Llc | - | 1 | - |
Property Facts
| Total Space Available | 1,444 SF | Gross Leasable Area | 1,815 SF |
| Property Type | Retail | Year Built | 1981 |
| Property Subtype | Storefront | Parking Ratio | 1.1/1,000 SF |
| Total Space Available | 1,444 SF |
| Property Type | Retail |
| Property Subtype | Storefront |
| Gross Leasable Area | 1,815 SF |
| Year Built | 1981 |
| Parking Ratio | 1.1/1,000 SF |
About the Property
1234 N Coast Highway 101 presents a rare opportunity to establish a full-service restaurant in the vibrant coastal community of Leucadia, Encinitas. This property offers 1,444 square feet of interior space complemented by a 1,521-square-foot exterior patio that fronts the iconic Highway 101, creating an inviting indoor-outdoor dining experience. Positioned in the heart of one of Southern California’s most eclectic beach towns, the site benefits from strong visibility and steady foot traffic. Guests will enjoy proximity to a diverse mix of shops, restaurants, and boutique hotels, all within walking distance. The property is designed for a restaurant concept and includes facilities that must remain open for public use, ensuring a community-oriented dining destination. Surrounded by a thriving culinary scene and ongoing streetscape improvements, this location offers exceptional potential for operators looking to join a dynamic and growing market. With its prime frontage, generous patio space, and connection to the coastal lifestyle, this property is an ideal setting for a distinctive dining experience in Leucadia.
Presented by
1232-1234 N Coast Highway 101
Hmm, there seems to have been an error sending your message. Please try again.
Thanks! Your message was sent.






