Your email has been sent.
125 E State St 220 - 4,955 SF of Space Available in Burlington, WI 53105



Highlights
- Versatile Property!
All Available Spaces(6)
Display Rental Rate as
- Space
- Size
- Term
- Rental Rate
- Space Use
- Build-Out
- Available
Versatile garden suite that could be perfect for either office or retail use!
- Lease rate does not include utilities, property expenses or building services
- Space is in Excellent Condition
- Natural Light
- Garden Suite!
- Open Floor Plan Layout
- Central Air and Heating
- Open-Plan
Commercial kitchen and dining room available for lease!
- Lease rate does not include utilities, property expenses or building services
- Located in-line with other retail
- Smoke Detector
- Commercial Kitchen!
- Fully Built-Out as Specialty Space
- Central Air Conditioning
- Commercial Kitchen!
Open area space for lease in historical multi-tenant building.
- Lease rate does not include utilities, property expenses or building services
- Open-Plan
- Open Floor Plan Layout
- Suite is located in close proximity to kitchen!
Sanctuary and mezzanine space available for lease!
- Lease rate does not include utilities, property expenses or building services
- High Ceilings!
- Space is in Excellent Condition
Office/retail space available for lease in historical building.
- Lease rate does not include utilities, property expenses or building services
- Open-Plan
- Open Floor Plan Layout
Office/retail space for lease in a historic muti-tenant building.
- Lease rate does not include utilities, property expenses or building services
- Open-Plan
- Open Floor Plan Layout
- Suite is located in close proximity to stairwell.
| Space | Size | Term | Rental Rate | Space Use | Build-Out | Available |
| 1st Floor, Ste 2 | 1,206 SF | Negotiable | $16.44 CAD/SF/YR $1.37 CAD/SF/MO $19,833 CAD/YR $1,653 CAD/MO | Office/Retail | Full Build-Out | Now |
| 1st Floor, Ste 3 | 220 SF | Negotiable | $30.15 CAD/SF/YR $2.51 CAD/SF/MO $6,633 CAD/YR $552.73 CAD/MO | Retail | Full Build-Out | Now |
| 1st Floor, Ste 4 | 279 SF | Negotiable | $30.15 CAD/SF/YR $2.51 CAD/SF/MO $8,412 CAD/YR $700.96 CAD/MO | Office/Retail | - | Now |
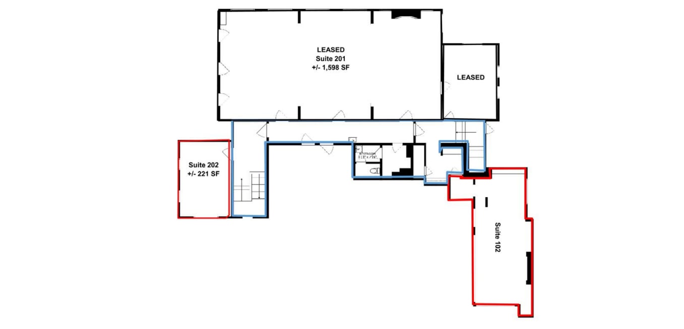
| 2nd Floor, Ste 102 | 2,801 SF | Negotiable | $16.44 CAD/SF/YR $1.37 CAD/SF/MO $46,062 CAD/YR $3,839 CAD/MO | Office/Retail | Full Build-Out | Now |
| 2nd Floor, Ste 103 | 228 SF | Negotiable | $30.15 CAD/SF/YR $2.51 CAD/SF/MO $6,874 CAD/YR $572.83 CAD/MO | Office/Retail | - | Now |
| 3rd Floor, Ste 202 | 221 SF | Negotiable | $30.15 CAD/SF/YR $2.51 CAD/SF/MO $6,663 CAD/YR $555.24 CAD/MO | Office/Retail | - | Now |
1st Floor, Ste 2
| Size |
| 1,206 SF |
| Term |
| Negotiable |
| Rental Rate |
| $16.44 CAD/SF/YR $1.37 CAD/SF/MO $19,833 CAD/YR $1,653 CAD/MO |
| Space Use |
| Office/Retail |
| Build-Out |
| Full Build-Out |
| Available |
| Now |
1st Floor, Ste 3
| Size |
| 220 SF |
| Term |
| Negotiable |
| Rental Rate |
| $30.15 CAD/SF/YR $2.51 CAD/SF/MO $6,633 CAD/YR $552.73 CAD/MO |
| Space Use |
| Retail |
| Build-Out |
| Full Build-Out |
| Available |
| Now |
1st Floor, Ste 4
| Size |
| 279 SF |
| Term |
| Negotiable |
| Rental Rate |
| $30.15 CAD/SF/YR $2.51 CAD/SF/MO $8,412 CAD/YR $700.96 CAD/MO |
| Space Use |
| Office/Retail |
| Build-Out |
| - |
| Available |
| Now |
2nd Floor, Ste 102
| Size |
| 2,801 SF |
| Term |
| Negotiable |
| Rental Rate |
| $16.44 CAD/SF/YR $1.37 CAD/SF/MO $46,062 CAD/YR $3,839 CAD/MO |
| Space Use |
| Office/Retail |
| Build-Out |
| Full Build-Out |
| Available |
| Now |
2nd Floor, Ste 103
| Size |
| 228 SF |
| Term |
| Negotiable |
| Rental Rate |
| $30.15 CAD/SF/YR $2.51 CAD/SF/MO $6,874 CAD/YR $572.83 CAD/MO |
| Space Use |
| Office/Retail |
| Build-Out |
| - |
| Available |
| Now |
3rd Floor, Ste 202
| Size |
| 221 SF |
| Term |
| Negotiable |
| Rental Rate |
| $30.15 CAD/SF/YR $2.51 CAD/SF/MO $6,663 CAD/YR $555.24 CAD/MO |
| Space Use |
| Office/Retail |
| Build-Out |
| - |
| Available |
| Now |
1st Floor, Ste 2
| Size | 1,206 SF |
| Term | Negotiable |
| Rental Rate | $16.44 CAD/SF/YR |
| Space Use | Office/Retail |
| Build-Out | Full Build-Out |
| Available | Now |
Versatile garden suite that could be perfect for either office or retail use!
- Lease rate does not include utilities, property expenses or building services
- Open Floor Plan Layout
- Space is in Excellent Condition
- Central Air and Heating
- Natural Light
- Open-Plan
- Garden Suite!
1st Floor, Ste 3
| Size | 220 SF |
| Term | Negotiable |
| Rental Rate | $30.15 CAD/SF/YR |
| Space Use | Retail |
| Build-Out | Full Build-Out |
| Available | Now |
Commercial kitchen and dining room available for lease!
- Lease rate does not include utilities, property expenses or building services
- Fully Built-Out as Specialty Space
- Located in-line with other retail
- Central Air Conditioning
- Smoke Detector
- Commercial Kitchen!
- Commercial Kitchen!
1st Floor, Ste 4
| Size | 279 SF |
| Term | Negotiable |
| Rental Rate | $30.15 CAD/SF/YR |
| Space Use | Office/Retail |
| Build-Out | - |
| Available | Now |
Open area space for lease in historical multi-tenant building.
- Lease rate does not include utilities, property expenses or building services
- Open Floor Plan Layout
- Open-Plan
- Suite is located in close proximity to kitchen!
2nd Floor, Ste 102
| Size | 2,801 SF |
| Term | Negotiable |
| Rental Rate | $16.44 CAD/SF/YR |
| Space Use | Office/Retail |
| Build-Out | Full Build-Out |
| Available | Now |
Sanctuary and mezzanine space available for lease!
- Lease rate does not include utilities, property expenses or building services
- Space is in Excellent Condition
- High Ceilings!
2nd Floor, Ste 103
| Size | 228 SF |
| Term | Negotiable |
| Rental Rate | $30.15 CAD/SF/YR |
| Space Use | Office/Retail |
| Build-Out | - |
| Available | Now |
Office/retail space available for lease in historical building.
- Lease rate does not include utilities, property expenses or building services
- Open Floor Plan Layout
- Open-Plan
3rd Floor, Ste 202
| Size | 221 SF |
| Term | Negotiable |
| Rental Rate | $30.15 CAD/SF/YR |
| Space Use | Office/Retail |
| Build-Out | - |
| Available | Now |
Office/retail space for lease in a historic muti-tenant building.
- Lease rate does not include utilities, property expenses or building services
- Open Floor Plan Layout
- Open-Plan
- Suite is located in close proximity to stairwell.
About the Property
This property is the definition of versatile! It includes a gym, amethyst room, commercial kitchen, garden suite, sanctuary, and mezannine
Property Facts
| Total Space Available | 4,955 SF | Building Size | 11,532 SF |
| Property Type | Specialty | Year Built | 1928 |
| Property Subtype | Religious Facility |
| Total Space Available | 4,955 SF |
| Property Type | Specialty |
| Property Subtype | Religious Facility |
| Building Size | 11,532 SF |
| Year Built | 1928 |
Features and Amenities
- Air Conditioning
Presented by
125 E State St
Hmm, there seems to have been an error sending your message. Please try again.
Thanks! Your message was sent.







