Your email has been sent.
Brush Creek Commons II 125 Emeryville Dr 821 - 13,277 SF of Office Space Available in Cranberry Township, PA 16066



Highlights
- Immediate access to Route 19, I-76 and I-79
- Beautiful, walkable campus setting
- Energy efficient HVAC systems and windows that provide abundant natural light
- Building signage opportunities along I-76
All Available Spaces(4)
Display Rental Rate as
- Space
- Size
- Term
- Rental Rate
- Space Use
- Build-Out
- Available
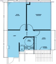
First floor suite - Office intensive space plan with 14 private offices, 1 conference room, and a kitchenette.
- Fully Built-Out as Standard Office
- 1 Conference Room
- Great location.
- 14 Private Offices
- Central Air Conditioning
Former optometrist space. Includes multiple partitioned office spaces/exam spaces, an open reception area, kitchen, and dedicated waiting room. Elevator service located directly outside the suite entry.
- Partially Built-Out as Standard Office
- Central Air Conditioning
- Office intensive layout
- Great location.
Third floor suite - Two private offices, a conference room, and a kitchenette. Can be combined with Suite 330 for a total of 4,935 SF.
- Fully Built-Out as Standard Office
- 1 Conference Room
- Natural Light
- 2 Private Offices
- Can be combined with additional space(s) for up to 4,935 SF of adjacent space
- Great location.
Third floor suite - Mix of private offices and open space, and a kitchenette. Can be combined with Suite 320 for a total of 4,935 SF.
- Partially Built-Out as Standard Office
- Can be combined with additional space(s) for up to 4,935 SF of adjacent space
- Great space.
- Mostly Open Floor Plan Layout
- Central Air Conditioning
| Space | Size | Term | Rental Rate | Space Use | Build-Out | Available |
| 1st Floor, Ste 100 | 5,430 SF | 3-5 Years | Upon Request Upon Request Upon Request Upon Request | Office | Full Build-Out | 60 Days |
| 2nd Floor, Ste 200 | 2,912 SF | 3-5 Years | Upon Request Upon Request Upon Request Upon Request | Office | Partial Build-Out | Now |
| 3rd Floor, Ste 320 | 821 SF | 3-5 Years | Upon Request Upon Request Upon Request Upon Request | Office | Full Build-Out | Now |
| 3rd Floor, Ste 330 | 4,114 SF | 3-5 Years | Upon Request Upon Request Upon Request Upon Request | Office | Partial Build-Out | 60 Days |
1st Floor, Ste 100
| Size |
| 5,430 SF |
| Term |
| 3-5 Years |
| Rental Rate |
| Upon Request Upon Request Upon Request Upon Request |
| Space Use |
| Office |
| Build-Out |
| Full Build-Out |
| Available |
| 60 Days |
2nd Floor, Ste 200
| Size |
| 2,912 SF |
| Term |
| 3-5 Years |
| Rental Rate |
| Upon Request Upon Request Upon Request Upon Request |
| Space Use |
| Office |
| Build-Out |
| Partial Build-Out |
| Available |
| Now |
3rd Floor, Ste 320
| Size |
| 821 SF |
| Term |
| 3-5 Years |
| Rental Rate |
| Upon Request Upon Request Upon Request Upon Request |
| Space Use |
| Office |
| Build-Out |
| Full Build-Out |
| Available |
| Now |
3rd Floor, Ste 330
| Size |
| 4,114 SF |
| Term |
| 3-5 Years |
| Rental Rate |
| Upon Request Upon Request Upon Request Upon Request |
| Space Use |
| Office |
| Build-Out |
| Partial Build-Out |
| Available |
| 60 Days |
1st Floor, Ste 100
| Size | 5,430 SF |
| Term | 3-5 Years |
| Rental Rate | Upon Request |
| Space Use | Office |
| Build-Out | Full Build-Out |
| Available | 60 Days |
First floor suite - Office intensive space plan with 14 private offices, 1 conference room, and a kitchenette.
- Fully Built-Out as Standard Office
- 14 Private Offices
- 1 Conference Room
- Central Air Conditioning
- Great location.
2nd Floor, Ste 200
| Size | 2,912 SF |
| Term | 3-5 Years |
| Rental Rate | Upon Request |
| Space Use | Office |
| Build-Out | Partial Build-Out |
| Available | Now |
Former optometrist space. Includes multiple partitioned office spaces/exam spaces, an open reception area, kitchen, and dedicated waiting room. Elevator service located directly outside the suite entry.
- Partially Built-Out as Standard Office
- Office intensive layout
- Central Air Conditioning
- Great location.
3rd Floor, Ste 320
| Size | 821 SF |
| Term | 3-5 Years |
| Rental Rate | Upon Request |
| Space Use | Office |
| Build-Out | Full Build-Out |
| Available | Now |
Third floor suite - Two private offices, a conference room, and a kitchenette. Can be combined with Suite 330 for a total of 4,935 SF.
- Fully Built-Out as Standard Office
- 2 Private Offices
- 1 Conference Room
- Can be combined with additional space(s) for up to 4,935 SF of adjacent space
- Natural Light
- Great location.
3rd Floor, Ste 330
| Size | 4,114 SF |
| Term | 3-5 Years |
| Rental Rate | Upon Request |
| Space Use | Office |
| Build-Out | Partial Build-Out |
| Available | 60 Days |
Third floor suite - Mix of private offices and open space, and a kitchenette. Can be combined with Suite 320 for a total of 4,935 SF.
- Partially Built-Out as Standard Office
- Mostly Open Floor Plan Layout
- Can be combined with additional space(s) for up to 4,935 SF of adjacent space
- Central Air Conditioning
- Great space.
Property Overview
Class A Office Space For Lease. Ideally located in the heart of Cranberry Township with immediate access to Route 19, I-76, and I-79. Brush Creek Commons affords tenants excellent access to major highways, while giving them a peaceful campus with proximity to Cranberry’s retail amenities.
- 24 Hour Access
- Signage
- Monument Signage
- Air Conditioning
Property Facts
Select Tenants
- Floor
- Tenant Name
- Industry
- 3rd
- 4th River Financial Group
- Finance and Insurance
- 2nd
- Cognitive Behavior Institute
- Health Care and Social Assistance
- 3rd
- DataStaff Advisors
- Administrative and Support Services
- 3rd
- Draw Collective
- Professional, Scientific, and Technical Services
- 1st
- Future Electronics
- Wholesaler
- 1st
- Green Cabbage
- Professional, Scientific, and Technical Services
- 3rd
- Trimech
- Professional, Scientific, and Technical Services
Presented by
Brush Creek Commons II | 125 Emeryville Dr
Hmm, there seems to have been an error sending your message. Please try again.
Thanks! Your message was sent.













