Your email has been sent.
The Myles: Bar/Restaurant in Arts District 125 W Imperial Ave 2,068 - 5,141 SF of 4-Star Retail Space Available in Las Vegas, NV 89102



Highlights
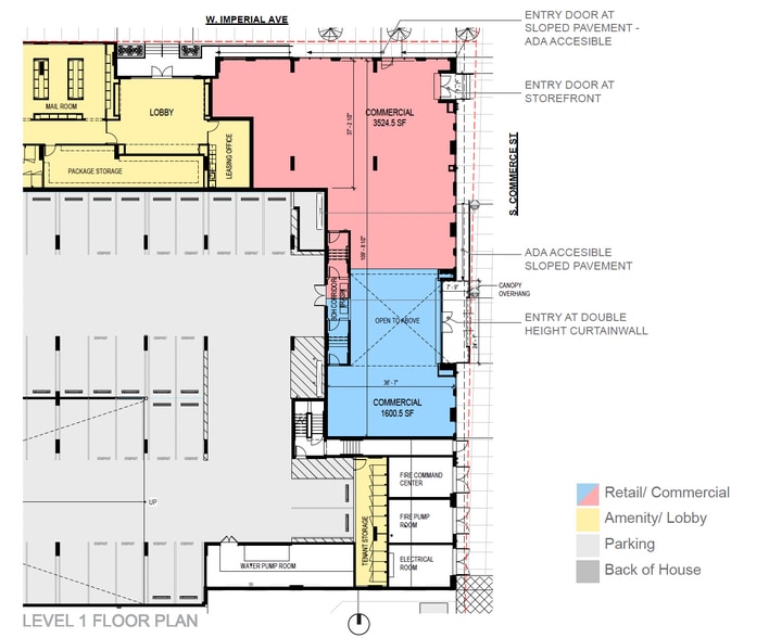
- Fully fronting Commerce St. with max visibility and walkability
- HVAC compressors paid for by landlord (@ one ton per 250 SF of Premises Area)
- Commerce Neighbors: Dustland, Stray Pirate, Prowl, The Good Wolf, SerVehZah, Liquid Diet, Meraki (soon), Guerilla Pizza (soon), Sublimotion (soon)
- Electrical, upsized waterline, gasline, sewer, fire riser/sprinklers & grease interceptor stubbed into Premises
- Favorable tenant improvement allowance contemplated for experienced operator(s)
All Available Spaces(2)
Display Rental Rate as
- Space
- Size
- Term
- Rental Rate
- Space Use
- Build-Out
- Available
Your premises will be delivered with a substantial amount of work completed by landlord for your benefit. Ample electrical, upsized water line, gas, sewer, community grease interceptor all stubbed into space and fire-riser complete plus HVAC compressors (at one ton per 250 SF of Premises area place on roof with drops into your suite). With delivery anticipated in April 2026, you've time to sign your lease, design and permit your plans before receiving the keys. You can hit the ground running and ready to build out your improvements day one. A seasoned operator can take delivery and complete its build out with time to spare for soft opening before commencement of regular rent payments. Your Premises will front the sidewalk on the west side of Commerce St (across from Prowl, The Good Wolf and Mi Barrio) with a 7-story building casting shade early in the day. This will benefit your sidewalk dining options in the public right of way (available through the City via encroachment permit). Floor-to-ceiling window and generous ceiling heights allow for max visibility from traffic and pedestrians and offer the opportunity to provide your patrons with a truly unique experience for the Arts District.
- Lease rate does not include utilities, property expenses or building services
- Space is in Excellent Condition
- Fully frontage on Commerce St. with max visibility
- HVAC compressors paid for by landlord
- Electrical, upsized water & gas line stubbed
- Partially Built-Out as a Restaurant or Café Space
- Finished Ceilings: 12’6” - 22’6”
- Adjacent city-operated parking lot
- Generous ceiling heights
- Fire riser/sprinklers & grease interceptor stubbed
Your premises will be delivered with a substantial amount of work completed by landlord for your benefit. Ample electrical, upsized water line, gas, sewer, community grease interceptor all stubbed into space and fire-riser complete plus HVAC compressors (at one ton per 250 SF of Premises area place on roof with drops into your suite). With delivery anticipated in April 2026, you've time to sign your lease, design and permit your plans before receiving the keys. You can hit the ground running and ready to build out your improvements day one. A seasoned operator can take delivery and complete its build out with time to spare for soft opening before commencement of regular rent payments. Your Premises will front the sidewalk on the west side of Commerce St (across from Prowl, The Good Wolf and Mi Barrio) with a 7-story building casting shade early in the day. This will benefit your sidewalk dining options in the public right of way (available through the City via encroachment permit). Floor-to-ceiling window and generous ceiling heights allow for max visibility from traffic and pedestrians and offer the opportunity to provide your patrons with a truly unique experience for the Arts District.
- Lease rate does not include utilities, property expenses or building services
- Space is in Excellent Condition
- Adjacent city-operated parking lot
- Generous ceiling heights
- Grease interceptor & fire riser/sprinklers stubbed
- Partially Built-Out as a Restaurant or Café Space
- Fully frontage on Commerce St. with max visibility
- HVAC compressors paid for by landlord
- Electrical, upsized water, gas & sewer stubbed
| Space | Size | Term | Rental Rate | Space Use | Build-Out | Available |
| 1st Floor, Ste 100 | 3,073 SF | Negotiable | $61.39 CAD/SF/YR $5.12 CAD/SF/MO $188,654 CAD/YR $15,721 CAD/MO | Retail | Partial Build-Out | Now |
| 1st Floor, Ste 120 | 2,068 SF | Negotiable | $61.39 CAD/SF/YR $5.12 CAD/SF/MO $126,956 CAD/YR $10,580 CAD/MO | Retail | Partial Build-Out | Now |
1st Floor, Ste 100
| Size |
| 3,073 SF |
| Term |
| Negotiable |
| Rental Rate |
| $61.39 CAD/SF/YR $5.12 CAD/SF/MO $188,654 CAD/YR $15,721 CAD/MO |
| Space Use |
| Retail |
| Build-Out |
| Partial Build-Out |
| Available |
| Now |
1st Floor, Ste 120
| Size |
| 2,068 SF |
| Term |
| Negotiable |
| Rental Rate |
| $61.39 CAD/SF/YR $5.12 CAD/SF/MO $126,956 CAD/YR $10,580 CAD/MO |
| Space Use |
| Retail |
| Build-Out |
| Partial Build-Out |
| Available |
| Now |
1st Floor, Ste 100
| Size | 3,073 SF |
| Term | Negotiable |
| Rental Rate | $61.39 CAD/SF/YR |
| Space Use | Retail |
| Build-Out | Partial Build-Out |
| Available | Now |
Your premises will be delivered with a substantial amount of work completed by landlord for your benefit. Ample electrical, upsized water line, gas, sewer, community grease interceptor all stubbed into space and fire-riser complete plus HVAC compressors (at one ton per 250 SF of Premises area place on roof with drops into your suite). With delivery anticipated in April 2026, you've time to sign your lease, design and permit your plans before receiving the keys. You can hit the ground running and ready to build out your improvements day one. A seasoned operator can take delivery and complete its build out with time to spare for soft opening before commencement of regular rent payments. Your Premises will front the sidewalk on the west side of Commerce St (across from Prowl, The Good Wolf and Mi Barrio) with a 7-story building casting shade early in the day. This will benefit your sidewalk dining options in the public right of way (available through the City via encroachment permit). Floor-to-ceiling window and generous ceiling heights allow for max visibility from traffic and pedestrians and offer the opportunity to provide your patrons with a truly unique experience for the Arts District.
- Lease rate does not include utilities, property expenses or building services
- Partially Built-Out as a Restaurant or Café Space
- Space is in Excellent Condition
- Finished Ceilings: 12’6” - 22’6”
- Fully frontage on Commerce St. with max visibility
- Adjacent city-operated parking lot
- HVAC compressors paid for by landlord
- Generous ceiling heights
- Electrical, upsized water & gas line stubbed
- Fire riser/sprinklers & grease interceptor stubbed
1st Floor, Ste 120
| Size | 2,068 SF |
| Term | Negotiable |
| Rental Rate | $61.39 CAD/SF/YR |
| Space Use | Retail |
| Build-Out | Partial Build-Out |
| Available | Now |
Your premises will be delivered with a substantial amount of work completed by landlord for your benefit. Ample electrical, upsized water line, gas, sewer, community grease interceptor all stubbed into space and fire-riser complete plus HVAC compressors (at one ton per 250 SF of Premises area place on roof with drops into your suite). With delivery anticipated in April 2026, you've time to sign your lease, design and permit your plans before receiving the keys. You can hit the ground running and ready to build out your improvements day one. A seasoned operator can take delivery and complete its build out with time to spare for soft opening before commencement of regular rent payments. Your Premises will front the sidewalk on the west side of Commerce St (across from Prowl, The Good Wolf and Mi Barrio) with a 7-story building casting shade early in the day. This will benefit your sidewalk dining options in the public right of way (available through the City via encroachment permit). Floor-to-ceiling window and generous ceiling heights allow for max visibility from traffic and pedestrians and offer the opportunity to provide your patrons with a truly unique experience for the Arts District.
- Lease rate does not include utilities, property expenses or building services
- Partially Built-Out as a Restaurant or Café Space
- Space is in Excellent Condition
- Fully frontage on Commerce St. with max visibility
- Adjacent city-operated parking lot
- HVAC compressors paid for by landlord
- Generous ceiling heights
- Electrical, upsized water, gas & sewer stubbed
- Grease interceptor & fire riser/sprinklers stubbed
Property Facts
| Total Space Available | 5,141 SF | Apartment Style | Mid-Rise |
| No. Units | 311 | Building Size | 300,000 SF |
| Property Type | Multifamily | Year Built | 2026 |
| Property Subtype | Apartment | Construction Status | Under Construction |
| Total Space Available | 5,141 SF |
| No. Units | 311 |
| Property Type | Multifamily |
| Property Subtype | Apartment |
| Apartment Style | Mid-Rise |
| Building Size | 300,000 SF |
| Year Built | 2026 |
| Construction Status | Under Construction |
About the Property
5-star retail space optimized for restaurant & bar concepts with full-story windows and max visibility/walkability on Commerce. With the mass of 311 apartment units and 7-stories of behind and above you, your streetscape will be fully-shaded early in the day and the City is open to tenant applications for sidewalk dining via encroachment permits. Spaces delivered as plug-in-ready warm grey shell with landlord providing tenants with incredible cost savings via (1) electrical switchgear with ample power, (2) upsized water line, (3) gas line, (4) fire riser/sprinklers, (5) grease interceptor and (6) HVAC compressor units already installed at one ton per 250 SF of premises area. Sign up today and you'll have time to design/permit your improvements prior to taking delivery. This will allow you to hit the ground running and make the most of your free rent period. Landlord negotiable re: tenant improvement allowance based on lease terms and tenant's planned use and experience/operational history. Call/Text Michael Park @ 702.235.7300 for information.
Nearby Major Retailers
Presented by
The Myles: Bar/Restaurant in Arts District | 125 W Imperial Ave
Hmm, there seems to have been an error sending your message. Please try again.
Thanks! Your message was sent.




