Your email has been sent.
12501 SW 236th St - AMC PARK SOUTH DADE MULTI-FAMILY DEVELOPMENT 6.87 Acres of Residential Land Offered at $17,952,371 CAD in Homestead, FL 33032



Investment Highlights
- MULTI-FAMILY DEVELOPMENT BEING SOLD SUBJECT TO REZONING & LAND USE AMENDMENT, RU-4 HIGH DENSITY(50 DU/ACRE) AND SITE PLAN APPROVAL
- 376 PARKING SPACES PROVIDED
- WITHIN CLOSE PROXIMITY TO LENNAR HOMES DEVELOPMENTS, SHOPPING AND AREA SCHOOLS
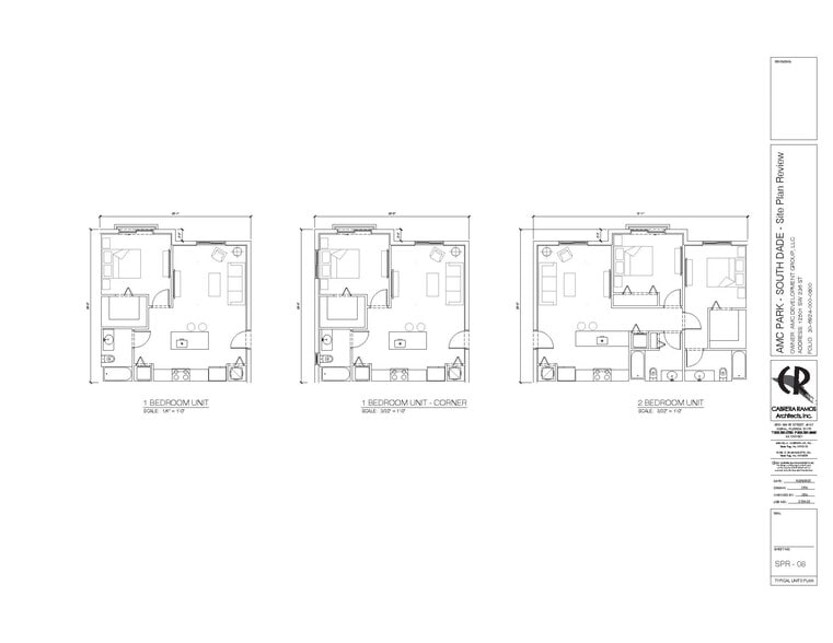
- SITE PLAN FOR 248 UNITS MULTI-FAMILY DEVELOPMENT
- PORPERTY IS LOCATED EAST OF SOUTH DIXIE HWY., (US-1) WITH 682' FRONTAGE AND ACCESS ON SW 125TH AVE, & SW 236TH STREET.
- EASY ACCESS TO SO. DIXIE HWY., (US-1), FL. TURNPIKE AND OTHER MAJOR ROADWAYS
Executive Summary
Data Room Click Here to Access
- Offering Memorandum
Property Facts
1 Lot Available
Lot
| Price | $17,952,371 CAD | Lot Size | 6.87 AC |
| Price Per AC | $2,613,154.37 CAD |
| Price | $17,952,371 CAD |
| Price Per AC | $2,613,154.37 CAD |
| Lot Size | 6.87 AC |
AMC PARK SOUTH DADE, 7.27+/- Gross (6.49+/- Net) Acres located at 12501 SW 236th Street. CDMP amendment / rezoning application from AU (Agricultural District) to RU-4 (High Density Apartment House District, maximum 50 DU/Acre) has been approved.
Description
Centrally located of US-1 in the heart of a growing community in SW Miami-Dade. CDMP/Zoning ALREADY APPROVED FOR RU-4 HIGH DENSITY APARTMENT HOUSING DISTRICT; MAXIMUM DENSITY PERMITTED (50 DU/ACRE). SITE PLAN APPROVED FOR 248 MULTI-FAMILITY DEVELOPMENT, 100% WORKFORCE HOUSING DWELLING UNITS (WHU). WITH (2) ACCESS DRIVEWAYS; (1) ON 125TH AVE. & (1) ON 236TH ST. CONSISTING OF 6 BUILDINGS, 84 UNITS (1BD)/164 UNITS (2BD), WITH 370 TOTAL SURFACE PARKING SPACES PROVIDED, and with amenities such as a swimming pool, playground, pedestrian walking paths, mail kiosks, bicycle racks and landscaped common open areas. The site plan also depicts the dedication of SW 125 Ave and SW 236 Street which provide public access to the site. The development will have two ingress-egress vehicular and pedestrian access along SW 125 Avenue and SW 236 Street. ($60,000.00 P/DOOR). PORPERTY IS LOCATED EAST OF SOUTH DIXIE HWY., (US-1) WITH 682' FRONTAGE ON SW 236TH ST. Water & Sewer within close proximity, Minimal Fill Required. The property is located within the Naranja Expansion, close to Lennar Homes Developments, minutes from the Cutler Ridge Metropolitan Center District, Southland Mall, Wal-Mart Supercenter, Target, Home Depot and Area Schools. Situated toward the southern tip of Florida, Homestead, FL is often considered the "Gateway to Everglades & Biscayne National Parks", for its proximity to the historic natural sites. Residents are about 30 miles from Key Largo, and 22 miles from downtown Miami, providing plenty to do in the area. Homestead is also the site of Coral Castle, a unique hand-carved building and sculptures from coral by Ed Leedskalnin over the course of 28 years.
Property Taxes
| Parcel Number | 30-6924-000-0800 | Improvements Assessment | $0 CAD |
| Land Assessment | $0 CAD | Total Assessment | $2,106,516 CAD |
Property Taxes
Presented by
12501 SW 236th St - AMC PARK SOUTH DADE MULTI-FAMILY DEVELOPMENT
Hmm, there seems to have been an error sending your message. Please try again.
Thanks! Your message was sent.

