Your email has been sent.
2100sf Flex Office Space 12585 Old Highway 280 2,100 - 4,200 SF of Flex Space Available in Chelsea, AL 35043



Highlights
- large ground level over head doors on each unit
- professional office warehouse
Features
All Available Spaces(2)
Display Rental Rate as
- Space
- Size
- Term
- Rental Rate
- Space Use
- Build-Out
- Available
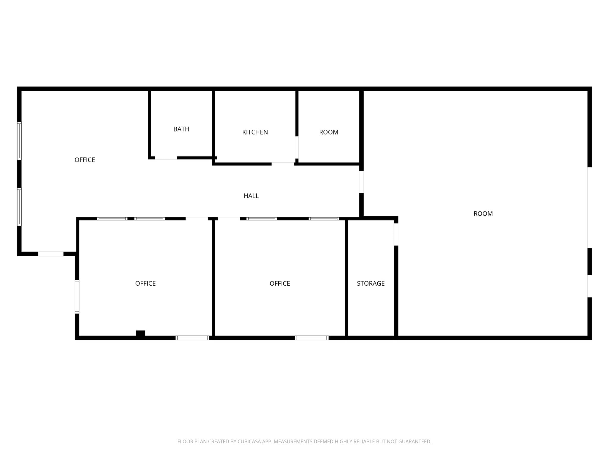
Suite 101 is 2100sf end cap with large open entry area, two very large executive offices, bathroom, kitchen, and storage, +/-800sf of warehouse space with storage closet and large over head door.
- Listed rate may not include certain utilities, building services and property expenses
- 1 Drive Bay
- Partitioned Offices
- Secure Storage
- High Ceilings
- Wheelchair Accessible
- end cap unit
- open floor plan
- Includes 1,300 SF of dedicated office space
- Central Air and Heating
- Private Restrooms
- Drop Ceilings
- Corner Space
- large over head door
- lots of natural light
Inline Suite: 2100sf of Flex Office Warehouse. Built in reception desk, conference area, 4 partitioned offices, 2 private restrooms, open bull pen, warehouse with mezzanine and over sized roll up door.
- Listed rate may not include certain utilities, building services and property expenses
- Space is in Excellent Condition
- Central Air and Heating
- Reception Area
- Secure Storage
- High Ceilings
- Wheelchair Accessible
- Professional Office Warehouse
- Includes 1,800 SF of dedicated office space
- 1 Drive Bay
- Partitioned Offices
- Private Restrooms
- Drop Ceilings
- Conference Rooms
- Large Over Head Door
- Located just off Hwy 280
| Space | Size | Term | Rental Rate | Space Use | Build-Out | Available |
| 1st Floor - 101 | 2,100 SF | Negotiable | $21.14 CAD/SF/YR $1.76 CAD/SF/MO $44,387 CAD/YR $3,699 CAD/MO | Flex | Full Build-Out | Now |
| 1st Floor - 105 | 2,100 SF | Negotiable | $21.14 CAD/SF/YR $1.76 CAD/SF/MO $44,387 CAD/YR $3,699 CAD/MO | Flex | Full Build-Out | Now |
1st Floor - 101
| Size |
| 2,100 SF |
| Term |
| Negotiable |
| Rental Rate |
| $21.14 CAD/SF/YR $1.76 CAD/SF/MO $44,387 CAD/YR $3,699 CAD/MO |
| Space Use |
| Flex |
| Build-Out |
| Full Build-Out |
| Available |
| Now |
1st Floor - 105
| Size |
| 2,100 SF |
| Term |
| Negotiable |
| Rental Rate |
| $21.14 CAD/SF/YR $1.76 CAD/SF/MO $44,387 CAD/YR $3,699 CAD/MO |
| Space Use |
| Flex |
| Build-Out |
| Full Build-Out |
| Available |
| Now |
1st Floor - 101
| Size | 2,100 SF |
| Term | Negotiable |
| Rental Rate | $21.14 CAD/SF/YR |
| Space Use | Flex |
| Build-Out | Full Build-Out |
| Available | Now |
Suite 101 is 2100sf end cap with large open entry area, two very large executive offices, bathroom, kitchen, and storage, +/-800sf of warehouse space with storage closet and large over head door.
- Listed rate may not include certain utilities, building services and property expenses
- Includes 1,300 SF of dedicated office space
- 1 Drive Bay
- Central Air and Heating
- Partitioned Offices
- Private Restrooms
- Secure Storage
- Drop Ceilings
- High Ceilings
- Corner Space
- Wheelchair Accessible
- large over head door
- end cap unit
- lots of natural light
- open floor plan
1st Floor - 105
| Size | 2,100 SF |
| Term | Negotiable |
| Rental Rate | $21.14 CAD/SF/YR |
| Space Use | Flex |
| Build-Out | Full Build-Out |
| Available | Now |
Inline Suite: 2100sf of Flex Office Warehouse. Built in reception desk, conference area, 4 partitioned offices, 2 private restrooms, open bull pen, warehouse with mezzanine and over sized roll up door.
- Listed rate may not include certain utilities, building services and property expenses
- Includes 1,800 SF of dedicated office space
- Space is in Excellent Condition
- 1 Drive Bay
- Central Air and Heating
- Partitioned Offices
- Reception Area
- Private Restrooms
- Secure Storage
- Drop Ceilings
- High Ceilings
- Conference Rooms
- Wheelchair Accessible
- Large Over Head Door
- Professional Office Warehouse
- Located just off Hwy 280
Property Overview
Yellowleaf Landing is a 7 unit flex office warehouse property in Chelsea, AL. Located along the quiet Old Hwy 280. Each unit features a mix of professional office and warehouse with ground level access. Perfect for skill trades, ecommerce, and other small office and warehouse needs.
Property Facts
Presented by
2100sf Flex Office Space | 12585 Old Highway 280
Hmm, there seems to have been an error sending your message. Please try again.
Thanks! Your message was sent.






