Your email has been sent.
Memorial Ashford Place 12651 Briar Forest Dr 405 - 23,027 SF of Office Space Available in Houston, TX 77077



Highlights
- Frontage on Briar Forest Drive.
- Ample Parking.
All Available Spaces(13)
Display Rental Rate as
- Space
- Size
- Term
- Rental Rate
- Space Use
- Build-Out
- Available
- Rate includes utilities, building services and property expenses
- 7 Private Offices
- Fully Built-Out as Standard Office
- 1 Conference Room
- Rate includes utilities, building services and property expenses
- 5 Private Offices
- 5 Workstations
- Fully Built-Out as Standard Office
- 2 Conference Rooms
- Rate includes utilities, building services and property expenses
- 4 Private Offices
- Fully Built-Out as Standard Office
- 1 Conference Room
- Rate includes utilities, building services and property expenses
- 1 Private Office
- Fully Built-Out as Standard Office
- 2 Workstations
- Rate includes utilities, building services and property expenses
- 1 Private Office
- Fully Built-Out as Standard Office
- Rate includes utilities, building services and property expenses
- Mostly Open Floor Plan Layout
- 1 Conference Room
- Corner Space
- Fully Built-Out as Standard Office
- 3 Private Offices
- Finished Ceilings: 9’
- Rate includes utilities, building services and property expenses
- 1 Private Office
- Can be combined with additional space(s) for up to 5,120 SF of adjacent space
- Fully Built-Out as Standard Office
- 3 Workstations
- Rate includes utilities, building services and property expenses
- Office intensive layout
- Fully Built-Out as Standard Office
- Can be combined with additional space(s) for up to 5,120 SF of adjacent space
- Rate includes utilities, building services and property expenses
- Open Floor Plan Layout
- Fully Built-Out as Professional Services Office
- Can be combined with additional space(s) for up to 5,120 SF of adjacent space
- Rate includes utilities, building services and property expenses
- 2 Private Offices
- Fully Built-Out as Standard Office
- Can be combined with additional space(s) for up to 2,734 SF of adjacent space
- Rate includes utilities, building services and property expenses
- 3 Private Offices
- Can be combined with additional space(s) for up to 2,734 SF of adjacent space
- Fully Built-Out as Standard Office
- 1 Conference Room
- Rate includes utilities, building services and property expenses
- 6 Private Offices
- Fully Built-Out as Standard Office
- 1 Conference Room
- Rate includes utilities, building services and property expenses
- 4 Private Offices
- Fully Built-Out as Standard Office
- 1 Conference Room
| Space | Size | Term | Rental Rate | Space Use | Build-Out | Available |
| 1st Floor, Ste 100 | 3,777 SF | Negotiable | $23.98 CAD/SF/YR $2.00 CAD/SF/MO $90,581 CAD/YR $7,548 CAD/MO | Office | Full Build-Out | 30 Days |
| 1st Floor, Ste 110 | 3,927 SF | Negotiable | $23.98 CAD/SF/YR $2.00 CAD/SF/MO $94,178 CAD/YR $7,848 CAD/MO | Office | Full Build-Out | 30 Days |
| 1st Floor, Ste 175 | 1,394 SF | Negotiable | $23.98 CAD/SF/YR $2.00 CAD/SF/MO $33,431 CAD/YR $2,786 CAD/MO | Office | Full Build-Out | 30 Days |
| 1st Floor, Ste 178 | 547 SF | Negotiable | $23.98 CAD/SF/YR $2.00 CAD/SF/MO $13,118 CAD/YR $1,093 CAD/MO | Office | Full Build-Out | 30 Days |
| 1st Floor, Ste 188D | 405 SF | Negotiable | $23.98 CAD/SF/YR $2.00 CAD/SF/MO $9,713 CAD/YR $809.40 CAD/MO | Office | Full Build-Out | 30 Days |
| 1st Floor, Ste 195 | 1,449 SF | Negotiable | $23.98 CAD/SF/YR $2.00 CAD/SF/MO $34,750 CAD/YR $2,896 CAD/MO | Office | Full Build-Out | 30 Days |
| 2nd Floor, Ste 222 | 583 SF | Negotiable | $23.98 CAD/SF/YR $2.00 CAD/SF/MO $13,982 CAD/YR $1,165 CAD/MO | Office | Full Build-Out | Pending |
| 2nd Floor, Ste 225 | 1,353 SF | Negotiable | $23.98 CAD/SF/YR $2.00 CAD/SF/MO $32,448 CAD/YR $2,704 CAD/MO | Office | Full Build-Out | 30 Days |
| 2nd Floor, Ste 230 | 3,184 SF | Negotiable | $23.98 CAD/SF/YR $2.00 CAD/SF/MO $76,359 CAD/YR $6,363 CAD/MO | Office | Full Build-Out | 30 Days |
| 2nd Floor, Ste 242 | 1,023 SF | Negotiable | $23.98 CAD/SF/YR $2.00 CAD/SF/MO $24,534 CAD/YR $2,044 CAD/MO | Office | Full Build-Out | 30 Days |
| 2nd Floor, Ste 245 | 1,711 SF | Negotiable | $23.98 CAD/SF/YR $2.00 CAD/SF/MO $41,034 CAD/YR $3,419 CAD/MO | Office | Full Build-Out | 30 Days |
| 2nd Floor, Ste 250 | 2,339 SF | Negotiable | $23.98 CAD/SF/YR $2.00 CAD/SF/MO $56,094 CAD/YR $4,675 CAD/MO | Office | Full Build-Out | 30 Days |
| 2nd Floor, Ste 280 | 1,335 SF | Negotiable | $23.98 CAD/SF/YR $2.00 CAD/SF/MO $32,016 CAD/YR $2,668 CAD/MO | Office | Full Build-Out | 30 Days |
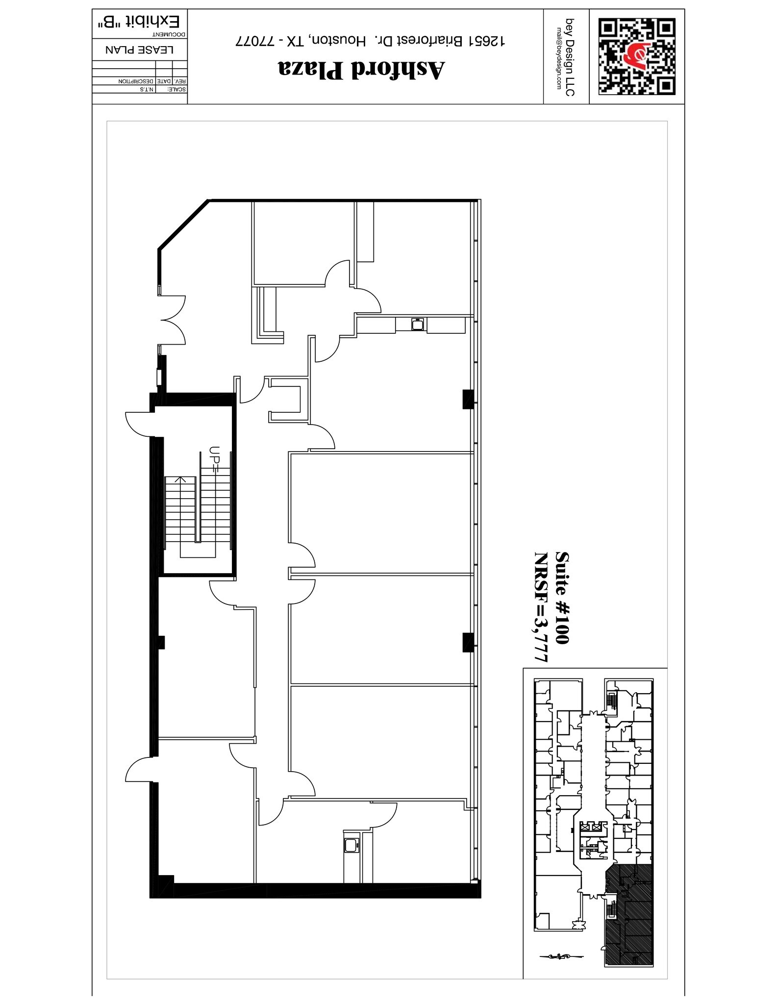
1st Floor, Ste 100
| Size |
| 3,777 SF |
| Term |
| Negotiable |
| Rental Rate |
| $23.98 CAD/SF/YR $2.00 CAD/SF/MO $90,581 CAD/YR $7,548 CAD/MO |
| Space Use |
| Office |
| Build-Out |
| Full Build-Out |
| Available |
| 30 Days |
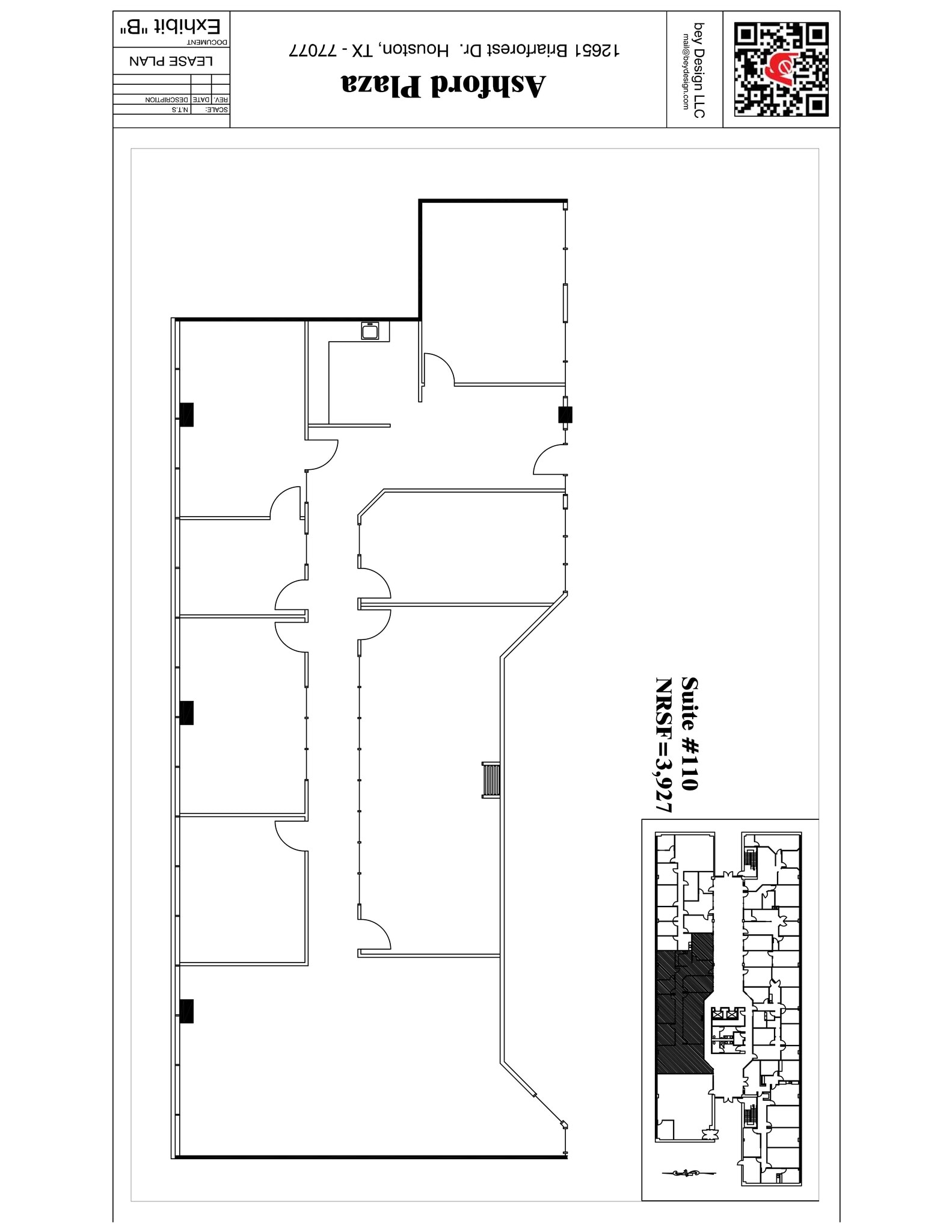
1st Floor, Ste 110
| Size |
| 3,927 SF |
| Term |
| Negotiable |
| Rental Rate |
| $23.98 CAD/SF/YR $2.00 CAD/SF/MO $94,178 CAD/YR $7,848 CAD/MO |
| Space Use |
| Office |
| Build-Out |
| Full Build-Out |
| Available |
| 30 Days |
1st Floor, Ste 175
| Size |
| 1,394 SF |
| Term |
| Negotiable |
| Rental Rate |
| $23.98 CAD/SF/YR $2.00 CAD/SF/MO $33,431 CAD/YR $2,786 CAD/MO |
| Space Use |
| Office |
| Build-Out |
| Full Build-Out |
| Available |
| 30 Days |
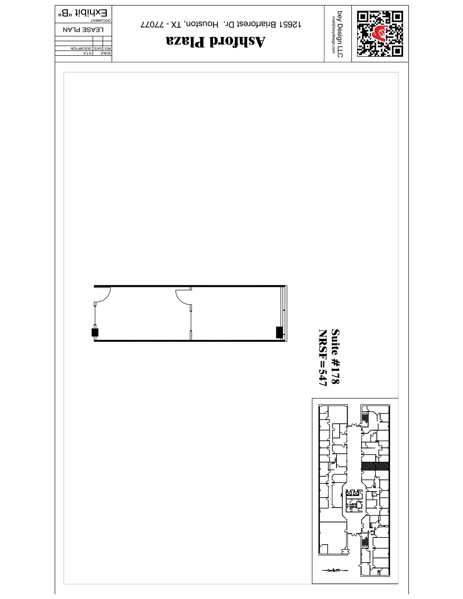
1st Floor, Ste 178
| Size |
| 547 SF |
| Term |
| Negotiable |
| Rental Rate |
| $23.98 CAD/SF/YR $2.00 CAD/SF/MO $13,118 CAD/YR $1,093 CAD/MO |
| Space Use |
| Office |
| Build-Out |
| Full Build-Out |
| Available |
| 30 Days |
1st Floor, Ste 188D
| Size |
| 405 SF |
| Term |
| Negotiable |
| Rental Rate |
| $23.98 CAD/SF/YR $2.00 CAD/SF/MO $9,713 CAD/YR $809.40 CAD/MO |
| Space Use |
| Office |
| Build-Out |
| Full Build-Out |
| Available |
| 30 Days |
1st Floor, Ste 195
| Size |
| 1,449 SF |
| Term |
| Negotiable |
| Rental Rate |
| $23.98 CAD/SF/YR $2.00 CAD/SF/MO $34,750 CAD/YR $2,896 CAD/MO |
| Space Use |
| Office |
| Build-Out |
| Full Build-Out |
| Available |
| 30 Days |
2nd Floor, Ste 222
| Size |
| 583 SF |
| Term |
| Negotiable |
| Rental Rate |
| $23.98 CAD/SF/YR $2.00 CAD/SF/MO $13,982 CAD/YR $1,165 CAD/MO |
| Space Use |
| Office |
| Build-Out |
| Full Build-Out |
| Available |
| Pending |
2nd Floor, Ste 225
| Size |
| 1,353 SF |
| Term |
| Negotiable |
| Rental Rate |
| $23.98 CAD/SF/YR $2.00 CAD/SF/MO $32,448 CAD/YR $2,704 CAD/MO |
| Space Use |
| Office |
| Build-Out |
| Full Build-Out |
| Available |
| 30 Days |
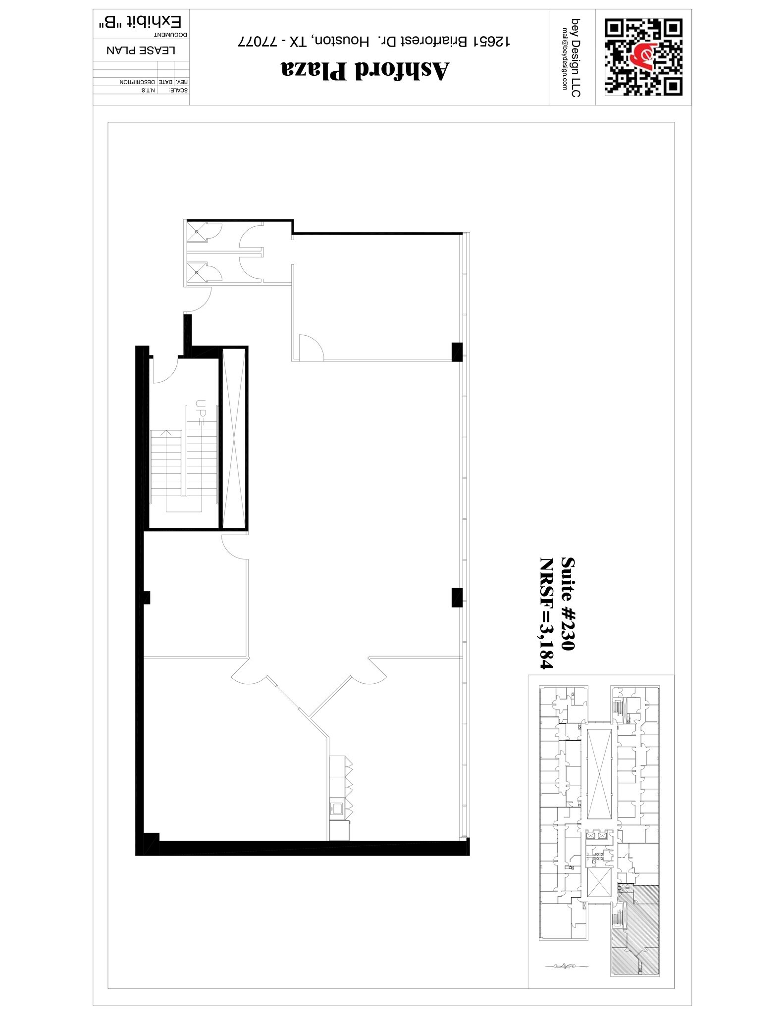
2nd Floor, Ste 230
| Size |
| 3,184 SF |
| Term |
| Negotiable |
| Rental Rate |
| $23.98 CAD/SF/YR $2.00 CAD/SF/MO $76,359 CAD/YR $6,363 CAD/MO |
| Space Use |
| Office |
| Build-Out |
| Full Build-Out |
| Available |
| 30 Days |
2nd Floor, Ste 242
| Size |
| 1,023 SF |
| Term |
| Negotiable |
| Rental Rate |
| $23.98 CAD/SF/YR $2.00 CAD/SF/MO $24,534 CAD/YR $2,044 CAD/MO |
| Space Use |
| Office |
| Build-Out |
| Full Build-Out |
| Available |
| 30 Days |
2nd Floor, Ste 245
| Size |
| 1,711 SF |
| Term |
| Negotiable |
| Rental Rate |
| $23.98 CAD/SF/YR $2.00 CAD/SF/MO $41,034 CAD/YR $3,419 CAD/MO |
| Space Use |
| Office |
| Build-Out |
| Full Build-Out |
| Available |
| 30 Days |
2nd Floor, Ste 250
| Size |
| 2,339 SF |
| Term |
| Negotiable |
| Rental Rate |
| $23.98 CAD/SF/YR $2.00 CAD/SF/MO $56,094 CAD/YR $4,675 CAD/MO |
| Space Use |
| Office |
| Build-Out |
| Full Build-Out |
| Available |
| 30 Days |
2nd Floor, Ste 280
| Size |
| 1,335 SF |
| Term |
| Negotiable |
| Rental Rate |
| $23.98 CAD/SF/YR $2.00 CAD/SF/MO $32,016 CAD/YR $2,668 CAD/MO |
| Space Use |
| Office |
| Build-Out |
| Full Build-Out |
| Available |
| 30 Days |
1st Floor, Ste 100
| Size | 3,777 SF |
| Term | Negotiable |
| Rental Rate | $23.98 CAD/SF/YR |
| Space Use | Office |
| Build-Out | Full Build-Out |
| Available | 30 Days |
- Rate includes utilities, building services and property expenses
- Fully Built-Out as Standard Office
- 7 Private Offices
- 1 Conference Room
1st Floor, Ste 110
| Size | 3,927 SF |
| Term | Negotiable |
| Rental Rate | $23.98 CAD/SF/YR |
| Space Use | Office |
| Build-Out | Full Build-Out |
| Available | 30 Days |
- Rate includes utilities, building services and property expenses
- Fully Built-Out as Standard Office
- 5 Private Offices
- 2 Conference Rooms
- 5 Workstations
1st Floor, Ste 175
| Size | 1,394 SF |
| Term | Negotiable |
| Rental Rate | $23.98 CAD/SF/YR |
| Space Use | Office |
| Build-Out | Full Build-Out |
| Available | 30 Days |
- Rate includes utilities, building services and property expenses
- Fully Built-Out as Standard Office
- 4 Private Offices
- 1 Conference Room
1st Floor, Ste 178
| Size | 547 SF |
| Term | Negotiable |
| Rental Rate | $23.98 CAD/SF/YR |
| Space Use | Office |
| Build-Out | Full Build-Out |
| Available | 30 Days |
- Rate includes utilities, building services and property expenses
- Fully Built-Out as Standard Office
- 1 Private Office
- 2 Workstations
1st Floor, Ste 188D
| Size | 405 SF |
| Term | Negotiable |
| Rental Rate | $23.98 CAD/SF/YR |
| Space Use | Office |
| Build-Out | Full Build-Out |
| Available | 30 Days |
- Rate includes utilities, building services and property expenses
- Fully Built-Out as Standard Office
- 1 Private Office
1st Floor, Ste 195
| Size | 1,449 SF |
| Term | Negotiable |
| Rental Rate | $23.98 CAD/SF/YR |
| Space Use | Office |
| Build-Out | Full Build-Out |
| Available | 30 Days |
- Rate includes utilities, building services and property expenses
- Fully Built-Out as Standard Office
- Mostly Open Floor Plan Layout
- 3 Private Offices
- 1 Conference Room
- Finished Ceilings: 9’
- Corner Space
2nd Floor, Ste 222
| Size | 583 SF |
| Term | Negotiable |
| Rental Rate | $23.98 CAD/SF/YR |
| Space Use | Office |
| Build-Out | Full Build-Out |
| Available | Pending |
- Rate includes utilities, building services and property expenses
- Fully Built-Out as Standard Office
- 1 Private Office
- 3 Workstations
- Can be combined with additional space(s) for up to 5,120 SF of adjacent space
2nd Floor, Ste 225
| Size | 1,353 SF |
| Term | Negotiable |
| Rental Rate | $23.98 CAD/SF/YR |
| Space Use | Office |
| Build-Out | Full Build-Out |
| Available | 30 Days |
- Rate includes utilities, building services and property expenses
- Fully Built-Out as Standard Office
- Office intensive layout
- Can be combined with additional space(s) for up to 5,120 SF of adjacent space
2nd Floor, Ste 230
| Size | 3,184 SF |
| Term | Negotiable |
| Rental Rate | $23.98 CAD/SF/YR |
| Space Use | Office |
| Build-Out | Full Build-Out |
| Available | 30 Days |
- Rate includes utilities, building services and property expenses
- Fully Built-Out as Professional Services Office
- Open Floor Plan Layout
- Can be combined with additional space(s) for up to 5,120 SF of adjacent space
2nd Floor, Ste 242
| Size | 1,023 SF |
| Term | Negotiable |
| Rental Rate | $23.98 CAD/SF/YR |
| Space Use | Office |
| Build-Out | Full Build-Out |
| Available | 30 Days |
- Rate includes utilities, building services and property expenses
- Fully Built-Out as Standard Office
- 2 Private Offices
- Can be combined with additional space(s) for up to 2,734 SF of adjacent space
2nd Floor, Ste 245
| Size | 1,711 SF |
| Term | Negotiable |
| Rental Rate | $23.98 CAD/SF/YR |
| Space Use | Office |
| Build-Out | Full Build-Out |
| Available | 30 Days |
- Rate includes utilities, building services and property expenses
- Fully Built-Out as Standard Office
- 3 Private Offices
- 1 Conference Room
- Can be combined with additional space(s) for up to 2,734 SF of adjacent space
2nd Floor, Ste 250
| Size | 2,339 SF |
| Term | Negotiable |
| Rental Rate | $23.98 CAD/SF/YR |
| Space Use | Office |
| Build-Out | Full Build-Out |
| Available | 30 Days |
- Rate includes utilities, building services and property expenses
- Fully Built-Out as Standard Office
- 6 Private Offices
- 1 Conference Room
2nd Floor, Ste 280
| Size | 1,335 SF |
| Term | Negotiable |
| Rental Rate | $23.98 CAD/SF/YR |
| Space Use | Office |
| Build-Out | Full Build-Out |
| Available | 30 Days |
- Rate includes utilities, building services and property expenses
- Fully Built-Out as Standard Office
- 4 Private Offices
- 1 Conference Room
Property Overview
12651 Briar Forest features tons of extra amenities including postal service, card-key access, and vending area. All spaces are fully sprinklered. Minutes from I-10 and Beltway 8 30 minutes from Hobby and Bush Intercontinental Airports.
- Atrium
- Controlled Access
- Property Manager on Site
Property Facts
Select Tenants
- Floor
- Tenant Name
- Industry
- 1st
- Biba International Inc
- Construction
- 1st
- Coplen & Banks PC
- Professional, Scientific, and Technical Services
- 2nd
- Enkon Energy Advisors
- -
- 1st
- KEM Energy, Inc.
- Mining, Quarrying, and Oil and Gas Extraction
- 1st
- Malone Petroleum Consulting
- Real Estate
- 3rd
- Momentum Engineering
- Professional, Scientific, and Technical Services
- 1st
- Place Designers Inc.
- -
- 3rd
- Satya, Inc.
- Construction
- 2nd
- Test Center USA
- Professional, Scientific, and Technical Services
- 1st
- Texas Direct Insurance Agency LP
- Finance and Insurance
Presented by
Memorial Ashford Place | 12651 Briar Forest Dr
Hmm, there seems to have been an error sending your message. Please try again.
Thanks! Your message was sent.






















